Hoppa till innehåll
På Trönninge byväg står detta charmiga trähus från 1911

Historiskt hem med moderna bekvämligheter

  • Besiktigad
  • På förhand
  • 86 + 100 kvm
  • 6 rum

Trönninge, Varberg

Trönninge byväg 11

Antal rum:
6
Boarea / Biarea:
86 kvm / 100 kvm*
Tomtarea:
1 207 kvm
Typ:
Friliggande villa

*Areauppgifter enligt taxeringsinformationen

Vill du veta mer om bostaden?

På Förhand – Vad är det?

På Förhand ligger bostäder som av olika anledningar inte är ute till försäljning just nu men som kan komma att säljas om förutsättningarna är rätt.

Läs mer om På Förhand

Ansvarig mäklare

Susanna Fogelström

Fastighetsmäklare / Franchisetagare

Bjurfors Varberg
Susanna Fogelström

BOKA EN KOSTNADSFRI VÄRDERING

Historiskt hem med moderna bekvämligheter

Charmigt trähus med vinklar och vrår, en blomstrande trädgård och flera uteplatser.

Beskrivning

På Trönninge byväg står detta charmiga trähus från 1911. En gammal stenmur löper längs vägen och genom den vita trägrinden kliver man in på en tomt där grusgångar binder samman gräsmattor, rabatter och uteplatser. På tomten samsas blommande hortensior, frodiga ormbunkar och färgstarka perenner med körsbärsträd, äppelträd med hänggungor och odlingslådor för den som vill skörda egna grönsaker. Flera platser inbjuder till avkoppling – ett soligt trädäck intill huset, en stensatt uteplats under tak med eldstad för kvällarna och en sittplats vid köksträdgården.

Huset bär på en genuin charm med sina vinklar och vrår. Entréplanet rymmer vardagsrum, matsal och kök med bevarade äldre luckor och stommar som förstärker husets karaktär. Här finns även ett sovrum som fungerar lika bra som gästrum eller arbetsrum. Övervåningen med sina snedtak bjuder på charm och trivsel. Direkt vid trappan ligger ett allrum som idag fungerar som walk-in closet med inbyggd förvaring. Längre in finns barnrummet med lekfullt krypin och föräldrasovrummet, som är en rofylld plats att koppla av på. En toalett kompletterar planlösningen.

Källarplanet bjuder på både funktion och komfort med en nyrenoverad badavdelning med dubbla duschar och badkar, en tvättstuga, gott om förvaring samt ett allrum som idag nyttjas som kontor.

På gården finns även en äldre garagebyggnad som inte bara erbjuder plats för bil utan också goda förrådsutrymmen, vind över hela samt en vedeldad bastu. Huset är väl omhändertaget och har genom åren försetts med bland annat bergvärme för energieffektiv uppvärmning, nytt tak och nya fönster som ger långsiktig trygghet.

Rumsbeskrivningar

Entréhall
Från den generösa altanen i västerläge välkomnas du in i en charmig entréhall med vacker pärlspont på väggarna. Här finns plats för avhängning och en trivsam första känsla av hemmet.

Matsal
I anslutning till entrén ligger den rymliga matsalen med gott om plats för många gäster runt matbordet – perfekt för både vardagsmiddagar och festliga tillfällen.

Vardagsrum
Det hemtrevliga vardagsrummet är välplanerat och har en naturlig koppling till köket. Här ryms en större soffgrupp och övrigt möblemang, vilket skapar en social och inbjudande miljö.

Kök
Ett mysigt kök med bevarade äldre luckor och stommar som förstärker husets karaktär och charm. Köket är fullt utrustat med kylskåp, inbyggd ugn, induktionshäll och integrerad diskmaskin. Intill fönstret finns en trivsam matplats för lugna frukostar och mysiga familjestunder.

Sovrum
Rakt fram från entrén ligger ett ombonat sovrum, målat i en varm gyllene grön ton. Här finns plats för säng och skrivbord samt god förvaring i garderober längs ena väggen.

Inre hall
En välkomnande hall med plats för avhängning på vänster sida. Till höger leder trappan upp till övervåningen och ner till källarplanet.

WC
I anslutning till hallen finns en WC med toalett och handfat i vit kommod. Rummet renoverades 2016 och har stilrent klinkergolv samt ljusa väggar.

Övervåning
Övervåningen nås via trappan från entréplanet och erbjuder en mer privat del av bostaden. Här finns ett flexibelt allrum som idag används som walk-in closet med praktisk, inbyggd förvaring – men som enkelt kan anpassas efter behov.

Sovrum
Till vänster ligger det större sovrummet med gott om plats för dubbelsäng och kompletterande möblemang.

WC
Praktisk WC utrustad med toalett och handfat i kommod.

Sovrum
Till höger om WC:n finns ett charmigt barnrum, målat i mjuka pasteller och med ett lekfullt krypin som uppskattas av de små.

Källare
Källarplanet kombinerar funktion och komfort. Här finns en nyrenoverad badavdelning med dubbla duschar och badkar – perfekt för den större familjen. Vidare erbjuds tvättstuga, generösa förvaringsutrymmen samt ett allrum som idag används som kontor.

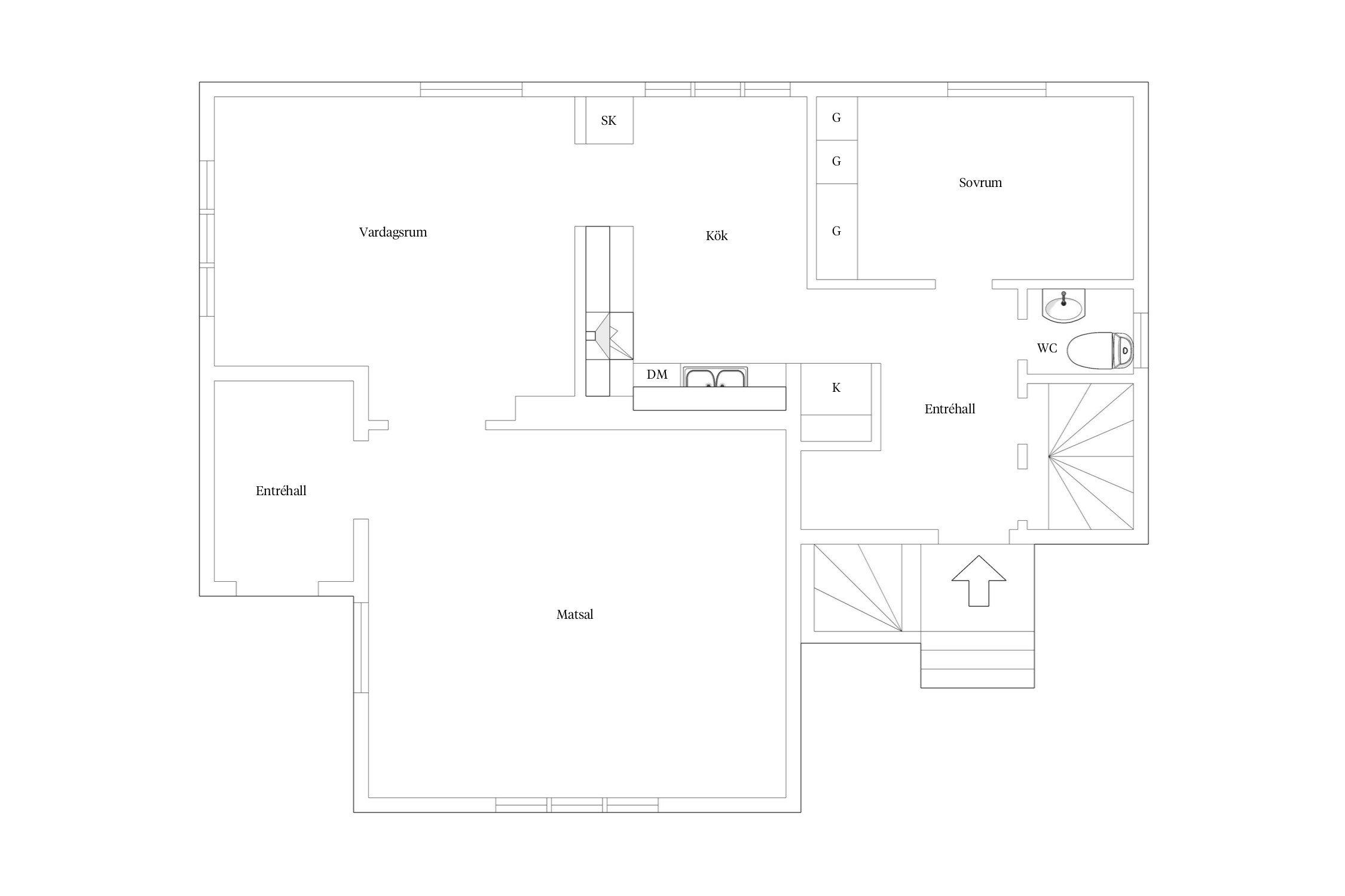
Planritning

Planlösning

Entréplan

Planlösning

Övre plan

Planlösning

Källare

Fakta om bostaden

Fastighetsbeteckning

Trönninge 10:8

Information

Typ
Friliggande villa
Upplåtelseform
Friköpt
Rum
6
Antal sovrum
3
Boarea
86 kvm*
Biarea
100 kvm
Tomtarea
1 207 kvm

*Areauppgifter enligt taxeringsinformationen

Byggnadssätt

Byggnadstyp
1 ½ plan med källare
Byggår
1911
Fasad
Stående träpanel
Grund
Källare
Stomme
Trä
Uppvärmning
Bergvärmepump via vattenburet system
Takbeklädnad
Betongpannor
Ventilation
Självdrag
Fönster
3-glas isolerfönster, 2-glas

Ombyggnad, Renoveringar

Fastigheten förvärvades 2012.
2004 lades yttertaket om med ny underlagspapp, läkt och betongpannor.
2013 installerades bergvärmepumpen.
2015 installerades en ny elcentral med jordfelsbrytare som omfattar både bostadshuset och uthuset. Samtliga eldragningar i huset byttes ut där kopplingsarbetet utfördes av behörig fackman.
2016 monterades nya isolerglasfönster på både entréplanet och övre plan. Samma år byttes toalettstolen på övre plan och i
samband med detta ersattes även toalettens vattenledning. Dessutom lades nytt parkettgolv på hela övre planet.
2018 grävdes det runt hela huset och nya dräneringsrör installerades. Marken närmast huset fylldes med makadam. Samma år drogs fiber in, en ny luft/luftvärmepump installerades i uthuset och altanen byggdes.
2019 delrenoverades köket.
2020 målades fasadpanelen. Samtidigt byttes vindskivor samt enstaka fasadpanelen och nya knutbrädor monterades.
2021 byttes avloppsstammen i källargolvet. Vid kontroll av installationen konstaterades att en mindre del av avloppsröret har
bakfall, men enligt fackman föreligger ingen risk för följdskador. I samband med renovering av badrummet i källarplanet byttes
även vattenrören.
2022 lades klinkergolv i källarens badrum.
2024 putsades alla källarväggar. Samma år flytspacklades stora delar av källarens betonggolv och nya källarfönster monterades.
2025 monterades nytt kakel i källarplanets duschplats eftersom det befintliga kaklet hade börjat släppa från underlaget. Arbetet
utfördes av fackman. Kvalitetsdokument saknas.

Övriga byggnader/utrymmen

Garagebyggnad

Besiktning

Besiktigad
Ja

Vatten/Avlopp

Kommunalt vatten, Kommunalt avlopp.

Planbestämmelser

Detaljplan (2017-03-30)

Rättigheter/gemensamhetsanläggningar

Gemensamhetsanläggning: Varberg trönninge ga:23 ändamål: Grönområden, Garage och/eller parkering, Övrigt
Samfällighet: Varberg trönninge s:21
Samfällighet: Varberg trönninge s:22

TV/bredband

Fiber

Ekonomi

Taxeringsvärde
2 525 000 kr
Byggnadsvärde
1 255 000 kr
Fastställt
2024
Kod
220, Småhusenhet, bebyggd
Fastighetsskatt/Avgift
10 425 kr

Driftskostnad (per år)

Personer i hushållet
5
Värme
27 200 kr
Försäkring
4 900 kr
Samfällighetsavgift
1 000 kr
Renhållning
5 400 kr
Vatten/Avlopp
13 700 kr
Övrigt
5 000 kr
Summa
57 200 kr
Elförbrukning
14 000 kWh/år

I kostnaden för uppvärmning ingår även kostnaden för hushållsel. Övrigt avser årskostnad för fiber.

Energideklaration

Utförd
Ja
Energiklass
E
Energideklarationsdatum
2026-01-12

Pantbrev

Det finns 14 st pantbrev uttagna om sammanlagt 2 375 000 kr

Om Trönninge

Att bo i Trönninge

Trönninge ligger precis bortom Göingegården och Lugnet, alldeles norr om Varbergs Centrum. Det ligger på cykelavstånd till Getteröns alla badplatser samt till Varbergs Centrum, där butiker, bad, strandpromenader och mycket mer erbjuds.

Från Trönninge finns smidiga pendlingsmöjligheter, både med bil och tåg. Du når E6:an på fem minuter och därifrån är du i Göteborg eller Halmstad på 45 minuter. Till Varbergs centrum är det bra bussförbindelser, Varbergs bussterminal ligger rakt över gatan från Varbergs station vilket ger effektiva transporter med kort väntan.

Inom 2 km finns de båda handelsområdena Lugnetrondellen och Lassabacka med bland annat sportbutiker, möbelaffärer, restauranger och flertalet andra större varuhus. Förskola finns på området och Trönningeskolan, som är en F-9 skola ligger i närområdet.

För den som tycker om att motionera finns åtskilliga möjligheter. I närheten finns vackra promenadstråk vid Hammers Kulle eller vid slingan i Brunnsberg för den som vill ta en stärkande löptur. För den som intresserar sig för andra sportaktiviteter finns Håstens IP:s stora fotbollsanläggning i närheten och likaså Tresteget för inomhusaktiviteter. Här finns också gott om skog och mark för friska promenader.

Köpa, sälja eller värdera bostad i Trönninge? Kontakta våra mäklare i Varberg. Passa också på att anmäla dig till vår kostnadsfria söktjänst Boagenten som hjälper dig att hitta ditt drömboende.

Karta

Trönninge byväg 11

Trönninge byväg 11

43247 Varberg

Visa i Google Maps (öppnas i nytt fönster)

Boendekalkyl

Kontakta mäklaren om du behöver hjälp att ta fram en boendekalkyl.

När du köper din bostad genom Bjurfors kan du ansöka om bolån till en förmånlig ränta hos våra banksamarbetspartners Söderberg & Partners och SEB.

Ansök om lånelöfte hos Söderberg & Partners

Ansök om lånelöfte hos SEB

Håll koll på detta objekt

Mäklare

Vill du veta mer om bostaden?

Kampanjbild Boneo

Liknande bostäder