-
Köpa
Köpa -
Sälja
Sälja - Hitta bostad
- Skapa bevakning
- Hitta mäklare
Berga, Kalmar
*I avgiften ingår värme och vatten. Utöver månadsavgiften tillkommer ett obligatoriskt tillägg om 135 kr/ månad för TV och bredband. Föreningen har individuell mätning och debitering av el, där medlemmen debiteras utefter faktisk förbrukning.
**Area enligt föreningen.
Bokad visning. Anmäl dig på Bjurfors.se eller kontakta ansvarig fastighetsmäklare.
På Förhand ligger bostäder som av olika anledningar inte är ute till försäljning just nu men som kan komma att säljas om förutsättningarna är rätt.
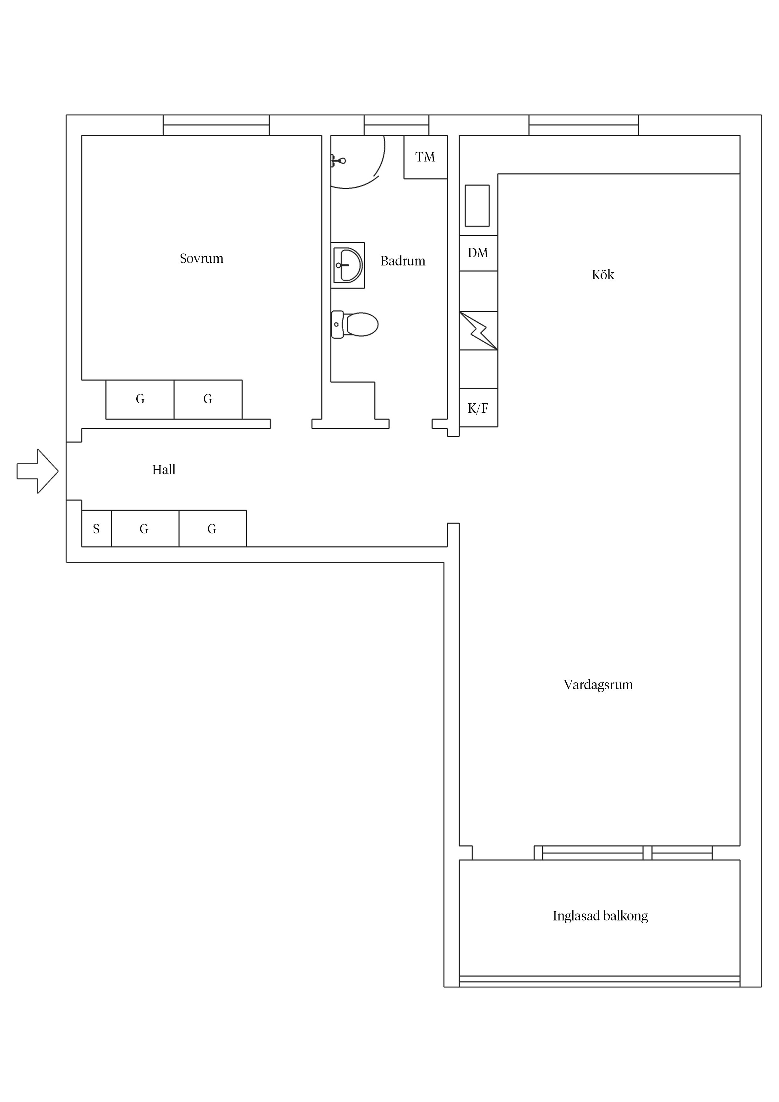
På ett trivsamt läge och i en välskött förening välkomnas du nu till Sagovägen 31. Bekvämt belägen två trappor upp möts du av denna sociala tvårummare med öppen planlösning, helt unik i sitt slag. Tillsammans med den smakfulla interiören och de enhetliga ytskikten skapas en genomgående luftig atmosfär och ett hem där du verkligen kan trivas.
Ett hem där ledorden är socialt och stilrent, där inget lämnats åt slumpen. Hjärtat av bostaden utgörs av den härliga umgängesytan, där det tidigare sovrummet har fått ge plats åt köket och som på ett vackert sätt sammanflätas med det generösa vardagsrummet. Ljusinsläppet är magiskt tack vare de tilltagna fönsterpartierna i två väderstreck som ger en rymd som är få förunnad. Via det luftiga vardagsrummet når du den inglasade balkongen som fungerar som ett extra rum under sommarhalvårets alla varma månader. Sovrummet har rofyllt intagit kökets gamla plats och erbjuder gott om utrymme för större säng samt bra förvaringsmöjligheter i garderober. Kulören på väggarna går i en behaglig grön nyans och utlovar en god natts sömn. Badrummet är stilrent helkaklat och bjuder på fint ljusinsläpp från fönster samt egna tvättmöjligheter som förenklar vardagsbestyren.
Här bor du på ett bra läge i en välskött förening med trevlig gemenskap och fina grönskande innergårdar. I närområdet finns vackra promenadstråk, ett bra serviceutbud med Berga centrum på gångavstånd, och fina cykelvägar som leder hela vägen in till centrum. Endast ett stenkast bort finns dessutom en busshållplats med goda kommunikationer.
HALL
Inbjudande och ljus hall med goda förvaringsmöjligheter i garderober.
KÖK
Stort kök med vit köksinredning och mörkt kakel ovan bänkskiva. Köket är utrustat med spis, fläkt, diskmaskin och kyl/frys. Köket går i öppen och social planlösning med vardagsrummet. Här finns också plats för större matgrupp om så önskas.
VARDAGSRUM
Luftigt och ljust vardagsrum som ger plats för större soffgrupp. Utgång till den inglasade balkongen i härligt västerläge.
SOVRUM
Direkt till vänster från hallen når du bostadens sovrum med en behaglig grön nyans på väggarna. Här ges plats för större säng samtidigt som det bjuds på goda förvaringsmöjligheter i garderober.
BADRUM
Helkaklat badrum utrustat med toalett, dusch, handfat med tillhörande kommod, spegel, handdukstork och toppmatad tvättmaskin.



*Area enligt föreningen.
I avgiften ingår värme och vatten. Utöver månadsavgiften tillkommer ett obligatoriskt tillägg om 135 kr/ månad för TV och bredband. Föreningen har individuell mätning och debitering av el, där medlemmen debiteras utefter faktisk förbrukning.
Till lägenheten hör ett källarförråd och ett matkällarförråd.
Via vardagsrummet når du den inglasade balkongen i härligt västerläge.
Garageplats finns att hyra. Till garageplatsen är det separat kö. 550 kr/månaden.
Parkeringsplats finns att hyra. Till parkeringsplatsen är det separat kö. 85 kr/månaden utan elstolpe och 135 kr/månaden med elstolpe.
Bostadsrättens indirekta nettoskuldsättning baseras på föreningens skulder/lån minus föreningens räntebärande tillgångar och likvida medel. Beräkningen är gjord och baseras enbart på den senaste tillgängliga årsredovisningen. För mer information kontakta ansvarig fastighetsmäklare.
Driftskostnaderna är beräknade enligt schablon för 1 person.
*Betalas av köpare
Riksbyggen Brf Trollet är en äkta bostadsrättsförening som äger fastigheten Trollet 1 i Kalmar kommun. På fastigheten finns 7 byggnader uppförda med 182 lägenheter. Adresserna som hör till föreningen är Sagovägen 1-41.
Hemsida: www.brftrollet.com
För vidare information gällande föreningen och dess ekonomi vänligen kontakta ordförande Catrin Qvick 073-8211348.
Fastigheterna är fullvärdesförsäkrade i Folksam.
1995-1996 - Balkonginglasning,
2006-2007 - Takrenovering.
2015-2016 - Byttes lägenhetsdörrar, balkongdörrar och postboxar ut.
2015-2016 - Fönsterbyte.
2018-2019 - Vatten/avlopp.
2019-2020 - Målningsarbeten, socklar på samtliga hus samt sophus och garage.
2020-2021 - Målningsarbeten, källare.
Pågående i föreningen är installation av solceller.
Garageplats finns att hyra. Till garageplatsen är det separat kö. 550 kr/månaden.
Parkeringsplats finns att hyra. Till parkeringsplatsen är det separat kö. 85 kr/månaden utan elstolpe och 135 kr/månaden med elstolpe.
TV via Tele2, grundutbud ingår i avgiften.
Fiberbredband via Tele2.
I föreningen finns tvättstugor, bastu, träningslokal och gästrum.
Berga är en av Kalmars största stadsdelar som erbjuder ett eget centrum. Här bor du med ett trivsamt läge, nära natursköna områden, samtidigt som du är på bekvämt avstånd in till citykärnan. I området finns grönskande promenadstråk, idrottsplatser samt goda kommunikationer i form av bra bussförbindelser och cykelvägar som tar dig hela vägen in till stan. Hansa City, med stort utbud av shopping och välsorterade livsmedelsbutiker, finns också inom bekvämt räckhåll. Dessutom finns bra förskolor och skolor på gångavstånd.
Köpa, sälja eller värdera bostad i Berga? Kontakta våra mäklare i Kalmar. Passa också på att anmäla dig till vår kostnadsfria söktjänst Boagenten som hjälper dig att hitta ditt drömboende.
Kontakta mäklaren om du behöver hjälp att ta fram en boendekalkyl.
När du köper din bostad genom Bjurfors kan du ansöka om bolån till en förmånlig ränta hos våra banksamarbetspartners Söderberg & Partners och SEB.
Bokad visning. Anmäl dig på Bjurfors.se eller kontakta ansvarig fastighetsmäklare.