-
Köpa
Köpa -
Sälja
Sälja - Hitta bostad
- Skapa bevakning
- Hitta mäklare
På ett ypperligt bra pendlingsläge finner ni detta renoverade hus med närhet till tågstationen
Hyllingelyckan, Landskrona
*Areauppgifter enligt säljarens information.
På Förhand ligger bostäder som av olika anledningar inte är ute till försäljning just nu men som kan komma att säljas om förutsättningarna är rätt.
Välkommen till Hyllingelyckan och detta fantastiska hus, här kan ni flytta rakt in och njuta av ett fräscht hus med tillhörande trädgård och garage
Nu ges det äntligen möjlighet att förvärva ett av de trevliga husen på Hyllingelyckan, njut av ett modernt renoverat hus med tillhörande trädgård i västerläge.
Ett lättskött boende där ni kan flytta rakt in, ett hus som lämpar sig ypperligt för paret som för familjen. Njut av öppna sociala ytor, lättskött trädgård, tre kvadratsmarta sovrum samt en inredd källare för extra utrymme.
Hyllingelyckan är ett barnvänligt område som ligger strategiskt placerat med närhet till allt man kan behöva. För pendlaren är läget särskilt bra då tåg och buss ligger inom kort gångavstånd. Till centrala Landskrona cyklar man på ett par minuter och Karlslunds utbud med rekreationsmöjligheter, bad mm ligger också inom kort avstånd. Nya Puls Arena där många av stadens idrottsföreningar har sin verksamhet ligger i närområdet.
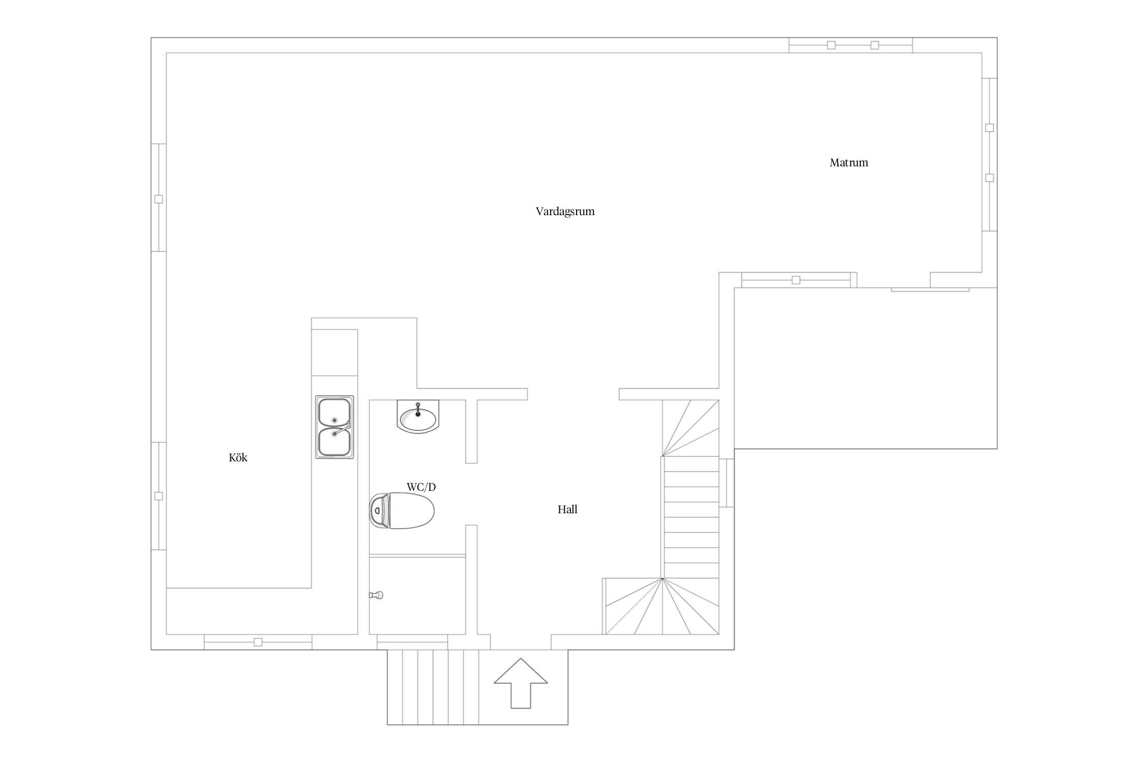
Entré
Ni välkomnas in i huset via entrén, här möts ni av en öppen hall med plats för att hänga av sig ytterkläderna. På golvet ligger det klinker.
Vardagsrum
Ett öppen planlösning mellan vardagsrum och kök. Ett luftigt vardagsrum med plats att möblera med soffgrupp, mediamöbler och matbord. I detta rum finner ni även en öppen spis med kassett. Den fina utbyggnaden ger ett underbart ljusinsläpp med alla fönster och har direkt utgång till altanen och vidare till trädgården.
Kök
Ett vitt stilrentkök med tillhörande bänkskiva i granit, inrett med: inbyggd ugn, inbyggd mikro, inbyggd kaffemaskin, spishäll, köksfläkt samt diskho. På golvet ligger det klinker.
Badrum
Helkaklat badrum som går i en vit och brun kulör, inrett med: dusch, vask med tillhörande kommod, badrumsskåp samt wc.
Vattenburen golvvärme på entréplan i hall, badrum och kök.
Övre plan
Sovrum
Övre plan är planerat med tre sovrum, plats att möblera efter tycke och smak.
Gästtoalett
Inrett med: toalett samt vask med tillhörande kommod.
Källarplan
Ett väl tilltaget allrum med plats att möblera, passar utmärkt som en mysig tv-hörna, lekrum för barn alternativt kanske som ett hemmakontor?
Tvättstuga och badrum
Helkaklat som går i en vit och blå kulör, inrett med: tvättmaskin, torktumlare, wc, duschhörna samt vask.



Flygaren 2
*Areauppgifter enligt säljarens information.
2015 - Smidesgrind+ ingång till tomt, målad fasadgrund, staket runt tomtgräns istället för häck
2016 - Totalrenovering av Dusch/WC bottenvåning
2017 - Indragen Fiber
2019/2020 - Totalrenovering av kök inkl inredning och vitvaror
2019/2020 - Totalrenovering bottenplan
2019/2020 - Totalrenovering ovanvåning
2020 - Tillbyggnad av liten Toalett/WC ovanvåning
2020 - Takrenovering med nya takpannor samt utv plåtarbete , klädd skorsten med huva
2021 - Totalrenovering av källare exklusive badrummet. Byte av golv samt nyaputsning och målning av innerväggar, belysning mm.
2024 - Ny elcentral
Tillhörande förråd och garage.
Samt vind i huset med möjlighet till förvaring.
Härlig altan intill vardagsrummet.
Kommunalt vatten, Kommunalt avlopp.
En lättskött och insynsskyddad tomt med härliga uteplatser.
Trädgården är placerad i västerläge.
Stor stenlagd biluppfart med plats för minst 3 bilar samt ett tillhörande garage.
Tomtindelning (1943-03-10) Stadsplan (1942-12-11)
Fiber / Fiber
Nuvarande ägare har förbrukat cirka 4.500 kwh/ år.
Det finns 4 st pantbrev uttagna om sammanlagt 1 600 000 kr
Landskrona är en tätort vid Öresund med utsikt över Ven och norra Själland i Danmark. En klar dag ser man tydligt Öresundsbron och Köpenhamn.
På denna vackra plats inledde nobelpristagaren Selma Lagerlöf sin författarbana. Omgivningarna kännetecknas främst av sina långgrunda sandstränder, både på Ven och fastlandet med bland annat en nyanlagd strand nära centrum. Här finns också två friluftsbad; Citadellbadet med hopptorn samt äventyrsbadet Karlslund.
Andra sevärdheter är Citadellet som är Nordens bäst bevarade fästning från 1500-talet och Landskronas slott. Citadellområdet är numera ett fantastiskt rekreationsområde mitt i staden med museiutställning, hantverksbutik, kafé och kryddgård. Här finns också Sveriges äldsta koloniområde. Landskrona har Sveriges enda golfmuseum samt två 18-hålsbanor i naturskön miljö. Stadens huvudtorg, Rådhustorget, omges av flera vackra byggnader samtida med Rådhuset från slutet av 1800-talet.
Mitt i Slottsparken, omgiven av grönska, ligger Landskronas konsthall som byggdes 1963. Hallen byggdes till stadens 550-årsjubileum och är ritad av Sten Samuelsson och Fritz Jaenecke. I konsthallens atriumgård finns en japansk trädgård skapad av Ulla Mohlin 1989. Inredningen i caféet är precis som mycket i byggnaden, intakt från 1963.
På Järnvägsgatan i centrum finner du Sveriges enda Walk of Fame, med en minnestavla över hedersmedaljörer som har förärats personer som har gjort stora insatser för Landskrona. Utöver denna finns ett antal minnesstenar med berömda personer som har verkar här, har bott eller gynnat staden. Exempel på dessa är Erik av Pommern, Tycho Brahe, Selma Lagerlöf och Siw Malmkvist.
En av godbitarna med att bo i Landskrona är närheten till Ven. På en halvtimme befinner du dig på denna underbara ö som ligger mitt i Öresund, mellan Landskrona och norra Själland i Danmark. Här kan du hyra cykel, trampa runt i den pittoreska miljön, se på konst och njuta av god mat. På Ven finns flera boendealternativ för en längre semestervistelse eller en weekend. Väl värt ett besök är också Tycho Brahemuséet som ligger på Ven, där Tycho Brahe byggde en av tidens främsta vetenskapliga institutioner på 1500-talet.
Vill du köpa, sälja eller värdera bostad i Landskrona kommun? Kontakta Bjurfors mäklare i Landskrona! Passa också på att anmäla dig till vår kostnadsfria söktjänst Boagenten som hjälper dig att hitta ditt drömboende.
Kontakta mäklaren om du behöver hjälp att ta fram en boendekalkyl.
När du köper din bostad genom Bjurfors kan du ansöka om bolån till en förmånlig ränta hos våra banksamarbetspartners Söderberg & Partners och SEB.
Ansvarig mäklare