-
Köpa
Köpa -
Sälja
Sälja - Hitta bostad
- Skapa bevakning
- Hitta mäklare
Fint skick på optimal adress på Kungagatorna
Lund - Centrum, Lund
*I avgiften ingår värme, vatten, kabel-TV och bredband 1000/1000. Föreningen har gemensam el med individuell mätning och debitering, elförbrukning tillkommer på avgiftsavin och debiteras kvartalsvis
**Areauppgifter enligt föreningen
På Förhand ligger bostäder som av olika anledningar inte är ute till försäljning just nu men som kan komma att säljas om förutsättningarna är rätt.
Renoverad lägenhet på bästa adress i välskött förening på lugn sidogata.
På oslagbart läge i anrikt gammalt kvarter finner du Kungagatorna i Lund och därmed även Erik Dahlbergsgatan. Bakom vacker fasad gömmer sig denna trevliga och renoverade lägenhet.
Lägenheten ligger på en lugn sidogata där folk endast passerar om man bor på gatan.
Planlösningen är optimal med välplanerade kvadratmetrar och bra ytor. Här är det bara att flytta rakt in, allt är stilrent och professionellt renoverat 2017.
Kvarteret Erik Dahlberg växte fram under slutet av tjugotalet och ligger med promenadavstånd till järnvägsstationen, stadskärnan och Universitetet. Utmärkt läge för den som pendlar. Här bor du med butiker, restauranger och citys hela utbud utanför porten. Innanför porten känns dock stadspulsen långt borta. Här bor den kräsne som vill ha nära till allt men som tycker om att njuta av det stilla lugnet ibland.
Välskött bostadsrättsförening med en skuldsättning om endast 2299 kr/lån/kvm (2024 Årsredovisning).
Brf Solvallen är en gammal förening med låga månadsavgifter och underbart grönskande innergård med utmärkt solläge. Från trapphuset nås gemensamma balkonger i åtråvärda väster och med fin utsikt, som de boende kan nyttja. På Erik Dahlbergsgatan bor du på optimalt läge, på lugn gata med 5 minuters gångavstånd till såväl Centralstationen som stadens utbud av shopping, restauranger, mataffär med mera. Kvarteret utgörs av vackra ståtliga fasader och kullerstensgator som skvallrar om en svunnen tid. Varmt välkommen på visning!
Välkommen till ett underbart boende!
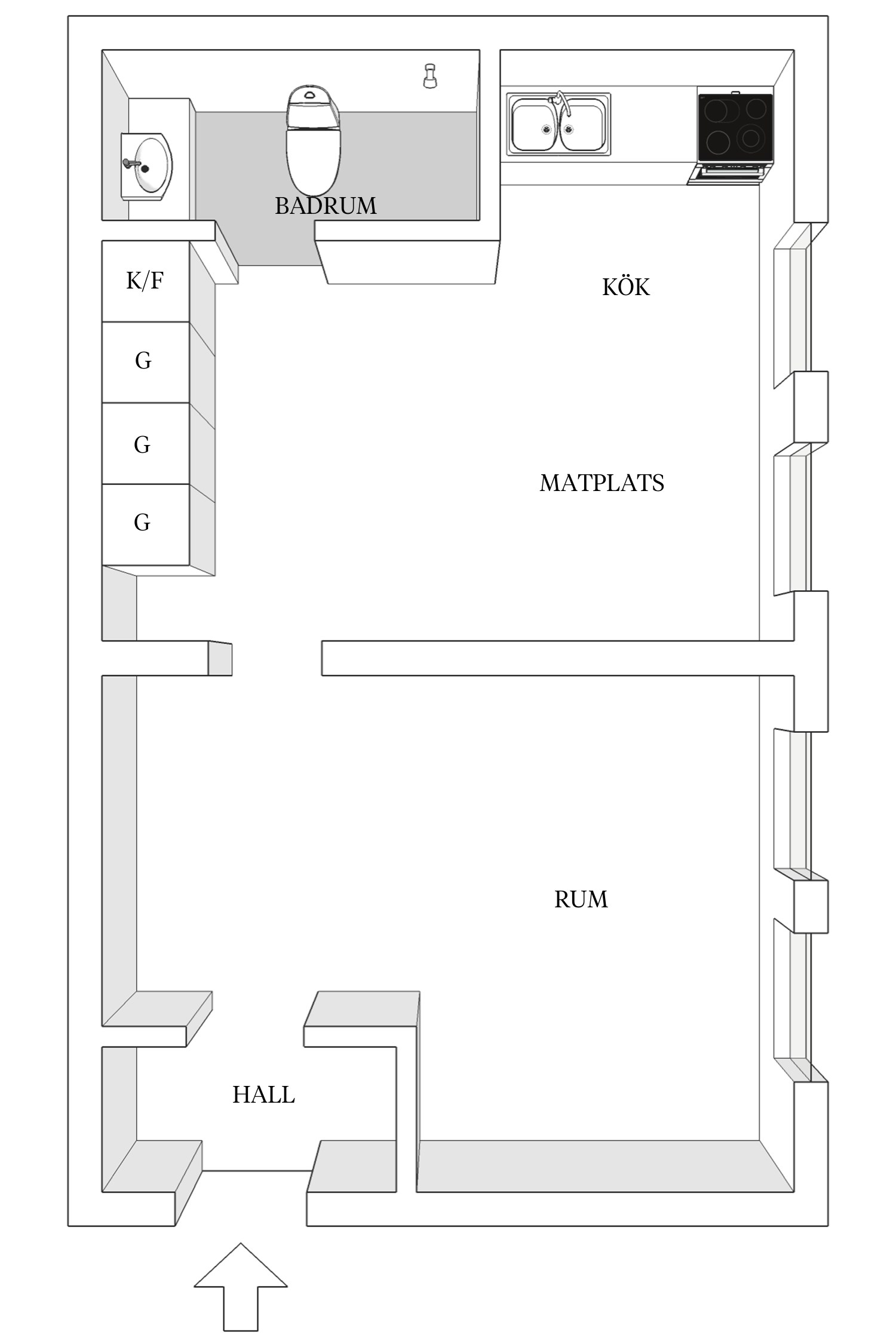
Hall
På golvet ligger fint vitlaserat ekparkettgolv.
Kök
Stilrent renoverat kök (2017) med vita luckor i kombination med ljusgrå kakel ovan bänkskiva svart laminat som bryter av snyggt mot det vita. Bra skåpsförvaring och goda arbetsytor. Plats för matbord till 4-6 personer.
På golvet ligger vitlaserat ekparkettgolv. Fönster mot Erik Dahlbergsgatan. Här finns även en garderobsvägg.
Utrustning kök Bosch (2017): Kyl/frys, induktionshäll, ugn, kolfilterfläkt och diskmaskin.
Badrum 2017
Fräscht helkaklat badrum med stora ytor. Vitt kakel tillsammans med ljusgrå klinker skapar en fräsch tidlös känsla. Utrustning badrum: Wc, spegel, handfat med förvaring och dusch.
Allrum
Trivsamt rum med plats för soffgrupp, säng och skrivbord för den som vill. Fönster mot Erik Dahlbergsgatan. På golvet ligger vitlaserat ekparkettgolv.
Övrigt
Målning av bostaden 2025.
Diskmaskin 2023.
Totalrenoverad 2017.



*Våningsplan 1 av 5
**Areauppgifter enligt föreningen
I avgiften ingår värme, vatten, kabel-TV och bredband 1000/1000. Föreningen har gemensam el med individuell mätning och debitering, elförbrukning tillkommer på avgiftsavin och debiteras kvartalsvis
Till bostaden hör ett förråd.
Bostadsrättens indirekta nettoskuldsättning baseras på föreningens skulder/lån minus föreningens räntebärande tillgångar och likvida medel. Beräkningen är gjord och baseras enbart på den senaste tillgängliga årsredovisningen. För mer information kontakta ansvarig fastighetsmäklare.
*Betalas av köpare
I föreningen finns 18 stycken lägenheter, varav 4 st 1 rok, 4 st 2 rok, 7 st 3 rok, 1 st 4 rok, 1 st 5 rok samt en lokal.
Föreningen har 2 gemensamma städdagar per år.
Varje medlem har också en mindre ansvarsuppgift, tex att byta glödlampa i trappuppgång, etc.
Rullande schema för att dra ut sopkärl till gatan, samt snöröjning/gräsklippning och trappstädning. Ca 2 tillfällen per år/medlem; varje medlem ansvarar för detta under två veckor per tillfälle (en trappstädning per tvåveckorsperiod).
I dagsläget finns inga beslutade avgiftsförändringar. Med tanke på en del kommande utgifter så är en gissning att nästa höjning innebär minst 3% enligt styrelsen (kontrollerat 2025-11-05).
Föreningen höjde avgiften med 3 % från och med 2025-02-01.
och innan dess med 9% 2024-02-01.
Föreningen har precis infört gemensam el med individuell mätning och debitering och ens egna förbrukning tillkommer på avgiftsavin kvartalsvis. Den boende inte behöver teckna något elavtal själv vilket leder till mycket lägre elkostnader för varje medlem.
Ekonomisk förvaltning via SBC.
Fastigheten är fullvärdesförsäkradi Länsförsäkringar där det ingår bostadsrättstillägg för föreningens lägenheter.
Utförda renoveringar:
2024 Renovering av balkongdörrar och fönster. Fasaden sågs över på insidan och lagat partier. Utsidan kommer antagligen behöva en översyn inom några år men det är inte aktuellt med en total omfogning
2023 Målning av fönster mot innergård. Reparation av fasad mot innergård. Ny ramp till trappa 3AByte till IMD-el (gemensam el)
2022 Trappan på gården är renoverad, renovering av brunnarna på gården
2022 Byte av torkskåp
2020 Byte av torktumlare
2019 Byte av tvättmaskin
2018 Inköp och uppsättning av postboxar
2017 Dränering vid fasad mot Erik Dahlbergsgatan
2017 Åtgärder i samband med vattenskada i bottenplan
2016 Stensättning, grus och skjul för soptunnor
2016 Inköp av torkskåp
2016 Ommålning av fönster
2015 Plåtar på tak utbytta
2012 En av tvättmaskinerna byttes ut
2011 Asken på gården beskars
2010 Portarna mot gatan renoverades, inkl byte av lås
2009 Relining av avloppsstammar
2009 Byte av tappvattenstammar
2009 Undercentral för fjärrvärme
2005 Målning av fönster
2005 El i trapphus och på vind
2003 Målning av trappuppgång
1991 Renovering av tak
Planerat underhåll (kontrollerat2025-11-05):
Just nu pågår en åtgärd av ett slukhål på framsidan. Fönster mot gatan kommer att målas om till våren.
Föreningen följer en underhållsplan som upprättades 2020 och sträcker sig fram till 2030. Underhållsplanen uppdaterades 2024.
Möjlighet till kommunal boendeparkering på gatan.
TV via Tele2. Basutbudet ingår i månadsavgiften. Bredband via fiber Bahnhof 1000 Mbit ingår i månadsavgiften.
Fin grönskande innergård som är en del av en stor innergård kring Kungagatorna. Här har bostadsrättsföreningen flera gemensamma sittmöblemang, grill, gräsmatta, sandlåda, en liten lekstuga och gungor.
Föreningens tvättstuga är belägen på vinden och här finns även en stor torkvind. Tvättstugan är utrustad med två tvättmaskiner och en torktumlare och ett torkskåp. Cykelförråd finns på entréplan.
Föreningen önskar tillsyn vid ägarbyte. Säljaren får gärna kontakta styrelsen efter kontrakt för att boka in detta.
Information som berör föreningen är inhämtad via årsredovisning, stadgar och kontakt med föreningen. Avvikelser kan förekomma och som köpare uppmanas du att själv kontrollera samtliga uppgifter, framförallt om något är av extra stor betydelse för dig som köpare.
I Lund kopplas historia och framtid samman i mötet mellan det gamla och det nya. Centrala Lund är en gemytlig kullerstensstad med den lilla stadens charm och samtidigt storstadens hela utbud. I Lunds centrum är det lättare att gå eller cykla än att köra bil vilket bidrar till ett lugnt och skönt tempo i stadskärnan.
Lund avgränsas idag av området där den medeltida muren en gång stod. Lund är en stad med anor och det märks främst i gatunätet som på sina ställen sett likadant ut i århundraden. De små sidogatorna, husen med klätterrosor och vackra detaljer bidrar till stadens unika charm. Södra Esplanaden, Gyllenkroks allé, Svanegatan, Bangatan, Biskopsgatan och Östra Vallgatan ringar in de mest centrala delarna. Här består bebyggelsen framförallt av flerfamiljshus men också av gatuhus. Bakom flera av dessa finns de fantastiskt vackra innergårdar som Lund är känt för.
I öster finns Professorstaden som är ett populärt bostadsområde med sina ståtliga och påkostade villor. Geografiskt begränsas området av Tornavägen i öster, Dalbyvägen i söder, Östra Vallgatan och Biskopsgatan i väster samt Sölvegatan i norr. Här finns även idrottsanläggningen Gerdahallen med ett av Nordens största gym. Området Nöden erbjuder småskalig bebyggelse och mysiga gränder.
Lund är kaféernas stad och runt dess torg umgås man gärna över en kopp kaffe och något gott att äta. Vid Stortorget ligger internationellt uppmärksammade Stadshallen som varje år besöks av studenter från hela världen. Här kan du lyssna till konserter och föreläsningar, delta i seminarier eller besöka spännande utställningar. Saluhallen vid Mårtenstorget är ett stycke kulturhistoria och byggnaden ligger Lundaborna varmt om hjärtat.
Större delen centrum är bilfritt, så inne i Lund cyklar eller går man. Centralstationen är en viktig pulsåder för stadskärnan, då många av Lunds invånare pendlar via tåg eller buss. Staden Lund präglas av grönområden och förutom Lundagård är till exempel Botaniska Trädgården och Stadsparken populära platser för avkoppling och rekreation.
I Lund finns mycket att upptäcka för den arkitekturintresserade. Lunds Domkyrka som invigdes i mitten av 1100-talet är den förnämsta romanska domen i Norden. Nordost om Domkyrkan ligger Kulturkvadranten som härstammar från 900-talets slut och är ett av Lunds bäst bevarade medeltida områden. Här ligger flera av universitetets institutioner samt friluftsmuseet Kulturen.
Vill du köpa, sälja eller värdera bostad i Lunds centrum? Kontakta våra mäklare i Lund! Passa också på att anmäla dig till vår kostnadsfria söktjänst Boagenten som hjälper dig att hitta ditt drömboende.
Kontakta mäklaren om du behöver hjälp att ta fram en boendekalkyl.
När du köper din bostad genom Bjurfors kan du ansöka om bolån till en förmånlig ränta hos vår samarbetspartner SEB.
Ansvarig mäklare