-
Köpa
Köpa -
Sälja
Sälja - Hitta bostad
- Skapa bevakning
- Hitta mäklare
Varmt välkomna till denna välplanerade 3a med uteplats och härliga sociala ytor!
Norra Fäladen, Lund
*I avgiften ingår värme, vatten, kabel-tv, bredband och bostadsrättstillägg till föreningens försäkring. En obligatorisk schablonavgift för el tillkommer om 350kr /månaden. Kostnaden justeras efterhand efter faktisk förbrukning.
**Areauppgift enligt bostadsrättsföreningen
Bokad visning.
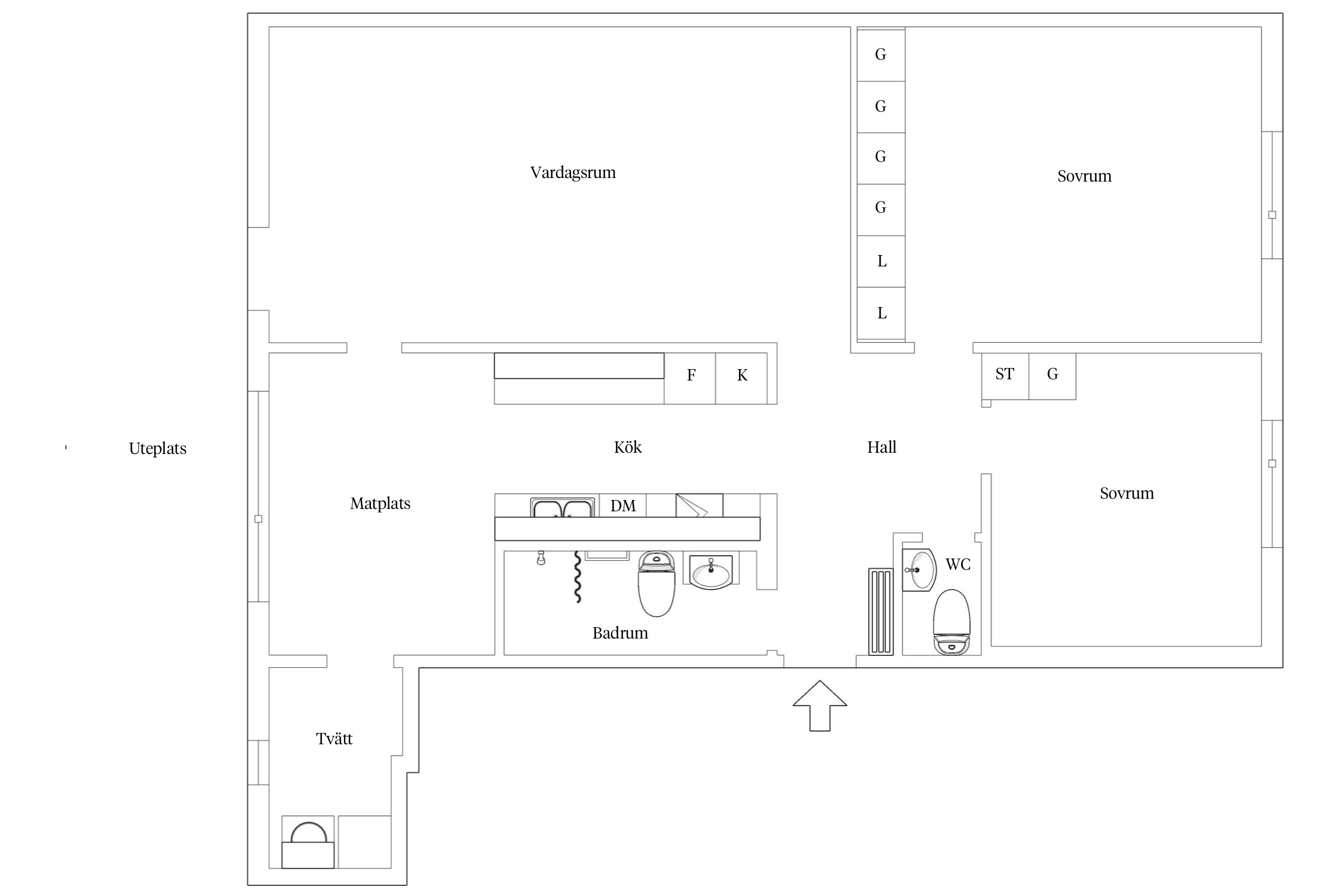
Välkommen till denna rymliga och välplanerade 3:a om hela 89 kvm i markplan, ett hem som kombinerar funktionalitet med trivsam atmosfär.
Bostaden erbjuder en genomtänkt planlösning där den generösa hallen smidigt fördelar bostadens alla rum. Genomgående parkettgolv i hall, vardagsrum och sovrum skapar en enhetlig och stilren känsla. Det stora vardagsrummet bjuder på härliga sällskapsytor och ett fantastiskt ljusinsläpp tack vare de stora fönsterpartierna. Här finns gott om plats för både soffgrupp och matsalsdel, perfekt för både vardag och sociala tillställningar.
Köket är praktiskt utformat med vita skåpsluckor och generösa arbetsytor, utrustat med spis, ugn, diskmaskin samt kyl och frys. Bostaden erbjuder även en mindre tvättstuga, allt för en smidig vardag.
Bostaden rymmer två sovrum, där det stora master bedroom imponerar med sin rymd och sina många garderober som erbjuder utmärkta förvaringsmöjligheter. Från bostaden nås uteplatsen i soligt söderläge, omgiven av uppväxt grönska som skapar en rofylld miljö, en perfekt plats för avkoppling eller trevliga stunder utomhus.
Här bor du bekvämt i markplan med generösa ytor, fint ljusinsläpp och en planlösning som verkligen fungerar, ett hem att trivas i länge.
Fredslyckan ligger på fördelaktigt läge med närhet till LTH, Ekonomihögskolan, Universitetet, Sjukhuset, Ideon, MAX IV samt Lunds absoluta centrum. När vädret visar sig från sina sämre sidor har du möjlighet att ta såväl stadsbuss som regionbuss som stannar alldeles i närheten. Ett stenkast bort ligger Fäladstorget med hela dess utbud av mataffär (en prisbelönt och välsorterad ICA-butik), vårdcentral, tandläkare, kemtvätt, apotek och restaurang. Även ett bibliotek finns på andra sidan vägen. För den sportintresserade och hälsomedvetna finns dessutom både ett par gym och badhus inom bekvämt gångavstånd. Du bor även med närhet till grönskande S:t Hans backar med sina kullar, dalar och stora grönytor. Här bjuds möjlighet till frisbeegolf, motionsslingor och Lunds bästa pulkabackar på vintern! Nedanför backarna ligger S:t Hans gården med sina charmiga djur. Norr om Fredslyckan finns ängar med mysiga promenadstråk och en damm.
Hör av dig vid intresse!



*Areauppgift enligt bostadsrättsföreningen
I avgiften ingår värme, vatten, kabel-tv, bredband och bostadsrättstillägg till föreningens försäkring.
En obligatorisk schablonavgift för el tillkommer om 350kr /månaden. Kostnaden justeras efterhand efter faktisk förbrukning.
2020 ny toalett.
2022 ny kyl och frys
2024 ny stenläggning uteplats
2026 ny spis
Parkering Ägs av Fäladens parkering AB och ansökan skickas till parkering@faladensparkering.se eller tel 073 518 07 75.
TV: TV via Sydantenn ingår i avgiften. Internet: Bredband 300 Mbit via Sydantenn ingår i avgiften.
Bostadsrättens indirekta nettoskuldsättning baseras på föreningens skulder/lån minus föreningens räntebärande tillgångar och likvida medel. Beräkningen är gjord och baseras enbart på den senaste tillgängliga årsredovisningen. För mer information kontakta ansvarig fastighetsmäklare.
*Betalas av köpare
Föreningen bildades 2007. Den ekonomiska förvaltningen sköts av Nabo. Föreningen upplåter 66 lägenheter med bostadsrätt och är en sk. äkta bostadsrättsförening.
Medlemskap
Föreningen godkänner delat ägande mellan t.ex. barn och förälder. Föreningen anser att den boende bör äga 25%
Föreningen accepterar inte juridiska personer som medlemmar.
Gemensamt elavtal
Föreningen har gemensamt elavtal med individuell mätning och debitering. En obligatorisk schablonavgift för el tillkommer på månadsavgiften. En gång om året mäts el för faktisk förbrukning, därefter debiteras eller krediteras bostadsrättshavaren beroende på om man överstigit eller understigit schablonavgiften. Förbrukningen läses av i slutet av november och justeras normalt på avgiften för februari eller mars.
Föreningen har inga planerade avgiftshöjningar men man följer kostnadsutvecklingen. Kontrollerat (2026-03-19)
I föreningens försäkring ingår kollektivt bostadsrättstillägg för lägenheterna.
Utförda renoveringar:
2021 Fasaderna har blivit GrönFri-behandlade för att få bort rödalger
2021 Byte av förrådsdörrar
2021 OVK, obligatorisk ventilationskontroll
2022 Föreningen har uppdaterat till LED-belysning i alla allmänna utrymmen
2023 Fasadrenovering
2023 Radonmätning
2023 Energideklaration utförd
Kommande renoveringar (kontrollerat 2026-03-19):
Inga planerade renoveringar i dagsläget.
I övrigt planeras löpande underhållsarbete.
Finns parkering som ägs av Fäladens parkering AB och ansökan skickas till parkering@faladensparkering.se eller tel 073 518 07 75.
I dagsläget finns det lediga parkeringsplatser och en parkeringsplats kostar 588 kr. (kontrollerat 2026-05-13).
TV och bredband 300 Mbit via Sydantenn ingår i avgiften.
Föreningen har en gemensam innergård där det finns bland annat grill- och lekplats.
Det finns cykelställ under tak vid port 51-53 och öppna cykelställ utanför port 49.
Information om föreningen har inhämtats genom årsredovisningen och kontrollerats med representant från föreningen. Slutgiltig köpare uppmanas att kontakta representant från föreningen för att stämma av ovanstående information.
I Norra Lund är närheten till naturen i kombination med spännande arkitektur högst bidragande till områdets popularitet. Här finner du varierande bebyggelse där alla hus har sin egen identitet.
I Norra Lund är närheten till naturen i kombination med spännande arkitektur högst bidragande till områdets popularitet.
I stadsdelen Norra Fäladen i Lund ligger bostadsområdet Annehem, ett av stadens nyare områden som växer snabbt. Det är ett renodlat villaområde där den äldre delen mestadels består av trähusbebyggelse, vilket är ganska unikt för Lund. Området, som tidigare främst var för arbetarebostäder, har på senare tid blivit väldigt populärt bland akademiker. I Annehem har du alltid nära till naturen och till rekreationsområdet Sankt Hans backar.
I trakten ligger även Kungsmarken, det enda sammanhängande området i södra Sverige där markanvändningen varit oförändrad under tusentals år. Här finns ett naturreservat med minnen från forna tiders jordbruk. Till största delen består det av en golfbana kombinerat med övrig öppen mark, utom den norra delen som täcks av lövskog. Här har man hittat lämningar från tidig järnålder och här finns också flera olika fågelarter och växter som lever i symbios på slätten.
Norra Fäladen, strax norr om trafikleden Norra ringen, byggdes till stor del i slutet av 1960-talet. Här bor en stor andel av studenterna vid Lunds universitet i bostadsområdena Delphi, Kämnärsrätten och Klosterängen. Det är i den västra delen av området man finner Sankt Hans backar. Högstadieskolan Fäladsgården har genom sin arkitektur och sina verksamheter gjort området till något unikt. I mitten av området ligger Fäladstorget med bland annat matbutiker och Sankt Hans kyrka.
Det färgstarka området fredslyckan är även det ett mycket populärt område. Här bor du nära såväl vacker natur och grönska som stadsliv och all vardagsservice du kan behöva. Hela området byggdes utifrån tankar på såväl variation som helhet, vilket du kan se på områdets unika karaktär och tidlösa arkitektur.
Vill du köpa, sälja eller värdera bostad på Norra Fäladen? Kontakta Bjurfors mäklare i Lund! Passa också på att anmäla dig till vår kostnadsfria söktjänst Boagenten som hjälper dig att hitta ditt drömboende.
Kontakta mäklaren om du behöver hjälp att ta fram en boendekalkyl.
När du köper din bostad genom Bjurfors kan du ansöka om bolån till en förmånlig ränta hos våra banksamarbetspartners Söderberg & Partners och SEB.
Bokad visning.
Ansvarig mäklare