-
Köpa
Köpa -
Sälja
Sälja - Hitta bostad
- Skapa bevakning
- Hitta mäklare
Sekelskifte ett stenkast från både Slottsparken och city
Gamla Väster, Malmö
*I avgiften ingår värme, vatten, kabel-tv och bostadsrättstillägg. Obligatoriskt tillägg tillkommer om 165 kr/mån avseende bredband.
**Areauppgifter enligt bostadsrättsförening
Bokad visning.
Renoverad trerummare på Gamla Väster med en fin kombination av moderna inslag och bevarade tjugotalsdetaljer.
Med en inramning av gatsten och stockrosklädda murar, inte långt från slottsparken grönskande skrud, reser sig det putsade huset från sent 1920-tal. Lägenheten på 74 välplanerade kvadrat nås via innergården. Dekorativa original takrosetter, höga fotlister, spegeldörrar, listverk och dörrvalv representerar svunna tiders skönhet. Enhetliga trägolv, harmoniska färgnyanser och stilren interiör i kök och badrum ligger som en vilande grund från moderna tid. Lägenheten som totalrenoverades 2022 är placerad på den lugna innergården.
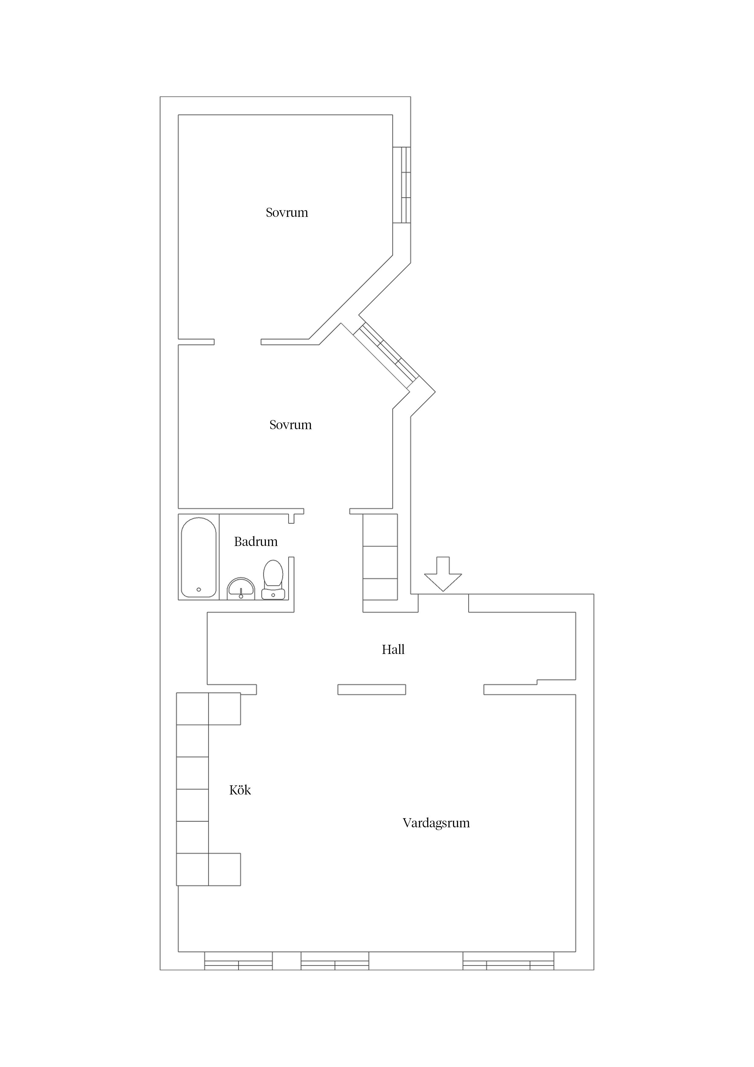
Planlösningen följer vår samtid med öppen planlösning mellan kök och sällskapsrum som en social enhet. Här ryms både en soffgrupp och en matplats gott och väl, utöver köksdelen. I andra delen av lägenheten finns två sovrum i anslutning till varandra. Badrummet är placerat vid hallen som bildar en skiljelinje mellan sovrummen och sällskapsavdelningen. I hallen finns både en praktisk nisch för ytterplagg och en för en arbetshörna.
På Gamla Väster bor du mitt i innersta centrum men samtidigt lugnt och fridfullt placerat bland charmiga hus från förr, pittoreska gränder och parkernas grönska. Folkliv och puls finns utanför porten och stillsamheten inne i lägenheten. Du väljer själv tempot!
ENTRÉHALL
Ljus och fin hall med ljust gråmålade väggar och brädgolv som ramas in av höga fotlister. Här finns en praktisk nisch för ytterplagg och skor i ena sidan och en som rymmer ett skrivbord – perfekt för hemmakontoret.
SÄLLSKAPSRUM & KÖK
En härligt öppen och social enhet som förenar kök, vardagsrum och matplats i ett. Gott om ljus kommer från fönsterrader med djupa fönsternischer. Ingången mellan detta rum och hallen har en tidstypisk välvning. Även här återkommer de ljusgråa väggarna och genomgående bortstat ekgolv utan trösklar som lades in 2022. Bevarade utsmyckningar från förr i form av listverk, original takrosett, stuckaturer och höga fotlister pryder rummet. Köksdelen är ett smakfullt inslag i rummet med sin tidlösa interiör i samma gråa ton som väggarna. Platsbyggd kök. Luckorna är släta och bär svarta beslag. Bänkskivan som löper både längs med arbetsstationen och den utskjutande köksön är av gediget trä som matchar golvet.
BADRUM
Klassiskt kaklat badrum i svart och vitt med badkar, spegelskåp, handfat och wc. Renoverades 2019 i föreningens regi.
SOVRUM 1 & 2
Två ljusa och luftiga sovrum med fina detaljer från förr; stuckaturer, höga fotlister och spegeldörrar. Här återkommer brädgolvet som är genomgående för alla rum och väggarna är strukna i vitt. Garderober finns i båda rummen.



Generalens Hage 19
*Areauppgifter enligt bostadsrättsförening
I avgiften ingår värme, vatten, kabel-tv och bostadsrättstillägg. Obligatoriskt tillägg tillkommer om 165 kr/mån avseende bredband.
Till lägenheten hör ett källarförråd.
Bostadsrättens indirekta nettoskuldsättning baseras på föreningens skulder/lån minus föreningens räntebärande tillgångar och likvida medel. Beräkningen är gjord och baseras enbart på den senaste tillgängliga årsredovisningen. För mer information kontakta ansvarig fastighetsmäklare.
*Betalas av köpare
Brf Generalens Hage 19. Föreningen är en äkta bostadsrättsförening. I föreningen finns 32 lägenheter, varav 3 upplåts med hyresrätt. De adresser som hör till föreningen är Grynbodgatan 15A-E. Föreningen köpte fastigheten 2021.
PHM Redovisning AB har biträtt styrelsen med föreningens ekonomiska förvaltning.
Föreningen gjorde en höjning av avgiften på 4% 2026-01-01.
Fastigheten är fullvärdesförsäkrad hos Länsförsäkringar Skåne.
I försäkringen ingår ansvarsförsäkring för styrelsen samt kollektivt bostadsrättstillägg för medlemmarna.
2005 Byte av takpapp utfördes.
2012 Dränering mot gata och motsatt sida gård utfördes.
2015 Renovering av fasad mot gata utfördes.
2018 OVK-besiktning utfördes.
2021 Utfördes installation av friskluftsventiler.
2021-2022 Relining av avloppsstammarna.
2022 Ny fjärrvärmecentral
Föreningen har inga parkeringsplatser eller garage.
Boendeparkering finns i området och sköts av Malmö stad, för mer information besök Malmö Stads hemsida www.malmo.se.
Kabel-tv och bredband är via Telenor. Kabel-tv ingår i avgiften och bredband tillkommer som ett obligatoriskt tillägg på avgiften.
Föreningen har en fin innergård med sitt- och grillmöjligheter för medlemmarna.
Föreningen har en gemensam tvättstuga i källaren med 2 tvättmaskiner, 1 torktumlare, 1 torkskåp, 1 torkrum och 1 mangel.
Miljöstation på innergården.
Källarförråd finns.
Information som berör föreningen är inhämtad via årsredovisning, stadgar och kontakt med föreningen. Avvikelser kan förekomma och som köpare uppmanas du att själv kontrollera samtliga uppgifter, framförallt om något är av extra stor betydelse för dig som köpare.
På Gamla Väster blandas nutid med dåtid. Rader av charmiga låghus i pastellkulörer och imponerande byggnader från svunnen tid, länkas samman med kullerstensgränder och öppna torg. Detta är en välbevarad skatt mitt inne i centrala Malmö. På Gamla Väster är kvarteren fyllda med ständigt liv, av rörelse och möten.
Gamla Väster, som ramas in av Norra Vallgatans kanal och Gamla Kyrkogården i söder, utmärker sig genom att vara en del av centrala Malmö som ”räddades” undan 1970-talets rivningsboom. Då var det en sliten och nedgången miljö men kulturaktivister och Malmö Museum protesterade högljutt mot planerna som lades ner till glädje för alla. Idag, efter omfattande restaureringar, finns här stadens mest eftertraktade boenden.
Många av byggnaderna i de gamla kvarteren är privatägda flerbostadshus och vissa av dessa har varit hem för både herrefolk och arbetare ända sedan 1300-talet. Men i området finns även kontorslokaler, restauranger, affärer och hotell i byggnader från olika epoker. Antalet konstgallerier och designbutiker är särskilt stort. De passar väl in då husen ofta är originella och på sitt sätt förhöjer exponeringen av verken och därmed upplevelsen. Ett exempel är Föreningen Svensk Form Syd som med uppdrag från regeringen, visar utställningar inom nutida design och arkitektur i Hedmanska gården som uppfördes år 1597.
Stortorget och Lilla Torg ligger intill varandra men är av helt olika karaktär. Lilla Torg har under åren vuxit fram som en kafé- och restaurangtät samlingsplats för Malmöbor och besökare. Stortorget definieras främst av intressanta byggnader från skilda epoker och ger i likhet med närliggande Gustaf Adolfs Torg en lugnare miljö. På ”Gustav” som det kallas finns sittbänkar och fontäner omringade av lummig grönska.
I anslutning till Gamla Väster invid Centralstationen har ett spännande stadskvarter vuxit fram under de senaste åren. Tanken var att skapa en mötesplats för allmänheten och 2015 invigdes Malmö Live som är ett hus för musik, nöjesliv och kultur. I kvarteret finns också kongresshall, hotell och restauranger.
Vill du köpa, sälja eller värdera bostad på Gamla Väster? Kontakta Bjurfors mäklare på Malmö Väster! Passa också på att anmäla dig till vår kostnadsfria söktjänst Boagenten som hjälper dig att hitta ditt drömboende.
Kontakta mäklaren om du behöver hjälp att ta fram en boendekalkyl.
När du köper din bostad genom Bjurfors kan du ansöka om bolån till en förmånlig ränta hos våra banksamarbetspartners Söderberg & Partners och SEB.
Bokad visning.