-
Köpa
Köpa -
Sälja
Sälja - Hitta bostad
- Skapa bevakning
- Hitta mäklare
Radhus i eftersökt kvarter!
Gullvik, Malmö
*Areauppgifter enligt taxeringsinformationen
På Förhand ligger bostäder som av olika anledningar inte är ute till försäljning just nu men som kan komma att säljas om förutsättningarna är rätt.
Kontakta mäklaren för mer information gällande budgivningen.
Perfekt familjehem med flexibilitet och bekvämt läge
Välkommen till Östra Hindbyvägen 211!
Här erbjuds ett välplanerat radhus i mycket gott skick med uteplatser på båda sidor av huset, ett stort och generöst kök samt två badrum – ett på varje våningsplan. Entréplanet välkomnar med en rymlig hall och sociala ytor i form av ett luftigt vardagsrum, två uteplatser i olika väderstreck samt ett praktiskt och väl tilltaget kök. I anslutning till köket finns en tvättstuga med goda förvaringsmöjligheter, och från hallen nås det helkaklade badrummet med dusch.
På ovanvåningen finns idag två rymliga sovrum samt ett badrum. För den som har behov av fler rum finns goda möjligheter att enkelt skapa 3–4 sovrum genom att sätta upp ytterligare väggar.
Bostaden har friköpt tomt, tillhörande parkering, externt förråd och fiber via samfälligheten.
Välkommen till Gullvik – ett lugnt och barnvänligt område som passar perfekt för familjen. Här bor du med närhet till matbutiker, flera skolor, goda kommunikationer och grönområden. Med bil når du enkelt ringvägen.
Varmt välkommen på visning!
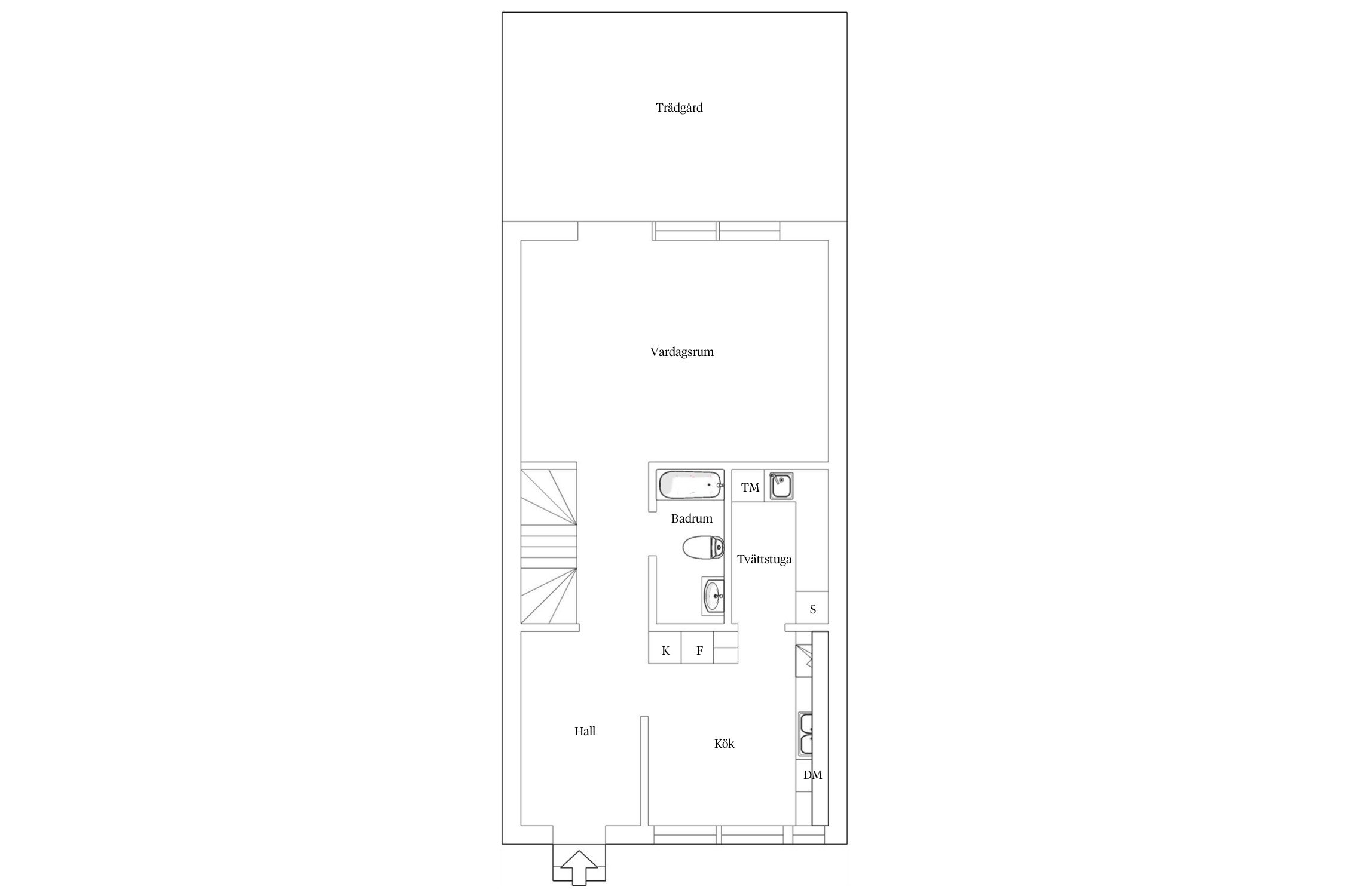
Éntreplan
Hall
Rymlig hall med parkettgolv och gott om plats för avhängning. Här finns det även förvaring i form av stor garderob med skjutdörr.
Kök
Vita och släta köksluckor med bänkskiva i slitstark laminat. Stänkskydd finns i form av mörkt kakel. Utrustat med kyl & frys (Siemens, 2024), diskmaskin (Miele), spishäll (Electrolux, 2019), spisfläkt samt ugn. Ljusa väggar och parkettgolv. Ger plats för 6-8 personer runt matbord.
Grovkök/tvättstuga
Praktiskt grovkök med gjuten betong på golv och vitmålade väggar. Utrustat med tvättmaskin, vask med arbetsbänk samt förvaringsskåp.
Badrum
Helkaklat och fräscht badrum med svart klinker på golv och vitt kakel samt mosaik på väggarna. Totalrenoverat år 2018. Utrustat med dusch,badkar, wc-stol, tvättställ och vattenburen handdukstork.
Vardagsrum
Ljusa målade väggar kombineras här med tapetserad fondvägg och ljust fint parkettgolv. Stora fönsterpartier mot den mysiga uteplatsen med trädeck. Här finns det även infällda spotlights i taket.
Ovanvåning
Hall
Från hallen nås samtliga ytor på ovanvåningen.
Badrum 2
Ännu ett stilrent och helkaklat badrum som totalrenoverades 2018. Här finns det spotlights, vattenburen handdukstork, toalett, handfat, dusch , glasdörrar och skåp.
Sovrum med balkong
Stort sovrum som enkelt kan göras om till två sovrum om så önskas. Ljusa väggar och tapetserad fondvägg, på golvet vilar det parkett. Här finns det även förvaring i form av inbyggd garderob med skjutdörr. Härifrån når man även ut till den härliga balkongen mot husets framsida.
Sovrum 2
Ännu ett sovrum som enkelt kan göras om till två sovrum om så önskas. Ljusa väggar och tapetserad fondvägg, på golvet vilar det parkett. Här finns det även förvaring i form av inbyggd garderob med skjutdörr.



Bondbönan 2
*Areauppgifter enligt taxeringsinformationen
Renoverat båda badrumen (2018)
Öppnat upp vägg mellan hall och kök (2010)
Tog bort vägg mellan sovrum och gjorde ett stort istället (2010)
Inbyggda garderober (2011)
Byggde terass (2023)
Spotlights i vardagsrum (2015)
Stenlagt uteplats på framsidan (2018)
Nytt staket (2023)
Nytt stänkskydd kök (2024)
Ny värmepump (2026)
Byggt trädgårdsskåp (2023/2013)
Elektroniskt dörrhandtag/lås (2024)
Ny kyl och frys (2023)
Tillhör ett externt förråd, ca 6 kvm. Parkeingsplats
Kommunalt vatten, Kommunalt avlopp.
Friköpt.
En parkeringsplats ingår i huset. Finns gästparkering i området också och fri parkering på gatan utanför huset.
Detaljplan (1989-03-16)
Gemensamhetsanläggning: Malmö bondbönan ga:1 ändamål: Vägar, Vattenförsörjning, Avloppsanläggning, Radio- TV och/eller tele, Värmeanläggning, Grönområden, Garage och/eller parkering, Kvartersanläggning
Samfällighet: Malmö bondbönan s:1
Last: Avtalsservitut Ledningar mm, 12-IM1-90/22040.1
Last: Officialservitut Byggnad, 1280K-40/2006.28
Förmån: Officialservitut Byggnad, 1280K-40/2006.1
Förmån: Officialservitut Byggnad, 1280K-40/2006.27
Fiber (Sydantenn)
Fiber (Sydantenn)
Avtalsservitut Ledningar mm
I samfällighets avgiften ingår kostnad för värme, VA, sophantering, renhållning, och fiber.
Det finns 4 st pantbrev uttagna om sammanlagt 2 250 000 kr
I Östra Malmö hittar du både idylliska äldre villor i Västra Kattarp och mångkulturella områden som Rosengård och Fosie med flerbostadshus. Här finns också industrier och landsbygd samt Östra kyrkogården som är en av Malmös allra vackraste kyrkogårdar.
Johanneslust har fått sitt namn från ett gammalt värdshus som låg längs med Sallerupsvägen. Områdena Johanneslust och Håkanstorp skapades under tidigt 1900-tal som en del i egnahems-rörelsen, därför hittar du mest villor, radhus och kedjehus här. Idag tillhör områdena i stadsdelen Kirseberg.
Rosengård byggdes som en del av miljonprogrammet i slutet av 1960-talet. Tidigare utgjordes platsen av ett jordbruksområde med lantegendomen Rosengårds herrgård från 1817. Rosengård är uppdelat i fem delområden med namnen Törnrosen, Apelgården, Herrgården, Örtgården och Kryddgården. Mitt i området finns ett centrum som har det mesta du behöver vad gäller service.
Västra Kattarp har en historia som går tillbaka ända till 1500-talet, när området kallades för Västra Kattarps by. Det finns tyvärr ingen bevarad bebyggelse kvar från denna tiden. Idag är Västra Kattarp ett av få villaområden i stadsdelen, vilket ökar attraktionsvärdet. Flertalet av husen är byggda runt 1960-talet. I närheten finns även Persborg och Hindby med flerbostadshus, radhus och egnahem. Här ligger också Pågens bageri som sprider frestande dofter av nybakade bullar i området.
I lugna Gullvik är det lätt att trivas. Här bor du på bekvämt avstånd från centrala Malmö samtidigt som du har allt du söker vad det gäller vardagsshopping på nära håll. Området består till största del av villor men det finns även enstaka bostadsrättsradhus. Här finner du både hus från 1920-talet till helt nybyggda hus i modern stil. Gullvik är perfekt att bo i för den som pendlar till Danmark. På bara några minuter är du ute på motorvägen för vidare färd över Öresundsbron. Du tar dig även ut till Malmö flygplats på kort tid.
I mångkulturella Fosie finns företagsamhet, flera vackra grönområden, hus med gamla anor och charmig herrgårdsmiljö. Fosie kyrka och runstenen påminner om det förflutna medan Augustenborgs Ekostad och industrierna i Fosie företagarby symboliserar framtiden.
Vill du köpa, sälja eller värdera bostad på Gullvik? Kontakta Bjurfors mäklare på Malmö Öster! Passa också på att anmäla dig till vår kostnadsfria söktjänst Boagenten som hjälper dig att hitta ditt drömboende.
Kontakta mäklaren om du behöver hjälp att ta fram en boendekalkyl.
När du köper din bostad genom Bjurfors kan du ansöka om bolån till en förmånlig ränta hos våra banksamarbetspartners Söderberg & Partners och SEB.
Kontakta mäklaren för mer information gällande budgivningen.
Kontakta mäklareAnsvarig mäklare