-
Köpa
Köpa -
Sälja
Sälja - Hitta bostad
- Skapa bevakning
- Hitta mäklare
Ljus och Genomtänkt Tvåa i Sydvästläge
Västra Hamnen, Malmö
*I avgiften ingår värme och kallvatten. Kostnad för varmvatten och el mäts individuellt och debiteras efter förbrukning. Det tillkommer ett obligatoriskt tillägg för Telia Triple Play (bredband, kabel-tv & IP-telefoni) om 239kr/månad.
**Areauppgifter enligt bostadsrättsförening
På Förhand ligger bostäder som av olika anledningar inte är ute till försäljning just nu men som kan komma att säljas om förutsättningarna är rätt.
Smart Planerad Tvåa med Härligt Ljusinsläpp
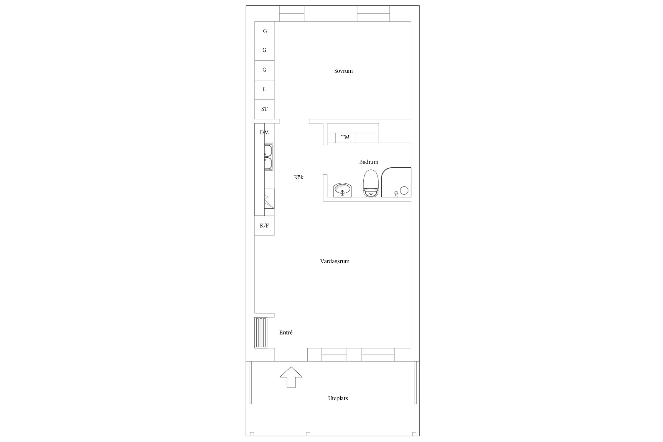
Välkommen till denna ljusa och genomtänkta tvåa med en solig entrébalkong mot den lugna innergården. Här, på andra våningen,får du ett härligt ljusinsläpp och trivsamma sällskapsytor. Lägenheten erbjuder ett rymligt vardagsrum med plats för både soffa och matbord, ett stilrent kök, ett stort badrum med egna tvättmöjligheter samt ett smart planerat sovrum med generösa förvaringslösningar. Den grönskande innergården nedanför bjuder in till avkoppling med trevliga gemensamma uteplatser.
HALL
Välkomnande och luftig hall med plats för avhängning. Den öppna planlösningen skapar en inbjudande känsla redan vid entrén.
VARDAGSRUM
Ljust och trivsamt vardagsrum med ekparkett och ett generöst fönsterparti som sträcker sig ända ner till golvet. Fönstren i sydvästläge mot innergården ger ett fantastiskt ljusinsläpp och skapar en charmig atmosfär. Här finns gott om plats för både soffa och matplats i öppen anslutning till köket.
SOVRUM
Rymligt sovrum med plats för dubbelsäng och sängbord. Ett fönster ger ett behagligt ljusinsläpp, och den stora garderobsväggen erbjuder utmärkta förvaringsmöjligheter.
KÖK
Stilrent och funktionellt kök med mörk bänkskiva som kontrasterar snyggt mot övriga material. Köket är utrustat med kyl/frys, ugn, häll och diskmaskin.
BADRUM
Snyggt helkaklat badrum med dusch, WC, handfat med kommod och spegel. Här finns även en kombinerad tvättmaskin/torktumlare med en praktisk bänkskiva och väggskåp ovanför för extra förvaring.
ENTRÉBALKONG
Gårdsvänd entrébalkong med plats för utemöbler, där du kan njuta av härlig eftermiddags- och kvällssol.



Kosterbåten 1
*Areauppgifter enligt bostadsrättsförening
I avgiften ingår värme och kallvatten. Kostnad för varmvatten och el mäts individuellt och debiteras efter förbrukning. Det tillkommer ett obligatoriskt tillägg för Telia Triple Play (bredband, kabel-tv & IP-telefoni) om 239kr/månad.
Bostadsrättens indirekta nettoskuldsättning baseras på föreningens skulder/lån minus föreningens räntebärande tillgångar och likvida medel. Beräkningen är gjord via Bopedia. För mer information kontakta ansvarig fastighetsmäklare.
*Betalas av köpare
Brf Barcelona bildades år 2013. Husen byggdes av Veidekke och färdigställdes år 2015. Föreningen består av 72 bostadsrätter och två lokaler med hyresrätt. Fastigheternas adress är Östra Varvsgatan 16 A-H och 18, Klippergatan 6 samt Kostergränd 3 och 5 A-G i Malmö.
Detta är det första flerbostadshuset i Skåne att få den nordiska miljömärkningen Svanen.
Riksbyggen sköter föreningens ekonomiska förvaltning.
Föreningen höjde avgifterna med 10% från 2025-01-01. Avgiften för varmvatten höjs till 90kr/kbm pga kostnadsökningar. Övriga avgifter lämnas oförändrade, ingen höjning av månadsavgiften 2026-01-01 (kontrollerat 2025-11-27).
IMD
Föreningen har gemensamt avtal för varmvatten och el. Individuell mätning och debitering sker efter förbrukning. Avläsning av el- och varmvatten-förbrukning sker månadsvis och debitering sker en månad i efterskott. Riksbyggen gör slutavläsning som skickas till säljaren.
Fastigheten är fullvärdesförsäkrad i Trygg-Hansa. I föreningens fastighetsförsäkring ingår bostadsrättstillägg för föreningens lägenheter.
Utförda renoveringar
2020 Rensning av ventilationskanaler FT/FTX-system och GB2. Garantiärenden som Veidekke har återgäldats. Trädgården har omarbetas med hjälp av John Taylor. Oljning och målning av ytterdörrar i trä har utförts.
2023 Oljning/målning av entrépartier och dörrar av trä.
2023 Slamspolning, oljning av entrépartierna samt målning av dörrarna till miljöhuset
2024 OVK och rensning av ventilationskanalerna
Inget större underhåll är planerat för 2025 (kontrollerat 2025-11-27):
Föreningen går igenom underhållsplanen årligen med deras förvaltare på Riksbyggen och går då även rundvandring i fastigheten.
I föreningen finns 38 garageplatser (950 kr/mån) för bilar varav 8 är med laddstationer (för laddplats tillkommer 300 kr/mån samt kostnad för kWh)
Föreningen har även 2 platser för MC (400 kr/mån)
Kösystem tillämpas, för tillfället finns det ledig plats för bil (kontrollerat 2025-11-27).
I mån av plats kan man hyra en bilplats för gäster för en kostnad av 50 kr/dygn.
Föreningen är ansluten till kabel-TV och bredband med en bredbandshastighet på 250/250 via Telia Triple Play. Tillkommer som ett obligatoriskt tillägg.
Gemensam trädgård med två fina trädäck med bord och bänkar.
I huset finns gemensamma utrymmen för soprum (miljörum), styrelserum, 2 st cykelförråd, verkstad med cykelreparation och grovdammsugare och barnvagnsrum.
I föreningen finns två övernattningsrum, kan hyras till en kostnad om 200 kr/natt/rum. Ett av dem har 140 cm bred säng och det andra har dubbelsäng.
Till varje lägenhet hör ett lägenhetsförråd i källaren.
Föreningen har ett fåtal antal extra förråd som hyrs ut för 100kr/månad. Dessa är för närvarande uthyrda men man kan anmäla intresse. Det tillämpar ett kösystem där de som anmält sig tillfrågas i tur och ordning. Någon gemensam tvättstuga finns inte.
Information som berör föreningen är inhämtad via årsredovisning, stadgar och kontakt med föreningen. Avvikelser kan förekomma och som köpare uppmanas du att själv kontrollera samtliga uppgifter, framförallt om något är av extra stor betydelse för dig som köpare.
För mer information besök gärna föreningens hemsida: www.brfbarcelona.se
Det som började som en vision om att skapa en ny typ av boendemiljö har vuxit fram som en spännande stadsdel som sjuder av liv. Under sommarhalvåret drar Västra Hamnen och Dockan åt sig särskilt många besökare. Malmöbor och andra skåningar kommer kanske för att ta ett dopp utmed den långa strandpromenaden. Minst lika många, också utländska turister, fascineras året om av den varierande arkitekturen i boendemiljön där Turning Torso står lika tydlig som ett utropstecken – här är det!
Västra hamnen är en ekologiskt hållbar stadsbebyggelse och den började ta sin form under bostadsmässan Bo01, som hölls sommaren 2001. Syftet med mässan var att visa upp för allmänheten hur övergiven industrimark kunde förvandlas till bostadsområden med affärer, restauranger, hotell och kontor i en levande miljö. Den otillgängliga kustremsan förvandlades också till en mötesplats med utrymme för lekplatser, parker, skateramper, motionsstråk och brygghäng.
Ambitionen att skapa en levande stadsdel infriades verkligen. Idag är Västra Hamnen ett mycket attraktivt bostadsområde där förskolor och skolor hör till Malmös mest uppskattade. Här finns också all service, som t ex apotek, gym och matbutiker. Även flera topprestauranger har etablerat sig här lockade av möjligheten att bjuda gästerna på en upplevelse utöver det vanliga. Flera har borden precis utmed kajkanten och serverar förstås gärna fisk- och skaldjursrätter. Det är också enkelt att vara nära naturen i Västra Hamnen. De boende uppskattar möjligheten att ta ett kvällsdopp vid Scaniabadet och njuter av solnedgången i sundet vid Öresundsbron.
Idag är västra hamnen känd för sin spännande arkitektur med landmärket Turning Torso som stor turistattraktion. Den imponerande 190 meter höga byggnaden har satt Malmö på kartan och besökare från såväl Sverige som övriga världen kommer för att beskåda den.
Granne med Västra Hamnen ligger Dockan. Namnet på området är hämtat från förr då just varvsindustri och Kockums dominerade kustområdet. Nu är det ett trevligt bostadsområde som definieras av flervåningshus med närkontakt till vattnet, restauranger och en fri sikt ut mot horisonten. Den ursprungliga båtdockan har återanvänts och förvandlats till en attraktiv småbåtshamn. Man kan som boende parkera båten utanför porten.
Blandningen av gammalt och nytt är ledord i utformningen av Dockans miljö och flertalet äldre byggnader har fått nya användningsområden, bland annat har Malmö universitet sin verksamhet i en gammal ubåtshall. Studenter blandas också med kontorsanställda då många små företag men även större internationella sådana har kontor i området. Även Bjurfors har sitt huvudkontor här.
Vill du köpa, sälja eller värdera bostad i Västra Hamnen? Kontakta Bjurfors mäklare på Malmö City! Passa också på att anmäla dig till vår kostnadsfria söktjänst Boagenten som hjälper dig att hitta ditt drömboende.
Kontakta mäklaren om du behöver hjälp att ta fram en boendekalkyl.
När du köper din bostad genom Bjurfors kan du ansöka om bolån till en förmånlig ränta hos vår samarbetspartner SEB.
Extra kontaktperson