-
Köpa
Köpa -
Sälja
Sälja - Hitta bostad
- Skapa bevakning
- Hitta mäklare
Edvardsgården - alla drömmars fyrlängade gård med två bostäder
Gladsax, Simrishamn
*Areauppgifter enligt taxeringsinformationen. Antal rum inkluderar båda bostäderna på gården.
Notera att boarean i båda husen troligtvis är över 300 kvm.
Fyrlängad avstyckad skånegård i ett harmoniskt öppet landskap med två bostäder, verkstad, stall, växthus och lada. Ett hem med själ och charm!
Redan när Edvardsgården, mellan Gladsax och Tommarp, skymtas på håll syns den vackra gårdsbilden. Fyra vitputsade huskroppar med tegeltak och spröjsade fönster bildar en famn omkring en gammaldags vacker kullerstensgård, mitt i den öppna Österlenska slätten. Välkomna till Edvardsgården.
Att få vara ett med landskapet i alla årstider kan vara den största ynnesten. Från sådd till skörd, från soluppgång- till solnedgång, året om. I flertal generationer bedrevs det verksamhet, produktion och djurhållning på gården så sent som till 2020. Nästa ägare har alla möjligheter att, utan större renoverings- eller nybyggnadsinsatser, kunna påbörja uthyrning, husera verkstads- eller snickeriverksamhet, främja rekreation, öppna butik, ateljé eller gårdshotell, eller kanske fullfölja en odlingsdröm. Oavsett drömmar finns det rum på Edvardsgården. De välrenoverade stallbyggnaderna kan konverteras till vad ni önskar och behöver!
Förutom stall, isolerad verkstad och stor lada finns två bostäder på Edvardsgården. Ursprungshuset är i ett plan samt ett gästrum på ovanvåningen, med fortsatta möjligheter att kunna inreda vinden. Bostaden är berikad med en mångfald av charmiga inslag så som gammaldags välvda fönsterpartier, takbjälkar och vedspis, men har även moderniteter som genomgående vattenburen golvvärme och två kaklade våtrum. Idag har bostaden 3 rum, kök och tvätt/pannrum men det är fullt möjligt att förändra planlösningen för att få några ytterligare sovrum vid behov.
I den andra bostaden på gården, som blev klar 2017, kan familjemedlemmar och gäster husera bekvämt med en total boarea om strax över 100 kvm, fullt utrustat med kök, duschrum- och tvättmöjligheter, vardagsrum med eldstad, klädkammare samt tre sovrum. Även denna bostad har vacker utsikt över det öppna lantbruksslätten och har en fin stensatt uteplats i anslutning till entrén.
På Österlen ligger det mesta inom rimligt räckhåll. Från Edvardsgården är det cykelavstånd till flertal restauranger, 5 minuters bilfärd till närmaste tågstation och matbutik samt cirka 1 timmes bilfärd till Malmö, Lund och Sturups flygplats.
Platsen är både avskalad och fullspäckad på samma gång, inget saknas men möjligheterna är fortsatt oändliga. Det råder ett lugn över platsen, en rofylld atmosfär som är svår att sätta ord på.
Välkomna till Edvardsgården för atf få uppleva känslan!



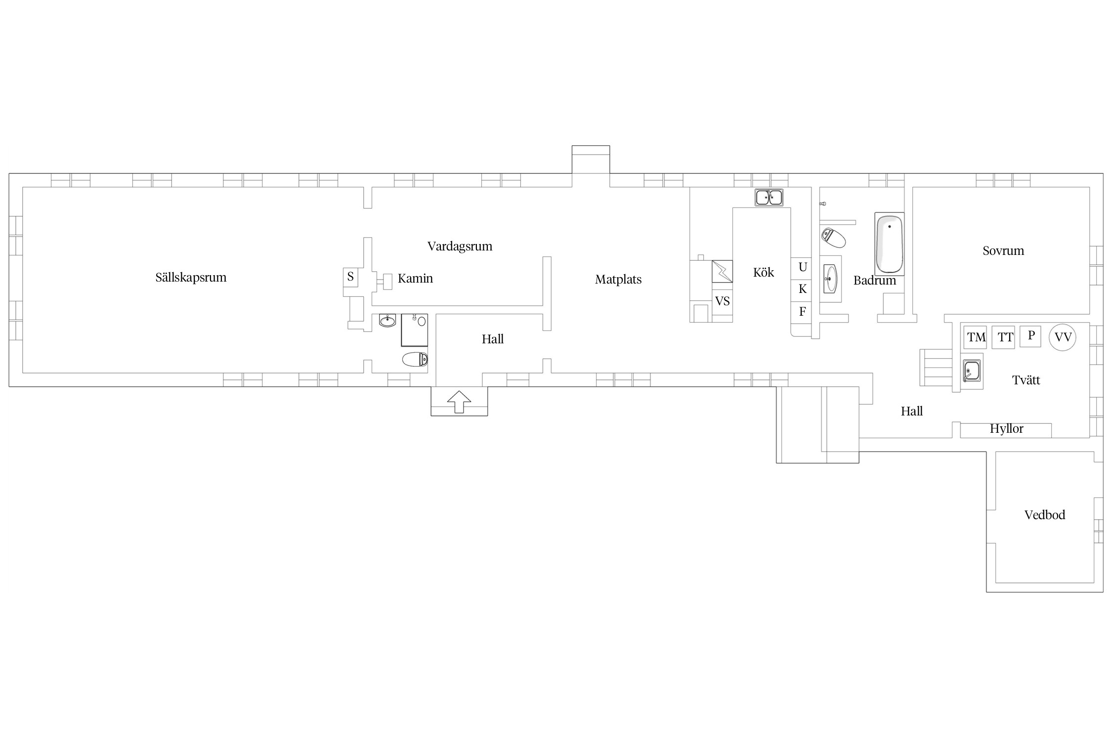
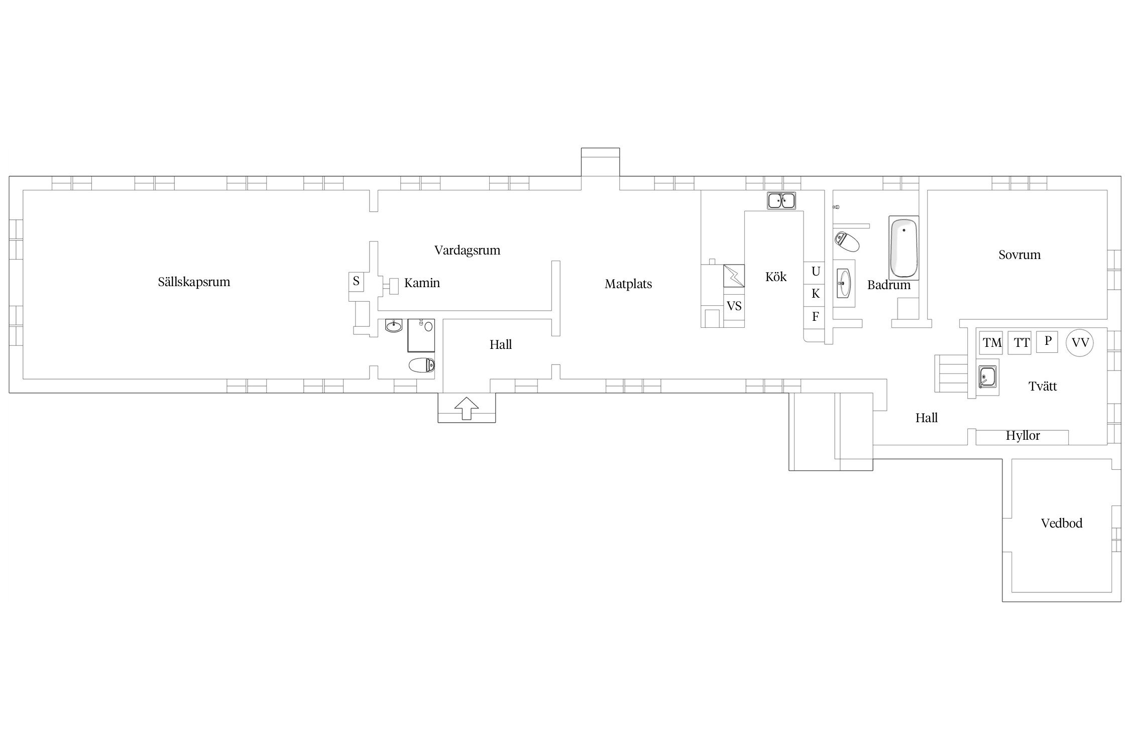
Entréplan huvudbostad
Övre plan huvudbostad
Entréplan Annex
Övre Plan Annex
Ungefärlig planritning över gården (entréplan)
Tommarp 36:7
*Areauppgifter enligt taxeringsinformationen. Antal rum inkluderar båda bostäderna på gården.
Notera att boarean i båda husen troligtvis är över 300 kvm.
*Troligtvis uppfört under sent 1800-tal
- Larm finns
Renoveringar utförda av nuvarande ägare (ca 2020-2023:
- Uppdateringar i kök i form av nya köksluckor, ny bänkskiva, spishäll, fläkt, kyl, frys, mikro och ugn. Stommen är från 2011. Därtill har inredningen i badrummen bytts ut (WC, handfat och kommod) och tvättmaskiner/torktumlare bytts ut år 2020.
- Målning av alla väggar i huvudbostaden samt byte av golvlister och montering av nya garderober
- Borrat ny vattenbrunn och satt upp vägskylt Edvardsgården
- Uppbyggnad av två verandor, en via huvudentré samt en via kök. Därtill uppförande av växthus
- Grusat uppfart och byggt stensatt uteplats mot öster via sovrum och tvättstuga
- Kontroll/genomgång av värmepump, värmeväxlare annexet, elmätare/elskåp/elcentral.
- Ommålning av fönster och dörrar utvändigt samt ommålning inne i lada, hönshus, vedbod och annex.
Renoveringar utförda av föregående ägare:
2010: Ny Avloppsanläggning (biobädd)
2010: Merparten av all el drogs om
2011: Renovering av båda bad- och duschrummen
2012: Jordvärmeinstallation
2017: Uppbyggnad av ytterligare en bostad/annex om ca 128 kvm.
I de fyra längorna inryms:
- Bostadshus om 154 + 36 kvm samt inredningsbar vind om ca 90 kvm.
- Vedbod om ca 9 kvm
- Verkstad (f.d mejerirum) med kakel/klinker samt vatten & avlopp om ca 18 kvm.
- Hönshus om ca 15 kvm
- Snickeridel (mellan stall och lada) om ca 23 kvm
- Lada om ca 212 kvm
- Stall om ca 214 kvm.
- Andra bostaden/annexet som byggdes 2017 med 4 rum och kök samt badrum/tvätt, klädkammare samt entréhall och övre hall, till ytan närmare 128 kvm.
All information om yta ovan är cirkauppgifter och gäller golvyta.
Borrad brunn från 2020 med provtagning gjord under 2024. Även grävd brunn finns finns. Enskilt avlopp via biobädd från 2010, godkänd anläggning.
Trädgårdstomt på 4223 kvm där det bland annat finns äppel, päron och plommonträd. Därtill finns körsbär, vinbär, krusbär, hallon, jordgubbar, hallon och flertal vinrankor med röda och gröna druvor. Ett växthus finns på ladans södersida och ett stort land i samma väderstreck. Åkgräsklippare och jordfräs kan ingå i köpet om köparen önskar.
Förmån: Officialservitut Väg, 1291-2374.1 (vägen in till gården)
Fiber finns.
Notera att kostnad för hushållsel är inkluderad i uppvärmningskostnaden samt att försäkringskostnaden gäller gårdsförsäkring med alla kringbyggnader inkluderade. Kostnad om 1110kr för VA gäller årlig slamtömning.
Det finns 8 st pantbrev uttagna om sammanlagt 3 400 000 kr
Gladsax gamla kyrkby ligger 4 km väster om Simrishamn. Denna vackra bygd har varit bebodd sedan stenåldern och hade en lång glansperiod under medeltiden då Gladsax var ett eget län med kungaborgen Gladsaxehus som huvudsäte. Sedan dess har mycket hänt i och runt Gladsax, men mycket av det gamla finns kvar. Som till exempel sträckningen av den slingrande, charmiga bygatan som växte fram under 1600-talet.
Byn med omnejd anses vara en kulturmiljö av riksintresse. Varje år i månadskiftet juli-augusti hålls Gladsaxdagen med allehanda teman – som byns historia, arkitektur eller natur. God lunch, högklassig konsert i kyrkan och gemytligt knytkalas på kvällen är stående programpunkter. Den livaktiga stämningen märks även i företagsamheten i byn.Ingen som besökt Gladsax kan ha missat Karossgårdens Antik eller Gustafs på Österlen.
Vill du köpa, sälja eller värdera bostad i Gladsax? Kontakta våra mäklare på Österlen! Passa också på att anmäla dig till vår kostnadsfria söktjänst Boagenten som hjälper dig att hitta ditt drömboende.
Kontakta mäklaren om du behöver hjälp att ta fram en boendekalkyl.
När du köper din bostad genom Bjurfors kan du ansöka om bolån till en förmånlig ränta hos vår samarbetspartner SEB.