-
Köpa
Köpa -
Sälja
Sälja - Hitta bostad
- Skapa bevakning
- Hitta mäklare
Modernt boende i lugnt barnvänligt område
Stavstensudde, Trelleborg
*Areauppgifter enligt taxeringsinformationen
På Förhand ligger bostäder som av olika anledningar inte är ute till försäljning just nu men som kan komma att säljas om förutsättningarna är rätt.
Ljust och energieffektivt familjehus med inglasat uterum, solceller och lugnt läge på attraktiva Stavstensudde.
Välkomna till ett ljust, rymligt och välplanerat hem med allt den moderna familjen kan önska. Här erbjuds generösa sociala ytor och möjlighet till hela fem sovrum – perfekt för både vardagsliv och umgänge. Det stilrena köket och den praktiska tvättstugan skapar en smidig vardag, medan det inglasade uterummet blir en uppskattad förlängning av bostaden och låter dig njuta av utesäsongen under stora delar av året.
Här bor du i ett lugnt och barnvänligt område med gott om grönytor runt knuten. Närhet till förskola, lekplats och belyst motionsspår gör läget idealiskt för familjen.
Bostaden är utrustad med solceller och batteri samt smart belysnings- och värmesystem som ger både komfort och energieffektivitet. På entréplan finns fjärrstyrda gardiner och på ovanvåningen måttbeställda lamellgardiner. Uteplats med härlig kvällssol och balkong med fri utsikt över öppna fält sätter guldkant på tillvaron.
Carport med förråd och två elbilsladdare kompletterar helheten och gör detta till ett hem att trivas i under lång tid framöver.
Varmt välkomna på visning!
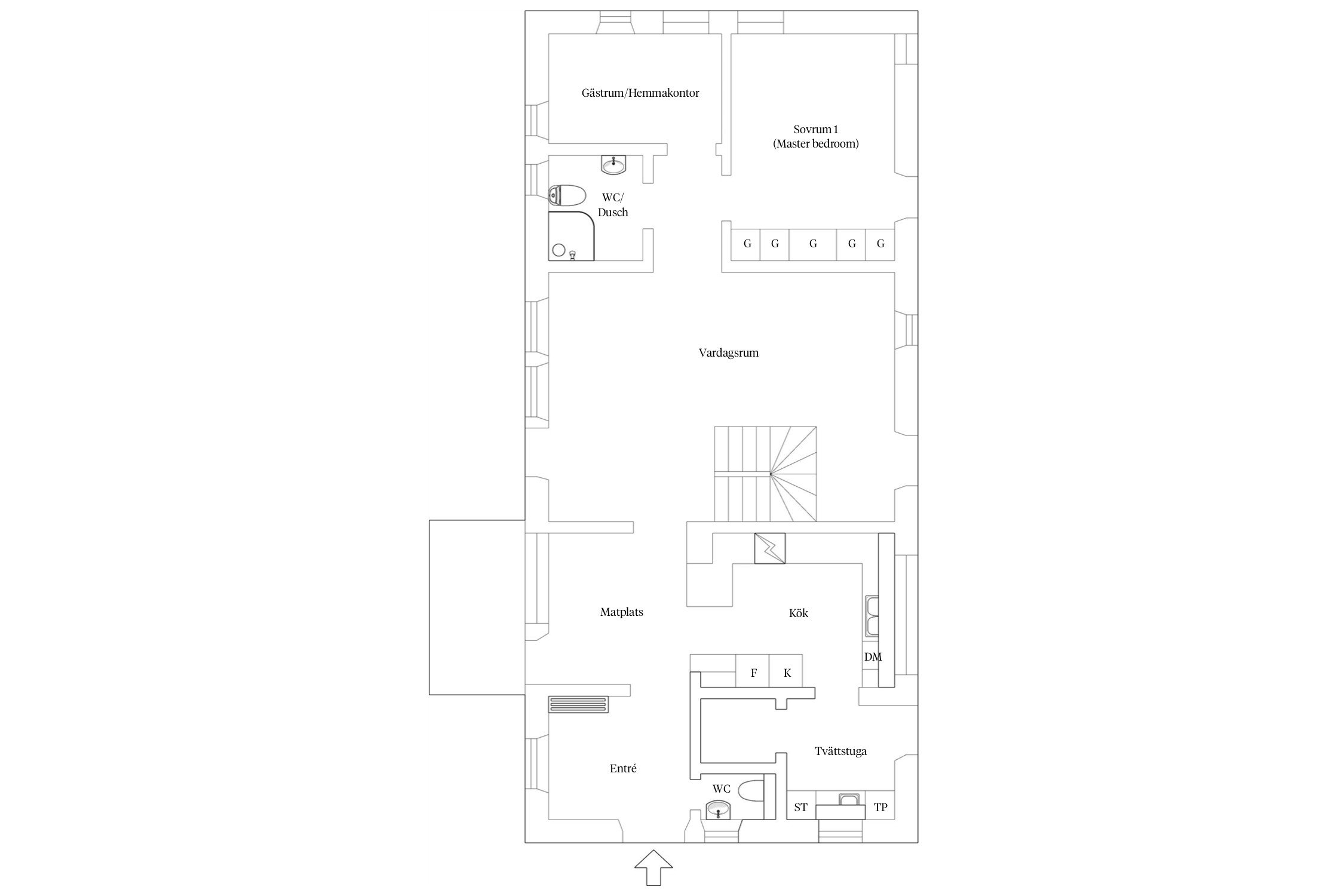
Entréplan:
Hall
Entré med grå klinker på golvet och vita väggar. Garderob med praktisk förvaring.
Gäst-WC
Helkaklad gäst-wc i ljus vit ton, utrustad med toalett och handfat.
Kök
Praktisk grå klinker på golvet och ljusgrå köksinredning med nya köksluckor från 2025. Mörk bänkskiva i sten samt stänkskydd i mosaik ovan diskbänk och spishäll. Den maskinella utrustningen består av kyl och frys (2022), varmluftsugn (2015), induktionshäll (2025), spisfläkt (2007), mikrovågsugn (2020) och diskmaskin (2020). Fint ljusinsläpp från fönster över arbetsytan samt infällda spotlights i taket. I anslutning till köket finns utrymme för matplats.
Vardagsrum
Parkettgolv och vita målade väggar. Plats för stort matbord samt tv-hörna med soffa. Fint ljusinsläpp från flertalet fönster och altandörrar. Från rummet nås det inglasade uterummet som blir en förlängning av vardagsrummet.
Gästrum/Hemmakontor
Ljust rum med parkettgolv och vita väggar. Kan användas som sovrum eller hemmakontor.
Sovrum 1
Rogivande master bedroom med plats för dubbelsäng. Parkettgolv och väggar i blå/grå nyans.
Garderober längs ena väggen erbjuder praktisk förvaring.
Badrum
Helkaklat badrum med vita kaklade väggar och mörkgrå klinker på golvet. Utrustat med dusch, vägghängd toalett, handdukstork (el), golvvärme (vattenburen), vask med kommod samt spegelskåp.
Tvättstuga
Tvättstuga med inredning från 2025 med grå skåpsluckor och vask samt grå klinker på golvet. Utrustad med tvättmaskin (2026) och torktumlare (2021). I anslutning finns ett förrådsrum för praktisk förvaring samt groventré.
Ovanvåning:
Hall/Allrum
Inredningsbar hall med parkettgolv och vita väggar som skapar en ljus och neutral miljö. Goda möjligheter att möblera med exempelvis sittplats, förvaring eller arbetsyta efter behov. Härifrån nås även balkongen, vilket ger ett fint ljusinsläpp och en luftig känsla.
Sovrum 2
Stort sovrum, eller allrum, med plats för dubbelsäng. Parkettgolv och väggar i blå/grå nyans. Inbyggt förråd i ena väggen erbjuder praktisk förvaring.
Badrum
Helkaklat badrum med vita kaklade väggar och mörkgrå klinker på golvet. Utrustat med komfortvärme i golv (el), handdukstork (el), vask med kommod samt spegelskåp.
Sovrum 3
Parkettgolv och grönmålade väggar. Plats för säng, garderob och skrivbord.
Sovrum 4
Parkettgolv och gulmålade väggar. Plats för säng, garderob och skrivbord.



Krooks by 16
*Areauppgifter enligt taxeringsinformationen
*Besiktigad: måndag 30 mars 2026
Fjärrstyrda gardiner på entréplan.
Måttbeställda lamellgardiner på ovanvåningen.
Vattenburen golvvärme på entréplan, vattenburna radiatorer på ovanvåningen.
Fjärrvärme, med ytterligare luft/luft-värmepump för komfortvärme och kyla.
Huset har smart belysnings- och värmesystem.
Solpaneler (14,4 kW, beräknad elproduktion: 13 000 kWh/år) och batteri (6,6 kWh) finns installerade.
2020
Slipning av golv och tvåkomponents-lack
Fjärrstyrda rullgardiner/lamellgardiner
Installation av kodlås för ytterdörrar
Ny diskmaskin
Ny mikrovågsugn
2021
Ny torktumlare
Installation av smarta dimmers och strömbrytare
Installation av LED-spotlights och lampor
Installation av två laddboxar för elbil
Ny takfläkt för ventilationssystem, samt tilluftsventiler
2022
Ny kyl och frys
Installation av solpaneler, 14.4 kW (13000 kWh)
Installation av smarta rumstermostater till värmesystem
Installation av smart solskydd vid balkongfönster
Installation av solskydd på takfönster på solsidan
Målning av carport och uthus
Nytt staket
2024
Installation av batteri, 6.6 kWh
Installation av luft-luftvärmepump
Byte av vattenmätare och tillhörande rör/ventiler
2025
Ny av induktionshäll
Ommålning invändigt (tak och väggar)
Byte av köksluckor
Ny inredning tvättstuga
2026
Ny tvättmaskin
Nya skåp, blandare och kommoder i badrum och dusch
Ny blandare i gästtoalett
Förråd, carport och inglasat uterum
Uteplats med kvällssol
Kommunalt vatten, Kommunalt avlopp.
Carport med plats för två bilar, inklusive två elbilsladdare
Detaljplan (2005-09-26)
Gemensamhetsanläggning: Trelleborg krooks by ga:1 ändamål: Vägar, Elledning och/eller belysning, Grönområden, Garage och/eller parkering, Kvartersanläggning
Gemensamhetsanläggning: Trelleborg maglarp ga:5 ändamål: Vägar, Elledning och/eller belysning, Grönområden
Samfällighet: Trelleborg krooks by s:1
Samfällighet: Trelleborg maglarp s:17
Fiber 1000/1000 Mbit/s
Ägarens nuvarande driftskostnader baseras på 4 personer i hushållet inklusive elkostnad för laddning av två elbilar (12 201 kWh/år).
Det finns 5 st pantbrev uttagna om sammanlagt 3 996 000 kr
Längs Trelleborgs kommuns västra kust ligger de små samhällena som ett pärlband efter varandra. Här har människor bott i många hundra år och trakten har flera kulturlämningar. Byarna är av olika karaktär men de har en sak gemensamt; närheten till havet och den vackra naturen.
Skåre är ett litet genuint fiskeläge med båtar, torkplats för fiskegarn och charmiga vitputsade hus med tjärade papptak.
Jordbrukssamhället Maglarp ligger på slättlandet mellan Skåre och Trelleborg och har både vindkraftverk och flygfält. Orten har varit bebodd under lång tid.
Stavstensudde är den nyaste orten på Trelleborgs kommuns västkust. Stadsdelen började utökas år 2005. Här kan den golfintresserade spela på en 18-håls seasidebana som smälter in i den omgivande naturen.
Mysiga Gislövs Läge ligger öster om Trelleborg och har sydkustens största gästhamn, Gislövs hamn. I hamnen finns ett populärt, säsongsöppet hamncafé som serverar kaffe, glass och mackor.
Idylliska Simremarken ligger precis vid havet och är idag sammanvuxen med Trelleborg. Naturen är underbar här och bebyggelsen består av både fritidshus och åretruntvillor.
Vill du köpa, sälja eller värdera bostad vid Stavstensudde? Kontakta Bjurfors mäklare i Trelleborg! Passa också på att anmäla dig till vår kostnadsfria söktjänst Boagenten som hjälper dig att hitta ditt drömboende.
Kontakta mäklaren om du behöver hjälp att ta fram en boendekalkyl.
När du köper din bostad genom Bjurfors kan du ansöka om bolån till en förmånlig ränta hos våra banksamarbetspartners Söderberg & Partners och SEB.
Ansvarig mäklare