-
Köpa
Köpa -
Sälja
Sälja - Hitta bostad
- Skapa bevakning
- Hitta mäklare
Charmerande villa anno 1929.
Ljunghusen, Vellinge
*Areauppgifter enligt taxeringsinformationen
Enligt taxeringsuppgifter är boarea 174 kvm och biarea 4 kvm.
På Förhand ligger bostäder som av olika anledningar inte är ute till försäljning just nu men som kan komma att säljas om förutsättningarna är rätt.
Charmerande 1 1/2 plansvilla anno 1929 med arkitektritad tillbyggnad 1992. Spatiösa sociala ytor och två gästboenden på tomten med uthyrningsmöjlighet
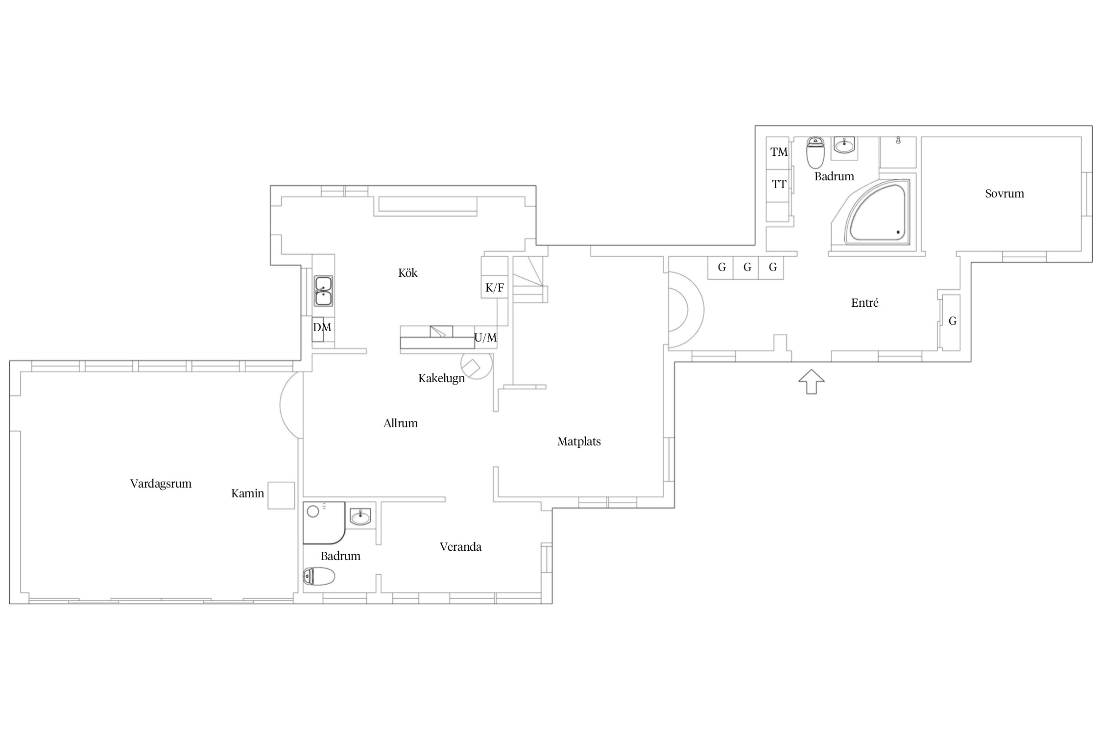
Välkommen till denna charmerande villa anno 1929 med arkitektritad tillbyggnad från 1992, belägen i natursköna Ljunghusen. Här finner du en välplanerad bostad med generösa sociala ytor och en fantastisk rymd med öppet upp i nock i del av villan. En unik möjlighet att bo i en historisk fastighet med moderna bekvämligheter och närhet till både havet och grönskan.
Villan erbjuder totalt sex rum varav tre sovrum och en boyta på ca 200 kvadratmeter. Det spatiösa vardagsrummet med öppet upp i nock är hemmets hjärta och bjuder in till stora sociala festligheter. På det nedre planet finns ett sovrum och på det övre två. Hemmet fulländas av två helkaklade badrum varav det ena även utgör tvättstuga samt en wc.
Utöver huvudbyggnaden finns även två gästboenden på tomten, perfekt för besökande vänner och familj eller som uthyrningsmöjlighet. Gästhuset om ca 45 kvm är utrustat med ett litet kök, allrum, två sovrum samt duschrum och wc med tvättmaskin/torktumlare. Gäststugan är ca 3o kvm med ett allrum och ett sovrum. I den lummiga trädgården finns flera soliga uteplatser varav en i den mysiga atriumgården som så fint sammanbinder miljön mellan villan och gästhuset.
Här bor vi på badrocksavstånd till havet och samtidigt med närhet till Höllvikens serviceutbud och goda pendlingsmöjligheter. Väl mött att se denna pärla!
Entré
Klinkers på golvet, vita väggar. Garderob samt plats för avhängning ytterkläder. Golvvärme (el).
Kök
Parkettgolv, vita väggar. Luckor i trä/vita. Ugn, spishäll och mikrovågsugn (samtliga 1999), diskmaskin och kyl/frys (båda 2022), köksfläkt. Matplats för ca 4-6 personer. Altandörr till atriumgård.
Vardagsrum
Klinkers på golvet, vita väggar. Skjutdörrar mot trädgården. Kamin. Öppet upp i nock. Golvvärme (el).
Allrum
Parkettgolv, tapetserade väggar. Kakelugn.
Matsal
Parkettgolv, tapetserade väggar.
Veranda
Brädgolv, tapetserade väggar. Entrédörr.
Sovrum 1
Klinkers på golvet, tapetserade väggar. Golvvärme (el).
Badrum/ Tvättstuga
Beige klinkers på golvet, vit kakel på väggarna. Hörnbadkar, dusch, handfat, wc-stol. Tvättmaskin och torktumlare (båda 2008) bakom spegeldörrar. Golvvärme (el).
Badrum
Vit klinker på golvet, vit kakel på väggarna. Duschhörn, handfat, wc-stol.
Övre plan
Sovrum 2
Brädgolv, tapetserade väggar. Altandörr till takterrass. Skjutdörrsgarderob med spegeldörrar.
Sovrum 3
Brädgolv, panelklädda väggar samt en fondvägg med tapet.
Wc
Grå klinkers på golvet, vit kakel på väggarna. Handfat, wc-stol, bidé och förvaringsskåp. Altandörr till takterrass.



Nedre plan
Övre plan
Ljunghusen 3:5
*Areauppgifter enligt taxeringsinformationen
Enligt taxeringsuppgifter är boarea 174 kvm och biarea 4 kvm.
*Tillbyggt 1992
2023
Renovering duschrum och wc i gästhuset.
Ny dusch i badrum nedre plan vid verandan.
2022
Renovering takterrass.
Målning exteriört samt diverse fasadrenovering (utbyte av trä, plåtsättning).
2019
Utbyggnad av bostadsyta i kök.
Utbyggnad av gäststuga.
2014
Renovering badrum övre plan.
2011
Isolerat sidovindar.
2010
Renovering tak på villa och carport.
Därutöver löpande underhåll.
Gästhus ca 36 kvm med litet kök, allrum, wc med tvättmaskin/torktumlare, duschrum och två sovrum.
Gäststuga ca 17 kvm med ett allrum och ett sovrum.
Fyra förråd. Två är vinterbonade, med yta ca 12 kvm.
Fyra uteplatser i trädgården respektive atriumgården.
Kommunalt vatten, Kommunalt avlopp.
Inhängnad och insynsskyddad privat trädgård med delvis naturtomt. Vackra uppväxta träd och buskar. Bevattningspump installerades 2023.
Plats för tre bilar under tak samt fem platser extra för gäster.
Ändring av detaljplan (2004-04-08) Ändring av detaljplan (1996-08-28) Byggnadsplan (1981-11-19)
Gemensamhetsanläggning: Vellinge ljunghusen ga:3 ändamål: Vägar, Grönområden
Samfällighet: Vellinge stora hammar s:17
Samfällighet: Vellinge stora hammar s:18
Samfällighet: Vellinge stora hammar s:6
Skattetal: mantal 78/246848
Parabol via Allente.
Bredband via Telia (ej fiber).
I uppvärmningskostnad ingår nätavgift Eon och hushållsel.
Enligt överenskommelse
Det finns 6 st pantbrev uttagna om sammanlagt 3 200 000 kr
Ljunghusen är välkänt för sin fantastiska badstrand samt en av Sveriges bästa golfbanor. Bebyggelsen består till största delen av villor. Andra saker som lockar är närheten till naturen och lugnet.
Ljunghusen ligger i Vellinge kommun på Falsterbonäset, väster om Höllviken och öster om Skanör. Orten består främst av tre delar: Ljungskogens strandbad, området norr om länsväg 100 samt området mellan kanalen och Storvägsområdet. Ljunghusens långa fina sandstrand lockar badsugna från närliggande orter på sommaren.
Något annat som lockar många till Ljunghusen är golfbanan som är en av Sveriges bästa och som även blivit utsedd till en av Europas bästa banor. Ljunghusens GK har fått 18 poäng av 20 möjliga i Peugeot Golfguide tillsammans med Barsebäcks mästerskapsbana, Falsterbo GK och Halmstad GK i Sverige. Ljunghusen sägs även vara en av Sveriges svåraste banor, det är en äkta links- och hedbana vackert belägen vid Östersjön. Stora delar av banan ligger dessutom i ett naturreservat. Golfklubben är också känd för sin restaurang som serverar både lunch och à la carte i toppklass.
Storvägsområdet kallas den västligaste delen av Ljunghusen som nås genom Storvägen. Området är till stor del unikt eftersom det består av grusvägar utan belysning. Bebyggelsen är gles och de flesta villorna har stora tomter eftersom det förr fanns regleringar över hur nära vägen husen fick ligga. Detta ger området en skogskänsla. Det finns en hel del olika intresseföreningar som Villaägarföreningen, Vägföreningen, Vattenföreningen, Bastuföreningen, Badhytternas Vänner samt förening för bouleintresserade, tennisförening och viltvårdförening.
Ett mysigt bageri serverar goda bakverk året om. Här är köerna långa på sommarmorgnarna innan det bär av till stranden. Restaurangutbudet har ökat de senaste åren i området så du kan njuta av en god middag, utan att behöva åka in till Malmö. När du vill ta dig in till stan är bussförbindelserna mycket goda.
Vill du köpa, sälja eller värdera bostad i Ljunghusen? Kontakta Bjurfors mäklare i Höllviken! Passa också på att anmäla dig till vår kostnadsfria söktjänst Boagenten som hjälper dig att hitta ditt drömboende.
Kontakta mäklaren om du behöver hjälp att ta fram en boendekalkyl.
När du köper din bostad genom Bjurfors kan du ansöka om bolån till en förmånlig ränta hos våra banksamarbetspartners Söderberg & Partners och SEB.
Ansvarig mäklare