-
Köpa
Köpa -
Sälja
Sälja - Hitta bostad
- Skapa bevakning
- Hitta mäklare
Högt och fritt – precis vid Älvsjögränsen. Fina uteplatser!
Snättringe, Huddinge
*Areauppgifter enligt taxeringsinformationen
På Förhand ligger bostäder som av olika anledningar inte är ute till försäljning just nu men som kan komma att säljas om förutsättningarna är rätt.
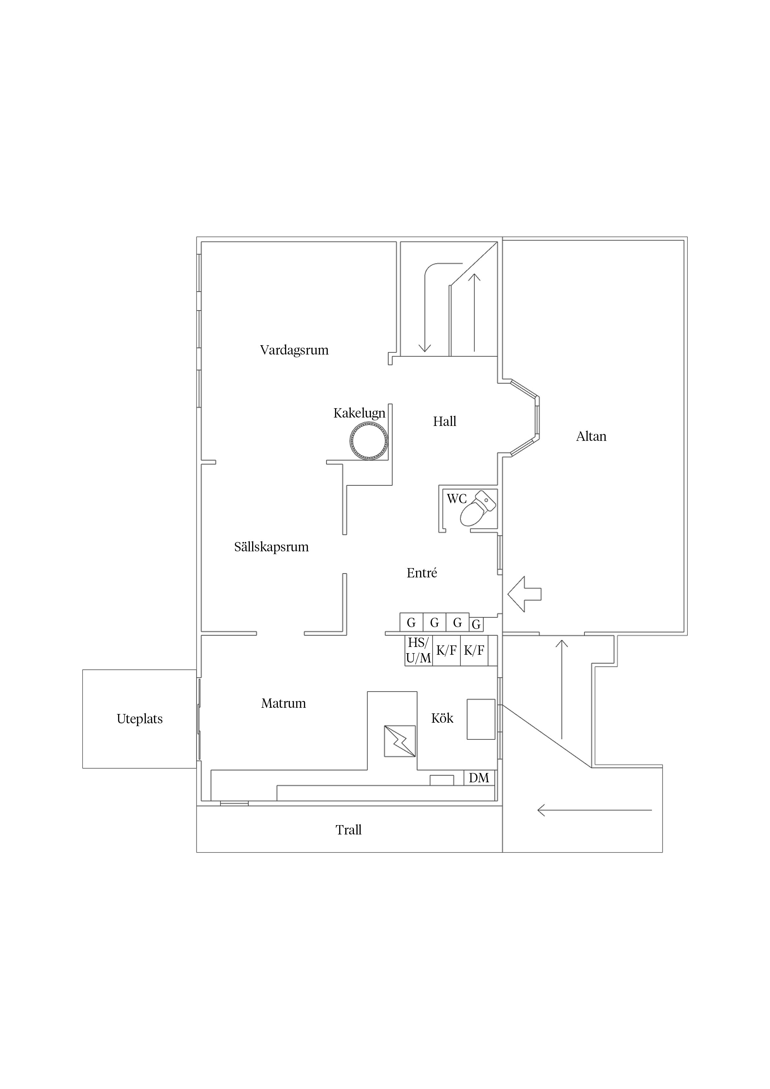
Välkommen till denna charmiga villa i Huddinge, där modern komfort möter idyllisk natur. Här bor du i en rofylld miljö med lummig grönska runt knuten och samtidigt nära stadens alla bekvämligheter. Bostaden är helt renoverad och är i väldigt fint skick
Huset är smakfullt uppfört i klassisk stil med gul fasad och vita detaljer. Det erbjuder flera våningsplan, generösa sällskapsytor och stora fönsterpartier som släpper in rikligt med ljus. Fastigheten är högt belägen med fin utsikt, härligt solläge och ett insynsskyddat läge som skapar en känsla av avskildhet. Från de rymliga terrasserna, altanen och balkongen njuter du av sol hela dagen på din uteplats samt den natursköna omgivningen.
Det stilfulla köket blir snabbt hemmets hjärta – här finns vikdörrar med glasinfattning som leder direkt ut till husets baksida och en mysig uteplats. I anslutning till köket finner du vardagsrummet med en charmig kakelugn och en fungerande eldstad som skapar både värme och stämning under årets kalla månader. Självklart är det vattenburen golvvärme på bottenvåningen som drivs av en bergvärmepump med garantier kvar vilket ger låga driftskostnader ihop med 3-glas energifönster.
Trädgården är vackert anlagd i flera nivåer med stenmur, gångar och gröna ytor – perfekt för den trädgårdsintresserade eller för dig som bara vill koppla av i lugn och ro. På tomten finns gott om p-plats för flertalet bilar, en friggebod och en isolerad attefall för extra förvaring och hobbyarbeten
Utöver huvudbyggnaden finns ytterligare en fullt utrustad minivilla avskild på tomten, vilket ger fantastiska möjligheter för uthyrning, generationsboende eller för dig som vill driva en egen verksamhet hemifrån.
Läget – precis på gränsen till Älvsjö med Älsjöskogens naturreservat och med närhet till Långsjön som erbjuder både bad, lekplats och fina promenadstråk. Här får du det bästa av två världar: lugn och natur i kombination med närheten till kommunikationer, skolor och butiker.
Ett hus i så gott skick att du bara behöver flytta in!



Hugin 6
*Areauppgifter enligt taxeringsinformationen
Fastigheten är högt belägen med fin utsikt, härligt solläge och ett insynsskyddat läge som skapar en känsla av avskildhet. Från de rymliga terrasserna, altanen och balkongen njuter du av sol hela dagen på din uteplats samt den natursköna omgivningen.
1986 Tilläggsisolering av huset samt ny fasad
1988 Grävt ur och dränerat grunden, nytt spärrskikt på källarmurar,
isolerat med dubbla lager isolerskivor
1989 Nytt tak och takfotslådor i plåt
1990-1992 Markhöjning och utplaning nedre del av tomt samt trämur mot
gatan
1991 Plantering av blåen och Thujor i uppfart
1992 Tillbyggnad av kök
1992 Friggebod
1993 Nya elcentraler
1993 Tillbyggnad dusch, tvätt & allrum
1994 Tillbyggnad altan
1995 tidigare kök görs om till entre´ med toalett och golvvärme
1995 Tidigare entre´ görs om till hall med burspråk
1995 Centraldammsugare i alla våningar
1995 Tillbyggnad altantak
1996 Ny bredare balkong längs hela huset
1997 Ombyggnadion balkongdörr + fönster till vikdörrar i glas
1998 Kullerstensmurar och thujor på baksida och gavel
1999 uteplats baksida med klinker och låga kullerstenmurar
1999 ombyggnad kök mot baksida - vikdörrar i glas mot uteplats
1999 Borrat och installerat bergvärmepump
2000 Renovering golv i kök och hall, vattenburen värme i väggar och
golv ersätter tidigare väggradiatorer
2001 Renoverat i källare: klinkergolv, bastu, gillestuga, isolerat,
vattenburen värme
2002 Renoverat i källare: sovrum med egen entre och toalett
2003 Terrass gavel
2005 Glasräcke på delar av balkong
2007 Gäststuga
2011 Uppfarten på tomten armerad med grusarmering
2013 Renovering trapp BV till ÖV
2014 Attefall
2014 murad mur mot gatan med belysning
2014 Villafiber
2015 Nya 3-glas fönster BV och ÖV
2016 bytt altantak
2016 nytt plåttak gäststuga
2017 Helrenoverat badrum med vattenburen värme för golv och
handdukstork, väggradiator bort
2018 Renoverat golv hall ÖV nu med vattenburen golvvärme,
väggradiator bort
2019 Ny IVT bergvärmepump, Full garanti på IVT VP Kompressor tom
20290108
2020 Ny entré trapp från uppfarten
2021 renoverat sovrum och toalett i källare, vattenburna radiatorer
samt handdukstork på toaletten
2022 Renoverat kök och bytt ALLT, bänkar,skåp, vitvaror, fläkt med
extern fläktmotor utomhus, bänkskivor i keramik
2022 ny centraldammsugare installerad
2022 Nytt bastuaggregat
2023 Renoverat vardagsrum och sällskapsrum nu med vattenburen
golvvärme
2023 renoverat trapp & trapphus ned till källare
2024 Terrass framsida
2024 Inkommande vatten omgjort till 3-kretssystem med elektonisk
säkerhetsbrytare för huset
2024 Renovering av sovrummen i ÖV
2025 Renovering hall i källare
Balkong och trädäckad altan
Kommunalt vatten, Kommunalt avlopp.
Stadsplan (1942-11-27)
Fiber
Detta är nuvarande ägares driftskostnader och kan variera bl.a. beroende på hur många personer som ingår i hushållet samt vilka avtal man väljer. I kostnaden för hushållsström/el ingår kostnaden för uppvärmning. Till driftkostnaden tillkommer kostnad för villaförsäkring.
Husets enligt mätning = 121+78 kvm. Areauppgifter enligt taxeringsinfo:123+50 kvm + 22 kvm (BOA). De 22 kvm avser "mini-villan.
Det finns 15 st pantbrev uttagna om sammanlagt 1 997 000 kr
Snättringe är ett populärt och familjevänligt villaområde i Huddinge, söder om Stockholm. Här bor cirka 7 700 invånare i omkring 3 000 hushåll. Här finns friliggande villor, radhus och bostadsrätter i en trivsam och grönskande miljö – perfekt för dig som söker naturnära boende i Huddinge med stadens bekvämligheter på nära håll.
Området uppskattas för sitt lugna läge, närhet till naturen och goda kommunikationer mot både Huddinge centrum och Stockholm city.
Snättringe ligger i nordvästra Huddinge, mellan Stuvsta, Segeltorp, Fullersta och Långsjö. Området sträcker sig från järnvägen vid Stuvsta centrum i öster till Lövdalsvägen i väster.
Skolor, närservice och vardagsliv
Snättringe erbjuder ett tryggt boende för barnfamiljer. Här finns flera grundskolor, förskolor och lekparker.
I Snättringe finns en välsorterad livsmedelsbutik. För mer shopping och service ligger Huddinge centrum, Kungens kurva, Skärholmen C och Stuvsta centrum bara några minuter bort med bil eller buss.
I Stuvsta finns även pendeltågsstation, apotek, vårdcentral, bank och flera restauranger.
Ett stort plus med att bo i Snättringe är närheten till Långsjön – en populär badsjö med både brygga och sandstrand. Här kan du bada, paddla, åka skridskor vintertid eller njuta av en middag på restaurangen vid Långsjöbadet med utsikt över vattnet.
För den idrottsintresserade ligger Källbrinks idrottsplats inom gång- eller cykelavstånd, med möjligheter till fotboll, friidrott, tennis, orientering och motion.
Intill området breder Gömmarskogens naturreservat ut sig – ett variationsrikt friluftsområde med motionsspår, ridvägar, leder och badsjön Gömmaren.
Här kan du vandra bland ekbackar, tallskog och blåbärsmarker, fiska med fiskekort eller plocka svamp under säsongen.
Kommunikationer och tillgänglighet
Snättringe har utmärkta kommunikationer. Flera busslinjer går till Huddinge centrum, Fruängen, Kungens kurva och Skärholmen.
Från Stuvsta station tar pendeltåget dig till Stockholm city på cirka 13 minuter.
För bilburna går det snabbt att nå E4:an både norrut och söderut – cirka 20 minuter till centrala Stockholm och 25 minuter till Södertälje.
Köpa, sälja eller värdera bostad i Snättringe? Kontakta våra Bjurfors mäklare i Huddinge! Passa också på att anmäla dig till vår kostnadsfria söktjänst Boagenten som hjälper dig att hitta ditt drömboende.
Kontakta mäklaren om du behöver hjälp att ta fram en boendekalkyl.
När du köper din bostad genom Bjurfors kan du ansöka om bolån till en förmånlig ränta hos vår samarbetspartner SEB.
Ansvarig mäklare