-
Köpa
Köpa -
Sälja
Sälja - Hitta bostad
- Skapa bevakning
- Hitta mäklare
Solsäker 2:a med altan och egen tomt
Vistaberg, Huddinge
*Vatten, Kabel-tv, bredband, sophämtning samt förråd
**Enligt bostadsrättsföreningen
Anmäl dig gärna till visningen
På Förhand ligger bostäder som av olika anledningar inte är ute till försäljning just nu men som kan komma att säljas om förutsättningarna är rätt.
Inom kort säljs denna 2:a med soligt läge. Lägenheten är belägen i fastighet från 2015 vilket gör att den fortfarande upplevs nybyggd och fräsch med moderna och fina ytskikt. Underbar altan och tomt mot södervänd grön baksida som erbjuder många soltimmar.
Invändigt har lägenheten ett fint skick med genomgående parkettgolv/klinker och ljust målade väggar. I lägenheten finns ett påkostat FTX system med till- och frånluftsventilation och värmeåtervinning vilket skapar god luftkvalitet.
Bra förening som agerar proaktivt genom att se över avtal med olika entreprenörer för att spara in på kostnader. Istället har man gjort extraamorteringar (1 miljon under 2022) för att hålla månadsavgifterna på en rimlig nivå.
Lägenheten är belägen i trädgårdsstaden Vistaberg. Här blandas villor, parhus, radhus och flerbostadshus med ägande- eller bostadsrätt byggda längs vägar och alléer. Här finns nybyggda förskolor, skolor och lekplatser. Med bussen tar det endast ca 8 minuter till Huddinge C för vidare transport mot stan. Önskar du istället komma ut i naturen finns Gömmarens naturreservat en cykeltur bort. Ett nyare gym finns på gångavstånd. Joggingspår och föreningslivet vid Källbrinks IP erbjuder allehanda sportaktiviteter såsom tennis, padel, orientering, fotboll och friidrott.
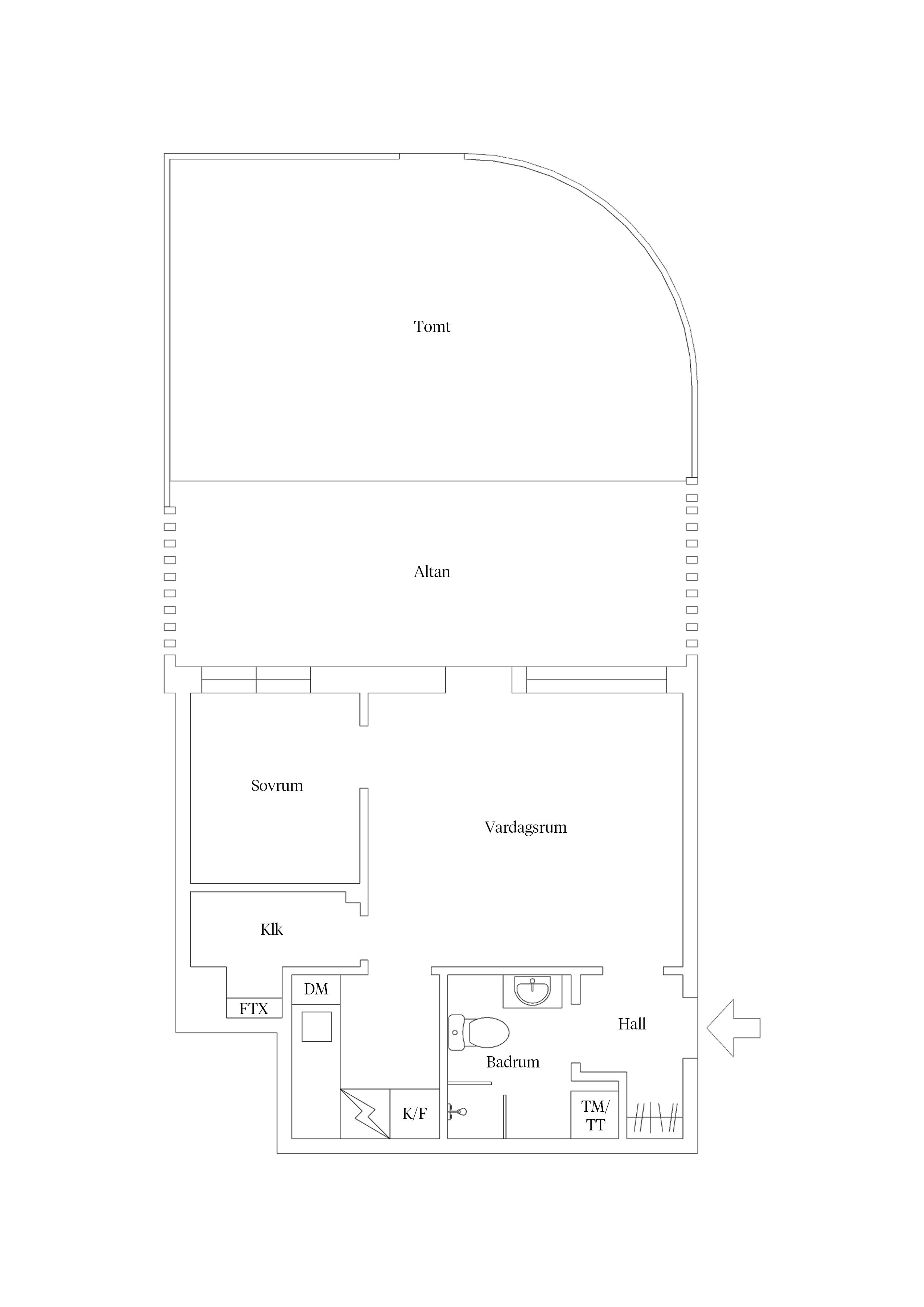
HALL
Parkettgolv och ljust målade väggar. Plats för avhängning.
BADRUM
Helkaklat badrum med klinkergolv. Dusch med glasväggar. Tvätthörna med tvättmaskin.
VARDAGSRUM
Ljust vardagsrum med parkettgolv och ljust målade väggar. Här finns plats för både soffa och matbord. Utgång till uteplats med tomt och mycket sol. I anslutning till vardagsrummet finns även en klädkammare.
UTEPLATS
Härlig uteplats med stenläggning och gräsyta. Uteplatsen vetter mot söder vilket gör att den erbjuder mycket sol.
KÖK
Praktiskt arbetskök med vita köksluckor och svart kakel ovan arbetsbänk. Här finns spishäll, ugn, fläkt, diskmaskin och kyl/frys.
SOVRUM
Parkettgolv och målade väggar.



Planlösning
*Enligt bostadsrättsföreningen
Vatten, Kabel-tv, bredband, sophämtning samt förråd
Ett förråd hör till lägenheten. Finns på nr 40. Det finns cykelförråd och barnvagnsförråd.
Stor uteplats med altan och egen tomt
I föreningen finns 45 st parkeringsplatser, med och utan el-uttag. Av dem är 10 st för laddboxar. Även handikapplatser finns. Parkering kostar 500 kr/mån med motorvärmaruttag samt 400 kr/månad för platser utan el-uttag och 1 000 kr för laddbox uttag.
Föreningen är ansluten till bredband, TV och telefoni via Telia (fiber)
Föreningen är ansluten till bredband, TV och telefoni via Telia (fiber)
Bostadsrättens indirekta nettoskuldsättning baseras på föreningens skulder/lån minus föreningens räntebärande tillgångar och likvida medel. Beräkningen är gjord via Bopedia. För mer information kontakta ansvarig fastighetsmäklare.
Brf Vistabergs Allé består av 39 lägenheter i storlekarna 1-5 rum och kök belägna i 3 hus på Vistabergs Alle 38-42. Husen är byggda i 4 våningar.
Varje lägenhet har tillgång till ett eget varm isolerat källarförråd. Sopkärl finns vid parkeringen.
Husen värms upp av vattenburen fjärrvärme. Varje bostad har även en egen styrning av ventilationen via mekanisk från- och tilluft med värmeåtervinning (FTX system) och varje bostad kan reglera ventilationen efter behov och önskemål.
I och med att husen byggdes 2015 betalar föreningen inte någon fastighetsskatt de 15 första åren.
I föreningen finns 45 st parkeringsplatser, med och utan el-uttag. Av dem är 10 st för laddboxar. Även handikapplatser finns. Parkering kostar 500 kr/mån med motorvärmaruttag samt 400 kr/månad för platser utan el-uttag och 1 000 kr för laddbox uttag.
Bostadsrättsföreningen är ansluten till Telias IT-nät med central punkt i området. I lägenheterna byggs stjärnnät med dubbla RJ45 i alla bostadsrum vilka kan användas till data/telefoni/tv. Det tillkommer en obligatorisk kostnad på 228:-/mån för Kabel-TV.
Fin innergård med gräsmatta, bersåer, häckar och träd. Varje lägenhet har postlåda i entrén. Ytterdörrar med kodlås och ytterdörren mot gården även automatisk öppning via tryckknapp.
BUDGIVNING
Vi använder oss av öppen budgivning, vilket innebär att mäklaren löpande redovisar det högsta budet till budgivarna som då har möjligheten att bjuda över varandra. Mäklaren noterar samtliga bud med namn på budgivaren, tidpunkt och bud, samt eventuella villkor med budet.
Alla som deltar i budgivningen accepterar att fastighetsmäklaren lämnar ut budgivningslistan med budgivarnas namn och telefonnummer samt information om de bud som inkommer till säljare och köpare.
I gammal kulturbygd ligger moderna Vistaberg - ett mycket populärt bostadsområde framförallt för barnfamiljer, men också andra - med närhet till service och kommunikationer i Huddinge Centrum.
Vistaberg ligger mellan Glömsta (västerut) och Fullersta/Huddinge C (österut). Söderut avgränsar Glömstavägen området och norrut ligger Vistaskogen i kuperat område, högsta berg är 75 meter högt.
Vistaberg är bebott sedan 2000 år tillbaka. Det finns talrika fornlämningar från den äldre järnåldern. Första gången Vistaberg nämns i skrift är 1331, då den kallas Viestum. Ordet antas komma från vide, dvs "videstället".
På 1500-talet bestod bebyggelsen av två gårdar, varav en ägdes av Svante Sture den yngre. Kvar finns fortfarande den stora ladugårdsgrunden. Under 1600-1800-talen bedrevs jordbruk. Oftast var Vista ägd av storjordbrukare med flera andra gårdar.
På 30- och 40-talen styckades Vistas markområden, i likhet med andra gårdar, upp. Här byggdes fritidshus och villor utan kommunalt avlopp.
I västra delen av Vistaberg finns Lövsta Gård kvar med jordbruk och djurhållning (får, hästar, grisar och höns).
På 1990- och 2000-talet uppfördes ny bebyggelse med radhus, kedjehus, flerfamiljshus och fristående villor. En ny detaljplan antogs i början av 2000-talet, vilket möjliggjorde många fler nya bostäder i Vistaberg.
Första etappen blev Vistabergs Trädgårdsstad längs Vistabergs Allé. Här finns hus som vänder sina entréer mot gatan på klassiskt trädgårdsstadsmanér. Bakom husen finns gott om grönytor för de privata trädgårdarna. Bland naturliga kullar och stigar har det byggts par- och radhus, villor och flerbostadshus. En del av husen har en härlig utsikt över området. Flerbostadshusen har gemensamma utemiljöer, inramat av plank, bersåer och ytor för samvaro.
Vista Skogshöjd blir den sista etappen av utbyggnaden. Med Vistaskogen runt knuten byggs 300-400 nya bostäder och en förskola. Det blir stadsvillor, radhus, parhus och flerbostadshus med blandad upplåtelseform.
Ytterligare förslag finns i kommunen om utveckling av Vistaberg, närmare bestämt området mot Rosenhill och Huddinge C. Förslaget är ute för samråd. Avsikten är att Fullersta, Vistaberg och Huddinge C ska byggas ihop när det glest bebyggda Rosenhill förtätas. Även här planeras en förskola.
Det finns nu fyra förskolor i Huddinge, varav den senaste, Utsikten i norra Vistaberg, öppnades 2016.
Vistaberg har två egna skolor. Vistaskolan (F9) ligger i Trädgårdsstaden och byggdes redan i mitten av 50-talet, ritad av arkitekten Karl W Ottesen. 2004 kompletterades den med ytterligare byggnader. Intill Vistaskolan ligger Rosenhillskolan, som är till för elever med behov av särskilt stöd. Det finns ytterligare grundskolor i Fullersta, Glömsta, Källbrink och Huddinge C.
I Vistaberg har man nära till Huddinges fyra kommunala och två fristående gymnasieskolor liksom Södertörns Högskola i Flemingsberg.
Närmaste handelscentrum är Huddinge Centrum, med många butiker, restauranger, caféer och allmän service. Det är också nära till IKEA, Heron City och ett flertal kända stormarknader i ett av Europas största handelscentra, Kungens Kurva. Via Glömstavägen tar man sig ut till E4:an och Kungens Kurva/Skärholmen.
Det tar 15-30 minuter att promenera till Huddinge C. Med cykel är man där på 5-10 minuter beroende på var man bor. I Huddinge C finns pendeltågsstation. På ca 15 min är man inne i Stockholm C.
Buss går förstås också bra att åka till Huddinge C. Buss 714 går genom området och har kvartstrafik i rusningstid. Det finns flera linjer som trafikerar Glömstavägen. Linjerna går till Huddinge C, Huddinge Sjukhus, Masmo, Kungens Kurva och Skärholmen (T-bana röda linjen).
Vissa turer går till Flottsbro Friluftsområde via Glömsta. Med bil når man området på ca 10 minuter. I Flottsbro finns sommartid badplats, kanotuthyrning och servering. På vintern finns tre skidbackar och spår för långfärdsskridsko.
I Vistaberg har man nära till naturen och friluftsliv för motion och rekreation. Gömmarens naturreservat med klarvattensjön Gömmaren ligger på cykelavstånd. En cykelled på 6 km genom naturreservatet går till Kungens Kurva. Här finns stigar, elljusspår, cykel- och vandringsleder. Vid Lövsta Gård finns en ridskola för den hästintresserade.
Källbrinks IP ligger strax norr om Vistaberg och har motionsspår med ca 1,9 km elljus, en friidrottsanläggning, fotbollsplaner, rugbyplan, tennishall, m.m.
Vistaberg har under 2017 fått en ny lekplats för barnen, Honungsparken. Det är en större park som är tänkt för lek, sport och vila. Det finns gräsyta och en öppen dagvattenbäck. Parken är belyst och det finns ett cykelställ vid den östra ingången samt en del bänkar och picknickbord. Lekplatsen passar för barn i olika åldrar. Den har bondgårdstema och mycket är gjort i trä. Det finns gungdjur, klätterställningar med rutschkanor och klätternät, gungor, lek-torn, sandlåda med bakbord samt träskulpturer i form av djur och traktorer.
Köpa, sälja eller värdera bostad i Vistaberg? Kontakta våra Bjurfors mäklare i Huddinge! Passa också på att anmäla dig till vår kostnadsfria söktjänst Boagenten som hjälper dig att hitta ditt drömboende.
Kontakta mäklaren om du behöver hjälp att ta fram en boendekalkyl.
När du köper din bostad genom Bjurfors kan du ansöka om bolån till en förmånlig ränta hos våra banksamarbetspartners Söderberg & Partners och SEB.
Anmäl dig gärna till visningen
Ansvarig mäklare