-
Köpa
Köpa -
Sälja
Sälja - Hitta bostad
- Skapa bevakning
- Hitta mäklare
Med många sovrum och bra uthyrningslägenhet i ett lugnt barnvänligt område
Saltsjö-Boo, Nacka
*Enligt uppmätning
På Förhand ligger bostäder som av olika anledningar inte är ute till försäljning just nu men som kan komma att säljas om förutsättningarna är rätt.
Ljusa sociala ytor och många bra sovrum. Stora soliga uteplatser, växthus, gräsmatta samt uthyrningsdel, 2 rok. Nära förskola, badsjö och snabb buss.
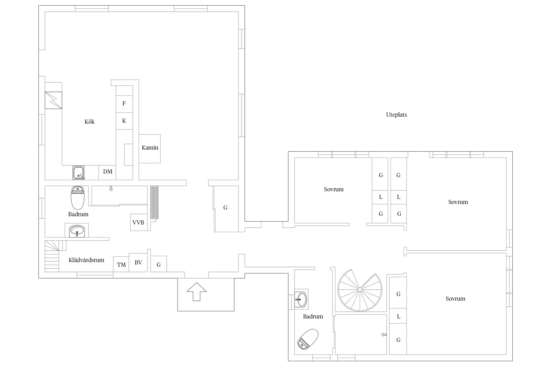
Hus om totalt 221 kvm (209 + 12 kvm) beläget i ett populärt, centralt och barnvänligt villaområde. Bostaden välkomnar med sina ljusa sociala ytor och många luftiga sovrum. Köket med intilliggande matsal och vardagsrum har fint ljusinsläpp från de stora fönsterpartierna i olika väderstreck. Altandörrar bjuder ut till härliga uteplatser i olika sollägen. Bostadens många rum har bra förvaring i garderober och de luftiga rummen har genomgående ljusa målade eller tapetserade väggar. Hemmet har ett stilrent och rymligt kök som är fullt maskinellt utrustat med kvalitativa vitvaror. Här finns bra med förvaring i köksskåp och generöst med arbetsbänkar. Köket har en fin öppen planlösning intill matsalen med det intilliggande vardagsrummet där en eldstad även ger en extra mysfaktor. Huset värms upp via bergvärme och har även nya installerade solceller på taket för en extra god ekonomi. Huset har två nya stilrena badrum, ett per våningsplan. Totalt finns idag 6-7 sovrum i bostaden, varav 3 på entréplan. Vid husets ena gavel nås även en uthyrningslägenhet som passar lika bra att nyttja som en generationsbostad. Lägenheten har ett stort allrum med sovrumsdel och kök samt badrum med dusch och intilliggande tvättstuga.
Huset kantas av flera mysiga uteplatser i olika sollägen. På den stora trädäckade insynsskyddade altanen finns ett härligt utomhusspa intill den grönskande trädgården med fint växthus och en lekvänlig gräsmatta. Den generösa altanen har ett högt soligt och privat läge med eftermiddags och kvällssol.
Här bor familjen nära fina naturområden samt hav och mysiga badsjöar. Inom kort gångavstånd nås områdets lekplats och även en populära förskola, samt att du även har nära till flera bra skolor och många olika fritidsaktiviteter. Inom sju minuters promenad når du snabba bussar med täta turer in till City. Här bor familjen bekvämt med en omedelbar närhet till det mesta!



Entréplan
Vindsplan 1
Vindsplan 2
Nedre plan (Lägenheten)
Lännersta 24:4
*Enligt uppmätning
*1979 om och tillbyggnad
Samfälligheten Nacka Lännersta S:9 Avser gemensam infartsväg med fastighetens närmsta grannfastigheter.
Radonmätning utförd 2024 -10-25. Normalt radonvärde uppmätt, under gällande gränsvärde om 200 bq, protokoll finns att tillgå.
2005 Huset förvärvas av nuvarande ägare, för utom nedanstående renoveringar har ett löpande underhåll ägt rum.
2005 Tvättstuga renoveras.
2006 Taket läggs om på husets nyare del.
2006 Badrum och kök på källarplan renoveras.
Bergvärme installeras.
2014 Kök renoveras.
2015 Ena badrummet renoveras.
2016 Andra badrummet renoveras.
2017 Taket läggs om på husets äldre del.
2022 Invändiga ytskikt renoveras, målning av vardagsrum, kök samt sovrum.
2023 Fönster kittas om.
2023 FTX-ventilation installeras.
2023 Solceller installeras.
2024 Huvudentrén förses med ny ytterdörr.
Växthus
Insynskyddade uteplatser i olika sollägen, den ena är även skyddad under tak.
Kommunalt vatten, Kommunalt avlopp.
Trädgårdstomt med gräsmatta, grönska och fruktträd.
Parkeringsyta med plats för flertal bilar intill huset.
Detaljplan (2020-12-14)
Samfällighet: Nacka Lännersta S:9
Last: Avtalsservitut Vattenledning Mm, 01-IM8-32/2.2
Last: Officialservitut Vatten-Och Avloppsledning, 01-BOO-343.1
Avtalsservitut Vattenledning Mm
I posten uppvärmning ingår även posten för el.
I posten för VA ingår även posten renhållning.
Försäkring tillkommer.
Bostadsområdet är mycket lugnt och består mestadels av villor samt radhus och är mycket barnvänligt med ett bekvämt gångavstånd till det mesta. Här bor familjen nära till mysiga badsjöar, skog, bra förskola och skola, matbutik och köpcentrum. Kommunikationerna från bostaden är mycket goda. Det finns busshållplats inom nära räckhåll vid Telegramvägen. Nära bostaden finns en populär förskola, Källan. Bussarna tar dig in till City (Slussen) inom ca 20 min. Bussarna avgår ca vart femte minut under rusningstrafik. Det finns även direktbussar som trafikerar direkt in till Cityterminalen vilket är perfekt för den som reser ofta. Här trivs familjen!
Saltsjö-Boo öster om Stockholm är fint beläget med närhet till skärgården. Ett centralt men vackert och naturskönt område. I närhet till bostaden finns flertal fina badsjöar bland annat Kocktorpssjön och Glasbrukssjön båda med fina skogsspår samt Bagarsjön som alla nås inom 10 minuters promenad. Vid sjöarna finns bland annat barnvänliga badstränder, bryggor och hopptorn. Vintertid plogas Bagarsjöns is med spår för skridskoåkning. Eriksvik och Boo Gård erbjuder bad i saltare vatten. Det finns ett välbesökt café vid vackra Boo Gård där även midsommarfirande hålls. För den som vill ta en promenad, cykeltur eller joggingtur finns flera fina vägar och skogsspår i närområdet. Velamsunds naturreservat, som är närbeläget, är ett av Nackas största friluftsområden ca 700 hektar stort. Området omsluter Velamsundsviken och Insjön. Här hittar man bl.a. Friluftsgård, rastlokal, omklädningsrum och duschar, samt aktiviteter som Nacka Naturskola och Nacka ridklubb. Långa raden, huslänga från 1800-talet med restaurang, glashytta och butik, ett ca 2,5 km långt elbelyst motionsspår för löpning och skidåkning, Nacka golfklubb med 18-håls golfbana och drivingrange finns på bekvämt avstånd. Flertal båtklubbar finns runt omkring i Saltsjö-Boo för den båtintresserade.
Kommunikationer
Flertal bussar med mycket täta turer tar dig till och från Slussen och Cityterminalen. Från bostaden är det en kort promenad till busshållplats vid Telegramvägen.
Service
Orminge centrum med allehanda service finns inom kort avstånd. köpcentrumet och dess omgivningar genomgår positiva förändringar och moderniseringar framöver. Här finns bl.a. mataffärer, bibliotek, restaurang, café, gym, vårdcentral, tandläkare mm. I Nacka finns även Sickla köpkvarter och Nacka Forum med sitt stora utbud av affärer, service och bio och restauranger.
Barnomsorg
Flera förskolor och daghem finns i området, närmast är det till Källans förskola på Bragevägen. I närområdet finns flera bra skolor som Björknässkolan F-9, Myrsjöskolan åk 1-9, Boo Gårds skola och Lännersta Skola med flera. För den sportintresserade finns många idrottsaktiviteter inom nära håll, Bovallen, Myrsjö sporthall, Björknäs IP med flera.
Läs mer på Nacka kommuns informativa hemsida. www.nacka.se
Det finns 32 st pantbrev uttagna om sammanlagt 4 691 000 kr
I Saltsjö-Boo fanns från början nästan enbart fritidshus, men på senare år har stora delar av området förändrats och satsningar har gjorts på kommunalt vatten och åretruntboende. Här hittar du vackert natursköna miljöer nära hav, bad och båtliv. Saltsjö-Boo är omringat av vatten, de norra delarna utgörs av innerskärgård och i söder finns Baggensfjärden och ytterskärgården. Det finns även gott om badvänliga insjöar som plogas till skridskobanor på vintern, och du har möjlighet till ett härligt friluftsliv i den vackra naturen. I närliggande Orminge centrum finns ett stort utbud av butiker, restauranger och all annan tänkbar service. Kommunikationerna är bra och du når snabbt och lätt Stockholms innerstad med buss eller båt.
Köpa, sälja eller värdera bostad i Saltsjö-Boo? Kontakta våra Bjurfors mäklare i Nacka! Passa också på att anmäla dig till vår kostnadsfria söktjänst Boagenten som hjälper dig att hitta ditt drömboende.
Kontakta mäklaren om du behöver hjälp att ta fram en boendekalkyl.
När du köper din bostad genom Bjurfors kan du ansöka om bolån till en förmånlig ränta hos vår samarbetspartner SEB.
Ansvarig mäklare
Extra kontaktperson