-
Köpa
Köpa -
Sälja
Sälja - Hitta bostad
- Skapa bevakning
- Hitta mäklare
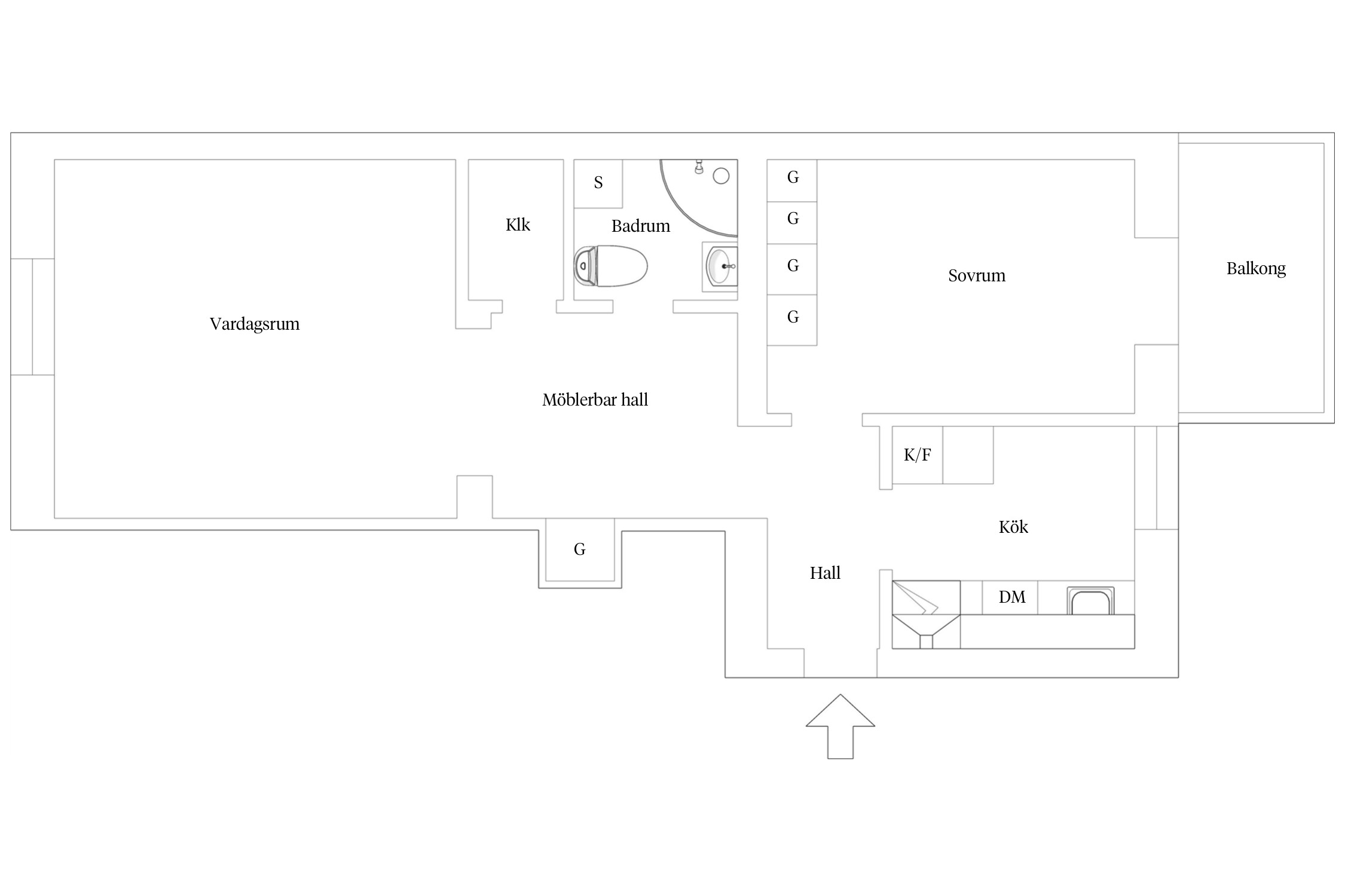
På attraktiv adress nära Mariatorget finns denna 2,5:a med balkong och möjlig trea!
Södermalm Maria, Stockholm
*Ink. Värme och vatten.
**Enligt lägenhetsförteckningen
2 rok enligt lägenhetsförteckningen
Fyll i formuläret nedan så hjälper vi dig!



Södermalm är ett av Stockholms mest populära områden med flera olika centrum, här finns något för alla. Söder erbjuder Stockholms första moské, Mosebacke, Münchenbryggeriet, Nytorget och den hänförande utsikten från Fjällgatan och Monteliusvägen.
Maria-området är ett av Södermalms absolut populäraste områden centrum i Mariatorget. Här finns alla restauranger du kan önska, populära butiker och prisbelönta caféer. Mariaberget är en av Stockholms vackraste platser med kullerstensgator och kulturhus. Längs Hornsgatan finns gallerier och hantverkare.
På Söder finns all tänkbar service, vårdcentral och läkarmottagning samt nära till Rosenlunds sjukhus, Ersta sjukhus och Södersjukhuset. Flera förskolor, skolor och gymnasium med olika inriktningar, både friskolor och kommunala.
Kommunikationerna är goda med tunnelbana, flera busslinjer och pendeltåg från Södra station. Slussen utgör en knutpunkt för kollektivtrafiken med Saltsjöbanan och i närheten går även färjorna till Djurgården.
Köpa, sälja eller värdera bostad på Södermalm Maria? Kontakta våra mäklare på Södermalm! Passa också på att anmäla dig till vår kostnadsfria söktjänst Boagenten som hjälper dig att hitta ditt drömboende.
Ansvarig mäklare
Extra kontaktperson