-
Köpa
Köpa -
Sälja
Sälja - Hitta bostad
- Skapa bevakning
- Hitta mäklare
Välkommen till denna välplanerade och rymliga etta med centralt läge!
Centrala Väsby, Upplands Väsby
*Inkl värme, vatten, Kabel-TV och bredband
**Areauppgifter enligt bostadsrättsförening
Öppen visning, välkommen! Föranmäl gärna ditt intresse.
En lägenhet för dig som ska flytta hemifrån eller för dig som behöver en övernattningslägenhet.
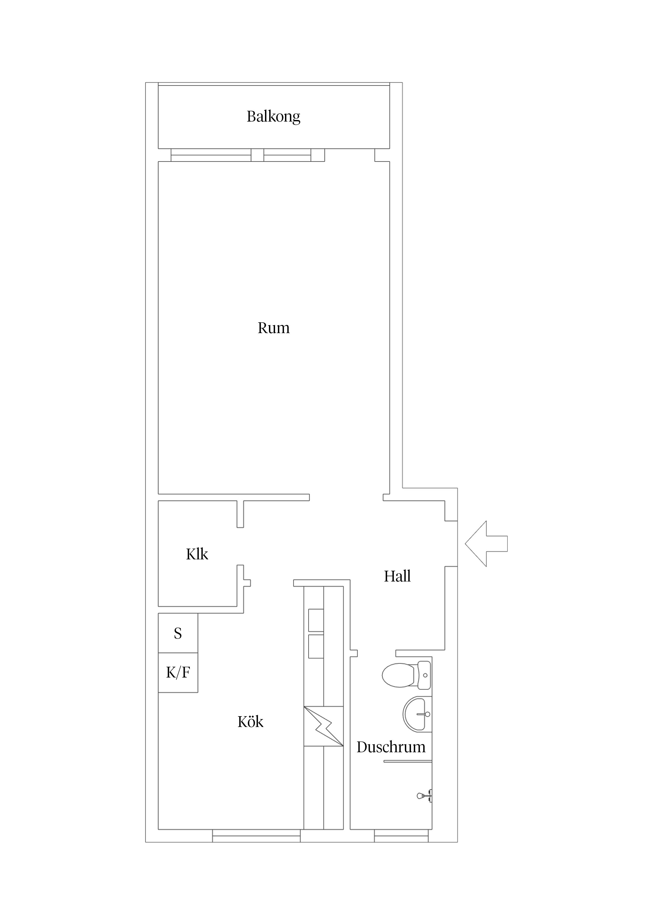
Ett stenkast från Väsby centrum och endast 5 minuters promenad från Väsby Station ligger denna välplanerade lägenhet med yteffektiva lösningar med välplanerad planlösning. När du kliver in i bostaden möts du av en rymlig hall. Från rummet som rymmer både soffa och säng når du den gedigna inglasade balkongen som ligger med utsikt över föreningens gård. Rummet har delats av med en skiljevägg för att separera sängen från övrigt möblemang. Välutrustat kök inrett i moderna färger och plats för ett mindre matbord med naturligt ljusinsläpp. Finns även en rymlig klädkammare i bostaden.
Här bor du mycket centralt med gångavstånd till Väsby C med dess stora utbud av butiker, restauranger och apotek bland annat. Goda kommunikationer runt hörnet och gångavstånd även till pendeltågsstationen som tar dig till såväl Stockholm C som Uppsala och Arlanda. Medleybadet ligger runt knuten och här finns bland annat äventyrsbad, gym och ishall och i intill ligger en minigolfbana. I källaren på huset finns förråd och två tvättstugor.
HALL
Stor och inbjudande hall. Kaklat golv och väggar målade i vitt. Plats för avhängning.
VARDAGSRUM/SOVRUM
Ljusa golv och målade väggar i vitt. Härligt fönsterparti och balkongdörr ger maximalt ljusinsläpp. Balkongen är inglasad(2024).
KÖK
Kaklat golv och målade väggar i vitt samt en fondvägg i tapet. Vita släta köksluckor och mörkt kakel ovan arbetsbänk. Spis med häll och ugn, spisfläkt och kyl/frys. Plats för matbord vid fönster som ger ett bra och naturligt ljusinsläpp.
BADRUM
Helkaklat duschsrum med kakel och klinker samt infällda spotlights i taket. WC, kommod, spegel och duschhörna med infällbara glasväggar.



*Areauppgifter enligt bostadsrättsförening
Inkl värme, vatten, Kabel-TV och bredband
Inglasad balkong med spotlights i taket (2024).
Bostaden är ansluten till kabelnät via ComHem.
Internet via kabel-TV. Internet ingår i månadsavgiften.
Se föreningens hemsida för mer info; <a href="http://www.brfvilunda.se/?page_id=157">http://www.brfvilunda.se/?page_id=157</a>
Bostadsrättens indirekta nettoskuldsättning baseras på föreningens skulder/lån minus föreningens räntebärande tillgångar och likvida medel. Beräkningen är gjord och baseras enbart på den senaste tillgängliga årsredovisningen. För mer information kontakta ansvarig fastighetsmäklare.
*Betalas av köpare
Bostadsrättsföreningen Vilunda HSB är en stor stabil förening med totalt 407 lägenheter som bildades 1958. Föreningen ligger mycket centralt i Upplands Väsby med närhet till Upplands Väsby Centrum samt Upplands Väsby Station. Från stationen kan du sedan ta dig till centrala Stockholm på mindre än 30 minuter, eller till Arlanda flygplats på mindre än 10 minuter!
För att bli medlem i Brf Vilunda krävs medlemskap i HSB. Huvudmedlemmen betalar en medlemsandel à 500:- och resterande i hushållet betalar ett familjemedlemskap à 500:- (återfås vid eventuellt utträde), men ni betalar endast en årlig medlemsavgift per familj à 300:-. Med hushåll avses personer som är folkbokförda på samma adress.
Månadsavgifterna höjs med 2 % 2026-01-01.
Kontakta föreningens styrelse för information om föreningens ekonomi.
Förvaltningen sker genom HSB. En medlemsavgift på 500 kr/medlem tas ut av HSB som en engångskostnad vid köp.
Inom cirka fem år (2030) takbyte och fläktar
2021/2022 - Bygge av övernattningslägenhet. Dränering västra sidan, Herrgårdsvägen 15-33.
2020 - Dränering och 4 st laddstolpar installerades.
2019 - Dränering mot Husarvägen under 2019 (Husarvägen 2-6 är redan dränerat).
2019 - Radiatorer i lägenheterna byttes ut under sommaren 2019.
2018 – Installation av fiber som ingår i avgiften, leverantör: Bahnhof.
2018 – OVK-kontroll på gång under hösten.
2018 – Håller på med energioptimering får att få bra koll på värmesystemet och en jämn fördelning till varje lägenhet.
2017 - Installation av nytt taggsystem.
2017 - Målning av trapphusen fortsätter samt planering av etapp 2 av yttre miljön.
2016 - Etapp 1 (innergård) av trädgårdsrenoveringen färdigställd.
2016 - Byte till rörelsestyrd belysning i trapphusen fortgår.
2016 - Dränering av fastigheten. 2015 - Viss målning av portarna på Husarvägen samt armaturbyte i samma portar.
2013 - Gamla P-automaterna har tagits bort och nu kan man betala med kort, byte till rörelsestyrd belysning i trapphusen, komplett genomgång av hela dag- och spillvattensystemet har genomförts.
2012 - Stambyte
2011 - Fönsterbyte samt att bytet av stamregelringsventiler har avslutats.
Föreningen har 116 garageplatser för 450 kr/mån, 500 kr/mån & 650 kr/mån beroende på typ av plats. Det finns även 160 parkeringsplatser, samtliga med möjlighet till elbilsladdare, utomhus: 250 kr/mån utan el och 300 kr/mån med el.
P-plats för MC: 100 kr/mån.
Separat kö som administreras av förvaltaren. Förvaltaren tar ut en administrativ avgift om 500 kr. Debitering för laddning av elbil och motorvärmare sker efter förbrukning.
Brf Vilunda har ett tecknat ett gruppavtal med ComHem som innebär att boende i Brf Bredband (upp till 100 Mbit från Tele2 via Fiber-LAN eller Fiber-Koax). Boende behöver själv beställa detta från Tele2 (tel. 90 222) och säljaren behöver även avsluta sitt abonnemang vid avflyttning
Trevliga gårdar mellan husen som erbjuder såväl grillplats som boulebana.
Det finns bastu, cykelförråd, källarförråd, biltvätthall, smörjhall och totalt 12 tvättstugor. Grovtvättstuga finns på Herrgårdsvägen 12.
Tvättstugorna ligger på Herrgårdsvägen 10, 12, 16, 24-26, 28-32, 34 och 101-103. I varje tvättstuga finns två tvättmaskiner, torktumlare, torkskåp, elmangel och strykbräda.
Föreningen har även en övernattningslägenhet som kan hyras av medlemmarna.
Föreningens hemsida.
www.brfvilunda.se
Föreningen har ett avtal med "Svibo" som genom ett digitalt medlemskort ger rabatt hos många butiker och företag i Upplands Väsby.
Välkommen att bo och trivas i Upplands Väsby. Här bor du nära naturen med goda pendlingsmöjligheter till Stockholm city. Oavsett om du vill bo i bostadsrätt, radhus eller villa så finns här många trevliga bostadsområden med både äldre och nyproducerade bostäder att välja mellan.
Upplands Väsby är en tätort i Uppland och centralort i Upplands Väsby kommun. Här finns goda möjligheter till ett rikt friluftsliv och du kan välja mellan flera olika aktiviteter. Runby backar är ett populärt friluftsområde i kommunens nordvästligaste delar.
I Väsby centrum finns flera olika butiker, matvaruaffärer, restauranger och all annan tänkbar service samt vårdcentral och kommunhuset. I närheten finns också Kulturhuset med biograf.
I Upplands Väsby finns flera olika skolor och förskolor samt Väsby nya gymnasium, klart till skolstarten 2011.
E4 och Ostkustbanan går genom Upplands Väsby. Du når Stockholm city med buss eller pendeltåg.
Köpa, sälja eller värdera bostad i Upplands Väsby? Kontakta våra mäklare i Upplands Väsby. Passa också på att anmäla dig till vår kostnadsfria söktjänst Boagenten som hjälper dig att hitta ditt drömboende.
Kontakta mäklaren om du behöver hjälp att ta fram en boendekalkyl.
När du köper din bostad genom Bjurfors kan du ansöka om bolån till en förmånlig ränta hos våra banksamarbetspartners Söderberg & Partners och SEB.
Öppen visning, välkommen! Föranmäl gärna ditt intresse.
Ansvarig mäklare