-
Köpa
Köpa -
Sälja
Sälja - Hitta bostad
- Skapa bevakning
- Hitta mäklare
Med utvecklingspotential Kristiansborg
Kristiansborg, Västerås
*Areauppgifter enligt taxeringsinformationen
Kontakta mäklaren för mer information gällande budgivningen.
Välskött - för en / två familjer - eller företagaren - i 30-talsvilla -Kristiansborg
Välkomna till denna friliggande villa i två plan samt hel källarvåning och stor kallvind. Idag är boendet utformat och inrett med två mindre lägenheter om vardera 45 kvm i horisontalplan på entrévåningen
och en större lägenhet på det övre planet om ca 95 kvm. Huset har oinredd källarvåning med garage i samma huskropp samt en stor oinredd kallvind. Totalt sju rum och kök med en taxerad bo-yta om 185 kvm och 94 kvm bi-area. Stor flexibilitet för ny ägare som med relativt enkla medel kan konvertera huset till ett boende för en familj. I annat fall en fastighet lämplig för uthyrning eller som generations-boende för två familjer. Ett gediget hus med ursprungligt byggnadsår 1939.. Stor friköpt hörntomt om 933 kvm. Huset är besiktat innan försäljning.
Fastigheten är mycket attraktivt och centralt belägen med gångavstånd till Rocklunda, universitetet ,skola, förskola, allmänna kommunikationer samt närservice.
Planlösning
Entréplan -
Välkomnande trapphus med halvtrappa upp till två lägenheter på entréplanet av huset. Till vänster innanför entrédörren leder trappa mot källarplanet.
I lägenhet (1) på halvtrappa till vänster möts du av en välkomnande möblerbar hall med trägolv och ljusa tapeter. I hallen finns wc/dusch med våtrums-matta på golv och vägg. Till höger ligger sovrum/vardagsrum utrustat med trägolv och omgivande tapeter. Rummet tillåter sedvanligt sov och/eller vardagsrums-möblemang.
Denna lägenhets kök i husets nordöstra hörn mot entrésidan är utrustat med ljusa köks-snickerier. Vita kakelplattor ovan bänk. Köksskåp, fläkt och diskho är bytt 2000-2004. Ytskikt via grå plastmatta och ljust målade väggar. Maskinell utrustning via rostfri spiskåpa och spis med ugn, mikrovågsugn och mindre kyl.
I Iägenhet (2) på halvtrappa till höger möts du av en välkomnande möblerbar hall med plastmatta och ljusa tapeter. I hallen finns wc/dusch med våtrums-matta på golv och vägg. Till vänster ligger vardagsrum utrustat med laminatgolv och omgivande tapeter. Rummet tillåter sedvanligt sov/vardagsrums-möblemang.
Lägenhetens kök i husets nordvästra hörn mot trädgårds-sidan är utrustat med ljusa äldre överskåp och vita kökssnickerier. Bruna kakelplattor ovan bänk. Ytskikt utgörs av en ljus plastmatta och ljusa väggar. Maskinell utrustning via rostfri spiskåpa och spis med ugn, mikrovågsugn och mindre kyl.
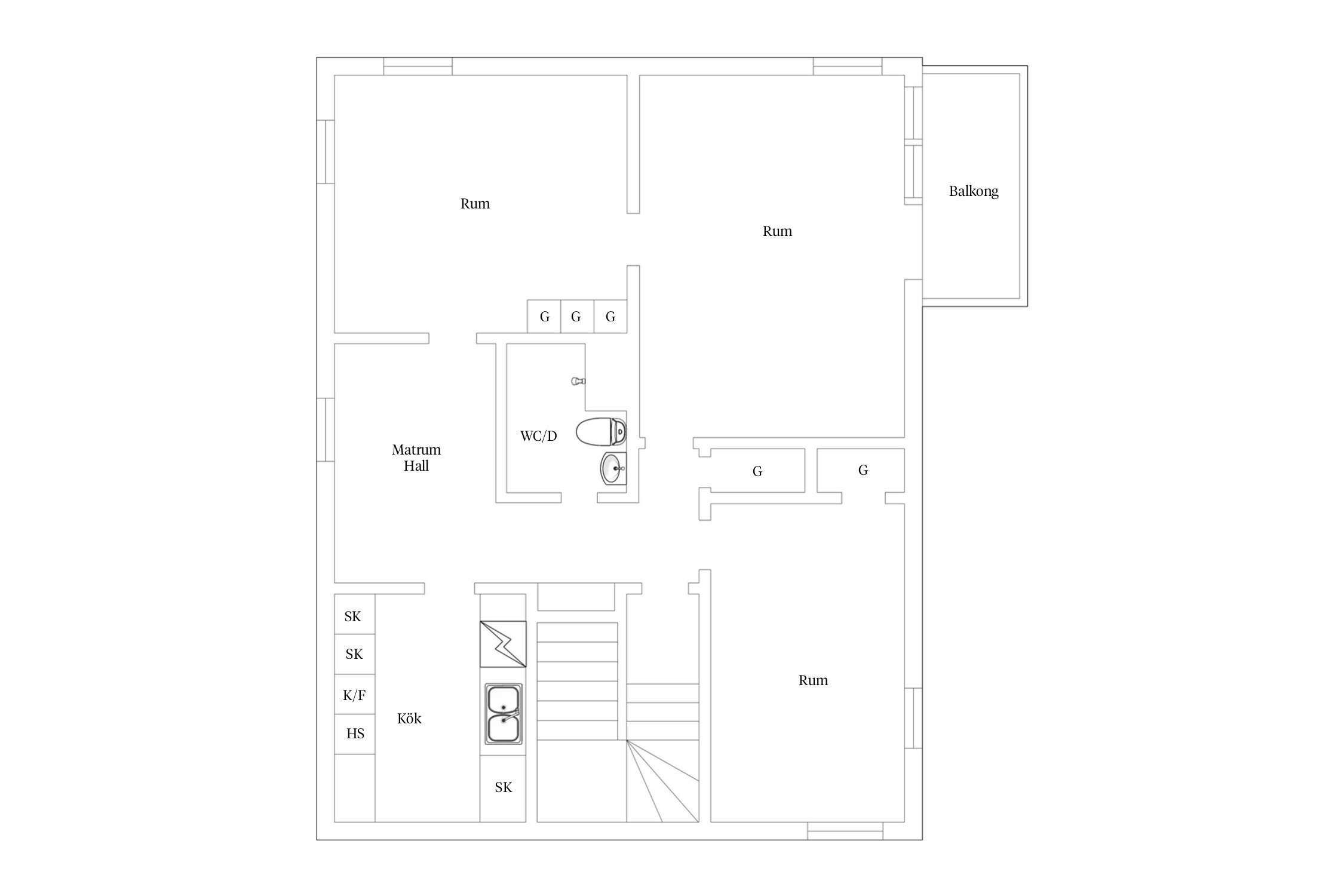
Övre plan:-
Utanför entrédörr till lägenhet (3) på det övre planer finns en dörr med trappa upp till en stor kallvind.
Lägenhet (3) har en rymlig välkomnade hall med gott om plats för avhängning av ytterkläder. Ytskikt i form av laminatgolv och ljusa väggar.
I hallen finns dusch/wc med våtrumsmatta golv och kaklade väggar. Utrustningen utgörs av handfat , spegelskåp, dusch-hörna samt WC.
Matrum i anslutning till hall utanför kök. Bakom matrummet i sydost ligger ett sovrum möblerat som allrum. Ytskikt i form av laminatgolv och ljusa väggar. Här finns garderober för bra förvaring.
Lägenhetens kök i husets nordöstra hörn mot entrésidan är utrustat med ljusa äldre överskåp och vita kökssnickerier. Röda kakelplattor ovan bänk. Ytskikt utgörs av en ljus plastmatta och ljusa väggar. Maskinell utrustning i form av spis med ugn, spisfläkt med kryddhylla och kyl/frys. .
På höger sida av lägenheten finner du lägenhetens andra sovrum. Ytskikt utgörs laminatgolv och ljus tapet.
Efter detta mot trädgårds-sidan ligger vardagsrummet med utgång till balkong i sydväst. Ytskikt i form av laminatgolv och tapetserade väggar.
Källarplan:
Källaren är oinredd med betonggolv och målade väggar.
Här finner du mycket bra biutrymmen i form av förråd, matkällare, garage, verkstad, pannrum och en rejäl tvättstuga med två tvättmaskiner och en äldre centrifug.



Planritning övre plan
Planritning entréplan
Planritning källarplan
Västerås 1:56
*Areauppgifter enligt taxeringsinformationen
*värdeår
Radonmätning utförd 2009 med ett medelvärde på 209 Bq.
ca 2006 Ny fjärrvärme-växlare.
2006 Nya 3-glas fönster
2009 Ny dränering och fukt-isolering.
Fristående pergola av äldre modell.
Uteplats i pergola på tomten.
Kommunalt vatten, Kommunalt avlopp.
Trädgårds-tomt med större delen på fastighetens insida.
Gott om uppställningsplats för fordon framför garage.
Garage i huskropp.
Avstyckningsplan (1936-04-09)
Stadsnät fiber i samtliga lägenheter.
Driftkostnader och elförbrukning är inhämtade från säljaren och bör endast ses som en uppskattning. Kostnaden kan variera och baseras på förbrukning och avtal.
Det finns 3 st pantbrev uttagna om sammanlagt 555 000 kr
Vill du köpa, sälja eller värdera bostad i Västmanland? Kontakta våra mäklare i Västerås! Passa också på att anmäla dig till vår kostnadsfria söktjänst Boagenten som hjälper dig att hitta ditt drömboende.
Här hittar du alla våra lediga bostäder till salu i Västmanlands län just nu!
Kontakta mäklaren om du behöver hjälp att ta fram en boendekalkyl.
När du köper din bostad genom Bjurfors kan du ansöka om bolån till en förmånlig ränta hos våra banksamarbetspartners Söderberg & Partners och SEB.
Kontakta mäklaren för mer information gällande budgivningen.
Kontakta mäklareAnsvarig mäklare