-
Köpa
Köpa -
Sälja
Sälja - Hitta bostad
- Skapa bevakning
- Hitta mäklare
Optimalt planerad med mysig balkong!
Skiljebo, Västerås
*I avgiften ingår värme och kallvatten. Obligatoriskt tillägg: Telia triple play (IP-telefoni, bredband och tv). ca 18 tv-kanaler, internetanslutning 1000/1000 Mbit/s, bredbandstelefoni. Kostnad 220 kr per månad. Total månadsavgift efter obligatoriska tillägg: 4807kr.
**Areauppgifter enligt bostadsrättsförening
Väldisponerad -Öppen planlösning -Estetiskt tilltalande kök - Rymligt balkong -Hiss - Toppmodern fastighet - Attraktivt och grönskande läge!
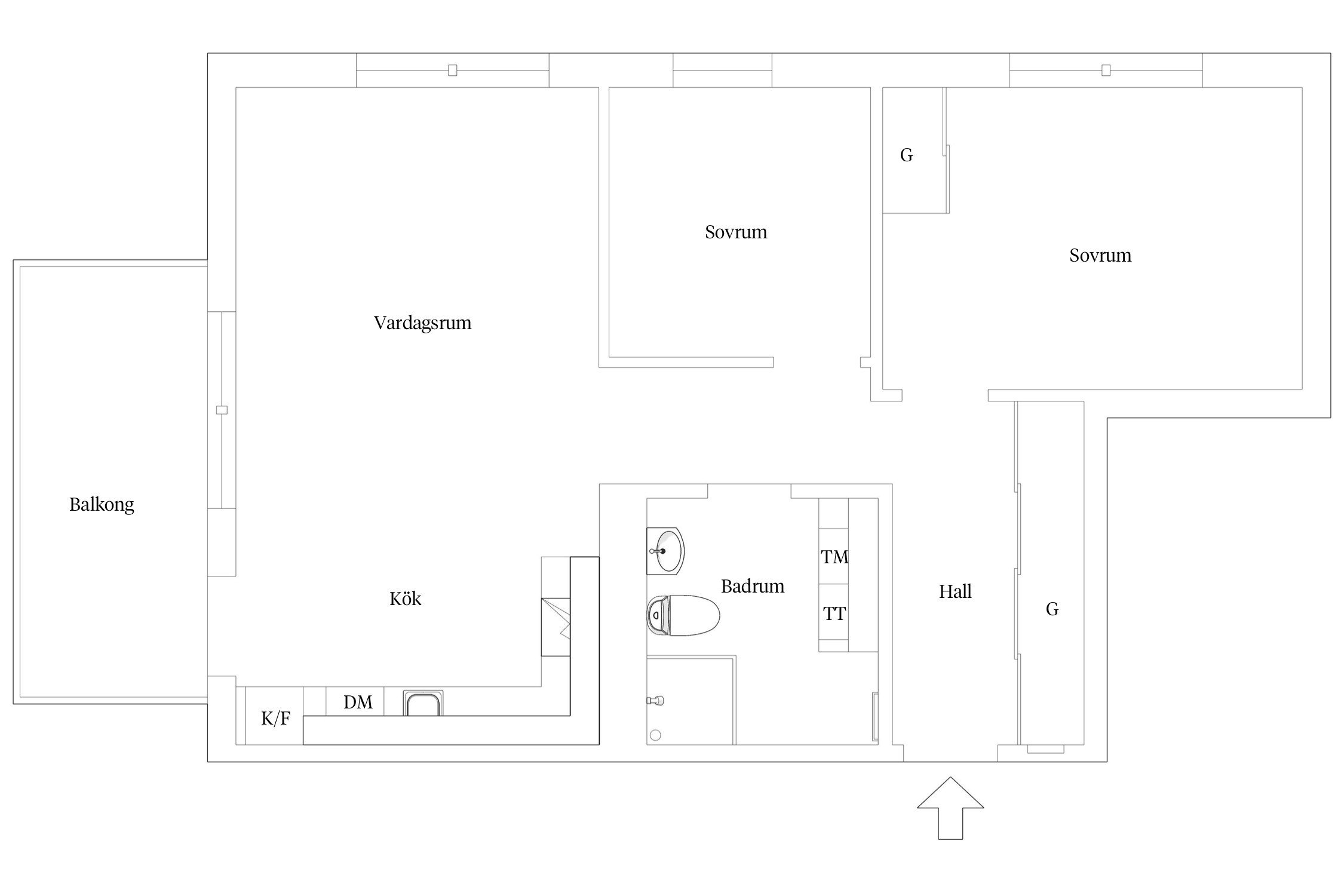
Hjärtligt välkommen till denna optimalt planerade 3:a om 64 kvadratmeter! Lägenheten karaktäriseras av genomgående hög fräschör, generöst ljusinsläpp samt mysig balkong med plats för sittgrupp. Utöver detta påträffas även väl tilltaget vardagsrum i öppen och social planlösning mot estetiskt tilltalande kök, helkaklat badrum med tvättmaskin och torktumlare, två rogivande sovrum samt hall med exemplarisk förvaring.
Stabil BRF med god ekonomi och fastighet i toppskick, byggår 2023. Lägenhetsinnehavaren disponerar över ett källarförråd i grannbyggnaden. Mycket attraktivt och lugnt läge på Skiljebo Äng, ett modernt kvarter mitt i ett etablerat och levande område. Närhet till centrum, skog och aktivitetspark. Bara ett stenkast bort från Skiljebo Äng ligger Skiljebo centrum. Här finns allt du behöver för en enkel vardag såsom matbutik, apotek, frisör, restaurang, gym och bibliotek. Västerås centrum endast ca 2,5 km bort.
Varmt välkommen på visning!
Välkomnande hall med säkerhetsdörr och exemplarisk förvaring via skjutdörrsgarderob. Ljusa ytskikt samt parkettbelagt golv (genomgående för hela lägenheten). I anslutning till hallen återfinns det stilrena badrummet med klinkerbelagt golv samt kaklade väggar. Arbetsyta samt förvaring via väggskåp. Utrustningen utgörs av dusch, handdukshängare, handfat med tillhörande kommod, spegel med belysning, tvättmaskin, torktumlare samt WC.
Vidare i lägenheten återfinns väl tilltaget vardagsrum med generöst ljusinsläpp från två väderstreck. Rummet tillåter vardagsrumsmöblemang samt matplats. Öppen och social planlösning mot estetiskt tilltalande kök med gott om förvaring bakom skåpluckor i sober kulör. Goda arbets- samt avlastningsytor med ovansittande vitt kakel. Maskinell utrustning bestående av häll, köksfläkt, inbyggnadsugn, inbyggnadsmikro, integrerad diskmaskin samt kyl/frys. Härifrån finner ni även utgången till den mysiga balkongen med plats för sittgrupp.
I övrigt två rogivande sovrum med trevligt ljusinsläpp samt genomgående ljusa ytskikt. Här fås plats med sedvanligt sovrumsmöblemang. Ena sovrummet erbjuder även goda förvaringsmöjligheter via skjutdörrsgarderob.



*Areauppgifter enligt bostadsrättsförening
I avgiften ingår värme och kallvatten.
Obligatoriskt tillägg: Telia triple play (IP-telefoni, bredband och tv). ca 18 tv-kanaler, internetanslutning 1000/1000 Mbit/s, bredbandstelefoni. Kostnad 220 kr per månad.
Total månadsavgift efter obligatoriska tillägg: 4807kr.
Lägenhetsinnehavaren disponerar över ett källarförråd i grannhuset.
Bostadsrättens indirekta nettoskuldsättning baseras på föreningens skulder/lån minus föreningens räntebärande tillgångar och likvida medel. Beräkningen är gjord och baseras enbart på den senaste tillgängliga årsredovisningen. För mer information kontakta ansvarig fastighetsmäklare.
*Betalas av köpare
Skiljebo Äng 1 utgörs av två hus – hus 1 med 6 våningar och underliggande källare samt hus 2 med 7 våningar. Punkthusen ligger inbäddade i det
gröna öppna gårdsrummet.
Den ekonomiska förvaltningen sköts av JM@home.
Föreningen har 2 extra förråd för uthyrning, kostnad 300 kr/mån. Separat kö.
Mätare för individuell varmvattenmätning och gemensamt el-abonnemang med undermätning för varje lägenhet.
Inga beslutade avgiftsförändringar enligt samtal med styrelsen 2025-09-10.
Nybyggt 2023.
P-plats samt carport finns att hyra (separat kölista). För den som har elbil finns carport med laddstolpe. För dig som inte har egen bil kan du boka en bil i elbilspoolen som har sin egen plats i carporten på området.
-Carport utan el 1250kr/mån.
-Carport med el 1550kr/mån + elförbrukning.
-Vanlig parkeringsplats 775kr/mån.
F.n. kö på samtliga platser. Parkeringsinformationen uppdaterad 2025-09-10.
Telia Triple Play.
Bredband 1000/1000 mbit/s och digital-TV paket "Lagom".
Till varje lägenhet ingår förrådsyta för extra förvaring (vissa lägenheter har förrådet i lägenheten). Miljörum är beläget utvändigt i en komplementbyggnad. Postbox finns i trapphusentré
mot gata. Cykelparkering är beläget i källarplan samt utvändigt. Barnvagns- och rullstolsförråd finns i källare i hus 1 och i entréplan i hus 2.
Vill du köpa, sälja eller värdera bostad i Västmanland? Kontakta våra mäklare i Västerås! Passa också på att anmäla dig till vår kostnadsfria söktjänst Boagenten som hjälper dig att hitta ditt drömboende.
Här hittar du alla våra lediga bostäder till salu i Västmanlands län just nu!
Kontakta mäklaren om du behöver hjälp att ta fram en boendekalkyl.
När du köper din bostad genom Bjurfors kan du ansöka om bolån till en förmånlig ränta hos våra banksamarbetspartners Söderberg & Partners och SEB.
Ansvarig mäklare