-
Köpa
Köpa -
Sälja
Sälja - Hitta bostad
- Skapa bevakning
- Hitta mäklare
En kulturskatt nära citypulsen
Centrum, Borås
*Inklusive vatten, avlopp samt bostadsrättstillägg. Exklusive uppvärmning och hushållsel.
*** Areauppgifter enligt bostadsrättsföreningen
På Förhand ligger bostäder som av olika anledningar inte är ute till försäljning just nu men som kan komma att säljas om förutsättningarna är rätt.
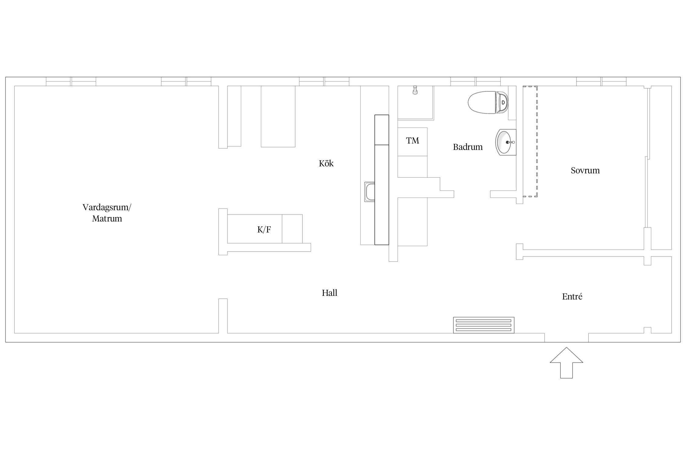
Välkomna till detta underbara hem i en av Borås äldsta fastigheter. Här möts moderna bekvämligheter och bevarade originaldetaljer på allra bästa sätt.
Välkomna till anrika Brf Munin I Borås. Huset är en kulturskatt från 1887, inspirerad av Karl Johanstilen, med troligen en av stadens mest charmiga innergårdar. En liten gemytlig förening med välskött ekonomi och låga avgifter. Bo i hjärtat av Borås och upplev allt vad stadskärnan har att erbjuda. Restauranger, caféer, mataffärer och butiker finns direkt runt hörnet. Ett stenkast bort finns utmärkta kommunikationer till övriga Borås vid Södra Torget och perfekt promenadavstånd till grönskan i Stadsparken.
Välkomna att anmäla ert intresse!



** Areauppgifter enligt bostadsrättsföreningen
Inklusive vatten, avlopp samt bostadsrättstillägg.
Exklusive uppvärmning och hushållsel.
Ett förråd tillhör bostaden. Föreningen har en möblerad innergård, tvättstuga, bastu och cykelförråd.
Fiber SplitVision, bostadsrättshavaren tecknar sitt egna abonnemang för TV och internet.
Bostadsrättens indirekta nettoskuldsättning baseras på föreningens skulder/lån minus föreningens räntebärande tillgångar och likvida medel. Beräkningen är gjord och baseras på senaste tillgängliga årsredovisningen. För mer information kontakta ansvarig fastighetsmäklare.
Föreningen äger fastigheten Munin 7 i Borås Stad, som består av flerbostadshus med 16 st bostäder, vilka samtliga upplåts med bostadsrätt. I fastigheten finns det även 5 lokaler.
Fastigheten är ursprungligen ifrån år 1887. Värdeår är 1988 då omfattande renoveringsarbeten utfördes och även viss nybyggnation.
Föreningens byggnader är fullvärdeförsäkrade hos Länsförsäkringar Älvsborg. I försäkringen ingår också styrelseansvarsförsäkring och kollektivt bostadsrättstillägg.
I området finns boendeparkering via Borås Stad.
Kika på hemsidan för mer info: https://www.parkeringboras.se/parkering/hyr-plats-tillstand/
Fiber SplitVision.
Bostadsrättsinnehavaren tecknar eget abonnemang för TV och internet.
Föreningen har en privat, mysig innergård med flertal sittplatser.
Föreningen har en gemensam tvättstuga, bastu, grill, föreningslokal och cykelförråd.
Den ekonomiska förvaltningen sköts av FR fastighetsservice.
MODERNA OCH VÄXANDE BORÅS
I Borås bor du i en vackert belägen stad som följer Viskans dalgång med ett vakande öga från Rya Åsars beskyddande kullar.Det är modern stad och del av en dynamisk tillväxtregion i en miljö där proportionerna är lagom och takten lite lugnare.
VÄVD AV HISTORIEN, FORMAD AV FRAMTIDEN
Borås är sen sekler tillbaka en starkt präglad textil- och handelsstad. Staden är vävd av historien och formad för framtiden. Borås Konstmuseum, Textilmuseet och Borås Museum erbjuder ett rikt utbud av konstnärliga höjdpunkter av olika slag och former om du vill uppleva historiens vingslag. Staden utvecklar sin framtid på arvet från textil och handel. Den är en del av en tillväxtregion och utmärker sig nationellt inom affärsområden som textil, e-handel och logistik. Här finns också Viared utmed riksväg 40, en företagspark under stark utveckling. En strategisk skandinavisk placering med ungefär samma avstånd till Stockholm, Köpenhamn och Oslo och närhet till Göteborg med Landvetter Airport. Floden Viskan var förr den livsnerv som industrin byggde sin framtid på. Nu ger Viskans flöde inspiration till rekreation och upplevelser.
PULS OCH PAUS
Det är kontrasterna som genomsyrar Borås. Å ena sidan puls, shopping och nöjesliv, å andra sidan mysiga parker, kullerstenar och svalkande bad. Här finns ett variationsrikt kulturutbud och upplevelser om du är aktiv. Djurparken är en av landets största. Borås är rikt på sjöar och vattendrag. Det finns flera badplatser med stor variation och kalla vintrar lockar stadsparksbadet. Sportintresset är stort i Borås kommun med lokala elitlag som IF Elfsborg, Norrby IF och Borås Basket.
Sträckan Göteborg-Borås är det tredje största pendlingsstråket i landet där pendling sker i båda riktningarna. Infrastrukturen inom regionen är en prioriterad fråga med Götalandsbanan i spetsen. Staden är navet i Sjuhärad med väl utbyggd kollektivtrafik inom Borås och till de fyra serviceorterna Dalsjöfors, Fristad, Sandared och Viskafors.
Köpa, sälja eller värdera bostad i Borås? Kontakta Bjurfors mäklare i Borås! Passa också på att anmäla dig till vår kostnadsfria söktjänst Boagenten som hjälper dig att hitta ditt drömboende.
Kontakta mäklaren om du behöver hjälp att ta fram en boendekalkyl.
När du köper din bostad genom Bjurfors kan du ansöka om bolån till en förmånlig ränta hos vår samarbetspartner SEB.
Ansvarig mäklare