-
Köpa
Köpa -
Sälja
Sälja - Hitta bostad
- Skapa bevakning
- Hitta mäklare
Trea med stor potential och balkong i sydväst
Sjöbo, Borås
*I avgiften ingår värme, vatten och kabel-TV
**Föreningen
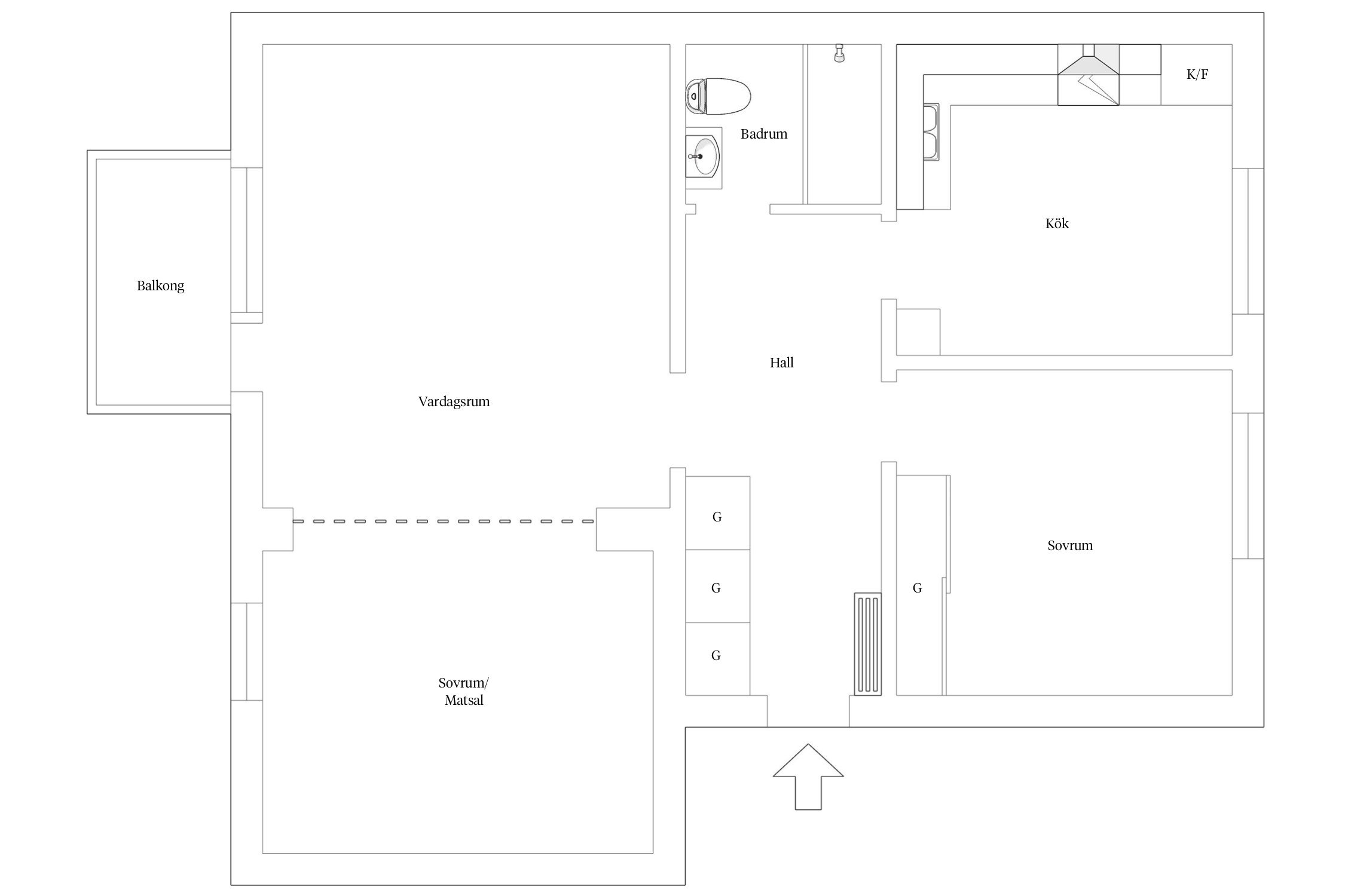
Välkommen till Huldregatan 21A och denna rymliga trea om 60 kvm, belägen på andra våningen i populära HSB Brf Tuvskivlingen.
Redan i hallen möts du av en praktisk entré med goda möjligheter till förvaring. Direkt till höger ligger ett väl tilltaget sovrum med plats för både dubbelsäng och tillhörande sängbord. Här finns även en generös garderobsvägg som ger utmärkta förvaringsmöjligheter.
Längre in i hallen, även det på höger sida, finner du ett rymligt kök med plats för matbord. Köket är av äldre utförande men har fräscha, vita luckor och goda arbetsytor – en bra grund för den som vill sätta sin egen prägel.
Rakt fram från hallen nås badrummet, även det av äldre standard.
Till vänster öppnar bostaden upp sig mot ett mycket stort vardagsrum med tillhörande matsal. Matsalen har tidigare varit ett sovrum, vilket ger möjlighet att enkelt återställa planlösningen genom att sätta upp en vägg – perfekt för den som önskar ytterligare ett sovrum eller ett separat arbetsrum. Från vardagsrummet nås den trivsamma balkongen i sydvästläge, där du kan njuta av eftermiddags- och kvällssol.
Lägenheten är i generellt behov av renovering, vilket ger en utmärkt chans att skapa ett hem helt efter egen smak och stil.
En bostad med stor potential, flexibel planlösning och ett attraktivt läge – varmt välkommen att upptäcka möjligheterna på plats.
Huldregatan är belägen i ett lugnt och omtyckt bostadsområde i Borås med närhet till både service och grönområden. Här bor du med gångavstånd till mataffärer, skolor och förskolor samt goda kommunikationer som smidigt tar dig vidare mot centrum och högskolan. I närområdet finns trevliga promenadstråk, lekplatser och rekreationsytor som passar både barnfamiljer och den aktive. Området präglas av välskötta bostadsrättsföreningar och en trivsam atmosfär – ett bekvämt och tryggt boende för dig som vill ha ett lugnt läge med stadens utbud inom räckhåll.
Välkommen på visning!



Tuvskivlingen 1
*Föreningen
I avgiften ingår värme, vatten och kabel-TV
2025 - Dränering samt tvätt av fasad
Info ifrån föreningens årsredovisning från 2024
- Uppgradering av maskiner i tvättstuga hus 23 & 25 (2022)
- Målning av garage och renovering garagetak (2020)
- Nya armaturer i allmänna utrymmen (2019)
- Ny fjärrvärmeväxlare (2016)
- Nya termostater i alla lägenheter (2016)
Mindre källarförråd samt vindsförråd finns till varje lägenhet.
Gemensam tvättstuga finns i varje hus.
Det finns också en mindre hobbylokal
10st p-platser (175:-/mån), samtliga har elstolpar för motorvärmare.
8st garage (408:-/mån)
Grundutbud från Tele2, ingår i avgiften.
Fiber: Varje bostadsrättsinnehavare ombesörjer och tecknar avtal själva.
Bostadsrättens indirekta nettoskuldsättning baseras på föreningens skulder/lån minus föreningens räntebärande tillgångar och likvida medel. Beräkningen är gjord och baseras enbart på den senaste tillgängliga årsredovisningen. För mer information kontakta ansvarig fastighetsmäklare.
MODERNA OCH VÄXANDE BORÅS
I Borås bor du i en vackert belägen stad som följer Viskans dalgång med ett vakande öga från Rya Åsars beskyddande kullar.Det är modern stad och del av en dynamisk tillväxtregion i en miljö där proportionerna är lagom och takten lite lugnare.
VÄVD AV HISTORIEN, FORMAD AV FRAMTIDEN
Borås är sen sekler tillbaka en starkt präglad textil- och handelsstad. Staden är vävd av historien och formad för framtiden. Borås Konstmuseum, Textilmuseet och Borås Museum erbjuder ett rikt utbud av konstnärliga höjdpunkter av olika slag och former om du vill uppleva historiens vingslag. Staden utvecklar sin framtid på arvet från textil och handel. Den är en del av en tillväxtregion och utmärker sig nationellt inom affärsområden som textil, e-handel och logistik. Här finns också Viared utmed riksväg 40, en företagspark under stark utveckling. En strategisk skandinavisk placering med ungefär samma avstånd till Stockholm, Köpenhamn och Oslo och närhet till Göteborg med Landvetter Airport. Floden Viskan var förr den livsnerv som industrin byggde sin framtid på. Nu ger Viskans flöde inspiration till rekreation och upplevelser.
PULS OCH PAUS
Det är kontrasterna som genomsyrar Borås. Å ena sidan puls, shopping och nöjesliv, å andra sidan mysiga parker, kullerstenar och svalkande bad. Här finns ett variationsrikt kulturutbud och upplevelser om du är aktiv. Djurparken är en av landets största. Borås är rikt på sjöar och vattendrag. Det finns flera badplatser med stor variation och kalla vintrar lockar stadsparksbadet. Sportintresset är stort i Borås kommun med lokala elitlag som IF Elfsborg, Norrby IF och Borås Basket.
Sträckan Göteborg-Borås är det tredje största pendlingsstråket i landet där pendling sker i båda riktningarna. Infrastrukturen inom regionen är en prioriterad fråga med Götalandsbanan i spetsen. Staden är navet i Sjuhärad med väl utbyggd kollektivtrafik inom Borås och till de fyra serviceorterna Dalsjöfors, Fristad, Sandared och Viskafors.
Köpa, sälja eller värdera bostad i Borås? Kontakta Bjurfors mäklare i Borås! Passa också på att anmäla dig till vår kostnadsfria söktjänst Boagenten som hjälper dig att hitta ditt drömboende.
Kontakta mäklaren om du behöver hjälp att ta fram en boendekalkyl.
När du köper din bostad genom Bjurfors kan du ansöka om bolån till en förmånlig ränta hos våra banksamarbetspartners Söderberg & Partners och SEB.
Kontakta mäklaren för mer information gällande budgivningen.
Kontakta mäklareAnsvarig mäklare