-
Köpa
Köpa -
Sälja
Sälja - Hitta bostad
- Skapa bevakning
- Hitta mäklare
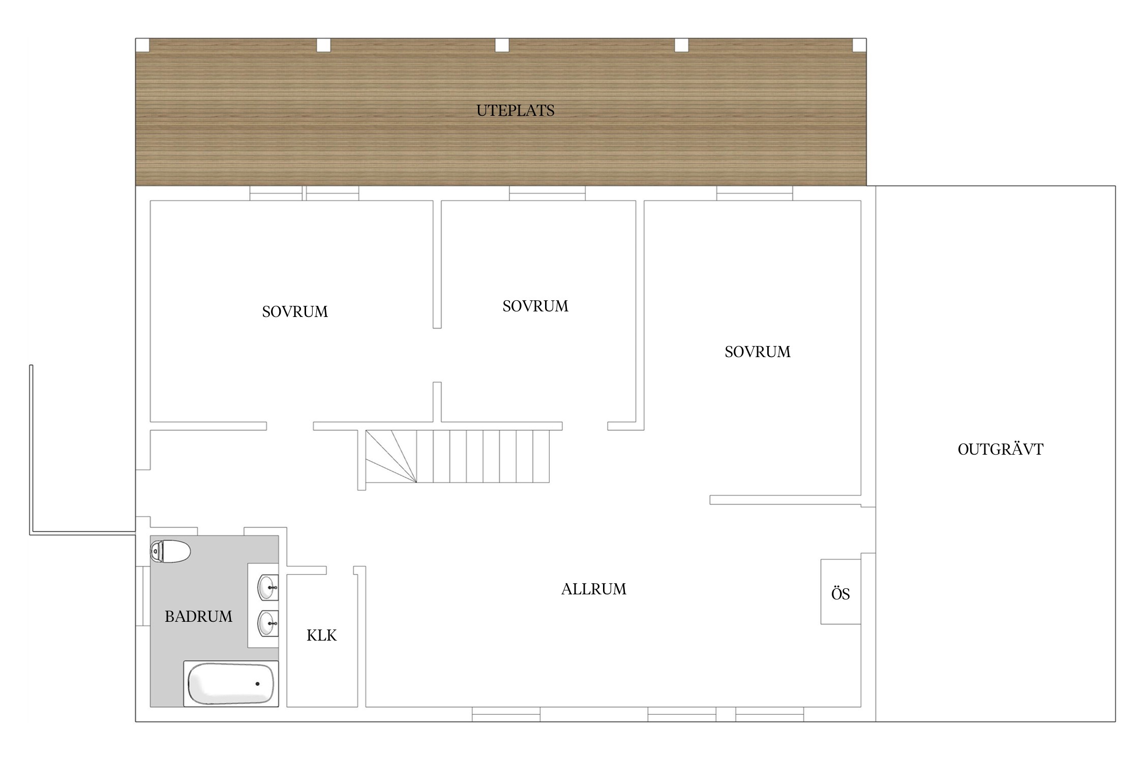
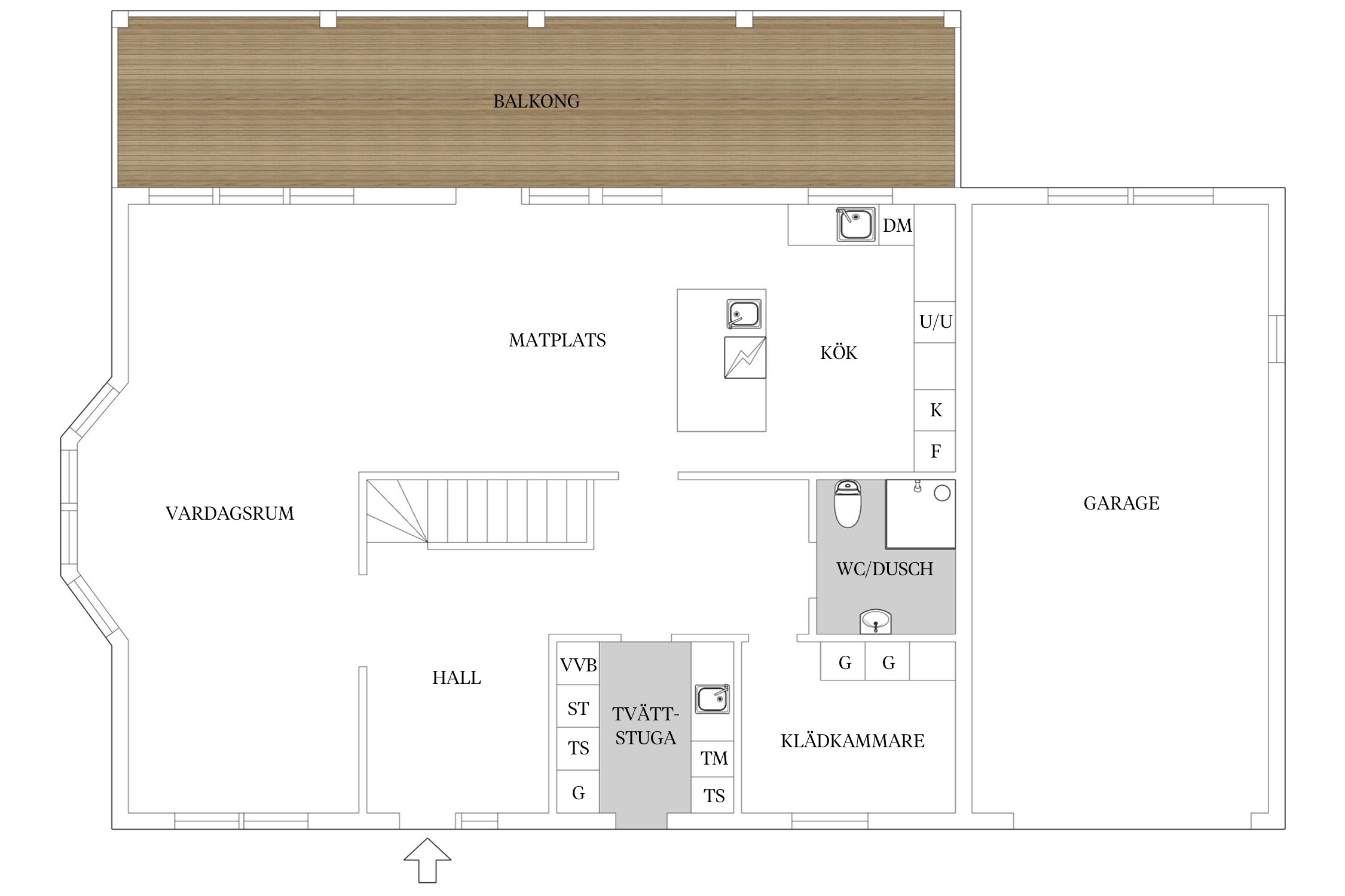
Stor balkong med kvällssol. Moderna och fint renoverade badrum och kök, nya solceller.
Askim - Sisjön, Göteborg
*Areauppgifter enligt mätning
På Förhand ligger bostäder som av olika anledningar inte är ute till försäljning just nu men som kan komma att säljas om förutsättningarna är rätt.
Fyll i formuläret nedan så hjälper vi dig!



Bekvämt, naturskönt och stadsnära är för många ord som beskriver livskvalitet.
Att se havets skiftningar över året, andas in den friska, salta luften och känna den där sköna tryggheten i sitt eget gemytliga hemmakvarter – det är också livskvalitet. Det sammanfattar livet i Askim ganska bra.
OMRÅDET
Med sköna, gröna naturområden i ryggen och blicken mot havet är det lätt att njuta året om. Av såväl vinande höstvindar och klara, kalla vinterdagar med rimfrost och hög luft som ljumma, ljuva sommarkvällar, eller en promenad efter ett uppfriskande vårregn. Genom århundraden har familjer förstått att detta är platsen för att hitta harmonin och trivas. Det har skapat ett område med en skön blandning av villor i alla storlekar och stilar. Från pittoreska sekelskifteshus och sommarstugetorp till ultramoderna objekt, där Bel-Air möter nyfunkis. Trots det havsnära läget och lugnet, känns Askim som en självklar del av staden och det är aldrig långt till närmsta butik, eller centrala delarna av Göteborg. Endast 20 minuter med expressbussarna som går var 10:e minut eller varför inte ta cykeln längs Säröbanan? En nedlagd tågbana som förr transporterade badgäster till Askim och Särö
– ett minne av svunna tiders exklusiva sommartillhåll.
NATUR OCH FRITID
Som boende i Askim är man nästan oförskämt bortskämd med badmöjligheter. Förutom havet finns inte bara en, utan två vackra badsjöar inom räckhåll: Sisjön med fina motionsspår och naturstigar och så Oxsjön, vid kanten av Sandsjöbacka naturreservat med härliga strövområden och öppna ljunghedar. Längs Askimsviken finns flera olika badplatser att välja på och som askimsbo skapar man gärna sina egna smultronställen bland sandstränder och härliga klippor, eller Askimsbadet med sin härliga badpir. Varma sommardagar myllrar badet av soltörstande göteborgare. Desto mer rofyllt och härligt är det att slå sig ner med en bok och en kopp kaffe på piren en klar hösteftermiddag. Askim är förstås mycket mer än så. Som om det inte vore nog med de naturliga grönområdena, finns en av de bästa golfbanorna att välja på: anrika Göteborgs golfklubb, som är Sveriges äldsta golfbana. För den som har andra intressen än golf finns mycket att ägna sin tid åt, som tennis, simning, fotboll och löpning eller längdskidåkning i fantastisk natur. Kort sagt; det blir aldrig tråkigt i Askim. Tempot upplevs bara lite lugnare här.
Köpa, sälja eller värdera bostad i Askim? Kontakta våra mäklare i Västra Göteborg! Passa också på att anmäla dig till vår kostnadsfria söktjänst Boagenten som hjälper dig att hitta ditt drömboende.
Ansvarig mäklare
Extra kontaktperson