-
Köpa
Köpa -
Sälja
Sälja - Hitta bostad
- Skapa bevakning
- Hitta mäklare
Välplanerad genomgångstrea med inglasad balkong
Biskopsgården, Göteborg
*I avgiften ingår värme, vatten, kabel-tv och bredband (internet)
**Areauppgifter enligt bostadsrättsföreningen.
Bokad visning. Du kan även ringa Bjurfors Bokningscenter 031-761 79 50. Välkommen!
Genomgångstrea med högt läge och inglasad balkong i solsäkert västerläge. Här bor du nära service och goda förbindelser till stan.
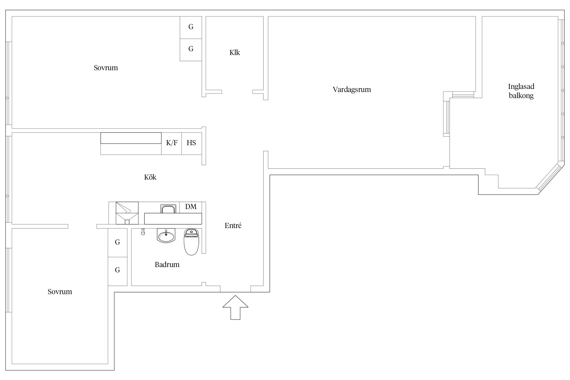
Väldisponerad trea med härligt ljusinsläpp från två väderstreck och fri utsikt över omgivningen. På den stora inglasade balkongen kan du njuta av eftermiddags- och kvällssol. Köket är praktiskt utformat med plats för matbord intill fönstret. Vardagsrummet är rymligt och lättmöblerat och förlängs av utgången till balkongen. Vidare finns två sovrum varav ett stort med plats för dubbelsäng och ett mindre som lämpas väl som barnrum eller hemmakontor. Badrummet är helkaklat och till förvaring finns en klädkammare. Till bostaden hör även ett källarförråd.
Här bor du i en välmående HSB förening i ett lugnt område med grönytor och lekplatser för barnen. Närhet till butiker och utmärkta spårvagnsförbindelser som tar dig till centrala Göteborg på ca 10 minuter. Du har även nära till naturen och det populära naturområdet Svartemosse med härliga promenadstråk, motionsslingor med mera.
Välkomnande och ljus hall med plats för avhängning och förvaringsmöbel. Längst in i hallen finns även en rymlig klädkammare.
Direkt till vänster i hallen ligger ett helkaklat badrum med klinkergolv. Badrummet är utrustat med dusch, wc, handfat och spegelskåp.
Vidare in i bostaden nås ett rymligt vardagsrum med plats för både soffa och matbord. Härligt ljusinsläpp från det stora fönsterpartiet samt utgången till den inglasade och stora balkongen i västerläge.
Mitt emot ligger det största sovrummet med gott om plats för både dubbelsäng och garderober. I anslutning till köket ligger det mindre sovrummet som lämpar sig väl som barnrum, gästrum eller kontor.
Köket är praktiskt utformat på två sidor med matplats för flera personer längst in vid fönstret. Luckor i trä och ovanför diskbänken i rostfritt sitter beige kakel. Den maskinella utrustningen består av spis, ugn, fläkt samt kyl och frys.



*Areauppgifter enligt bostadsrättsföreningen.
I avgiften ingår värme, vatten, kabel-tv och bredband (internet)
Nettoskuldsättningen är en uträkning baserad på information som föreningen har tillhandahållit. Den är eventuellt baserad på fel andelstal och kan därför vara felaktig.
Detta är enbart riktvärden och kan variera beroende på avtal och förbrukning
*Betalas av säljare
HSB Barometern består av 322 lägenheter, 2 affärslokaler, 3 föreningslokaler samt en expeditionslokal. Föreningens adress är Badvädersgatan 3-21. Fastigheten är upplåten med tomträtt. Avtalet löper till 2028.
Byggnad:
Byggår: 1960-61
Uppvärmning: Fjärrvärme
Avgiften höjdes med 2,5% den 1/1-23 och 2% 1/7-23.
Avgiften höjdes med 2,5% den 1/7-24.
Ingen förändring planerad under 2025.
Avgiften planeras höjas med 2% i 2026.
Föreningen har budgetmöte i slutet på våren.
Föreningens fastighet är fullvärdesförsäkrad i Länsförsäkringar. Varje medlem tecknar enskild hemförsäkring med bostadsrättstillägg.
Genomförda renoveringar:
2025: Målat om alla våra trappuppgångar inklusive gångarna mellan trappuppgångarna.
2024: Handukstorksbyte från vattenburen till el 2024
2023: Installation av kameraövervakning i källaren. Renovering av hissar.
2022: Laddstolpar
2021: Gym med bastu i källarlokal har byggts, större och fler maskiner. Ny passersystem samt digitalt bokningssystem i tvättstuga.
2019: Köket till samlingssalen har uppdaterats.
2017: Ombyggnad av källarlokal till fritidslokal.
2017: Byte och modernisering av elsystem. 3-fas till alla kök, nya elcentraler med jordfelsbrytare, mm.
2016: Byte till rörelsestyrd belysning i alla allmänna utrymmen.
2014: Byte av termostater till alla radiatorer.
2012: Byte av garageportar på alla garage. Byte av porttelefonsystem och passersystem.
2010: Byte av takfläktar, översyn av ventilationssystemet, OVK.
2007: Fasader renoverades och tilläggsisolerades.
2001-2002: Byte av källardörrar till ståldörrar.
2000-2007: Etappvis renovering av dräneringssystem.
1997: Renovering och tilläggsisolering av gavlarna.
1995: Inglasning av balkonger.
1993: Byte av avloppsstammar och renovering av badrum. Byte till större balkonger.
1985: Byte till 3-glas fönster.
Framtida renoveringar och underhållsarbeten:
2026: Utöka avfallssortering. Kommer bygga nya sopmoloker.
2028: Byte av tak
P-platser 213 st, hyra 326,-/mån,
Totalt 70 garageplatser.
Varmgarage hyra 836,-/mån
Kallgarage hyra 612,-/mån
MC-rum, 3 st med 8 platser/rum, hyra 179,-/mån
Separat kösystem.
Tele2 och Telenor erbjuder bredband, tv och fast telefoni. Kabel-tv (15 gratiskanaler, digitala) ingår i avgiften.
Tv box ingår och man ringer Tele2 för att få denna.
Till lägenheten följer ett källarförråd. Det finns även tvättstuga med torkrum, barnvagnsrum, moped/MC-rum, cykelrum, fritidslokal, gym, bastu, samlingslokal (500 kr) samt gästlägenhet med fyra bäddar (300 kr).
Förvärvaren skall vara medlem i HSB innan den kan godkännas ett medlemskap i bostadsrättsföreningen. Det tillkommer en medlemsavgift till HSB om 825 kronor för köparen. Är det två köpare så betalar den ena 825 kronor och den andra 525 kronor. Andelsavgiften i HSB är 500 kr/person och återbetalas vid utträde.
Föreningen bjuder in till ett informationsmöte innan medlemskapet godkänns.
Informationen ovan är tagen från hemsida, årsredovisning samt stadgar. Vi ansvarar ej för att uppgifterna från dessa källor är korrekta utan råder dig som köpare att kontrollera fakta som är av vikt för dig.
BO MELLAN CITYPULS OCH NATUR
Biskopsgården är ett expansivt område med lika stor närhet till citypuls som till naturen. Här bor du högt och många delar bjuder på en storslagen utsikt. Området ligger på Hisingen som är Sveriges fjärde störst ö.
GÖTEBORGS STÖRSTA PARK
Det gröna området består av både Biskopsgården och Länsmansgården. När du bor här har du närheten till både natur och city. Stora delar ligger i en höglänt terräng och bjuder på en vidunderlig utsikt. Området är uppbyggt kring de tre stora torgen Friskväderstorget, Vårväderstorget och Länsmanstorget. Gemensamt för torgen är att de alla har livsmedelsbutik, restaurang och mindre butiker. Vädret ger sig inte bara tillkänna i torgens namn utan också i de många av gatunamnen som Dimvädersgatan och Sommarvädersgatan. I radhusområdet Solvädersbyn är alla gatunamn uppkallade efter friidrottsgrenar. Husen uppfördes först i Lillehammer som deltagarbostäder inför vinter-OS 1994 för att sedan flyttas till Heden i samma syfte vid friidrotts-VM 1995.
Biskopsgården består av blandade bostäder där många av flerfamiljshusen är ritade av sin tids berömda arkitekter. I Södra Biskopsgården har Helge Zimdal ritat en stor del, han var känd för att lyfta mänsklighet och värme i sina byggnader. Inte långt från Biskopsgården ligger Norra Älvstranden. Det är ett av Göteborgs mest expansiva områden och här finner du vackra promenadstråk och bostadskvarter precis vid kajkanten. Varför inte ta en löptur längs den träbeklädda kajen som sträcker sig från bro till bor?
SALTA BAD OCH FÖRSTKLASSIG SHOPPING
När du bor här har du nära till sjön Svarte mosse. Packa fikakorgen och upptäck områdets rika djur- och växtliv. Skogen som omger sjön kallas Sjumilaskogen och här finns det många vackra spår du kan promenera eller springa längs med.
Hisingsparken är Göteborgs största park och här hittar du vackra naturpartier, vandringsstigar och 4H-gården Kättilsröd, som är uppskattad av både stora och små. På Centrala Hisingen ligger Keillers Park med Ramberget. Med sina 87 meter är berget ett markant landmärke och utsikten från toppen är en av Göteborgs bästa. När du bor på Hisingen har du alltid nära till havet. Flera fina badplatser ligger på ön och lockar året om med salta bad. Många av dem hittar du i Torslanda dit du enkelt tar dig med buss.
När du blir sugen på shopping finns flera bra shoppingområden. Backaplan, som genomgår en omfattande utveckling, är det största och här finner du de flesta stora affärskedjor. Med buss eller spårvagn når du centralstationen och innerstaden på några få minuter.
I området finns det gott om förskolor och grundskolor att välja på. Nära ligger också expansiva Lindholmen Science Park som erbjuder två universitet och åtta gymnasieskolor.
Köpa, sälja eller värdera bostad på Hisingen? Kontakta våra Bjurfors mäklare på Hisingen! Passa också på att anmäla dig till vår kostnadsfria söktjänst Boagenten som hjälper dig att hitta ditt drömboende.
Kontakta mäklaren om du behöver hjälp att ta fram en boendekalkyl.
När du köper din bostad genom Bjurfors kan du ansöka om bolån till en förmånlig ränta hos våra banksamarbetspartners Söderberg & Partners och SEB.
Bokad visning. Du kan även ringa Bjurfors Bokningscenter 031-761 79 50. Välkommen!
Ansvarig mäklare