-
Köpa
Köpa -
Sälja
Sälja - Hitta bostad
- Skapa bevakning
- Hitta mäklare
Välplanerad trea med utsikt över Kvillebäcken!
Centrala Hisingen, Göteborg
*I avgiften ingår värme, Telia Triple Play (telefoni, kabel-tv samt bredband). Individuell mätning gällande el och vatten tillkommer månadsavgiften.
På Förhand ligger bostäder som av olika anledningar inte är ute till försäljning just nu men som kan komma att säljas om förutsättningarna är rätt.
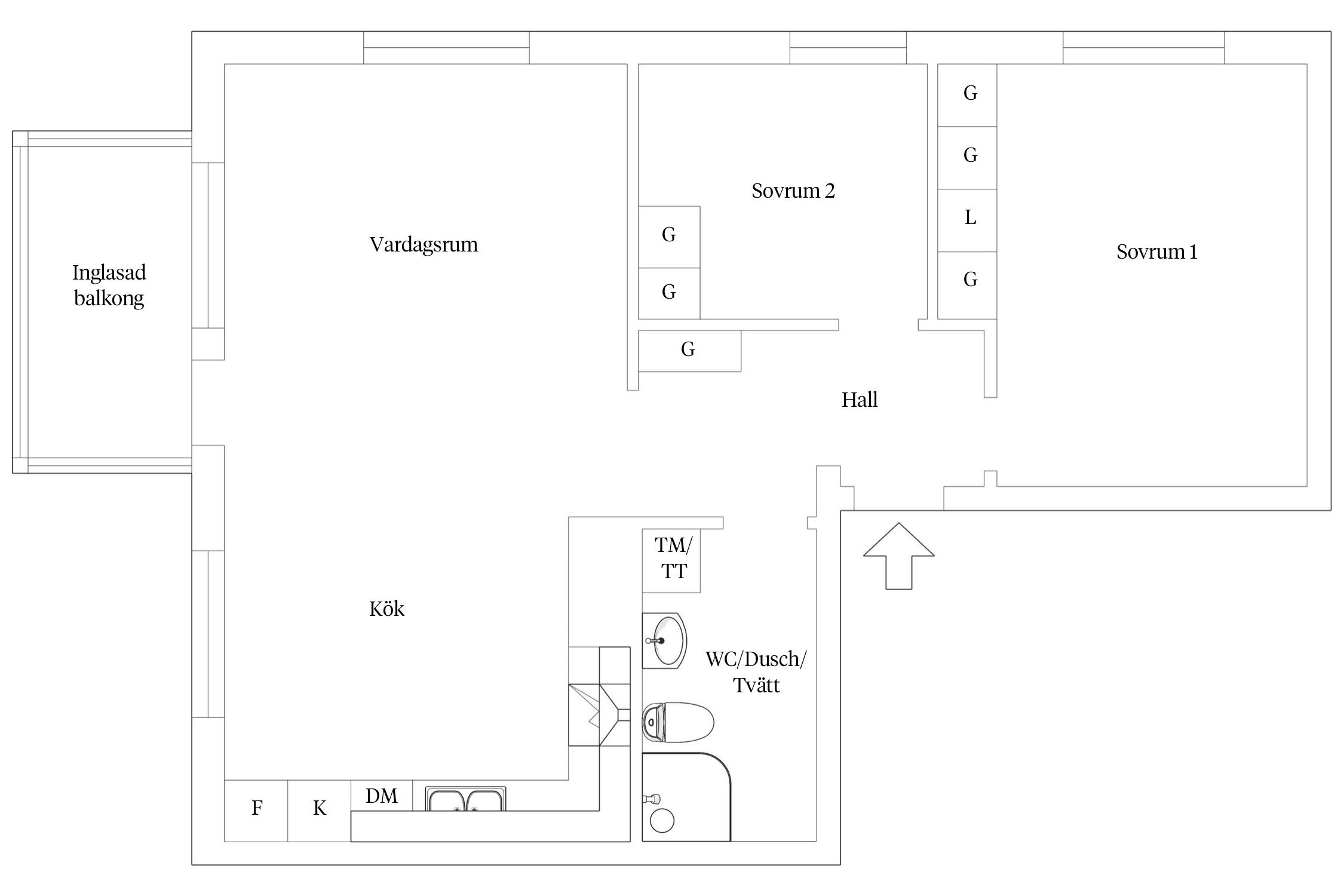
Högt upp på våning 6 ligger denna moderna trea om 65 kvm. Inglasad balkong i västerläge!
Mitt i populära Porslinsfabriken ligger denna modern och välplanerade trea om 65 kvm. På våning 6 välkomnas du av ett fantastiskt ljusinsläpp tack vare hörnläget. Här bor du i en mycket väldisponerade bostad på 65 kvm med en rymlig inglasad balkong med eftermiddagssol. Lägenheten karaktäriseras av genomgående parkettgolv av ek och en social planlösning där det smakfulla köket ligger i öppen anslutning till vardagsrummet, perfekt för bjudningar av familj och vänner! Som en förlängning av vardagsrummet nås den härliga och inglasade balkong med vidsträckt utsikt över området och till Ramberget. Badrummet är helkaklat i tidlösa toner med egen tvättavdelning och bostadens två sovrum är väl tilltagna med tillhörande förvaring. Till bostaden hör ett förråd.
I detta citynära boende har man lagt stor möda på att skapa harmoniska bostäder med hög standard. Området karaktäriseras av mysiga lugna gårdar där Kvillebäcken letar sig fram mellan husen. Du omgärdas på ena sidan av Brämaregården med utbud av mysiga caféer samt restauranger och på andra sidan av Hjalmar Brantingsplatsen samt Backaplan med stort shoppingutbud. Här ifrån tar du dig till centrala Göteborg på knappa 4 minuter med buss och spårvagn eller med cykel på ca 10. För dig som lockas av naturen finner du det mysiga grönområdet Keillers park och Ramberget med en av stans bästa utsikter.
Kontakta mäklaren för mer information!



I avgiften ingår värme, Telia Triple Play (telefoni, kabel-tv samt bredband). Individuell mätning gällande el och vatten tillkommer månadsavgiften.
Bostadsrättens indirekta nettoskuldsättning baseras på föreningens skulder/lån minus föreningens räntebärande tillgångar och likvida medel. Beräkningen är gjord och baseras på senaste tillgängliga årsredovisningen. För mer information kontakta ansvarig fastighetsmäklare.
Observera att driftskostnader är en uppskattning och kan variera beroende på förbrukning samt avtal.
*Betalas av säljare
Brf Fältspaten består av 133 bostadsrätter i 4 hus med adresserna Kvillegatan 1-13. Inflyttning påbörjades under aug 2011. Byggnadsprojektet genomfördes som totalentrepenad av Peab Sverige AB.
För mer information besök gärna
https://www.faltspaten.se/
Avgiften höjdes med 2% den 1/1-23 och 3% från 2024-01-01.
Avgiften höjs med 3 % från 2026-01-01.
Fastigheten är fullvärdesförsäkrad via Trygg-Hansa.
Utförda:
2023 - Underhållsspolning av stammar
2024 - OVK
Inga stora renoveringar planerade i dagsläget.
Under 2026 kommer föreningen byta ut alla elmätare.
Föreningen har 76 parkeringsplatser och 2 mc-platser i garaget. Det kostar 1 000 kr/mån att hyra en garageplats för bil, för en mc-plats kostar det 400 kr/mån. Till parkeringsplatserna är det separat kö.
Längs med Lundbyleden finns även avgiftsbelagda parkeringsplatser utomhus, kostnad 300 kr/2 veckor (ej platsgranti).
Ansluten till kabelnät. Leverantör: Telia. I föreningens avtal ingår kanalpaketet lagom med f.n. 18 kanaler.
Bredband. Fiber 500/100. Leverantör: Telia.
Även IP-telefoni via Telia (fasta avgiften) ingår i avgiften.
Föreningen har en trevlig gemensam innergård. Där finns en lekplats, cykelparkering samt sittgrupper.
I källaren finns garage, cykelförråd samt lägenhetsförråd. Barnvagnsförråd finns i respektive trapphus i källarplan. Föreningens övernattningslägenhet med bäddar finns i källaren under hus 4 (Kvillegatan 1).
Informationen är tagen från styrelsen och årsredovisningen, vi ansvarar inte för att informationen är korrekt utan råder dig att kontrollera det som är av betydelse.
BO MELLAN CITYPULS OCH NATUR
På Centrala Hisingen finner du allt du behöver kombinerat med vacker natur och närheten till havet. På älvsidan har du moderna och internationella Älvstranden, i väst fantastiska badvikar och på norra delen av ön möter skogen dig.
HÄR FINNS NÅGOT FÖR ALLA
Hisingen är Sveriges fjärde största ö omgärdad av Göta älv i syd och öster, Nordre älv i norr samt Kattegatt i väster. På Centrala Hisingen hittar du flera mindre områden som Brämaregården som främst består av vackra landshövdingehus. Kvilletorget är områdets nav med flera butiker och restauranger. Precis bredvid ligger Kvillebäcken som genomgår en stor förvandling som en del av expansionen och förnyelsen av Backaplansområdet. Nya Kvillebäck, som ligger granne med Backaplan, och har blivit en populär stadsdel och här hittar du populära Kville Saluhall. Norr om Kvillebäcken har gemytliga trädgårdsstaden Hildedal växt fram. Här finner du flerbostadshus och parhus med antingen balkonger eller egen liten trädgård. Grönytorna lika viktiga som byggnaderna och området liknar en småstad med parker och andra gemensamma gröna ytor. Populära Lundby bjuder på en bebyggelse som blandar flerfamiljshus, radhus och villor med företagsparker. Här finns ett rikt näringsliv med företag i alla storlekar. Intill kajkanten ligger Norra Älvstranden. Det är ett av Göteborgs mest expansiva områden och här finner du vackra promenadstråk och bostadskvarter precis vid vattnet. Varför inte ta dig en löptur längs den träbeklädda kajen som sträcker sig från bro till bro?
SALTA BAD OCH FÖRSTKLASSIG SHOPPING
Hisingsparken är Göteborgs största park och här hittar du vackra naturpartier, vandringsstigar och 4H-gården Kättilsröd, som är uppskattad av både stora och små. På Centrala Hisingen ligger Keillers Park med Ramberget. Med sina 87 meter är berget ett markant landmärke och utsikten från toppen är en av Göteborgs bästa. När du bor på Hisingen har du alltid nära till havet. Flera fina badplatser ligger på ön och lockar året om med salta bad. Många av dem hittar du i Torslanda dit du enkelt tar dig med buss.
När du blir sugen på shopping finns flera bra shoppingområden. Backaplan, som genomgår en omfattande utveckling, är det största och här finner du de flesta stora affärskedjor. Med buss eller spårvagn når du centralstationen och innerstaden på några få minuter. I området finns det gott om förskolor och grundskolor att välja på. Nära ligger också expansiva Lindholmen Science Park som erbjuder två universitet och åtta gymnasieskolor.
Köpa, sälja eller värdera bostad på Centrala Hisingen? Kontakta våra Bjurfors mäklare på Hisingen! Passa också på att anmäla dig till vår kostnadsfria söktjänst Boagenten som hjälper dig att hitta ditt drömboende.
Kontakta mäklaren om du behöver hjälp att ta fram en boendekalkyl.
När du köper din bostad genom Bjurfors kan du ansöka om bolån till en förmånlig ränta hos våra banksamarbetspartners Söderberg & Partners och SEB.