-
Köpa
Köpa -
Sälja
Sälja - Hitta bostad
- Skapa bevakning
- Hitta mäklare
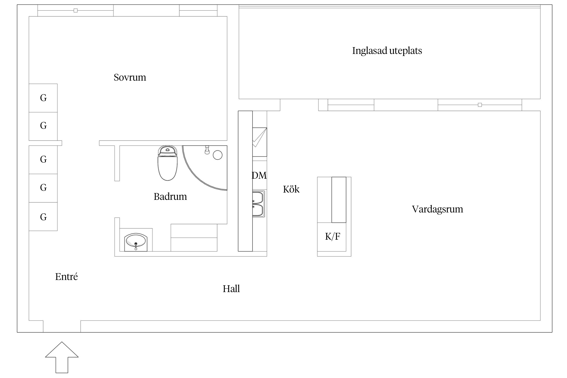
Inglasad uteplats i söderläge
Centrala Hisingen, Göteborg
*I avgiften ingår värme, vatten, kabel-TV, bredband (1000/1000 från Bahnhof) och IP-telefoni (ej samtalskostnad).
**Areauppgift från föreningen
På Förhand ligger bostäder som av olika anledningar inte är ute till försäljning just nu men som kan komma att säljas om förutsättningarna är rätt.
Modern och välplanerad tvåa. Här bor du centralt i hjärtat på Kville med restauranger, service och goda kommunikationer till stan utanför dörren.
Centralt belägen tvåa i modernt utförande erbjuds på Långängen 10. Här bor du om 55 välplanerade kvadratmeter som präglas av genomgående parkettgolv, ljusa ytskikt samt en social och öppen planlösning. Bostaden har ett generöst ljusinsläpp tack vare fönstren i söderläge. Köket är välutrustat i stilrent utförande med mycket arbetsytor och ligger i anslutning till det lättmöblerade vardagsrummet. Sällskapsytorna förlängs av en enorm inglasad uteplats i söderläge mot den lugna innergården, här kan du med fördel möblera med bord och loungegrupp. Vidare når du ett helkaklat badrum med egen tvättavdelning och du finner även ett rofyllt sovrum som ligger avskilt längst in i bostaden med plats för dubbelsäng och kontorsplats. Bostaden har gott om förvaring genom garderobssystem och till bostaden hör ett förråd.
Du bor centralt i stadsdelen Kvillebäcken med växlande arkitektur och små mysiga gårdsgator med torg samt grönområden. Direkt utanför dörren möts du direkt av pulsen och ett område som har allt inom promenadavstånd. Du hittar matbutik, Saluhall, restaurang, café, gym och mycket mer. På bara några minuters promenad når du även Backaplans stora utbud eller Rambergets slående utsikt och området kantas av flertalet buss- samt spårvagnsförbindelser som tar dig till centrala Göteborg på ca 5 minuter.
Kontakta mäklaren för mer info!



Brämaregården 61:8
*Areauppgift från föreningen
I avgiften ingår värme, vatten, kabel-TV, bredband (1000/1000 från Bahnhof) och IP-telefoni (ej samtalskostnad).
*Besiktigad: torsdag 23 maj 2019
Bostadsrättens indirekta nettoskuldsättning baseras på föreningens skulder/lån minus föreningens räntebärande tillgångar och likvida medel. Beräkningen är gjord och baseras på senaste tillgängliga årsredovisningen. För mer information kontakta ansvarig fastighetsmäklare.
Observera att driftskostnader är en uppskattning och kan variera beroende på avtal och förbrukning.
*Betalas av köpare
Föreningen Brf Origo omfattar flerbostadshus som färdigställdes april 2019. Totalt 113 lägenheter i storlekar från 39 till 112 m² och 1 till 4,5 rum och kök, det finns även 2 hyresrättslokaler. Bostäderna är fördelade på tre huskroppar i fem till sju plan. Hiss finns till alla våningsplan.
Föreningen är en äkta bostadsrättsförening. Till föreningen hör adresserna Borstbindaregatan 17-21, Gustaf Dalénsgatan 3A-E och Långängen 10-12.
Föreningen har en del om 5,4159% i gemensamhetsanläggningen Göteborg Brämaregården GA:22. Det omfattar en sopsugsanläggning och en återvinningscentral.
Avgiften höjdes med 3% för 2023 och 25% den 1/1-2024.
Ingen övrig förändring planerad i dagsläget.
Fullvärdesförsäkring finns via Moderna Försäkringar.
I försäkringen ingår kollektivt bostadsrättstillägg för medlemmarna samt ansvarsförsäkring för styrelsen.
Bostadsrätterna färdigställda 2019.
Genomförda:
2021 - 2-års besiktning utfördes.
2024 - 5-års besiktning utfördes.
2025 - Installerat laddstolpar i garaget, underhållsspolning av stammar samt OVK i alla lägenheter.
Föreningen undersöker möjligheten att installera solpaneler. I övrigt inga större renoveringar planerade.
Fastigheten har garage. Föreningen har 48 p-platser för bil (hyra 1250 kr/månad), 12-st p-platser för bil med el-laddning (1650 kr/månad) och 3 st p-platser för MC (450 kr/månad). Till parkeringsplatserna är det separat kö och sköts av City Security.
Föreningen är ansluten till digital-TV och Internet via Bahnhof (1000/1000) som ingår i avgiften
Innegården skapas med en tydlig Feng shui känsla. Där man strävar efter att skapa prunkande trädgårdsrum som speglar årstidernas gång och där det finns en bra balans mellan färger, former och kontraster. En mjuk och variationsrik oas som ger många små rum att vistas i. Den här trädgården är varierad och inspirationsrik och rymmer olika element såsom vatten, eld, jord, träd. En trädgård som kan skänka lugn och ro för själen och ge rikliga upplevelser för alla sinnen.
Varje lägenhet har tillgång till ett lägenhetsförråd placerat i källare. Lägenheter i trapphus 1B och 2A har sina förråd i källaren på intilliggande hus då dessa trapphus saknar källare.
Gemensamma cykelförråd finns i källaren på hus 3, samt i garaget (cykelparkering utvändigt finns i form av cykelställ och pollare på gården samt i ansutning till vissa entréer). Det finns även barnvagnsförråd.
Föreningsinformationen är tagen från årsredovisning, hemsidan och styrelsen. Vi ansvarar inte för att informationen är korrekt utan råder dig att kontrollera det som är av betydelse för dig.
BO MELLAN CITYPULS OCH NATUR
På Centrala Hisingen finner du allt du behöver kombinerat med vacker natur och närheten till havet. På älvsidan har du moderna och internationella Älvstranden, i väst fantastiska badvikar och på norra delen av ön möter skogen dig.
HÄR FINNS NÅGOT FÖR ALLA
Hisingen är Sveriges fjärde största ö omgärdad av Göta älv i syd och öster, Nordre älv i norr samt Kattegatt i väster. På Centrala Hisingen hittar du flera mindre områden som Brämaregården som främst består av vackra landshövdingehus. Kvilletorget är områdets nav med flera butiker och restauranger. Precis bredvid ligger Kvillebäcken som genomgår en stor förvandling som en del av expansionen och förnyelsen av Backaplansområdet. Nya Kvillebäck, som ligger granne med Backaplan, och har blivit en populär stadsdel och här hittar du populära Kville Saluhall. Norr om Kvillebäcken har gemytliga trädgårdsstaden Hildedal växt fram. Här finner du flerbostadshus och parhus med antingen balkonger eller egen liten trädgård. Grönytorna lika viktiga som byggnaderna och området liknar en småstad med parker och andra gemensamma gröna ytor. Populära Lundby bjuder på en bebyggelse som blandar flerfamiljshus, radhus och villor med företagsparker. Här finns ett rikt näringsliv med företag i alla storlekar. Intill kajkanten ligger Norra Älvstranden. Det är ett av Göteborgs mest expansiva områden och här finner du vackra promenadstråk och bostadskvarter precis vid vattnet. Varför inte ta dig en löptur längs den träbeklädda kajen som sträcker sig från bro till bro?
SALTA BAD OCH FÖRSTKLASSIG SHOPPING
Hisingsparken är Göteborgs största park och här hittar du vackra naturpartier, vandringsstigar och 4H-gården Kättilsröd, som är uppskattad av både stora och små. På Centrala Hisingen ligger Keillers Park med Ramberget. Med sina 87 meter är berget ett markant landmärke och utsikten från toppen är en av Göteborgs bästa. När du bor på Hisingen har du alltid nära till havet. Flera fina badplatser ligger på ön och lockar året om med salta bad. Många av dem hittar du i Torslanda dit du enkelt tar dig med buss.
När du blir sugen på shopping finns flera bra shoppingområden. Backaplan, som genomgår en omfattande utveckling, är det största och här finner du de flesta stora affärskedjor. Med buss eller spårvagn når du centralstationen och innerstaden på några få minuter. I området finns det gott om förskolor och grundskolor att välja på. Nära ligger också expansiva Lindholmen Science Park som erbjuder två universitet och åtta gymnasieskolor.
Köpa, sälja eller värdera bostad på Centrala Hisingen? Kontakta våra Bjurfors mäklare på Hisingen! Passa också på att anmäla dig till vår kostnadsfria söktjänst Boagenten som hjälper dig att hitta ditt drömboende.
Kontakta mäklaren om du behöver hjälp att ta fram en boendekalkyl.
När du köper din bostad genom Bjurfors kan du ansöka om bolån till en förmånlig ränta hos våra banksamarbetspartners Söderberg & Partners och SEB.
Ansvarig mäklare