-
Köpa
Köpa -
Sälja
Sälja - Hitta bostad
- Skapa bevakning
- Hitta mäklare
Fantastisk tvåa med sociala ytor och stor inglasad balkong i söderläge!
Centrala Hisingen, Göteborg
*I avgiften ingår värme, vatten och Telia Triple-play (Bredband, Digital-TV och IP-telefoni). (Av månadsavgiften 3 304 kr avser 517 kr årsavgift kapital).
På Förhand ligger bostäder som av olika anledningar inte är ute till försäljning just nu men som kan komma att säljas om förutsättningarna är rätt.
Väldisponerad tvåa från 2017. Här bor du i ett centralt och attraktivt läge med gångavstånd till all service och goda kommunikationer till stan.
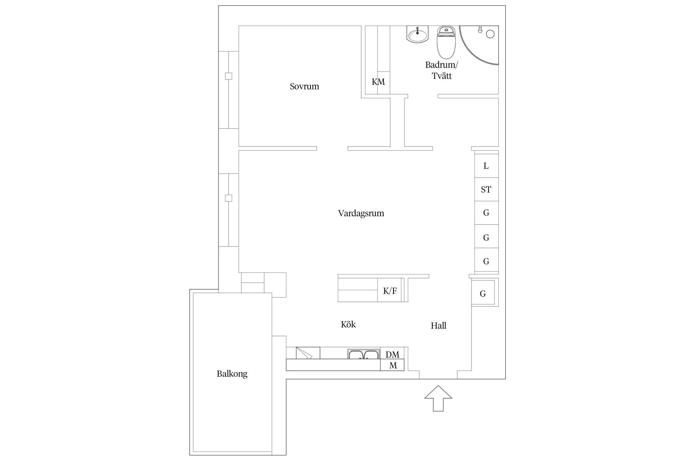
Nu finns chansen att förvärva denna moderna tvåa färdigställd så sent som 2017 på attraktiva Långängen 9! Lägenheten omfattas av 55 väldisponerade kvm med en social och öppen planlösning - som gjord för härliga stunder med nära och kära. Här finns även en stor inglasad balkong om ca 8 kvm i härligt söderläge. Stora fönsterpartier ger ett härligt ljusinsläpp och interiören är modern med trivsamt parkettgolv som är genomgående för lägenheten. Köket är välutrustat med all maskinell utrustning man kan tänkas behöva och badrummet är helkaklat och innehar egen tvättavdelning. Sovrummet ligger i lugnt läge avskilt från de sociala ytorna. I hallen ligger klinker och här finns goda förvaringsmöjligheter i form av flertal garderober. Till bostaden finns även ett källarförråd om ca 6 kvm att nyttja.
I BRF Piazza bor du omgiven av allt man behöver, mitt i hjärtat på nya Kvillebäcken med utbud av matbutiker, frisörer, gym och restauranger m.m. Även den populära Kville saluhall ligger på kort avstånd. Precis in på hörnet finner du Backaplan, ett av Sveriges största handelsområden, med över 120 butiker till förfogande. Från området finns mycket bra buss- och spårvagnsförbindelser som tar dig snabbt och enkelt in till centrala Göteborg på knappa 5 minuter.
Kontakta mäklaren för mer information!



I avgiften ingår värme, vatten och Telia Triple-play (Bredband, Digital-TV och IP-telefoni). (Av månadsavgiften 3 304 kr avser 517 kr årsavgift kapital).
Andelstal kapital: 0,56501%
Bostadsrättens indirekta nettoskuldsättning baseras på föreningens skulder/lån minus föreningens räntebärande tillgångar och likvida medel. Beräkningen är gjord och baseras på senaste tillgängliga årsredovisningen. För mer information kontakta ansvarig fastighetsmäklare.
Observera att driftskostnader är en uppskattning och kan variera beroende på avtal samt förbrukning.
*Betalas av köpare
Föreningen består av ett kvarter med fyra huskroppar i 5-7 våningar, källare och garage under husen samt den gemensamma gården. Ett av de fyra husen saknar källare och är byggt med platta på mark. Föreningens bostadshus är belägna i anslutning till varandra så att en ändamålsenlig samverkan kan ske mellan bostadsrättshavarna.
Det finns 3 lokaler för handel/kontor samt 1 lokal, belägen i hus 2, som är förberedd för restaurangverksamhet. Idag är det Benne Pasta.
Ingen avgiftsförändring planerad.
Fullvärdesförsäkring finns via Länsförsäkringar. I försäkringen ingår kollektivt bostadsrättstillägg för medlemmarna samt ansvarsförsäkring för styrelsen.
Utförda:
2019 & 2020 - Besiktning
2020 - Bygglov för balkonginglasning klart
2025 - Rengöring/tvätt av tak på samtliga byggnader
Inga planerade renoveringar. Föreningen följer en underhållsplan som sträcker sig från 2024-2073.
Föreningen har 46 st parkeringsplatser samt 6 st motorcykelplatser i garaget som ligger under gården. 20 platser är utrustade med uttag för elbil. Kostnaden är 1075 kr/mån för parkering utan el och 1300 kr/mån + elförbrukning för pakering med laddstolpe. 600 kr/mån för mc-parkering.
Kö och parkering sköts av SBC.
Gästparkering tillhandahålls inte av föreningen men i området finns parkeringsrutor med gratis parkering upp till två timmar.
Fastigheten har bredband, digital-TV och IP-telefoni (ej samtalstaxa) via Tele2 som ingår i månadsavgiften. Bredbandshastigheten som ingår är 250/250. Önskar en medlem högre bredbandshastighet så får de själva stå för mellanskillnaden. Digital-TV utbudet som ingår är TV Bas.
Gemensam innergård med utemöbler, grill, trevlig pergola samt cykelparkering. Föreningen anordnar gemensam höst- och vårstädning. Man kan boka uteplatsen på gården via föreningens hemsida.
Källarförråd hör till bostaden. Det finns barnvagns-/rullstolsrum i anslutning till varje trapphus. Låsta cykelförråd finns i källaren på hus 2 och 4 samt även utomhus-parkering för cyklar på innergården. Det finns även låst mopedrum i anslutning till garaget.
Uppgifterna är hämtade från hemsidan och styrelsen, vi tar inte ansvar för att informationen stämmer utan råder dig att kontrollera det som är av betydelse.
BO MELLAN CITYPULS OCH NATUR
På Centrala Hisingen finner du allt du behöver kombinerat med vacker natur och närheten till havet. På älvsidan har du moderna och internationella Älvstranden, i väst fantastiska badvikar och på norra delen av ön möter skogen dig.
HÄR FINNS NÅGOT FÖR ALLA
Hisingen är Sveriges fjärde största ö omgärdad av Göta älv i syd och öster, Nordre älv i norr samt Kattegatt i väster. På Centrala Hisingen hittar du flera mindre områden som Brämaregården som främst består av vackra landshövdingehus. Kvilletorget är områdets nav med flera butiker och restauranger. Precis bredvid ligger Kvillebäcken som genomgår en stor förvandling som en del av expansionen och förnyelsen av Backaplansområdet. Nya Kvillebäck, som ligger granne med Backaplan, och har blivit en populär stadsdel och här hittar du populära Kville Saluhall. Norr om Kvillebäcken har gemytliga trädgårdsstaden Hildedal växt fram. Här finner du flerbostadshus och parhus med antingen balkonger eller egen liten trädgård. Grönytorna lika viktiga som byggnaderna och området liknar en småstad med parker och andra gemensamma gröna ytor. Populära Lundby bjuder på en bebyggelse som blandar flerfamiljshus, radhus och villor med företagsparker. Här finns ett rikt näringsliv med företag i alla storlekar. Intill kajkanten ligger Norra Älvstranden. Det är ett av Göteborgs mest expansiva områden och här finner du vackra promenadstråk och bostadskvarter precis vid vattnet. Varför inte ta dig en löptur längs den träbeklädda kajen som sträcker sig från bro till bro?
SALTA BAD OCH FÖRSTKLASSIG SHOPPING
Hisingsparken är Göteborgs största park och här hittar du vackra naturpartier, vandringsstigar och 4H-gården Kättilsröd, som är uppskattad av både stora och små. På Centrala Hisingen ligger Keillers Park med Ramberget. Med sina 87 meter är berget ett markant landmärke och utsikten från toppen är en av Göteborgs bästa. När du bor på Hisingen har du alltid nära till havet. Flera fina badplatser ligger på ön och lockar året om med salta bad. Många av dem hittar du i Torslanda dit du enkelt tar dig med buss.
När du blir sugen på shopping finns flera bra shoppingområden. Backaplan, som genomgår en omfattande utveckling, är det största och här finner du de flesta stora affärskedjor. Med buss eller spårvagn når du centralstationen och innerstaden på några få minuter. I området finns det gott om förskolor och grundskolor att välja på. Nära ligger också expansiva Lindholmen Science Park som erbjuder två universitet och åtta gymnasieskolor.
Köpa, sälja eller värdera bostad på Centrala Hisingen? Kontakta våra Bjurfors mäklare på Hisingen! Passa också på att anmäla dig till vår kostnadsfria söktjänst Boagenten som hjälper dig att hitta ditt drömboende.
Kontakta mäklaren om du behöver hjälp att ta fram en boendekalkyl.
När du köper din bostad genom Bjurfors kan du ansöka om bolån till en förmånlig ränta hos vår samarbetspartner SEB.