-
Köpa
Köpa -
Sälja
Sälja - Hitta bostad
- Skapa bevakning
- Hitta mäklare
Högt upp och inglasad balkong i västerläge
Centrala Hisingen, Göteborg
*I månadsavgiften ingår värme, vatten, bredband (100/100) samt basutbudet från Tele2 för TV. Varje lägenhet har separat mätning för el.
**Areauppgifter enligt bostadsrättsföreningen.
Bokad visning.
På Förhand ligger bostäder som av olika anledningar inte är ute till försäljning just nu men som kan komma att säljas om förutsättningarna är rätt.
Modern hörntvåa i god standard högt upp på våning 5. Här bor du i ett område med närhet till natur, service och goda kommunikationer till stan.
Hörntvåa i modernt utförande med hög boendestandard erbjuds nu på Norra Fjädermolnsgatan 29!. Högt upp på femte våningen finner du denna välplanerade tvåa om 54,7 kvm som präglas av enhetliga och fina ytskikt med all vardagskomfort du behöver samt ett generöst ljusflöde med en fri utsikt över omgivningen som drar ögonen till sig. Köket är välutrustat i stilrent utförande med vita släta luckor och ligger i öppen anslutning till vardagsrummet vilket ger en rymlig och social planlösning. Matbordet har en naturlig plats intill fönstret där du kan njuta av den fina utsikten. Sällskapsytorna förlängs av en inglasad balkong i underbart västerläge med eftermiddags- och kvällssol. Tack vare det höga läget tillåts solen att stråla fritt ovanför grannhusens tak. Längst in i bostaden finner du sovrummet med plats för dubbelsäng och till förvaring finns en skjutdörrsgarderob. Vidare finner du ett helkaklat badrum i klassiskt utförande som utrustats med lyxig golvvärme och egen tvättavdelning. Till bostaden hör ett förråd i entréplan.
Länsmansgården ligger vackert placerad på en högplatå, inkilad mellan stora naturområden som gränsar till Hisingens västra kustlinje i perfekt harmoni mellan natur och stad. Här bor du med närhet till det populära naturområdet Svarte Mosse med motionsanläggningar, fotbollsplaner m.m. samt även Hisingsparken eller 4H gården som är perfekt till barnen. Här finns även närliggande skolor och på promenadavstånd når du Länsmanstorget med matbutiker samt service. Från området går både direktbussar och spårvagnslinjer som tar dig till centrala Göteborg på ca 20 minuter. Med bil tar det ca 10 minuter till stan och 15 minuter ut mot kustens badplatser.
Kontakta mäklaren för mer information!
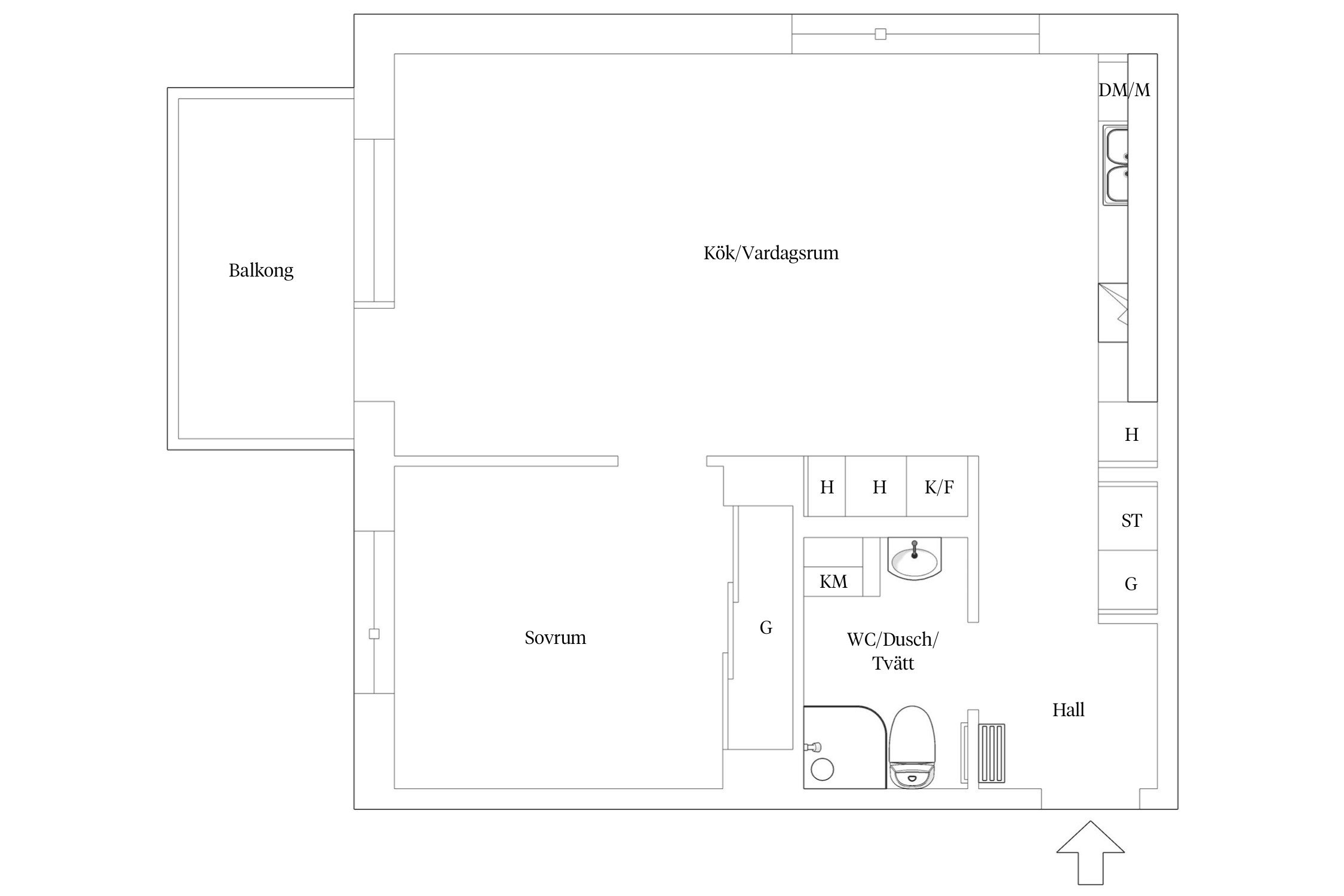
Välplanerad bostad som nyproducerades 2021 erbjuder 54,7 kvm med öppen planlösning och genomgående fina ytskikt samt modern boendestandard. Trivselfaktorn är hög tack vare hörnläget och våningsplanet som erbjuder gott ljusinsläpp och utsikt över omgivningen. Bostaden disponeras enligt följande:
Hall:
Kliv in och välkomnas av hallen som erbjuder avhängningsmöjligheter direkt innanför dörren och förvaring genom garderober. Du möts den vackra parketten som fortsätter genomgående i alla rum.
Kök:
Köket är ifrån från kvalitetstämplade Myresjö och i stilrent utförande med modern köksinredning där vita fronter, en laminatbänkskiva och vitt kakel sätter sin prägel. Maskinell utrustning består av integrerad diskmaskin, inbyggd micro, fläkt, ugn med spishäll samt kombinerad kyl och frys. Du finner även högskåp till skafferiförvaring. Här ryms större matgrupp för både familj och vänner intill fönstret som bjuder på utsikt.
Vardagsrum:
Vardagsrummet ligger i öppen anslutning mot köket vilket ger en social planlösning och är är lätt att möblera efter personligt tycke och smak med plats för soffgrupp med tillhörande möblemang. Tack vare hörnläget möts du av ett härligt ljusinsläpp från olika väderstreck och sällskapsytorna förlängs tack vare den rymliga balkongen i västerläge. Balkongen är inglasad vilket förlänger säsongen för nyttjande och du får sol från mitt på dagen till kvällning.
Sovrum:
Sovrummet ligger avskilt längst in i bostaden och rymmer med lätthet en dubbelsäng med tillhörande sängbord. Till förvaring finns en skjutdörrsgarderob.
Badrum:
Från hallen nås bostadens helkaklade badrum i klassiskt utförande med svart klinker på golvet och vit kakel på väggarna. Här finns en toalett, handfat med kommod, handduktstork, spegel med belysning och duschhörna med vikbara dörrar av glas. För bekvämlighet i vardagen finns lyxig golvvärme och även tvättmaskin samt torktumlare med arbetsbänk samt förvaring ovan.
Till bostaden hör ett förråd.
Varmt välkommen på visning.



Biskopsgården 96:9
*Areauppgifter enligt bostadsrättsföreningen.
I månadsavgiften ingår värme, vatten, bredband (100/100) samt basutbudet från Tele2 för TV. Varje lägenhet har separat mätning för el.
*Besiktigad: lördag 22 maj 2021
Bostadsrättens indirekta nettoskuldsättning baseras på föreningens skulder/lån minus föreningens räntebärande tillgångar och likvida medel. Beräkningen är gjord och baseras på senaste tillgängliga årsredovisningen. För mer information kontakta ansvarig fastighetsmäklare.
2 vuxna & 2 barn. Observera att driftskostnader är en uppskattning och kan variera utifrån avtal och förbrukning.
*Betalas av köpare
Brf Fjädermoln består av 140 nya bostadsrätter i varierande storlekar. Lägenheterna är 1–5 rum och kök i storlekar mellan 34 och 116 kvm. De fyra husen har 6–8 våningar. Alla lägenheter är utrustade med rymliga balkonger eller uteplats. I de flesta hus finns också garage, direkt anslutet till hissen.
Uppvärmning: Fjärrvärme. På taket på hus 6 har solceller som genererar el installerats. Detta bidrar till att minska föreningens elkostnader.
Ventilation system: Fläktstyrt till- och frånluftssystem med värmeåtervinning.
Föreningen äger marken.
Avgiften höjdes med 6% den 1/1-23
Avgiften höjdes med 10% den 1/1-24.
Beslut om eventuell avgiftsförändring tas på budgetmötet varje höst.
Alla hushåll i föreningen måste teckna egen hemförsäkring, men föreningen står för bostadsrättstillägget.
Utförda:
2022 - Mindre åtgärder för sprickor i betong i garage.
2023/2024 -2-årsbesiktning utförs samt lite fasadreparationer.
Inget planerat framöver - endast mindre åtgärder från 2-års besiktningen.
Styrelsen ser över alternativ för inglasning för de medlemmar som saknar i dagsläget, anmäl intresse till styrelsen.
Nybyggnation med färdigställande 2021.
Bostadsrättsföreningen förfogar över ca 64 garageplatser och ca 27 parkeringsplatser på utsidan. En garageplats kostar 650 kr/månad att hyra och en p-plats kostar 350 kr/månad. Kö går att ställa sig i först när man flyttat in via SBC.se. Det finns även separat garage i närheten som hyrs ut via Poseidon. Finns platser med laddstolpar från Göteborgs energi.
Husen är anslutna till fibernät för IP-telefoni, Internet och TV. I avgiften ingår Tele2s 100/100 bredband samt ett basutbud av TV kanaler. Inkommande tv/data-uttag i lägenheter placeras vid TV-plats i vardagsrum.
I området finns det en innergård, samt en yta i östra delen där det förutom grönska finns det en lekplats för barnen med sittbänkar och bord.
Alla boende har tillgång till en stor föreningslokal med tillhörande kök och toalett. Här är möjligheterna för olika tillställningar många. Varje lägenhet har tillgång till varsitt förråd och i alla hus utom hus 7 finns garage i bottenplan som har en direkt anslutning till husets hiss. Området är också utrustat med generösa cykelrum och utomhusställ.
För matavfall- och restavfall finns moloker/sopskåp utomhus. Utöver detta finns även ett grovavfallsrum och två ÅV-rum för sopsortering i föreningen
Styrelsen hänvisar till hemsidan för kontakt med dem.
Observera att uppgifterna är hämtade från styrelsen, årsredovisning och stadgar. Vi ansvarar inte att dessa uppgifter är korrekta utan råder dig att kontrollera det som är av betydelse.
BO MELLAN CITYPULS OCH NATUR
På Centrala Hisingen finner du allt du behöver kombinerat med vacker natur och närheten till havet. På älvsidan har du moderna och internationella Älvstranden, i väst fantastiska badvikar och på norra delen av ön möter skogen dig.
HÄR FINNS NÅGOT FÖR ALLA
Hisingen är Sveriges fjärde största ö omgärdad av Göta älv i syd och öster, Nordre älv i norr samt Kattegatt i väster. På Centrala Hisingen hittar du flera mindre områden som Brämaregården som främst består av vackra landshövdingehus. Kvilletorget är områdets nav med flera butiker och restauranger. Precis bredvid ligger Kvillebäcken som genomgår en stor förvandling som en del av expansionen och förnyelsen av Backaplansområdet. Nya Kvillebäck, som ligger granne med Backaplan, och har blivit en populär stadsdel och här hittar du populära Kville Saluhall. Norr om Kvillebäcken har gemytliga trädgårdsstaden Hildedal växt fram. Här finner du flerbostadshus och parhus med antingen balkonger eller egen liten trädgård. Grönytorna lika viktiga som byggnaderna och området liknar en småstad med parker och andra gemensamma gröna ytor. Populära Lundby bjuder på en bebyggelse som blandar flerfamiljshus, radhus och villor med företagsparker. Här finns ett rikt näringsliv med företag i alla storlekar. Intill kajkanten ligger Norra Älvstranden. Det är ett av Göteborgs mest expansiva områden och här finner du vackra promenadstråk och bostadskvarter precis vid vattnet. Varför inte ta dig en löptur längs den träbeklädda kajen som sträcker sig från bro till bro?
SALTA BAD OCH FÖRSTKLASSIG SHOPPING
Hisingsparken är Göteborgs största park och här hittar du vackra naturpartier, vandringsstigar och 4H-gården Kättilsröd, som är uppskattad av både stora och små. På Centrala Hisingen ligger Keillers Park med Ramberget. Med sina 87 meter är berget ett markant landmärke och utsikten från toppen är en av Göteborgs bästa. När du bor på Hisingen har du alltid nära till havet. Flera fina badplatser ligger på ön och lockar året om med salta bad. Många av dem hittar du i Torslanda dit du enkelt tar dig med buss.
När du blir sugen på shopping finns flera bra shoppingområden. Backaplan, som genomgår en omfattande utveckling, är det största och här finner du de flesta stora affärskedjor. Med buss eller spårvagn når du centralstationen och innerstaden på några få minuter. I området finns det gott om förskolor och grundskolor att välja på. Nära ligger också expansiva Lindholmen Science Park som erbjuder två universitet och åtta gymnasieskolor.
Köpa, sälja eller värdera bostad på Centrala Hisingen? Kontakta våra Bjurfors mäklare på Hisingen! Passa också på att anmäla dig till vår kostnadsfria söktjänst Boagenten som hjälper dig att hitta ditt drömboende.
Kontakta mäklaren om du behöver hjälp att ta fram en boendekalkyl.
När du köper din bostad genom Bjurfors kan du ansöka om bolån till en förmånlig ränta hos vår samarbetspartner SEB.
Bokad visning.
Ansvarig mäklare