-
Köpa
Köpa -
Sälja
Sälja - Hitta bostad
- Skapa bevakning
- Hitta mäklare
Tryggt och barnvänligt boende i attraktivt läge
Centrala Hisingen, Göteborg
*Areauppgifter enligt taxeringsinformationen
På Förhand ligger bostäder som av olika anledningar inte är ute till försäljning just nu men som kan komma att säljas om förutsättningarna är rätt.
Här ges en sällsynt möjlighet att skapa ett drömboende i ett av områdets mest attraktiva lägen.
Välkommen till ett hem med själ och potential, uppfört 1953 och beläget i ett fantastiskt läge där lugnet möter stadens bekvämligheter. Här erbjuds en unik möjlighet att skapa ditt drömboende i ett område som kombinerar det bästa av två världar – närheten till naturen och smidig access till centrala Göteborg.
Huset bär på tidstypisk charm från sin era, med möjligheter att bevara och förädla dess karaktär samtidigt som du sätter din egen prägel. Här finns utrymme att skapa ett modernt och funktionellt hem anpassat efter dagens behov, utan att tumma på husets ursprungliga känsla.
I direkt närhet finns lekplatser och grönområden som bjuder in till lek, promenader och avkoppling i naturen. För barnfamiljen är detta ett tryggt och uppskattat område där barnen kan växa upp med naturen som en självklar del av vardagen.
Samtidigt bor ni med ett bekvämt avstånd till centrala Göteborg. Goda kommunikationer gör pendlingen smidig, oavsett om ni väljer bil, cykel eller kollektivtrafik. Här får ni det bästa av två världar – ett rofyllt boende med stadens puls inom räckhåll.
Kontakta ansvarig mäklare för ytterligare information och visning.



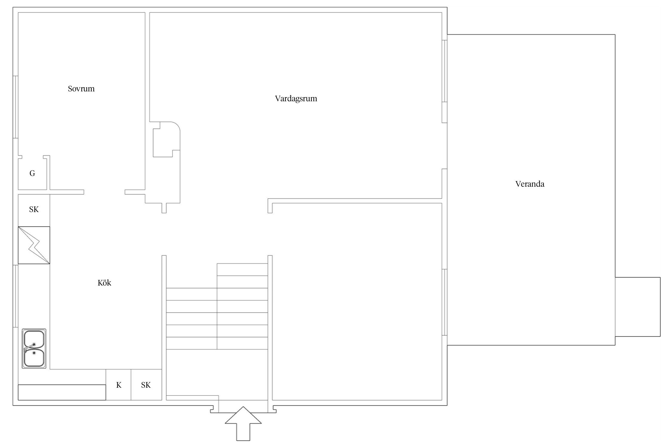
Entréplan
Övre plan
Källarplan
Tolered 169:1
*Areauppgifter enligt taxeringsinformationen
Kommunalt vatten och avlopp.
Tomtindelning (1952-01-23) Stadsplan (1951-11-13)
Driftkostnaden kan variera beroende på avtal och personlig förbrukning. Nuvarande kostnader är något lägre då fastigheten för närvarande inte är bebodd.
Toremossegatan är belägen i ett lugnt och trivsamt område på Hisingen, där villakvarter och grönområden skapar en harmonisk och familjevänlig miljö. Här bor ni med en perfekt kombination av närhet till natur och smidig access till stadens puls.
Området präglas av trygga och uppvuxna kvarter med god gemenskap, vilket gör det särskilt attraktivt för barnfamiljer. I närområdet finns flera förskolor och skolor, liksom lekplatser och grönområden som bjuder in till både lek och rekreation.
För den som uppskattar natur och friluftsliv finns fina promenadstråk, motionsspår och naturområden inom bekvämt avstånd. Kommunikationerna är mycket goda. Med närliggande bussförbindelser tar ni er enkelt in till centrala Göteborg, och för bilpendlaren är anslutningen till de större lederna smidig, vilket gör vardagen flexibel och bekväm.
Här erbjuds ett boende i ett stillsamt läge med närhet till allt som underlättar vardagen – ett område att trivas i under lång tid.
Det finns 11 st pantbrev uttagna om sammanlagt 120 000 kr
BO MELLAN CITYPULS OCH NATUR
På Centrala Hisingen finner du allt du behöver kombinerat med vacker natur och närheten till havet. På älvsidan har du moderna och internationella Älvstranden, i väst fantastiska badvikar och på norra delen av ön möter skogen dig.
HÄR FINNS NÅGOT FÖR ALLA
Hisingen är Sveriges fjärde största ö omgärdad av Göta älv i syd och öster, Nordre älv i norr samt Kattegatt i väster. På Centrala Hisingen hittar du flera mindre områden som Brämaregården som främst består av vackra landshövdingehus. Kvilletorget är områdets nav med flera butiker och restauranger. Precis bredvid ligger Kvillebäcken som genomgår en stor förvandling som en del av expansionen och förnyelsen av Backaplansområdet. Nya Kvillebäck, som ligger granne med Backaplan, och har blivit en populär stadsdel och här hittar du populära Kville Saluhall. Norr om Kvillebäcken har gemytliga trädgårdsstaden Hildedal växt fram. Här finner du flerbostadshus och parhus med antingen balkonger eller egen liten trädgård. Grönytorna lika viktiga som byggnaderna och området liknar en småstad med parker och andra gemensamma gröna ytor. Populära Lundby bjuder på en bebyggelse som blandar flerfamiljshus, radhus och villor med företagsparker. Här finns ett rikt näringsliv med företag i alla storlekar. Intill kajkanten ligger Norra Älvstranden. Det är ett av Göteborgs mest expansiva områden och här finner du vackra promenadstråk och bostadskvarter precis vid vattnet. Varför inte ta dig en löptur längs den träbeklädda kajen som sträcker sig från bro till bro?
SALTA BAD OCH FÖRSTKLASSIG SHOPPING
Hisingsparken är Göteborgs största park och här hittar du vackra naturpartier, vandringsstigar och 4H-gården Kättilsröd, som är uppskattad av både stora och små. På Centrala Hisingen ligger Keillers Park med Ramberget. Med sina 87 meter är berget ett markant landmärke och utsikten från toppen är en av Göteborgs bästa. När du bor på Hisingen har du alltid nära till havet. Flera fina badplatser ligger på ön och lockar året om med salta bad. Många av dem hittar du i Torslanda dit du enkelt tar dig med buss.
När du blir sugen på shopping finns flera bra shoppingområden. Backaplan, som genomgår en omfattande utveckling, är det största och här finner du de flesta stora affärskedjor. Med buss eller spårvagn når du centralstationen och innerstaden på några få minuter. I området finns det gott om förskolor och grundskolor att välja på. Nära ligger också expansiva Lindholmen Science Park som erbjuder två universitet och åtta gymnasieskolor.
Köpa, sälja eller värdera bostad på Centrala Hisingen? Kontakta våra Bjurfors mäklare på Hisingen! Passa också på att anmäla dig till vår kostnadsfria söktjänst Boagenten som hjälper dig att hitta ditt drömboende.
Kontakta mäklaren om du behöver hjälp att ta fram en boendekalkyl.
När du köper din bostad genom Bjurfors kan du ansöka om bolån till en förmånlig ränta hos våra banksamarbetspartners Söderberg & Partners och SEB.
Ansvarig mäklare