-
Köpa
Köpa -
Sälja
Sälja - Hitta bostad
- Skapa bevakning
- Hitta mäklare
Drömboende med solig söderbalkong och modern planlösning
Eriksberg, Göteborg
*Avgiften inkluderar: värme och kallvatten. Ett obligatoriskt tillägg om 177 kr/mån tillkommer och avser kabel TV. Den totala avgiften är 3647 kr/mån.
**Areauppgift enligt föreningen
På Förhand ligger bostäder som av olika anledningar inte är ute till försäljning just nu men som kan komma att säljas om förutsättningarna är rätt.
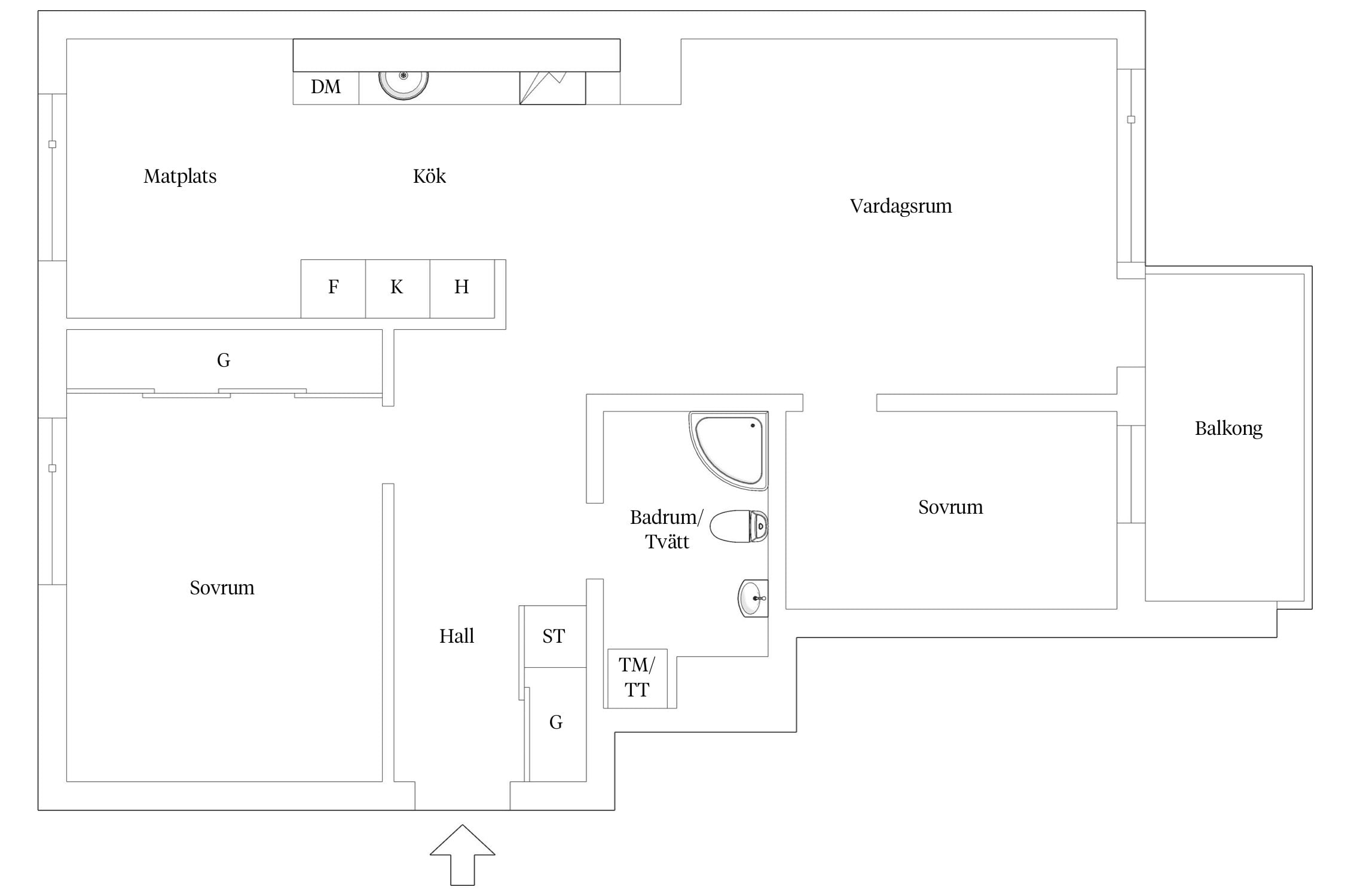
Här bor du med en härlig söderbalkong som vetter mot en grönskande och öppen innergård – en perfekt plats för avkoppling. Den generösa ytan ger gott om utrymme för loungemöbler, så att du kan skapa din egen privata oas. Bostaden håller mycket hög standard med stilrena och moderna inredningsval. Den öppna planlösningen mellan kök och vardagsrum släpper in rikligt med ljus och skapar en social och inbjudande atmosfär. Här finns plats för en rymlig matgrupp samt ett lättmöblerat vardagsrum. Lägenheten erbjuder två välplanerade sovrum, där det större har utmärkt förvaring tack vare en hel vägg med skjutdörrsgarderob. Det fräscha badrummet är utrustat med dusch och med praktisk tvättutrustning som underlättar vardagen.
Här bor ni i ett lugnt och grönskande område uppe på Eriksbergsplatån med närhet till goda kommunikationsmöjligheter, servicebutiker och härliga promenadstråk. På någon minuts promenad når du Eriksbergs kajpromenad med caféer och restauranger vid vattnet. Runt knuten ligger den grönskande Färjenäsparken som har lekplats, fotbollsplaner, hundrastställen och mysiga bänkar att slå sig ner vid. Här finns även flertal skolor i närområdet och närmsta är Taubeskolan f-6 åk som ligger 200 meter från bostaden.
Med låg avgift och tillgång till garageplats är detta ett eftertraktat boende!
HALL
Rymlig hall med skjutdörrsgarderob med spegeldörrar och god plats finns för avlastningmöbel. Ytterligare plats finns för garderob lite längre fram.
BADRUM
Modernt helkaklat badrum med mörk mosaik på golvet och en vägg. Vita kakelplattor på övriga väggar. I badrummet finns dusch, tvättställ med kommod i vitt, spegel med belysning, wc samt tvättdel med tvättmaskin och torktumlare.
STÖRRE SOVRUMMET
Stort och luftigt sovrum med god plats för dubbelsäng och sidobord. Längs ena väggen finns garderob med skjutdörrar som ger mycket bra förvaring. Norrläge gör det till ett svalt och gott sovrum.
KÖK
Modernt kök från Myresjökök med skåpsluckor i vitt. Mjukstängande lådor och bra förvaring i både över- och underskåp. I kombination med diskmaskin från Bosch och övriga vitvaror från Siemens har du ett kvalitativt kök. Vitvaror inkluderar: kyl, frys, inbyggnadsugn, inbyggnadsmikro, diskmaskin, induktionshäll och fläkt. Vid kökets fönsterparti ryms även en matplats för hela familjen.
VARDAGSRUM
Öppen planlösning mot kök. Lättmöblerat med god plats för soffa och tv-möbel. Med stora fönsterpartier i söderläge strömmar ljuset in. Med en grönskande och väl omhändertagen innergård njuter du av grönskande omgivning och din balkong.
BALKONG
Stor balkong på ca. 6 kvm med god plats för utemöbler och växter. Söderläge och sol en stor del av dagen. Luftigt och privat läge mot den mysiga innergården.
DET ANDRA SOVRUMMET
Passar perfekt som barnrum/kontor/gästrum. Plats finns för säng och även ytterligare förvaring om så önskas. Lugnt läge mot innergården.



*Areauppgift enligt föreningen
Avgiften inkluderar: värme och kallvatten.
Ett obligatoriskt tillägg om 177 kr/mån tillkommer och avser kabel TV.
Den totala avgiften är 3647 kr/mån.
Balkong i söderläge om ca 6 kvm.
Bostadsrättens indirekta nettoskuldsättning baseras på föreningens skulder/lån minus föreningens räntebärande tillgångar och likvida medel. Beräkningen är gjord och baseras på senaste tillgängliga årsredovisningen. För mer information kontakta ansvarig fastighetsmäklare.
*Betalas av köpare
Brf Balladen i Västra Eriksberg nyproducerades och var klara för inflyttning 2013. Fastigheten består av ett flerbostadshus med 65 lägenheter och en lokal.
Föreningen deltar ihop med Brf Serenaden i Västra Eriksberg i en gemensamhetsanläggning avseende garage, gård, belysning, källarutrymme mm inom kvarteret.
Förvaltning: Teknisk förvaltning sköts av Bredablick förvaltning AB och den ekonomiska förvaltningen sköts av Nabo AB."
Föreningen höjde avgiften med 5 % 1/1-2023.
Föreningen höjde avgiften med 2% 1/1-2024.
Inga beslut om avgiftsförändringar per 2025-06-26.
Inga planer på större underhåll för närvarande.
Brf Balladen förfogar över 55 parkeringsplatser varav 20st är utomhusplatser. 35 st garageplatser varav 14 st med laddstolpar. Elförbrukningen tillkommer. Dessutom är två platser handikappanpassade och det finns 2 MC-parkeringar. Kort kö till garage under huset. Utomhusparkeringarna är belägna mellan fastigheten och hållplatsen Pölsebo.
Avgiften för en garageplats är för närvarande 950 kr/månad, MC-parkering 475 kr/månad, samt utomhusparkering 550 kr/månad. Utomhusplatserna administreras av GUAB. För kö maila info@guab.se
Bahnhof är leverantör för bredband, 1000/1000 ingår i avgiften, och Allente för TV-tjänster. Ett grundutbud av kanaler ingår i avgiften.
Mysig innergård med lekytor och fina planteringar.
Det finns en lokal (som idag hyrs ut och drivs som Närbutik), styrelserum och extra uthyrningsförråd i källaren dessa kostar 275 kr/mån. Finns även cykel-, barnvagns- och rullstolsförråd samt källarförråd.
BO MED VATTNET SOM GRANNE
På Eriksberg blandas nybyggt och modern design med fastigheter från den tidigare varvtiden. Mixen av gammalt och nytt har blivit prisad för sin goda arkitektur. När du bor här är närheten till vattnet påtagligt samtidigt som området bjuder på ett stort nöjesutbud alldeles runt knuten.
MED UTSIKT ÖVER VATTNET
När du bor i Eriksberg börjar du kanske dagen med en promenad eller löptur längs den träskodda kajen som går längs vattnet i flera kilometer. Vattnet tillsammans med närheten till många grönområden gör att du alltid kan känna av naturen när du bor på Eriksberg. Vid foten av Älvsborgsbron ligger Färjenäsparken som bjuder på många vackra vyer och ett grönområde att promenera i. Området har tre stora lekplatser och en fotbollsplan vilket gör det till en populär plats för barnfamiljer och en perfekt plats för lek och picknick. Parken är under utveckling för att bli till en plats för evenemang, aktiviteter och rekreation. Krokängsparken och Sörhallsberget är två andra fina platser där du kan uppleva naturen. När du vill blicka ut över vattnet kan du strosa runt Eriksbergskranens småbåtshamn och upptäcka mysiga caféer och restauranger. Eller ta vara på en solig dag med att slå dig ner på däcket längs båthamnen i sällskap av en glass.
NÖJEN PÅ HEMMAPLAN
De gamla hamn- och varvsområdent har de senaste decennierna förvandlats till bostadsområden, arbetsplatser och stråk där du kan roa dig eller njuta av kulturlivet. Bebyggelsen runt Eriksberg består främst av flerfamiljshus som får ett lugn av havet. Du hittar ett varierat utbud av nöjen i form av olika butiker, restauranger, teater, evenemangshall, konstnärsateljéer och en idrottshall. För den idrottsintresserade ett stort utbud av träningsmöjligheter då många gymkedjor och mindre lokala aktörer har valt att etablera sig här.
TA DIG ENKELT TILL STAN
Cityfärjan Älvsnabben går från Eriksbergskajen i tät trafik mellan båda sidor av älven. Det är ett bekvämt och snabbt sätt att resa till centrum utan bil och parkeringsbekymmer och samtidigt ett mycket tilltalande sätt att få se staden och vattnet. Det finns också bra förbindelser med buss till Göteborgs olika delar. Föredrar du bil går det enkelt att ta sig ut på de stora lederna.
Köpa, sälja eller värdera bostad i Eriksberg? Kontakta våra Bjurfors mäklare på Hisingen! Passa också på att anmäla dig till vår kostnadsfria söktjänst Boagenten som hjälper dig att hitta ditt drömboende.
Kontakta mäklaren om du behöver hjälp att ta fram en boendekalkyl.
När du köper din bostad genom Bjurfors kan du ansöka om bolån till en förmånlig ränta hos våra banksamarbetspartners Söderberg & Partners och SEB.
Ansvarig mäklare