-
Köpa
Köpa -
Sälja
Sälja - Hitta bostad
- Skapa bevakning
- Hitta mäklare
Stor gaveltvåa med fantastiskt ljusinsläpp och härliga ytor att umgås på
Eriksberg, Göteborg
*Avgiften inkluderar värme och kallvatten. Utöver månadsavgiften tillkommer ett obligatoriskt tillägg om 187 kr/mån för bredband, TV och telefon. Den totala kostnaden blir då 4 541 kr.
Bokad visning. Kontakta mäklaren för anmälan.
På Förhand ligger bostäder som av olika anledningar inte är ute till försäljning just nu men som kan komma att säljas om förutsättningarna är rätt.
I hjärtat av expansiva Eriksberg har du nu möjlighet att hitta ditt nya drömboende. Ljusinsläppet i kombination med sobra färger ger ett harmonisk hem
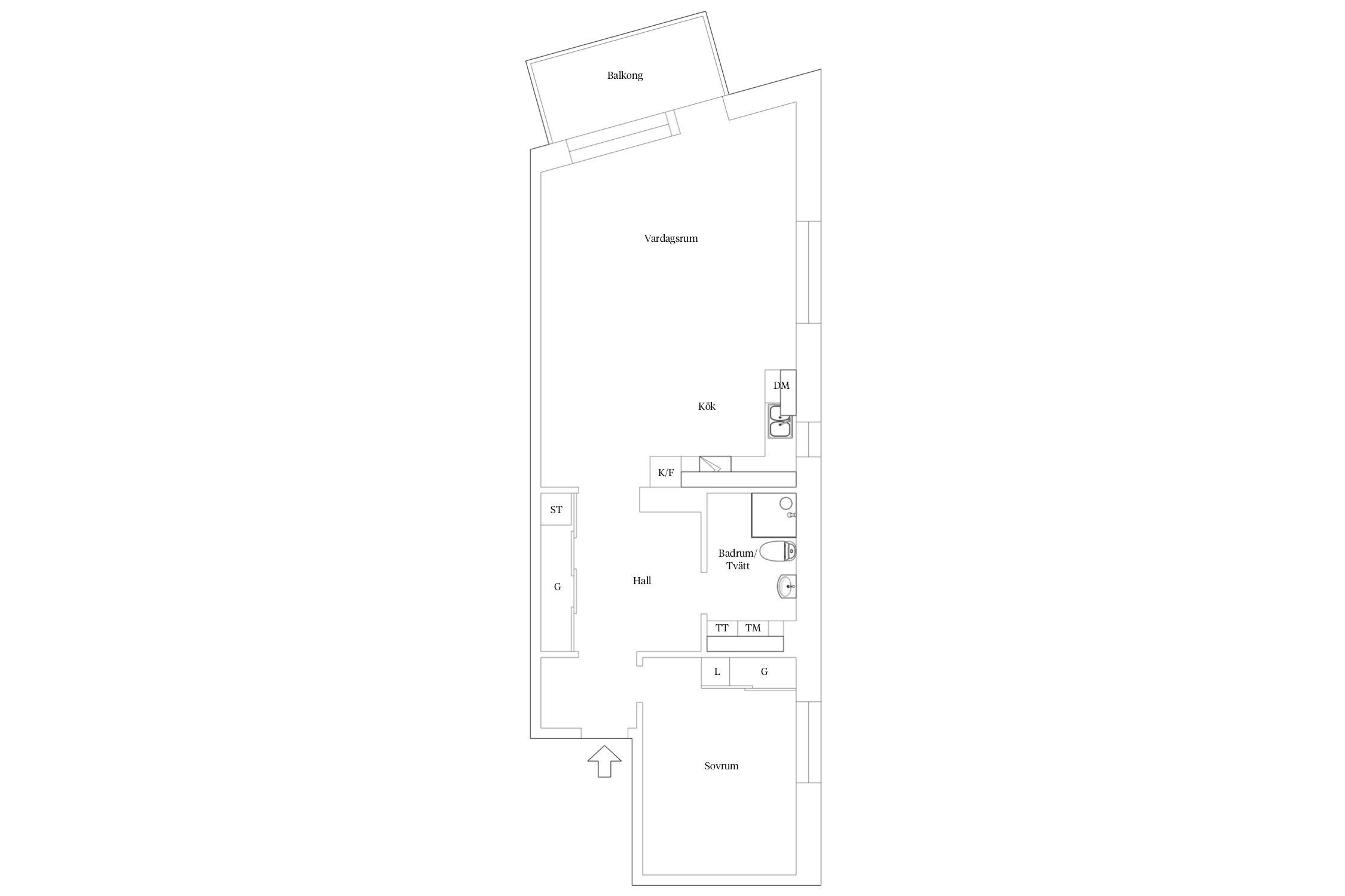
Detta är en väldisponerad och stilren tvårummare med goda sociala ytor och exklusiva materialval. Gediget ljusinsläpp genom dess hörnläge med fönster mot norr och väster. Härlig balkong mot väst som ger en förlängning till boendet, möjlighet finns att glasa in. Ett stort sovrum, modernt kök med öppen planlösning mot vardagsrum och matdel är detta ett bekvämt boende där varje kvadrat nyttjas på bästa sätt. Mycket bra förvaringsmöjligheter genom flertal skjutdörrsgarderober.
Nära till kommunikationer som inkluderar flera bussar och Älvsnabben. Nära till caféer, restauranger, träningsanläggningar och servicebutiker. Endast en kort promenad på några hundra meter till Eriksbergskajen.
Stig in och känn dig som hemma. Hallens ytor ger plats för avhägning och sittmöbel. Skjutdörrsgarderob ger gott om förvaringsmöjligheter, två av dörrarna är av spegelglas. Redan vid tröskeln ligger ekparkett som är genomgående i hela bostaden.
Från hallen öppnar kök och vardagsrum upp sig i öppen planlösning. Köket är modernt med släta vita luckor, dessa bryter av mot stilrena metallhandtag. Arbetsbänk av laminat i grå ton. Ovan sitter vitt liggande kakel. Vidare finns ugn, spishäll, inbyggd micro, integrerad diskmaskin samt kombinerad kyl och frys. Alla vitvaror är i rostfritt utförande. Ett fönster ger dig möjlighet att blick ut under matlagning. Matplatsen har sin naturliga plats mitt i rummet.
Generösa fönsterpartier ger stort naturligt ljusinsläpp. Plats finns för både soffgrupp som tv-möbel. Det finns även rum för en mysig läshörna om så önskas. Från vardagsrummet når du bostadens balkong. Denna vetter mot väster och solens strålar når hit under eftermiddag och kväll. En plats som inbjuder till härliga kvällar i goda vänners lag.
Sovrummet är belägen vid hallen. Ett väl tilltaget rum som med enkelhet rymmer dubbelsäng. Fönster i svala norr. Här finns skjutdörrsgarderober som ger bra förvaring för alla dina kläder.
Badrummet är inrett i sobra toner. Kakelklädda väggar i vitt harmonierar med det mörka klinkergolvet. Duschhörnan avskilts med två glasvikdörrar. Handfatet är integrerad i kommod med tillhörande spegelskåp. Tvättdelen har en kombinerad tvättmaskin och torktumlare. Ovan ett praktiskt väggskåp för förvaring.



Avgiften inkluderar värme och kallvatten. Utöver månadsavgiften tillkommer ett obligatoriskt tillägg om 187 kr/mån för bredband, TV och telefon. Den totala kostnaden blir då 4 541 kr.
Bostadsrättens indirekta nettoskuldsättning baseras på föreningens skulder/lån minus föreningens räntebärande tillgångar och likvida medel. Beräkningen är gjord och baseras på senaste tillgängliga årsredovisningen. För mer information kontakta ansvarig fastighetsmäklare.
*Betalas av köpare
Brf Kronhjulet ligger i det historiska Kvarnenområdet på Eriksberg i Göteborg. 2014 förvärvade föreningen fastigheten Sannegården 7:11. JM stod för uppförandet av två flerbostadshus i sex våningar med totalt 77 stycken bostadsrättslägenheter och en lokal. 2015 stod detta färdigt inflyttning skedde från oktober 2015.
Föreningen deltar bla. i gemensamhetsanläggningar beträffande sopsug, körytor, portar i garage, vatten och vattenledningar mm.
Föreningen följer en underhållsplan.
Föreningen disponerar över 42 stycken parkeringsplatser i garage under gården för bil samt en som inte är i garaget alla platser utom 2 st har laddmöjlighet. I dagsläget är det kö. Kostnaden är 1272 kr/mån för garageplats och 1372 kr om man vill kunna ladda. Det finns också 4 MC-platser för 424 kr/mån. I parkeringsgaraget finns två handikappanpassade parkeringsplatser. Separat kö till dessa.
Det finns också plats i närliggande P-hus, separat kö. Besök www.deckhuset.se
Uteplatser finns genom Göteborgs stad i närområdet.
Bahnhof med digital-TV, IP-telefoni och bredband. Detta är ett obligatoriskt tillägg om 187 kr. 1 Gbit/s hastighet.
Gemensam innergård med sandlåda, sittplatser och möjlighet för grillning.
Till lägenheten hör ett källarförråd.
I föreningen finns cykelförråd i källarplan, barnvagns- och rullstolsförråd i anslutning till trapphusen. Sopnedkast finns på gården.
BO MED VATTNET SOM GRANNE
På Eriksberg blandas nybyggt och modern design med fastigheter från den tidigare varvtiden. Mixen av gammalt och nytt har blivit prisad för sin goda arkitektur. När du bor här är närheten till vattnet påtagligt samtidigt som området bjuder på ett stort nöjesutbud alldeles runt knuten.
MED UTSIKT ÖVER VATTNET
När du bor i Eriksberg börjar du kanske dagen med en promenad eller löptur längs den träskodda kajen som går längs vattnet i flera kilometer. Vattnet tillsammans med närheten till många grönområden gör att du alltid kan känna av naturen när du bor på Eriksberg. Vid foten av Älvsborgsbron ligger Färjenäsparken som bjuder på många vackra vyer och ett grönområde att promenera i. Området har tre stora lekplatser och en fotbollsplan vilket gör det till en populär plats för barnfamiljer och en perfekt plats för lek och picknick. Parken är under utveckling för att bli till en plats för evenemang, aktiviteter och rekreation. Krokängsparken och Sörhallsberget är två andra fina platser där du kan uppleva naturen. När du vill blicka ut över vattnet kan du strosa runt Eriksbergskranens småbåtshamn och upptäcka mysiga caféer och restauranger. Eller ta vara på en solig dag med att slå dig ner på däcket längs båthamnen i sällskap av en glass.
NÖJEN PÅ HEMMAPLAN
De gamla hamn- och varvsområdent har de senaste decennierna förvandlats till bostadsområden, arbetsplatser och stråk där du kan roa dig eller njuta av kulturlivet. Bebyggelsen runt Eriksberg består främst av flerfamiljshus som får ett lugn av havet. Du hittar ett varierat utbud av nöjen i form av olika butiker, restauranger, teater, evenemangshall, konstnärsateljéer och en idrottshall. För den idrottsintresserade ett stort utbud av träningsmöjligheter då många gymkedjor och mindre lokala aktörer har valt att etablera sig här.
TA DIG ENKELT TILL STAN
Cityfärjan Älvsnabben går från Eriksbergskajen i tät trafik mellan båda sidor av älven. Det är ett bekvämt och snabbt sätt att resa till centrum utan bil och parkeringsbekymmer och samtidigt ett mycket tilltalande sätt att få se staden och vattnet. Det finns också bra förbindelser med buss till Göteborgs olika delar. Föredrar du bil går det enkelt att ta sig ut på de stora lederna.
Köpa, sälja eller värdera bostad i Eriksberg? Kontakta våra Bjurfors mäklare på Hisingen! Passa också på att anmäla dig till vår kostnadsfria söktjänst Boagenten som hjälper dig att hitta ditt drömboende.
Kontakta mäklaren om du behöver hjälp att ta fram en boendekalkyl.
När du köper din bostad genom Bjurfors kan du ansöka om bolån till en förmånlig ränta hos vår samarbetspartner SEB.
Bokad visning. Kontakta mäklaren för anmälan.
Ansvarig mäklare