-
Köpa
Köpa -
Sälja
Sälja - Hitta bostad
- Skapa bevakning
- Hitta mäklare
Populär förening med låg avgift och gemensam pool
Eriksberg, Göteborg
*Obligatoriskt tillägg tillkommer för kabel-TV om 205 kr. Den totala kostnaden blir 3 866 kr. Separat mätning av vatten och el via månadsavin, man betalar efter sin egen förbrukning.
**Areauppgifter enligt bostadsrättsföreningen.
Registrerad som 3 ROK enligt lägenhetsförteckning.
På Förhand ligger bostäder som av olika anledningar inte är ute till försäljning just nu men som kan komma att säljas om förutsättningarna är rätt.
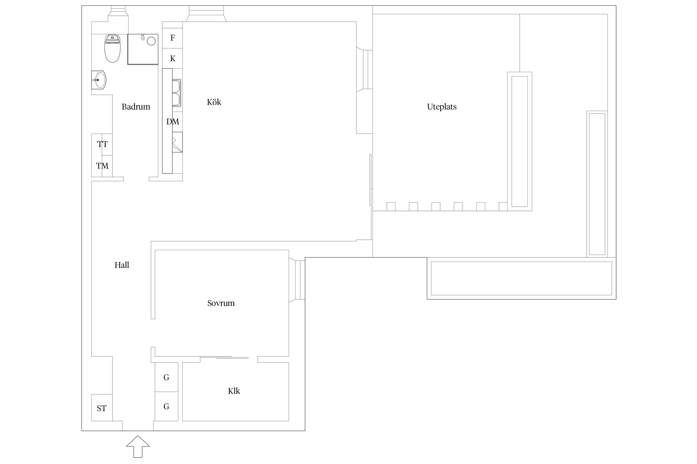
Stora ytor och privat läge utan insyn kännetecknar denna lägenhet längs Ostindiefararen
MÖJLIGT ATT BYGGA ETT UTERUM PÅ UTEPLATSEN. EGEN UTGÅNG TILL DEN UPPVÄRMDA POOLEN.
Välkommen till denna stora tvåa med en generös terrass som ligger i ett privat söderläge utan insyn där du kan skapa din egna oas. Uteplatsen ligger i ett upphöjt läge där du på sommaren har sol från morgon till kväll. Altanen går att byggas ut om man skulle vilja använda hela ytan. Här välkomnas du till en ljus bostad med välplanerade kvadratmetrar och fönster i alla rum som låter ljuset sprida sig fint i bostaden. Öppen planlösning mellan kök och vardagsrum ger dig enkla ytor att möblera samt möjlighet att duka upp för långbord när du bjuder in till mingel eller fest. Ett stort sovrum med plats för dubbelsäng och garderober. Här finns också en rymlig klädkammare som även går att använda som kontor. I en unik och eftertraktad HSB förening får du som boende guldkant i vardagen. Som boende i huset har du tillgång till föreningens pool med solstolar, bastu, festlokal, gästlägenhet och tvättstuga.
Föreningen har låga lån om ca 3 700 kr/kvm. Högt mervärde med den låga avgiften.
Vid foten av föreningens hus finner du småbåtshamnen. Eriksbergskranen står som ett monument från den gamla varvsindustrin och sätter sin prägel på området kring dockan. Bo med närhet till mataffärer, restauranger, träningsanläggningar och goda kommunikationsmöjligheter via buss och båt. I omedelbar närhet ligger även den grönskande Färjenäsparken.
HALL
Trevlig entréhall med platsbyggda garderober samt yta för hatthylla och annat möblemang. Stora fönster, några från golv till tak gör att ljuset sprids fint i bostaden. I hallen är det en tapetserad vägg och modern ekparkett.
SOVRUM
Till höger i hallen ligger bostadens sovrum. I sovrummet finns plats för en större dubbelsäng och nattduksbord. I sovrummet finns en stor klädkammare som även går att använda som kontor.
VARDAGSRUM
I ljust söderläge ligger vardagsrum i skön harmoni med öppen planlösning mot köket. Golvet byttes 2024 till ett ljust parkettgolv. Stora fönsterpartier från golv till tak, gör bostaden mycket ljus och trevlig.
KÖK
Modernt och påkostat kök med vita luckor. Här finns spishäll, inbyggd varmluftsugn och micro (2020) samt kyl och frys i fullhöjd. Dessutom en helintegrerad diskmaskin. Bänk av ljusgrå laminat och ovan denna sitter grått smalt kakel. Bra arbetsyta och stora ytor för matbord.
TERRASS
Utanför sovrummet och mot gården ligger en stor terrass i privat läge. En helt ljuvlig plats att koppla av och njuta av solen. Terrassen ligger mot gården där du har blick över föreningens pool.
Perfekt balkong att bjuda in vänner och ha en grillkväll en sommarkväll och kanske ett dopp i poolen.
BADRUM
Badrummet ligger vid entrén och har kaklade väggar med vita kakelplattor och på golvet ligger ljusgrått klinker. Här finns vägghängt wc, dusch med glasväggar samt tvättställ med underskåp och belyst spegel. I badrummet finns även en tvättdel med både tvättmaskin och torktumlare. Praktisk bänk av laminat för klädvård. Ovan tvättbänken finns två vägghängda förvaringsskåp. I taket sitter dimbar belysning. Golvet har komfortvärme och det finns en handdukstork samt ett praktiskt vädringsfönster.



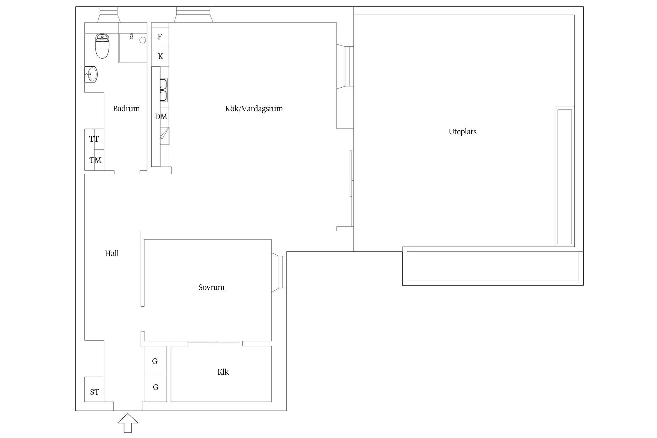
Alternativ planlösning: Uteplatsen går att bygga ut
*Areauppgifter enligt bostadsrättsföreningen.
Registrerad som 3 ROK enligt lägenhetsförteckning.
Obligatoriskt tillägg tillkommer för kabel-TV om 205 kr. Den totala kostnaden blir 3 866 kr. Separat mätning av vatten och el via månadsavin, man betalar efter sin egen förbrukning.
Bostadsrättens indirekta nettoskuldsättning har inte varit möjlig att räkna fram, eftersom relevant andelstal inte gått att få fram från föreningen eller förvaltaren.
*Betalas av säljare
Hsb Brf Ängön består av 103 lägenheter samt tre lokaler, fördelade på två niovånings lamellhus. Byggår: 2012/2013.
På gården mellan de två husen har föreningens medlemmar tillgång till uppvärmd utomhuspool med soldäck. Där går det att bada från maj till september. Här får man både morgon- och kvällssol.
Behöver jag teckna ett elavtal eller vattenavtal?
Nej, detta sköter föreningen åt medlemmarna. Individuell mätning tillämpas för el, varm- och kallvatten. Detta debiteras via kvartals-avi.
Vänligen se föreningens informativa hemsida för mer information: http://brfangon.se/
Föreningen har god ekonomi och tänker framåt och planerar ekonomin utifrån det. Låg belåningsgrad på enbart ca 4100 kr/kvm bostadsyta. Räknar man in även hyreslokalerna blir det ca 3700 kr/kvm, vilket är låg belåning.
Månadsavgiften i föreningen består av två delar, en driftsdel (skötsel av huset, värme etc) samt en kapitaldel (räntekostnad för föreningens lån). När huset var nytt fick förste ägaren välja om man ville betala ett högre pris för bostaden och slippa kapitaldelen. En del bostäder har därför låg månadsavgift som bara inkluderar driftsdelen. Föreningen har en plan om att höja avgiften för just driftsdelen runt 10 % per år. Beslut tas varje år om detta för att spara undan pengar för framtida underhåll av huset.
Avgifterna justerades planenligt 1 januari 2025
Driftsdelen av månadsavgiften förväntas följa prisutvecklingen och man får räkna med en liten justering varje år. Kapitaldelen av månadsavgiften beror på kommande ränteutveckling.
Inga nya avgiftsjusteringar beslutade.
Fastigheten är fullvärdesförsäkrad via Moderna försäkringar.
Fasadfogning skedde 2025 och den nya fogen har en livslängd på 20 år och garantin gäller i fem år.
Inga större renoveringar är planerade. Föreningen har en underhållsplan som följs.
29 garageplatser finns under huset i garaget finns elbilsplatser. Till dessa är det lång kö kostnad 1300 kr/månad och 1600 kr/mån för el-plats. Utöver huset har föreningen platser i ett garage på Dockans västra sida (Monsungatan 49, Sannegården GA:36). Går att hyra för 1300 kr/mån. I detta garage finns också möjlighet till elbilsplats (1600 kr/mån). Dessa garageplatser hanteras av Apcoa parkering på Tel: 08-556 306 70 - kontakta dem för frågor.
Utanför Ängön finns ca 10 st korttidsparkering för gäster och boende, samtliga är begränsade till 2 timmar och delas med boende i området. För längre tillfällig parkering hänvisas till området vid Hotell 11 samt parkeringarna i norra och södra delen av småbåtshamnen.
Mc kostar 585 kr/mån.
Föreningen har avtal med Telia för TriplePlay innefattande bredband om 250/250 Mbps via fiber in till samtliga lägenheter. Ett basutbud av TV-kanaler samt TV-box ingår i detta abonnemang. Vill man ha ytterligare kanalpaket, fast telefoni eller utöka sin bredbandsuppkoppling så behöver man på egen hand kontakta Telia och teckna abonnemang
På gården mellan de två husen har föreningens medlemmar tillgång till uppvärmd utomhuspool med soldäck. Där går det att bada från maj till september. Här får man både morgon- och kvällssol.
Bastu
Bastun finns i Gårdshuset. I direkt anslutning till bastun finns omklädning och dusch. En bokning kostar 30 kr och varar i 3 timmar.
Övernattningsrum 1
Finns i Gårdshuset på innergården. Vid bokning av lokalen kommer du automatiskt in i Gårdshuset med din tagg. Rummet har två enkelsängar samt extra säng. Madrass, täcke och kuddar finns. Rummet kostar 300 kr per dygn.
Övernattningsrum 2
Denna finns i västra delen i hus 2 (norra huskroppen) på entréplan. En dubbelsäng och egen toalett finns. Rummet kostar 300 kr per dygn.
Mötesrum / föreningslokal
I Gårdshuset finns även en möteslokal med pentry till medlemmarnas förfogande. Den går att boka dagtid (7-16) och kvällstid (16-03) för 100 kr respektive 200 kr. Priserna gäller för medlemmar som bokar själva. I pentryt finns en liten kyl, spisplatta och köksutrustning för servering (men ej för tillredning). Det finns även projektor och tillhörande duk som lämpar sig för media eller storbilds-TV. I lokalen ryms 8-12 personer sittande. När vädret tillåter kan man öppna upp mot innergården och ha större tillställningar.
Tvättstuga
I entréplan i ett av husen finns en tvättstuga med 3 stora tvättmaskiner, torktumlare, torkskåp samt mangel.
Förråd, cykel och barnvagnsrum
Till varje lägenhet hör ett källarförråd. Det finns också två cykelförråd och barnvagnsrum.
Individuellt medlemskap i HSB krävs för att bli medlem i föreningen.
BO MED VATTNET SOM GRANNE
På Eriksberg blandas nybyggt och modern design med fastigheter från den tidigare varvtiden. Mixen av gammalt och nytt har blivit prisad för sin goda arkitektur. När du bor här är närheten till vattnet påtagligt samtidigt som området bjuder på ett stort nöjesutbud alldeles runt knuten.
MED UTSIKT ÖVER VATTNET
När du bor i Eriksberg börjar du kanske dagen med en promenad eller löptur längs den träskodda kajen som går längs vattnet i flera kilometer. Vattnet tillsammans med närheten till många grönområden gör att du alltid kan känna av naturen när du bor på Eriksberg. Vid foten av Älvsborgsbron ligger Färjenäsparken som bjuder på många vackra vyer och ett grönområde att promenera i. Området har tre stora lekplatser och en fotbollsplan vilket gör det till en populär plats för barnfamiljer och en perfekt plats för lek och picknick. Parken är under utveckling för att bli till en plats för evenemang, aktiviteter och rekreation. Krokängsparken och Sörhallsberget är två andra fina platser där du kan uppleva naturen. När du vill blicka ut över vattnet kan du strosa runt Eriksbergskranens småbåtshamn och upptäcka mysiga caféer och restauranger. Eller ta vara på en solig dag med att slå dig ner på däcket längs båthamnen i sällskap av en glass.
NÖJEN PÅ HEMMAPLAN
De gamla hamn- och varvsområdent har de senaste decennierna förvandlats till bostadsområden, arbetsplatser och stråk där du kan roa dig eller njuta av kulturlivet. Bebyggelsen runt Eriksberg består främst av flerfamiljshus som får ett lugn av havet. Du hittar ett varierat utbud av nöjen i form av olika butiker, restauranger, teater, evenemangshall, konstnärsateljéer och en idrottshall. För den idrottsintresserade ett stort utbud av träningsmöjligheter då många gymkedjor och mindre lokala aktörer har valt att etablera sig här.
TA DIG ENKELT TILL STAN
Cityfärjan Älvsnabben går från Eriksbergskajen i tät trafik mellan båda sidor av älven. Det är ett bekvämt och snabbt sätt att resa till centrum utan bil och parkeringsbekymmer och samtidigt ett mycket tilltalande sätt att få se staden och vattnet. Det finns också bra förbindelser med buss till Göteborgs olika delar. Föredrar du bil går det enkelt att ta sig ut på de stora lederna.
Köpa, sälja eller värdera bostad i Eriksberg? Kontakta våra Bjurfors mäklare på Hisingen! Passa också på att anmäla dig till vår kostnadsfria söktjänst Boagenten som hjälper dig att hitta ditt drömboende.
Kontakta mäklaren om du behöver hjälp att ta fram en boendekalkyl.
När du köper din bostad genom Bjurfors kan du ansöka om bolån till en förmånlig ränta hos våra banksamarbetspartners Söderberg & Partners och SEB.
Ansvarig mäklare