-
Köpa
Köpa -
Sälja
Sälja - Hitta bostad
- Skapa bevakning
- Hitta mäklare
Enastående panoramautsikt ut över älvens vatten
Eriksberg, Göteborg
*I avgiften ingår värme, vatten, bredband och tv via Telia.
**Areauppgifter enligt bostadsrättsföreningen.
På Förhand ligger bostäder som av olika anledningar inte är ute till försäljning just nu men som kan komma att säljas om förutsättningarna är rätt.
Bostaden fotas under vecka 7. Det är möjligt att boka en förhandsvisning redan nu så missa inte chansen att komma och kolla på denna bostad.
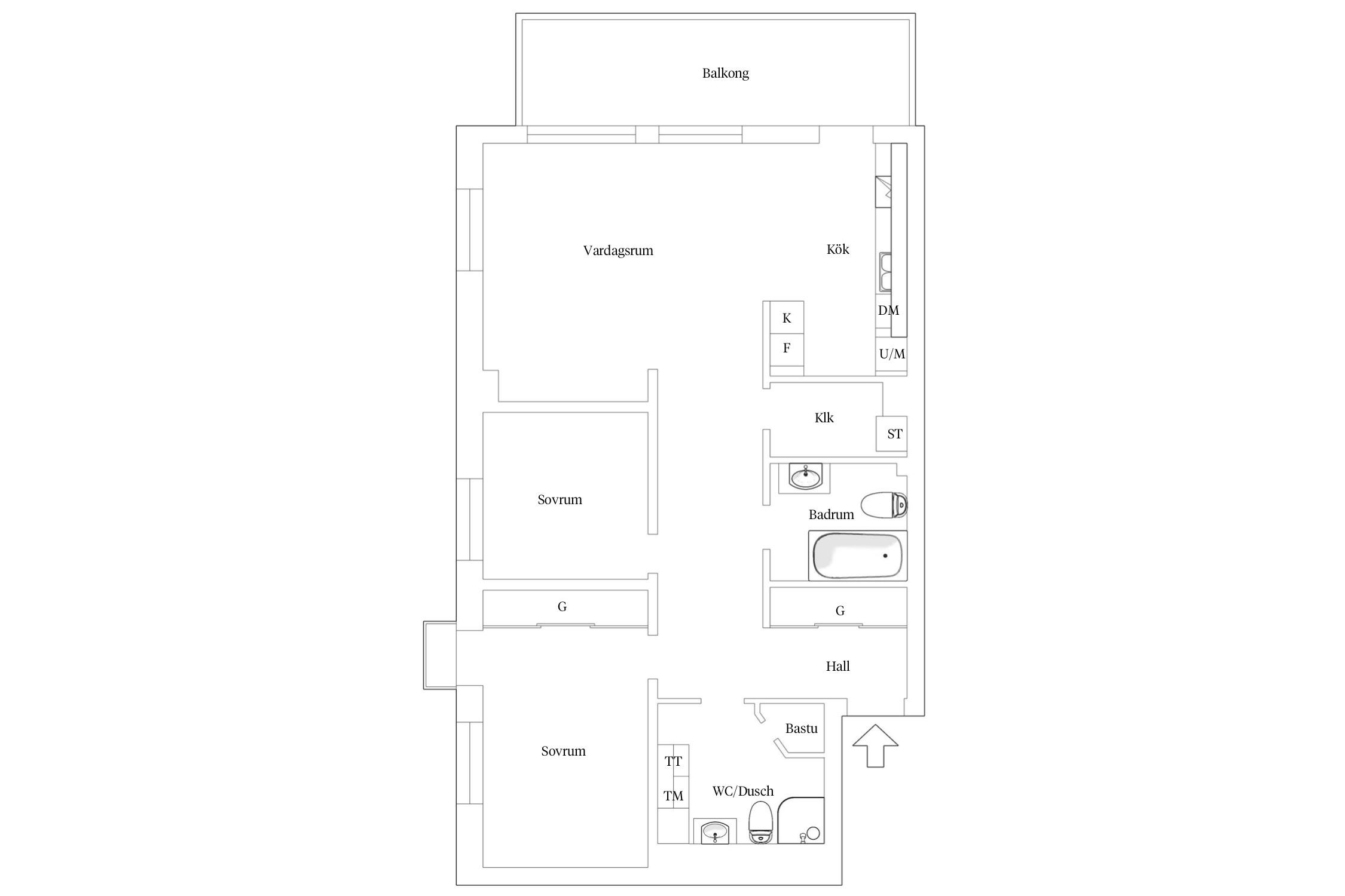
Denna fantastiska lägenhet om 98 kvm har ett exklusivt läge vid Göteborgs hamninlopp och erbjuder enastående utsikt över båtar och vatten direkt från din bostad. Med stora sociala ytor och ett hörnläge med älvutsikt från alla rum, kommer du att känna dig som hemma direkt. Bostaden har en optimal planlösning med stora ytor mellan kök och vardagsrum, två stora sovrum, två badrum varav ett med bastu samt klädkammare. Den stora balkongen i ett optimalt söderläge gör att du kan njuta av solen från morgon till kväll. Balkongen är möjlig att glasa in vid intresse.
I Brf Porthuset, som kännetecknas av dess läge och låga avgifter, erbjuds en bostad som verkligen är ett kap. Här ingår dessutom en garanterad garageplats – en stor fördel i området där parkeringsmöjligheter annars är begränsade. Med närhet till busshållplats och goda kommunikationer, färjeförbindelse längs kajen samt vackra promenadstråk vid vattnet och ett brett utbud av trevliga restauranger, är detta ett område att trivas i.
ENTRÉHALL
En bred entréhall med sobert grå klinker möter dig innanför entrédörren. Känslan av ljusa ytor och stora rumsvolymer är tydlig. Längst bort anar du älvspanoramat bakom de stora glaspartierna. En större skjutdörrsgarderob för kläder och skor.
SÄLLSKAPSYTOR
En tidlöst vacker ekparkett tar över och fortsätter ut i de stora och luftiga sällskapsytorna i öppen planlösning med köket. Interiören är skandinaviskt blond och öppen och miljön känns trygg och skyddad tack vare det höga och fria läget. Glaspartierna vetter mot söder och öst där ett massivt ljus fyller rummet större delen av dagen. Nedanför dig pågår ett ständigt skiftande sceneri med kajernas folkliv och båtarnas stilla färd ute på älven. Utsikten är svårslagen och ljuset faller in från två olika väderstreck.
KÖK
Kökets påkostade design är minimalistisk, med tidlöst vit inredning. Här finns mycket rymlig och smart förvaring samt stora arbetsytor. Köket är utrustat med kyl, frys, induktionshäll, fläkt, ugn, mikro (2024) samt diskmaskin (2023). Både matlagningen och måltiderna är självklart inramade av den enastående utsikten.
TERRASSBALKONG
En varm kväll står dörren till den stora terrassen öppen. Panoramautsikten och den speciella atmosfären blir än mer dramatisk, när ljusen börjar tändas på andra sidan älven. Möjligt att glasa in balkongen vid intresse.
MASTER BEDROOM
Från hallen, aningen avskilt från den övriga våningen, når du även master bedroom. Här faller kvällssolen in och ute på den lilla terrassbalkongen ser du landskapets skiftningar i grönt, berget som kommer i dagen och trädens grönska på höjden. Till vänster glittrar älvens vågor. Rummet har en hel garderobsvägg bakom diskreta skjutdörrar.
SOVRUM
Bostadens andra sovrum kan användas som ett kvadratiskt sov-, gäst- eller arbetsrum. Ekparketten går igen och glaspartiet har utsikt över Eriksbergsdockan och mot stan.
BADRUM 1
Det största badrummet ligger bara ett steg från master bedroom. Det är stort med moderna färger på kakel och klinker. Här finns våningens tvättavdelning under generösa arbetsytor och med förvaring i väggfasta skåp. Tvättmaskinen byttes ut 2026. Utöver wc, handfatskommod och dusch bakom klarglasväggar finns en hörnbastu med glasdörrar och dämpad belysning.
BADRUM 2
Bostadens andra badrum har mörk klinker och vitt kakel. Här finns ett badkar, wc, handfatskommod och handdukstork.
Utanför lägenheten finns ett stort förråd.



*Areauppgifter enligt bostadsrättsföreningen.
I avgiften ingår värme, vatten, bredband och tv via Telia.
Bostadsrättens indirekta nettoskuldsättning baseras på föreningens skulder/lån minus föreningens räntebärande tillgångar och likvida medel. Beräkningen är gjord och baseras på senaste tillgängliga årsredovisningen. För mer information kontakta ansvarig fastighetsmäklare.
*Betalas av säljare
Brf Porthuset består av 15 bostadsrättslägenheter, alla med ett magnifikt läge precis vid vattnet. Till fastigheten hör också en lokal som hyrs ut. Bostäderna stod klara för inflyttning 2012. Byggföretag var NCC Boende. Föreningen äger fastigheten Sannegårdshamnen 59:1. Ekonomiska förvaltningen sköts av Nabo.
Föreningen har en stabil ekonomi med belåning per/kvm om 5 055 kr vilket är lågt för snittet i området.
Finns inga planerade renoveringar av större slag utan föreningen följer underhållsplanen.
Föreningen har garage där en plats per lägenhet garanteras med 1 månads varsel. Fler kan eventuellt erbjudas.
Kostnad 1300 kr/ månaden. Laddplats kostar 1475 + elen efter förbrukning.
Bredband, Tv levereras från Telia
Cykelrum och barnvagnsrum.
Gemensamhetsanläggning och samfällighetsförening: Föreningen har andelar i två gemensamhetsanläggningar: GA:10 (sopsugsanläggning) samt GA:36 (garageanläggning) samt i samfälligheten Sannegården S:24 (den mark som garaget i GA:36 är byggt på).
BO MED VATTNET SOM GRANNE
På Eriksberg blandas nybyggt och modern design med fastigheter från den tidigare varvtiden. Mixen av gammalt och nytt har blivit prisad för sin goda arkitektur. När du bor här är närheten till vattnet påtagligt samtidigt som området bjuder på ett stort nöjesutbud alldeles runt knuten.
MED UTSIKT ÖVER VATTNET
När du bor i Eriksberg börjar du kanske dagen med en promenad eller löptur längs den träskodda kajen som går längs vattnet i flera kilometer. Vattnet tillsammans med närheten till många grönområden gör att du alltid kan känna av naturen när du bor på Eriksberg. Vid foten av Älvsborgsbron ligger Färjenäsparken som bjuder på många vackra vyer och ett grönområde att promenera i. Området har tre stora lekplatser och en fotbollsplan vilket gör det till en populär plats för barnfamiljer och en perfekt plats för lek och picknick. Parken är under utveckling för att bli till en plats för evenemang, aktiviteter och rekreation. Krokängsparken och Sörhallsberget är två andra fina platser där du kan uppleva naturen. När du vill blicka ut över vattnet kan du strosa runt Eriksbergskranens småbåtshamn och upptäcka mysiga caféer och restauranger. Eller ta vara på en solig dag med att slå dig ner på däcket längs båthamnen i sällskap av en glass.
NÖJEN PÅ HEMMAPLAN
De gamla hamn- och varvsområdent har de senaste decennierna förvandlats till bostadsområden, arbetsplatser och stråk där du kan roa dig eller njuta av kulturlivet. Bebyggelsen runt Eriksberg består främst av flerfamiljshus som får ett lugn av havet. Du hittar ett varierat utbud av nöjen i form av olika butiker, restauranger, teater, evenemangshall, konstnärsateljéer och en idrottshall. För den idrottsintresserade ett stort utbud av träningsmöjligheter då många gymkedjor och mindre lokala aktörer har valt att etablera sig här.
TA DIG ENKELT TILL STAN
Cityfärjan Älvsnabben går från Eriksbergskajen i tät trafik mellan båda sidor av älven. Det är ett bekvämt och snabbt sätt att resa till centrum utan bil och parkeringsbekymmer och samtidigt ett mycket tilltalande sätt att få se staden och vattnet. Det finns också bra förbindelser med buss till Göteborgs olika delar. Föredrar du bil går det enkelt att ta sig ut på de stora lederna.
Köpa, sälja eller värdera bostad i Eriksberg? Kontakta våra Bjurfors mäklare på Hisingen! Passa också på att anmäla dig till vår kostnadsfria söktjänst Boagenten som hjälper dig att hitta ditt drömboende.
Kontakta mäklaren om du behöver hjälp att ta fram en boendekalkyl.
När du köper din bostad genom Bjurfors kan du ansöka om bolån till en förmånlig ränta hos vår samarbetspartner SEB.
Ansvarig mäklare