-
Köpa
Köpa -
Sälja
Sälja - Hitta bostad
- Skapa bevakning
- Hitta mäklare
Högt läge där ljuset får fritt spelrum
Eriksberg, Göteborg
*I avgiften ingår vatten, värme, tv och bredband.
**Areauppgifter enligt säljaren och bostadsrättsföreningen
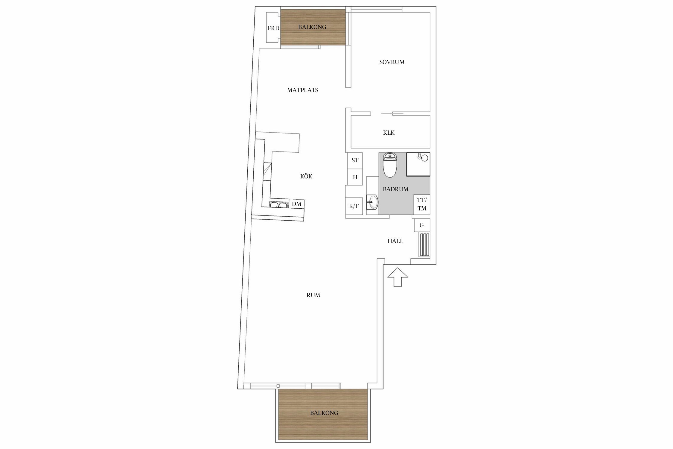
Genom smart planlösning och generösa ytor kan du förändra planritningen till en trea.
I hjärtat av Eriksberg finner ni här ert nya drömboende. Bostaden har öppna och generösa sociala ytor där du har plats för stora sällskap, matsalsbord och vardagsrumsmöbler utan att tumma på storleken. Genomgående sobra färgval tillsammans med gediget ljusinsläpp ger ett harmoniskt hem. Bostadens höga läge ger en känsla av frihet samtidigt som ljuset får fritt spelrum. Här finner ni två balkonger. Den ena nås från köket i västerläge med anslutande förråd där ni njuter av kvällssolen. Inglasningen gör att balkongen kan nyttjas under större delen av året. I anslutning till vardagsrummet nås den andra balkongen i lugnt gårdsläge med vy mot älven och dess rika båtliv. Vardagsrummets yta ger möjlighet att göra om till två sovrum och flytta vardagsrummet dit sovrummet är idag.
Bara någon minut från bostaden når du Eriksbergs kajstråk där du kan promenera eller ta en löprunda eller en ta en picknick på Sörhallsberget. Du passerar levande småbåtshamnar, mysiga kaféer och den kreativa blandningen av toppmodern arkitektur och gammal historisk varvskultur. I detta omtyckta område är det promenadavstånd till köpcentrum, matbutiker, cafeér, småbutiker, restauranger och gym. Goda kommunikationer med buss eller båt, hållplats i nära anslutning till bostaden.
Direkt när du kliver över tröskeln känner du att det här är något utöver det vanliga. Specialdesignade detaljer för denna bostaden. På golvet i entrén har du slitstark matta (under finns klinker) som sedan övergår i ekparkett i valnötslackad ton, vilket är genomgående för bostaden. Skjutdörrar med spegelglas. Största delen av lägenheten målades om 2024.
Sedan öppnar upp sig vardagsrum och kök med generös rymd. Planerad i fil med fönster i två väderstreck ger stort naturligt ljusinsläpp. Vardagsrumsdelen är till ytan stor och kan omvandlas till två sovrum. Här når du balkongen i öster. En rogivande plats där du kan blicka ner mot vattnet i Göta Älv. Solens strålar når hit under förmiddagen.
Köket är modernt med rostfria detaljer och varma toner. Praktisk arbetsbänk med diskho snyggt integrerad. Väggen ovan är klädd grå mosaik. En lyxig detalj är vinkylen. Kombinerad kyl och frys i anslutning till köket. Vidare hittar du diskmaskin (2022), micro, ugn och fläkt. Matplatsen är kökets hjärta. En plats för många middagsgäster eller perfekt mingelplats.
Från köket når du bostadens andra balkong, belägen i väster. Denna glasades in under 2025. Här njuter du av solens sena timmar. Ett förråd finns på balkongen för vinterförvaring av möbler och annat.
Sovrummet ligger i anslutning till köket. Idag finns en sänggavel som är designa för just denna bostad. Plats för säng och förvaringsmöbel. Klädkammaren är inredd så du får plats med allt du behöver.
Badrummet är modernt inrett i ljusa toner som inger en lyxig känsla. På golvet, klinker och väggarna är beklädda med kakel. Duschen avskils av frostade dörrar. På en armlängds avstånd finns handdukstork. Handfat med tillhörande spegel och belysning. Vidare finner du wc-stol och tvättmaskin från 2023.



ALTERNATIV PLANLÖSNING, Obs, ombyggnad kräver godkännande från föreningen.
*Areauppgifter enligt säljaren och bostadsrättsföreningen
I avgiften ingår vatten, värme, tv och bredband.
Garageplats. Går att hyra för 800 kr/mån. Till garageplatsen är det separat kö. Det finns också ett kallgarage i närheten där det kostar 600 kr/mån. Separat kö.
Bostadsrättens indirekta nettoskuldsättning baseras på föreningens skulder/lån minus föreningens räntebärande tillgångar och likvida medel. Beräkningen är gjord och baseras på senaste tillgängliga årsredovisningen. För mer information kontakta ansvarig fastighetsmäklare.
*Betalas av köpare
Föreningens fastighet Sannegården 28:32 omfattar 58 bostadsrätter med en sammanlagd boarea om 4.545 kvm och en lokal om 106 kvm, uppförda 2003 i ett flerbostadshus i sju våningar.
Den ekonomiska förvaltningen sköts av Nabo mäklarservice och den tekniska förvaltningen av styrelsen.
För den dagliga skötseln anlitar föreningen Älvens Fastighetsservice AB, som hanterar alla vanligen förekommande fastighetsfrågor, såsom städning av trapphus, belysning och utrustning i gemensamma utrymmen, utemiljön, planteringar, snöröjning etc
Älvens Fastighetsservice AB kan även anlitas direkt av föreningens medlemmar om hjälp önskas med sådant i den egna lägenheten som hör till medlemmens ansvar.
Föreningen är med i Eriksbergs samfällighet, www.eriksbergssamfallighet.se
Föreningen höjde avgiften med 5 % från 1/7-2024.
Nya beslut om avgiftshöjning sker i april.
Fastigheten är fullvärdesförsäkrad hos moderna försäkringar.
Mer information finns i årsredovisningen.
2024: byta termostater och ventiler till radiatorerna
Varmgarage kan hyras fn 900 :-/månad, separat kö. Samtliga platser har laddstolpe. Laddstolpe kostar 150 kr extra per månad + elförbrukning.
Ett P-hus (kallgarage) är dessutom byggt mot Sörhallsberget -medlemmar i Brf Fyrskeppet anmäler sig till styrelsen i Fyrskeppet för att ställa sig i garagekön. Fn 800 :-/månad.
En bit från fastigheten (Friskis & Svettis) finns ett separat P-hus; Deckshuset; bokas via, Aspelin-Ramm Fastigheter AB. https://deckshuset.se/
Det är kö till bägge garagen, ca. 6 stycken till vardera.
Kontakt för garagefrågor hänvisas till styrelsen på denna mailadress. eriksberg.fyrskeppet@gmail.com
Föreningen har även tillgång till 2 stycken uteplatser i närheten. I dagsläget kö.
Fiberdatanätverk - med datauttag i alla rum. Bredbandsuppkoppling (via Telenor) ingår i avgiften (250 mbit/s)
Digital-TV med över 20 kanaler i basutbudet.
Föreningen har en gemensamhetslokal med övernattningsmöjligheter samt en tvättstuga med två tvättmaskiner, torktumlare, torkskåp och mangel. Dessutom har föreningen cykelförråd.
I maj 2024 fick föreningen godkänt att glasa in balkongerna mot Östra Eriksbergsgatan. Kontakta styrelsen för att få information.
BO MED VATTNET SOM GRANNE
På Eriksberg blandas nybyggt och modern design med fastigheter från den tidigare varvtiden. Mixen av gammalt och nytt har blivit prisad för sin goda arkitektur. När du bor här är närheten till vattnet påtagligt samtidigt som området bjuder på ett stort nöjesutbud alldeles runt knuten.
MED UTSIKT ÖVER VATTNET
När du bor i Eriksberg börjar du kanske dagen med en promenad eller löptur längs den träskodda kajen som går längs vattnet i flera kilometer. Vattnet tillsammans med närheten till många grönområden gör att du alltid kan känna av naturen när du bor på Eriksberg. Vid foten av Älvsborgsbron ligger Färjenäsparken som bjuder på många vackra vyer och ett grönområde att promenera i. Området har tre stora lekplatser och en fotbollsplan vilket gör det till en populär plats för barnfamiljer och en perfekt plats för lek och picknick. Parken är under utveckling för att bli till en plats för evenemang, aktiviteter och rekreation. Krokängsparken och Sörhallsberget är två andra fina platser där du kan uppleva naturen. När du vill blicka ut över vattnet kan du strosa runt Eriksbergskranens småbåtshamn och upptäcka mysiga caféer och restauranger. Eller ta vara på en solig dag med att slå dig ner på däcket längs båthamnen i sällskap av en glass.
NÖJEN PÅ HEMMAPLAN
De gamla hamn- och varvsområdent har de senaste decennierna förvandlats till bostadsområden, arbetsplatser och stråk där du kan roa dig eller njuta av kulturlivet. Bebyggelsen runt Eriksberg består främst av flerfamiljshus som får ett lugn av havet. Du hittar ett varierat utbud av nöjen i form av olika butiker, restauranger, teater, evenemangshall, konstnärsateljéer och en idrottshall. För den idrottsintresserade ett stort utbud av träningsmöjligheter då många gymkedjor och mindre lokala aktörer har valt att etablera sig här.
TA DIG ENKELT TILL STAN
Cityfärjan Älvsnabben går från Eriksbergskajen i tät trafik mellan båda sidor av älven. Det är ett bekvämt och snabbt sätt att resa till centrum utan bil och parkeringsbekymmer och samtidigt ett mycket tilltalande sätt att få se staden och vattnet. Det finns också bra förbindelser med buss till Göteborgs olika delar. Föredrar du bil går det enkelt att ta sig ut på de stora lederna.
Köpa, sälja eller värdera bostad i Eriksberg? Kontakta våra Bjurfors mäklare på Hisingen! Passa också på att anmäla dig till vår kostnadsfria söktjänst Boagenten som hjälper dig att hitta ditt drömboende.
Kontakta mäklaren om du behöver hjälp att ta fram en boendekalkyl.
När du köper din bostad genom Bjurfors kan du ansöka om bolån till en förmånlig ränta hos vår samarbetspartner SEB.
Ansvarig mäklare