-
Köpa
Köpa -
Sälja
Sälja - Hitta bostad
- Skapa bevakning
- Hitta mäklare
Unik gaveletta i etage med 5m till taknock
Högsbo, Göteborg
*Värme, vatten och kabel-TV (Obligatoriskt tillägg för bredband 119kr/mån). Den totala månadsavgiften blir således 3 164kr.
**
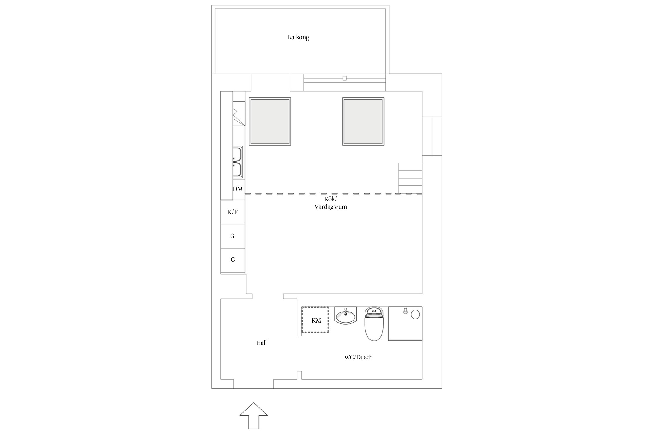
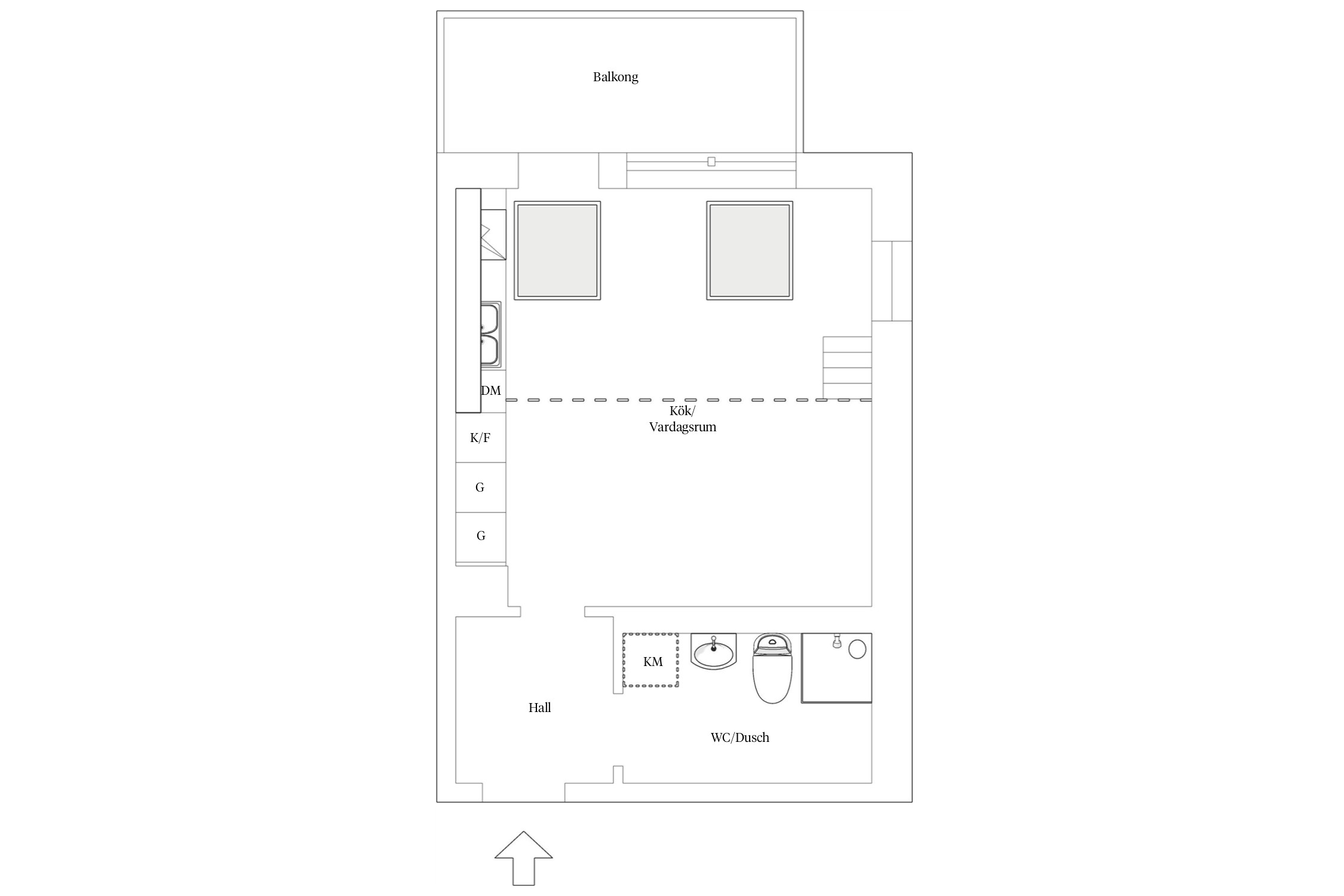
1rok + loft
På Förhand ligger bostäder som av olika anledningar inte är ute till försäljning just nu men som kan komma att säljas om förutsättningarna är rätt.
Snart kommer denna lyxiga taketta med ca 5m till nock att erbjudas på Handelsmyntet 16, i ett av västra Göteborgs mest attraktiva områden.
Snart ges ett utsökt tillfälle att förvärva denna unika 1,5 rok på Handelsmyntet 16, belägen på husets gavel och med ett stort loft. Här bor och trivs du över 43 välplanerade kvadratmeter som disponeras i en öppen och social samklang. Generösa ytor, solrik balkong och vackert ljusspel är endast få av de attribut som förhöjer denna bostads charm och karaktär. En kvalitétsbostad utöver det vanliga som genomgående andas hög standard och komfort.
På gränsen mot Kungsladugård, i grönskande Högsbo, finner ni denna nyproducerade och kvadratsmarta etta. Resultatet är gott med estetiskt tilltalande arkitektur som tydligt har inspirerats av Högsbos fina 50-talskaraktär. Bostaden har en en uppskattad balkong västerläge. Här finner ni ett modernt kök från Vedum och vitvaror från Electrolux. Genomgående kvalitativa materialval i form vitpigmenterad ekparkett och slätmålade väggar i vitt som ger en skön grund att bygga vidare på med personliga val. Bekvämt boende med både hiss och låst garage i anslutning till fastigheten. Till lägenheten hör ett förråd som underlättar förvaringen.tt sällsynt tillfälle att skaffa ett boende med hög kvalité och uppskattade trivselvärden som Slottsskogen, Änggårdsbergen och storstadspulsen inom räckhåll på en och samma gång. Brf Götaporten inger en stadskänsla med direkt närhet till både Axel Dahlströms torg och spårvagn som bara på några minuter tar dig direkt in mot citykärnan!



Planskiss nedre plan
Planskiss övre plan
*
1rok + loft
Värme, vatten och kabel-TV (Obligatoriskt tillägg för bredband 119kr/mån). Den totala månadsavgiften blir således 3 164kr.
Samtliga lägenheter har förråd. Det finns även stort cykelförråd samt extra tvätt- och torkmöjligheter.
Balkong i soligt västerläge. Sol från lunch till solnedgång sommartid.
Parkeringsplats finns att hyra i föreningens garage mot en kostnad om 1200/mån. Varje parkering har laddplats.
Kabel-TV ingår i avgiften
Bredband fiber från Bredbandsbolaget.
Bostadsrättens indirekta nettoskuldsättning baseras på föreningens skulder/lån minus föreningens räntebärande tillgångar och likvida medel. Beräkningen är gjord och baseras enbart på den senaste tillgängliga årsredovisningen. För mer information kontakta ansvarig fastighetsmäklare.
*Betalas av köpare
Föreningen består av tre byggnader med totalt 95 lägenheter, varav 30 lägenheter i två av husen och 35 lägenheter i det tredje huset. Samtliga lägenheter har ett förråd i entréplan som ingår.
BO GRÖNSKANDE I STADSNÄRA HÖGSBO
När du bor i Högsbo har du vackra och gröna Slottsskogen, Änggårdsbergen och Botaniska trädgården alldeles runt knuten. Samtidigt är Högsbo ett citynära område som inte ger avkall på restaurangliv och nöjen.
LIKA NÄRA TILL NATUR SOM CITY
Stora delar av Högsbo ligger på berg och bergsluttningar och var du än bor i stadsdelen har du närhet till grönska. Knyt på dig löparskorna eller pumpa däcken på mountainbiken för en uppfriskande tur i Änggårdsbergen eller Slottsskogen – du har nära till båda. Det är inte heller långt till havets salta brus och ett dopp när andan faller på. Men när kvällen närmar sig låter kanske en värmande ramen eller läcker pasta lockande? Såväl restaurangstråken i Linné som de ambitiösa kvarterskrogarna vid Mariaplan nås på bara fem minuter med spårvagn från Marklandsgatan.
RETROKÄNSLA PÅ AXEL DAHLSTRÖMSTORG
Högsbo består till stor del av flerfamiljshus om tre- och fyravåningars av typen lamellhus i tegel eller puts i jordnära färger, som byggdes på 50- och 60-talet. Balkonger är en vanlig syn på den här typen av hus, vilket passar perfekt för såväl morgonkaffe som fredagsbubbel.
På Axel Dahlströms torg, som stod klart 1954, dras blickarna till konstnären Endre Nemes 50-talsverk Marmorintarsia, som innehåller 60 sorters marmor och sägs ha tagit över 7 500 timmar att färdigställa. Nemes var under en period på 40- och 50-talet föreståndare för Valands Konstskola. Men även om Högsbo bjuder på välbevarade retrovibbar behöver du inte vara orolig om du hellre föredrar ett nyproducerat boende. Stadsdelen utvecklas ständigt och här växer nytt fram vid sidan av det gamla i skön symbios med den omgivande naturen.
Högsbo är som en liten stad i staden, där Axel Dahlströms torg fortfarande är navet. Vid torget finns det matbutik, apotek, gym och bageri. Här hittar du också Axelhuset – en given mötesplats för alla åldrar – komplett med bibliotek, fritidsgård och öppen förskola.
KNUTPUNKTEN MARKLANDSGATAN
Marklandsgatan är områdets knutpunkt när det gäller kommunikation och här tar du dig smidigt vidare till andra delar av Göteborg. I Högsbo industriområde ligger köpcentrumet 421 och här har du ett komplett vardagsutbud med mataffär, restauranger, apotek och shopping. Frölunda Torg med sin förstklassiga shopping nås på under tio minuter med spårvagn och innerstans gator som Vallgatan och Magasinsgatan på ungefär en kvart.
Många barnfamiljer väljer att bo i Högsbo tack vare närheten till naturen och bra kommunikationer både in till centrala Göteborg som till Frölunda och söderut till Högsbo Industriområde och Sisjön. Förskolorna i Högsbotillhör Askim-Frölunda-Högsbo stadsdelsförvaltning, och det finns även flera föräldrakooperativ i stadsdelen. Du har också flera grundskolor runt om i stadsdelen.
Köpa, sälja eller värdera bostad i Högsbo? Kontakta våra mäklare i Västra Göteborg! Passa också på att anmäla dig till vår kostnadsfria söktjänst Boagenten som hjälper dig att hitta ditt drömboende.
Kontakta mäklaren om du behöver hjälp att ta fram en boendekalkyl.
När du köper din bostad genom Bjurfors kan du ansöka om bolån till en förmånlig ränta hos våra banksamarbetspartners Söderberg & Partners och SEB.