-
Köpa
Köpa -
Sälja
Sälja - Hitta bostad
- Skapa bevakning
- Hitta mäklare
30-talscharm möter moderna attribut
Kungshöjd, Göteborg
*Inkl: värme och vatten
**Enligt föreningens förvaltare.
På Förhand ligger bostäder som av olika anledningar inte är ute till försäljning just nu men som kan komma att säljas om förutsättningarna är rätt.
Bjurfors Century presenterar en mysig bostad med modernt kök och badrum.
Välkommen till en charmig och luftig bostad där genuin 1930-talscharm möter mer moderna attribut. Här möts du av genomgående takhöjd, höga fotlister och vackra golv som skapar en elegant och tidlös känsla. Köket är välutrustat och går i ljusa, tilltalande kulörer, medan badrummet är exklusivt renoverat så sent som 2023.
På Kungsgatan är atmosfären kontinental och starkt präglad av småskaliga butiker, trevliga restauranger och mysiga caféer. Du bor alldeles intill Operan, Hagas mysiga gränder och de grönskande alléerna i Linné- och Vasastaden. På några minuter når du Göteborgs bästa krogar, lummiga parker, saluhallar, shopping i världsklass och all tänkbar kommunikation.
Varmt välkommen!
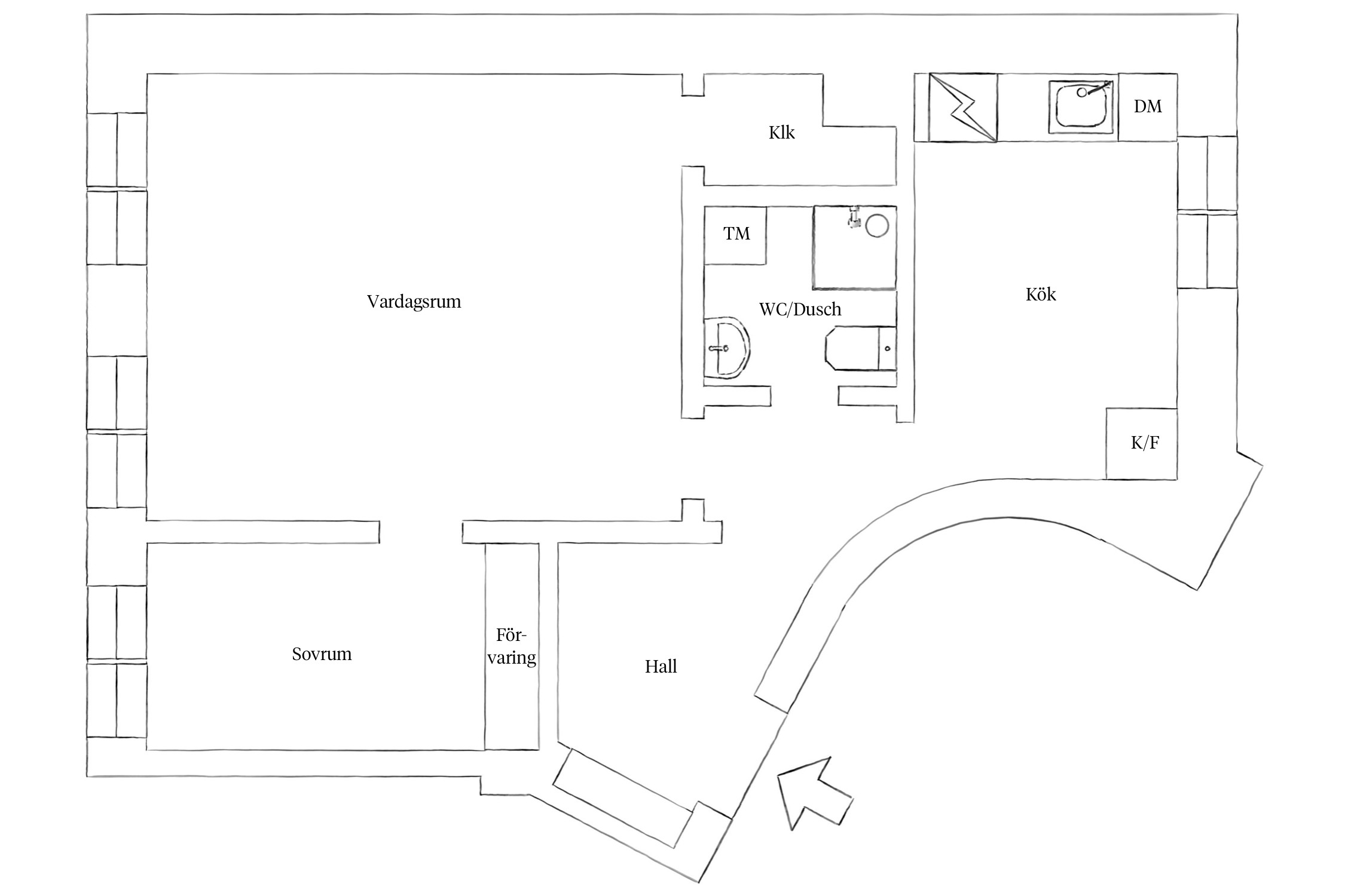
HALL
Vi välkomnas av en rymlig hall med gott om plats för avhängning av ytterkläder. Redan här breder den vackra parketten ut sig och leder oss tröskelfritt vidare in i det inbjudande vardagsrummet.
VARDAGSRUM
Bostadens vardagsrum är rymligt och lättmöblerat. Här finns gott om plats för både en soffa med tillhörande tv-möblemang och ett mindre matbord. Det underbara ljusinsläppet, tillsammans med de karaktäristiska fönsterblecken i sten och de höga fotlisterna, bidrar till en levande och charmig bostad.
SOVRUM
Intill vardagsrummet ligger det rofyllda och avskilda sovrummet. Här erbjuds ett mysigt krypin med plats för säng och möjlighet till en lugn natts sömn. Längs ena väggen finns generösa förvaringsmöjligheter. Förvaringen kompletteras dessutom av en rymlig klädkammare med ingång från vardagsrummet
KÖK
Köket är utrustat med en stilren kyl/frys från Smeg, ugn, spishäll och diskmaskin. Underskåpen går i en modern grå nyans och erbjuder gott om förvaring. Ovanför den stilrena köksbänken finns öppna hyllplan som både är praktiska och ger köket karaktär. Längs väggen, mittemot köksfönstret, har matplatsen sin naturliga plats.
BADRUM
Det exklusiva badrummet totalrenoverades 2023 och präglas av stilrena materialval. De stora kakelplattorna ger rummet karaktär och samspelar elegant med den mörka inredningen. Här finns bekvämligheter som golvvärme, dusch, wc, handfat samt en kombinerad tvättmaskin och torktumlare.
Varmt välkommen på visning!



*Enligt föreningens förvaltare.
Inkl: värme och vatten
Till bostaden hör ett vindsförråd.
Vidare tillhandahåller föreningen tvättstuga och cykelparkering.
I området gäller boendeparkering via Göteborgs Stad.
Bostadsrättens indirekta nettoskuldsättning baseras på föreningens skulder/lån minus föreningens räntebärande tillgångar och likvida medel. Beräkningen är gjord och baseras enbart på den senaste tillgängliga årsredovisningen.
*Betalas av köpare
Brf Hästbacken 4 förvärvade fastigheten i december 2004 och upplåter 40 lägenheter med bostadsrätt samt en hyresrätt och tre lokaler med hyresrätt. Föreningen äger sin mark.
Det finns två entréer, en via Kungsgatan 8 och en via Lasarettsgatan 2.
1992 Fönsterrenovering
1996 Totalrenovering av fastigheter, stammar byttes ut
2005 Fasad tvättades och impregnerades
2006 Yttertak
2009 Värmecentralen renoverades
2010 Ventilationskontroll samt grind mot Lasarettsgatan 2 installerades
2014 En omfattande brandöversyn har gjorts i huset där branddörrar, brandvarnare och utrymningsskyltar setts över
2015 Balkongbyggnation
2015 Tvättstugan har rustats upp
2017 Uppfräschning av trapphusen; målat om samtliga bostadsdörrar, nya entrépartier inklusive nya entrédörrar från Lasarettsgatan och Kungsgatan 8, installerat nytt passagesystem och ny belysning
2019 Fasad- och balkongrenovering
2019: Utbyte av stammar och rör i källare.
2020 Muren kring "tårtbiten" terrassen har rustats upp
2021: Renovering av mur och uteplats mellan Kungsgatan och Lasarettsgatan
2021: Omfattande service av hissar
2021: Byte av samtliga fläktar på tak.
2023: Mindre renovering av mur mot Lasarettsgatan samt entréer Lasarettsgatan och Kungsgatan.
2024: Byte av rör i källaren
2024: Fogning fasad mot gården Lasarettsgatan.
2024: Renovering av fasaden mot Elverket
2024/2025: Åtgärdat vattenläcka
Föreningen förvaltas av Nabo
Föreningen har tre hyreslokaler. Dessutom finns en kvarvarande hyresrätt vilken är att betrakta som en dold tillgång. Föreningen betalade av 1 miljon på ett av lånen 2022.
Inga planerade avgiftsförändringar (kontrollerat med ordförande 2025-11-26).
I området gäller boendeparkering via Göteborgs Stad
Tv via Tele2, ett grundutbud ingår i avgiften. Internet via Tele2 eller via Fiber som är indraget i fastigheten. Ingår ej i avgiften.
Tvättstugan är belägen i uppgången på Lasarettsgatan 2, nära och bra till lägenheten. I föreningen finns också en större uteplats och gemensamma balkonger att nyttja. Soprum nås från innergården. På innergården går det även att parkera cyklar. I källaren på Kungsgatan 8 finns det möjlighet att parkera cyklar och barnvagnar.
BO MED STORSLAGEN UTSIKT
När du väljer att bo på Kungshöjd har du alla centrala stadsdelarna inom gångavstånd, men samtidigt bor du i ett lugn. Uppe från höjden har du en vidunderlig utsikt över staden och allt finns inom räckhåll, så nära men ändå sett lite grann från ovan.
BORGEN I STAN
Det upphöjda läget gör att Kungshöjd känns enskilt och ostört, trots att det ligger mitt i Göteborg. Här har du nära till allt, från shopping, kaféer och restauranger till upplevelser, service och myllrande stadsliv. De flesta av husen är byggda runt förra sekelskiftet, däribland det karaktäristiska huset med hörntorn som man kan se från stora delar av stan. Arkitektens tanke var att huset skulle påminna om den gamla arsenalsbyggnaden som tidigare låg här, därav husets borgliknande fasad. Och i folkmun kallas huset för just Borgen.
Nedanför flyter Rosenlundskanalen stilla fram och utgör fonden för restaurangstråket – och givetvis gamla hederliga Feskekôrka, som alltid levererar med sitt fantastiska utbud av fisk och skaldjur. Den klassiska fiskmarknaden byggdes 1874 och bär drag av både norska stavkyrkor och gotiska stenkyrkor. Därför glömdes det ursprungliga namnet Fiskhallen snabbt bort och ersattes av det mer beskrivande Feskekôrka. På bänkarna framför slår man sig gärna ner en stund och ser solen glittra i vattnet.
KULLERSTENAR OCH BUTIKER
Ståtliga Kungshöjd med sina sekelskifteshus och pampiga torn ligger på historisk mark på Lilla och Stora Otterhällan. Att Kungshöjd står stadigt på historisk mark märks på fler sätt. Vid Kungsgatans fot, nere vid Esperantoplatsen ser du resterna av den gamla befästningen, bastionen Carolus Rex, en av tre stadsportar som byggdes för att skydda staden mot inkräktare. Vid bergets norra fot ligger ett annat byggnadshistoriskt hus, det gamla Telegrafhuset vid Kaserntorget. Den bastanta byggnaden i tegel och natursten har fantastiska utsmyckningar och är ett av få hus i Jugendstil som finns bevarade i Göteborg.
Strax intill Kaserntorget lockar Magasinsgatan med alla sina trevliga kaféer, restauranger och några av Göteborgs i särklass bästa inredningsbutiker. En solig vårdag är det underbart att promenera utmed gatan och känna stadslivet med alla sinnen: sorlet från shoppingsugna människor, klappret mot kullerstenarna och dofterna från nyrostade kaffebönor och färska blommor. Det är ingen slump att Kungshöjdsborna är folk med bra koll på de senaste trenderna.
Med sitt upphöjda och centrala läge är Kungshöjd något av ett nav i det centrala stadsnätet. Åt vilket håll du än går så kommer du fram dit du ska och det finns flera knutpunkter att välja mellan, som Grönsakstorget, Järntorget eller resecentrumet Stenpiren. Här nere knyts Södra och Norra Älvstranden ihop och blir inom en snar framtid ett nytt vardagsrum för stadens invånare såväl som ett besöksmål för turister.
Köpa, sälja eller värdera bostad i Kungshöjd? Kontakta våra mäklare i Göteborg! Passa också på att anmäla dig till vår kostnadsfria söktjänst Boagenten som hjälper dig att hitta ditt drömboende.
Kontakta mäklaren om du behöver hjälp att ta fram en boendekalkyl.
När du köper din bostad genom Bjurfors kan du ansöka om bolån till en förmånlig ränta hos våra banksamarbetspartners Söderberg & Partners och SEB.
Ansvarig mäklare
Extra kontaktperson