-
Köpa
Köpa -
Sälja
Sälja - Hitta bostad
- Skapa bevakning
- Hitta mäklare
Något så unikt som en 4,5- rummare i sekelskifteshus från 1908!
Linné, Göteborg
*I avgiften ingår värme, vatten och ett grundutbud av tv-kanaler samt internet (Fiber).
**Areauppgifter enligt bostadsrättsföreningen.
Registrerad som 5 ROK enligt lägenhetsförteckning.
Bokad visning. Du kan även ringa Bjurfors Bokningscenter 031-761 79 50. Välkommen!
På Förhand ligger bostäder som av olika anledningar inte är ute till försäljning just nu men som kan komma att säljas om förutsättningarna är rätt.
Bjurfors Century presenterar en stor sällskapsvåning med högt i tak, bevarade detaljer, balkong & hiss!
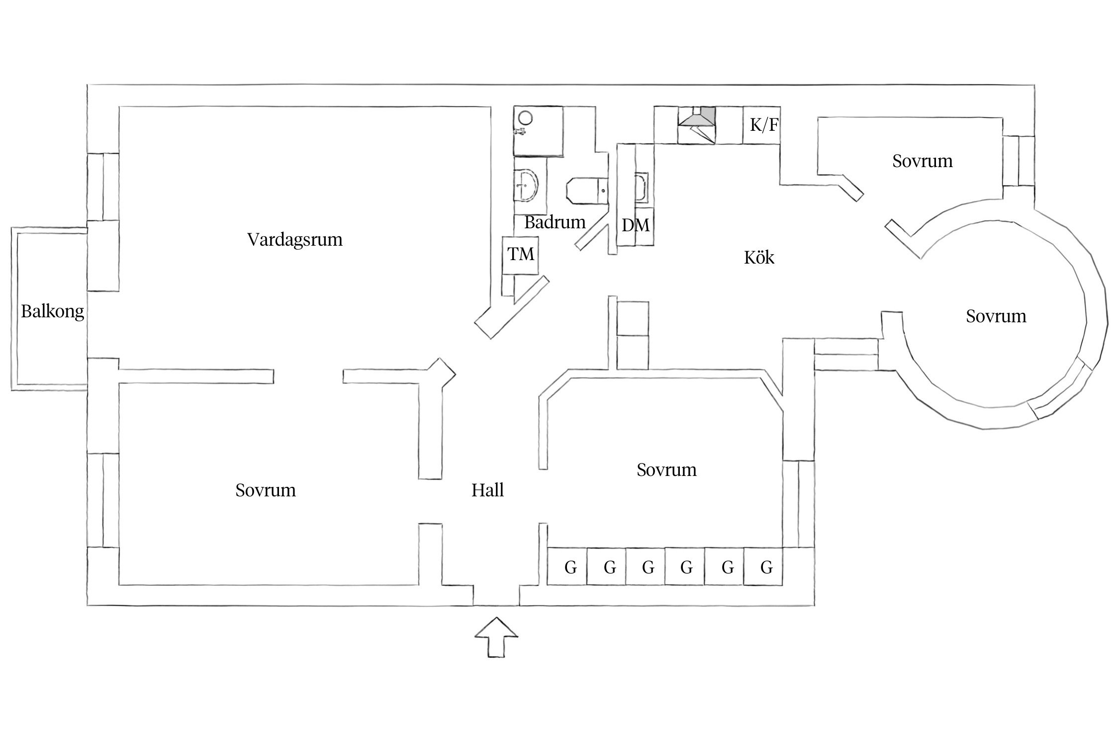
Nu har vi nöjet att presentera en klassisk våning på Nordenskiöldsgatan. Denna väl tilltagna pärla med balkong erbjuder ett av Linnéstadens bästa lägen intill Slottsskogen. Lägenheten har stora fönsterpartier i två väderstreck som garanterar ljusflödet och därtill imponerar hög takhöjd, stuckaturer, takrosett, massiva pardörrar och välvda väggar. Lägenheten har en smått unik tillika klassisk planlösning som idag erbjuder tre sovrum; både jungfrukammare och ett integrerat gammalt trapphus med välvda väggar blir fina, mindre sovrum och därtill ett större rum med platsbyggda garderober. Alla tre sovrum har ett tyst läge mot gården. För dig som vill få till fyra sovrum går det också, genom att nyttja ett av de stora rummen i fil mot gatan som master bedroom. Bostadens skick är väldigt gott; köket är renoverat med gott om arbetsytor och högresta skåp, bevarade, målade golv genomgående i lägenheten och badrummet är nyrenoverat med dusch och tvättmaskin. Bostadens klassiska layout inkluderar en hall och serveringsgång som delar av de stora sällskapsrummen och balkongen från sovrum och kök. Smidesbalkongen nås från det största rummet där ni njuter av Linnéstadens pulserande folkliv nedanför. Allt detta i ett vackert sekelskifteshus med hiss!
Kvarteret där Nordenskiöldsgatan 26 ingår är ett av områdets mest eftertraktade då närheten till Slottsskogen sätter sin starka prägel på boendet. Innergården känns som en förträdgård till den stora parken, där ett massivt kastanjeträd ger välkommen skugga och en mindre lekplats för de små finns strax intill.
Linnéstaden blandar det bästa av det mesta- från det rika kafé- & restaurangutbudet till närheten till bekvämligheter såsom mataffärer och kommunikationer och såklart stadens oas Slottsskogen. Här finns något för alla och trivseln bland grannarna är hög. Strax utanför porten finner ni ett stort utbud av service, närbutik, välsorterad mataffär, kaféer och restauranger. Lägenheten har kort promenadavstånd till Göteborgs Universitet, Handelshögskolan och ett par hållplatser från närliggande Linnéplatsen även Sahlgrenska Akademien och Chalmers tekniska Högskola.



*Areauppgifter enligt bostadsrättsföreningen.
Registrerad som 5 ROK enligt lägenhetsförteckning.
I avgiften ingår värme, vatten och ett grundutbud av tv-kanaler samt internet (Fiber).
Smidesbalkong.
Bostadsrättens indirekta nettoskuldsättning baseras på föreningens skulder/lån minus föreningens räntebärande tillgångar och likvida medel. Beräkningen är gjord och baseras enbart på den senaste tillgängliga årsredovisningen. För mer information kontakta ansvarig fastighetsmäklare.
*Betalas av köpare
Bostadsrättsföreningen Nordenskiöldsgatan 26 registrerades år 2007 och stadgarna registrerades år 2018. Fastigheten, Göteborg Olivedal 8- Vega:3, byggdes år 1908 och föreningen förvärvade huset år 2008.
Byggnadens totalyta är enligt taxeringsbeskedet 1 481 kvm varav 1 408 kvm utgör lägenhetsyta och 73 kvm lokalyta.
Föreningen upplåter 17 lägenheter med bostadsrätt och 1 lokal med hyresrätt. I lokalen hyr Care Hudvård sedan sommaren 2023.
Lägenhetsfördelningen är enligt följande:
1 rok, 5 st.
2 rok, 1 st.
3 rok, 1 st.
4 rok, 6 st.
5 rok, 4 st.
Brf Nordenskiöldsgatan 26 följer en underhållsplan som upprättades år 2016 och sträcker sig fram till år 2025.
Under 2023 såldes en hyresrätt som omvandlades till bostadsrätt och som var ett gott tillskott i kassan. Detta har möjliggjort en stor amortering (2,2 MSEK), en placering på sparkonto med bra ränta (2 MSEK, löptid 1 år tom aug 2024) och investeringar i fastigheten såsom utrymningstrappa och dränering innergård (2 MSEK).
Avgiften höjdes med 15% från och med 1 mars 2025.
Fullvärdesförsäkrad via Trygg Hansa.
Historiskt underhåll:
1983 Installation av hiss i gatuhuset
1983 Rörstambyte
2012 Målning tak
2012 Borninfiltration grundbevarande åtgärd
2013 Målning samt nya armaturer och snickerier i porten
2014 Byte av röklucka
2014 Montering av takbrygga
2014 OVK besiktning
2015 Renovering av två trapphus
2017 Installation av fiber/ Bredbandsbolaget
2019-2020 Fasadrenovering
2020 OVK-besiktning
2021 Tätning fönster
2021 Byte av portar
2021 Återställande av planteringar
2023 Upprustning tvättstuga och torkrum
2023 Renovering föreningslokal
2024 Installation utrymningstrappa
2024 Dränering innergård
2024 Relining rör
Under 2025 genomförd endast mindre underhållsåtgärder. För 2026 planerar man att måla tak och se över taksäkerhet, foga om fasaden mot gatan och se över/ev. förbättra hissen.
Det finns boendeparkering i området. Besök www.goteborgstad.se för mer information.
Tv via Bredbandsbolaget. Ett grundutbud ingår i avgiften.
Internet (fiber) via Telenor ingår i avgiften.
Grill och återvinningsstation på gården. Plats för cykelparkering.
Tvättstugan är belägen på källarvåningen i trapphuset. Tvättstugan är välutrustad med två tvättmaskiner, en torktumlare, en mangel och ett torkrum.
Har man en gång flyttat till Linné blir man lätt kvar här och det är inte undra på. Få stadsdelar erbjuder kombinationen av kontinental stadsvibb, ståtliga sekelskifteshus och en park som Slottsskogen intill, nästan som en egen trädgård – alltihop inlindat i en avslappnad och tillbakalutad atmosfär.
UTELIV OCH HEMMAKÄNSLA
Linné är en av Göteborgs mest omtyckta stadsdelar. Oavsett om du bor här eller bara brukar hänga på någon av de många restaurangerna, barerna eller kaféerna är det lätt hänt att du gör Linné till din hemmaplan – din del av stan. Det som bygger upp den sköna stämningen i Linné är förmodligen områdets blandning av folk, allt ifrån unga hipsters till äldre damer med hund och småbarn i overall. Längs huvud-stråket Linnégatan är det alltid folk i rörelse och gatan binder ihop Järntorget i norr med Slottsskogen i söder, samt sidogatorna med dess respektive kvarter.
MOTLUT OCH UPPSVING
När du bott ett tag i Linné upptäcker du snart att de olika kvarteren skiljer sig åt i såväl karaktär som byggnadsstilar. Linnégatan kantas av många stenhus från sekelskifte till 1930-tal, med restauranger, kaféer, frisörer och boutiquer i gatuplan. Även i Kommendantsängen öster om Linnégatan finns många bra matställen, bagerier och speciella affärer. Olivedal, väster om Linnégatan är även det ett vibrerande område men med lugnare gator insprängda, samt några av stans allra brantaste backar och trappor. På kvällarna flockas tusentals nöjeslystna människor i Linné, framförallt i kvarteren längs Långgatorna som fått ett enormt uppsving de senaste åren.
Det är ingen hemlighet att närheten till Slottsskogen är en stor orsak till att det är så populärt att bo här. Vad kan ge mer livskvalitet än att vilken dag som helst på året kunna ladda med en morgonjogg i din egen park, eller slappa i eftermiddagssolen med vännerna? Löprundan förlänger du lätt genom att ta dig vidare upp mot vildmarken i Änggårdsbergen.
STAMMISAR OCH NYTÄNKARE
Även om Linnéområdet utvecklas och nya ställen poppar upp emellanåt finns det vissa saker som ändå är precis som de alltid har varit. Visst säger det en del om en inrättnings popularitet när den har 10, 20 eller 30 år på nacken, vilket gäller för många klassiska kaféer, restauranger och butiker längs Linnégatan. Kanske är det så att invånarna i Linné ofta väljer sitt eget stammisställe, gärna i samma byggnad man bor i, så att man kan traska ner en helt vanlig tisdag och låtsas som att det är helg.
Köpa, sälja eller värdera bostad i Linné? Kontakta våra mäklare i Göteborg! Passa också på att anmäla dig till vår kostnadsfria söktjänst Boagenten som hjälper dig att hitta ditt drömboende.
Kontakta mäklaren om du behöver hjälp att ta fram en boendekalkyl.
När du köper din bostad genom Bjurfors kan du ansöka om bolån till en förmånlig ränta hos vår samarbetspartner SEB.
Bokad visning. Du kan även ringa Bjurfors Bokningscenter 031-761 79 50. Välkommen!
Ansvarig mäklare