-
Köpa
Köpa -
Sälja
Sälja - Hitta bostad
- Skapa bevakning
- Hitta mäklare
Genomgående 1 rok på gaveln med balkong!
Lunden, Göteborg
*I avgiften ingår värme, vatten och kabel-tv (grundutbud tele2). Ett obligatoriskt tillägg om 149 kr/ mån (bredband) och 50 kr/mån (balkongtillägg) tillkommer.
**Areauppgifter enligt bostadsrättsföreningen och säljare.
Bokad visning.
På Förhand ligger bostäder som av olika anledningar inte är ute till försäljning just nu men som kan komma att säljas om förutsättningarna är rätt.
Högst upp i populär förening väntar denna välkomnade 1 rok på gaveln med genomtänkt planlösning, balkong och charm! Välkommen hem!
Välkommen till Lunden och Sergelsgatan 4F, ett hem med själ, ljus och ett ostört gavelläge!
Här möts du direkt av ett fint ljusflöde och en välplanerad planlösning som skapar en öppen och harmonisk känsla. Bostadens gavelläge har det bästa läget, i öst, syd och väst, fönster i flera väderstreck ger ett härligt ljusdjup och en rymd som märks redan vid första steget in. Planlösningen är lättmöblerad med naturliga ytor för både vardagsliv och umgänge, och de fina siktlinjerna genom hemmet förstärker den luftiga känslan. Ett hem att trivas i från första stund.
Brf Sybågen är en mycket uppskattad och populär förening med låga avgifter och välplanerade bostäder. Här bor du i ett lugnt och omtyckt kvarter med närhet till det mesta. Endast cirka 100 meter bort stannar buss 60 som smidigt tar dig till stora delar av staden.
Längs Danska vägen finns caféer, restauranger, fruktbutik, servicebutik och inredningsbutiker. En kort promenad tar dig till Redbergsplatsen, en viktig knutpunkt för kommunikationer samt Olskrokstorget med sitt breda serviceutbud. För den som uppskattar natur och motion är läget svårslaget, med cykelavstånd till Skatås, Delsjöarna och Härlanda tjärn med badplats sommartid. Samtidigt har du stadens nöjen inom bekvämt räckhåll, med närhet till Liseberg, Svenska Mässan och Scandinavium.
Här möts du av en ljus och inbjudande bostad med en härlig atmosfär och ett fint flöde mellan rummen. Tack vare fönster i tre väderstreck (öst, syd och väst) strömmar dagsljuset in under hela dagen och skapar en luftig och trivsam känsla. Läget högst upp i huset ger ett rofyllt boende utan insyn och en härlig känsla av frihet.
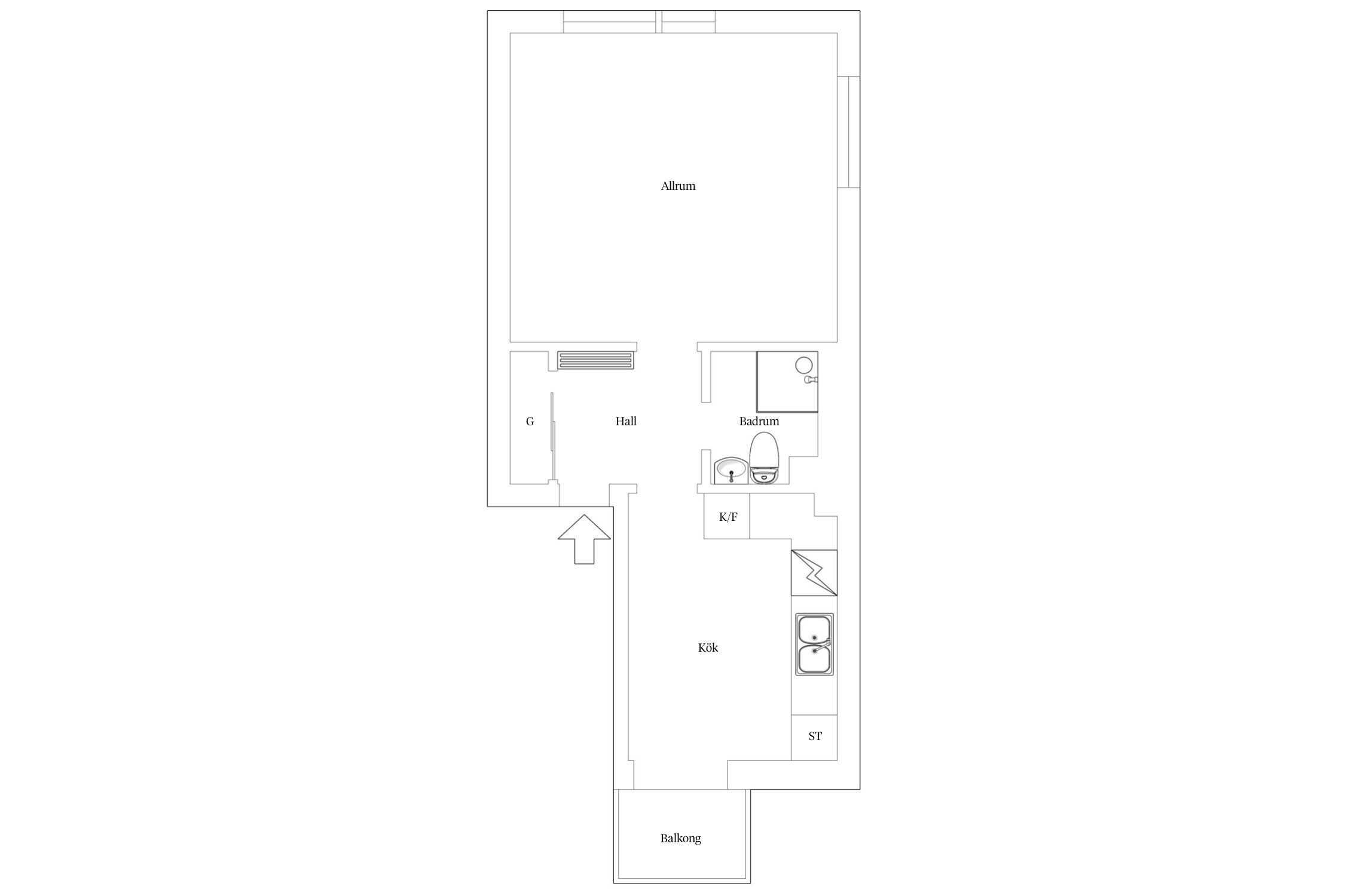
Allrummet är lätt att trivas i och enkelt att möblera efter behov – här finns plats för både säng, soffa och en arbetsplats. De vitmålade väggarna tillsammans med parkettgolvet skapar en lugn och harmonisk bas, medan de tidstypiska fönsterpartierna och de breda fönsterbrädorna bidrar med charm och karaktär.
Köket har en klassisk och hemtrevlig känsla med sina vita originalluckor och klassiskt vitt kakel. Här finns gott om arbetsytor och plats för ett matbord där du kan samla vänner eller njuta av en lugn frukost. Genom dubbeldörrarna kliver du rakt ut på balkongen i soligt västerläge, en perfekt plats för eftermiddagssol och ljumma sommarkvällar.
Badrummet renoverades i samband med föreningens stambyte 2005 och är ljust och fräscht, helkaklat i neutrala toner. Här finns dusch samt ett badrumsskåp med belysning och eluttag som byttes 2017 – funktionellt och lätt att trivas med i vardagen.
Hallen är rymlig och här erbjuds god förvaring bakom spegelskjutdörrar med tillhörande inredning, samt klädhängare. Det gör det enkelt att hålla ordning och ger en praktisk start på bostadens genomtänkta planlösning.
Varmt välkomna till ett hem att trivas i!



Planritningen är ej skalenlig, viss avvikelse kan förekomma
*Areauppgifter enligt bostadsrättsföreningen och säljare.
I avgiften ingår värme, vatten och kabel-tv (grundutbud tele2). Ett obligatoriskt tillägg om 149 kr/ mån (bredband) och 50 kr/mån (balkongtillägg) tillkommer.
Till lägenheten nyttjas ett förråd i källaren.
Bostadsrättens indirekta nettoskuldsättning baseras på föreningens skulder/lån minus föreningens räntebärande tillgångar och likvida medel. Beräkningen är gjord via Bopedia. För mer information kontakta ansvarig fastighetsmäklare.
*Betalas av köpare
Brf Sybågen ligger strategiskt placerat på Lundens topp nära både Göteborgs centrala delar och naturens möjligheter. Föreningen bildades 2003 och har sedan dess genomfört omfattande renoveringsarbeten på husen och gården. Därmed står föreningen välrustad för lång tid framöver.
Föreningen består av fyra hus och en gemensam gård. Totalt finns 211 lägenheter (130 st. 1rok och 81st. 2rok) samt 4 lokaler. Lokalerna samt 16 lägenheter är hyresrätter.
Föreningen tar ut en balkongavgift på 50kr/mån för framtida underhåll av de medlemmar som har balkong.
Andrahandsuthyrning:
Styrelsen har en generös syn på andrahandsuthyrningar. Under förutsättning att uthyrningen sköts utan anmärkning så beviljas all uthyrning på tillsvidare-basis utan att skäl behöver anges. Styrelsen tror att både enskilda medlemmar och föreningen tjänar på detta. En avgift på 350 kr/månad tas ut för all andrahandsuthyrning. Avgiften för andrahandsuthyrning kommer regleras till 400 kr/månad from april.
För mer information, se "Information för medlemmar & hyresgäster - Andrahandsuthyrning" på föreningens hemsida.
Föreningens ekonomi är stabil och långsiktigt inriktad för att gynna föreningens medlemmar.
För mer information, se årsredovisningen.
Besök gärna föreningens hemsida: http://www.brfsybagen.se/
Avgiftsförändringar:
Föreningen arbetar med långtidsprognos och ser i dagsläget ingen avgiftshöjning de närmaste åren. Avgiften har varit oförändrad sedan år 2007.
Genomförda renoveringar / väsentliga händelser:
2005 Rörstambyte inklusive badrumsrenovering. Byggnation av gemensam grillplats.
2006-2008 Tilläggsisolering av vindar samt fasader, fönsterbyte, installation av säkerhetsdörrar till lägenheterna. Omläggning av taket, putsning av fasaden, ommålning av trappuppgångar, byte av entrédörrar samt porttelefon med nyckelbricka.
2006-2010 Elstambyte.
2007-2010 Byte av dagvattenledningar.
2009 Installation av fiberlan.
2009-2010 Omläggning av spillvattenledningar, omdränering runt fastigheterna samt byte av värmekulvert.
2009-2011 Byggnation av 3 nya lägenheter, 4 nya tvättstugor med elektroniskt bokningssystem (web/app/tavla) samt 3 nya uteplatser.
2009-2013 Byggnation av miljöhus med cykelrum och uteplats.
2009-2014 Upprustning av gård med planteringar och belysning.
2011-2012 3 nya övernattningsrum med delad toalett och kök.
2012 Byggnation av ny lokal Ulfsparregatan 9L.
2012-2013 Byggnation av ny lokal Sergelsgatan 2K samt ommålning av väggar och golv i källargångar.
2012-2014 Byggnation av nya källarförråd.
2013-2015 Byggnation av ny lokal Ulfsparregatan 9K.
2014 Omputsning av sockel gavel, spolning av köksstammar samt byte av gjutjärnsböjar i källargång.
2015 Balkongbyggnation till självkostnad för de som valt.
2017 Översyn av ventilationssystemet samt rengöring av kökskanaler (OVK-besiktningen blev godkänd 2018). Under året utfördes också andra etappen av balkongbyggnationen till självkostnad för de som ville.
2020 Upprustning av parkeringen på Ulfsparregatan samt diverse markförbättringar i området. Installation av laddstolpe.
2021 Utbyggnad av cykelförvaring samt upprustning av den stora grillplatsen.
2021 Renovering och oljning av samtliga entrédörrar.
2022-23 Ommålning av samtliga trapphus. Installation av solceller. Underhåll trapphus
2024: Genomgång och besiktning av träd nära fasad inne på gården.
2025: OVK, breddning av parkeringsplatser på Sergelsgatan, installation av kameraövervakning i miljöhus och källargångar.
Kommande underhåll enligt årsredovisningen 2024:
Byte till LED-armaturer i gemensamma utrymmen.
Spolning av köksstammar.
Ny golvbeläggning med klinkers i källaren på Ulfsparregatan 11.
Upprustning av den stora grillplatsen på gården.
Ommålning av socklar och översyn/rengöring putsfasad.
Föreningen har 48 parkeringsplatser och 4 platser i MC-garage. Kösystem tillämpas. P-plats kostar 645 kr/mån och har 1 månads uppsägningstid. 10 st parkeringsplatser med laddstolpe finns. Tillägg 188 kr för laddplats. Kösystem. Platserna har 1 månads uppsägningstid.
För folkbokförd i stadsdelen kan tillstånd för boendeparkering ansökas hos Göteborg Stad, tel: 031-3682565. Du kan även gå in på www.trafikkontoret.goteborg.se för att få mer information samt ansöka om tillstånd.
Kabel-TV levereras genom Tele2 och digital-TV kan även fås via Canal Digital via föreningens fiberlan. Samtliga lägenheter kan ansluta sig till internet via Tele2 eller via föreningens fiberlan. Bredband via föreningens fiberlan kostar 149kr/mån. Ett ingått avtal har 3 månaders uppsägningstid, som räknas från det 1:a i månaden efter det att uppsägningen har kommit in. Såväl nyteckning av föreningens fiberlan som uppsägning sker till styrelsen.
Vid försäljning av lägenhet där bredbandet är aktivt löper detta vidare om den nya lägenhetsinnehavaren inte själv meddelar att fiberlan ej önskas. I så fall avslutas avtalet utan uppsägningstid.
Stor grillplats i söder, en stor uteplats vid det nya miljöhuset i norra änden av gården samt tre mindre uteplatser.
I källaren på baksidan av Sergelsgatan 2A finns ett mötesrum som används för informationsmöten och föreningsstämmor. Det finns även ett separat styrelserum som används för dagligt arbete inom föreningen.
På gården finns en stor grillplats i söder, en stor uteplats vid vårt nya miljöhus i norra änden av gården samt 3 mindre uteplatser.
I källaren på baksidan av Sergelsgatan 2A iordningställdes under 2012 tre övernattningsrum med gemensam dusch, toalett, kök och matplats. Övernattningsrummen är till för korttidsboende för gäster till föreningens medlemmar och hyresgäster.
Bokning sker via terminalen i tvättstugan eller via vår webbokning (internet eller smartphone). Kostnad 400kr/dygn. De andra två rummen har en 120 cm bred säng och en fåtölj vardera. Kostnad 200 kr/dygn.
Föreningen har under 2011 byggt nya tvättstugor så att det finns en i varje hus. Tvättstugan är försedd med ett elektroniskt bokninssystem och tvättider bokas antingen vid en bokningsstation i tvättstugan, via föreningens hemsida eller via smartphone (Iphone eller Android).
I varje tvättstuga finns 2 tvättbås med 2 tvättmaskiner och 1 torktumlare. Det finns även 2 separata torkrum i varje tvättstuga. Varje tvättstuga har även en grovtvättmaskin som fungerar som drop-in och en mangel. 9:an huset har 3 tvättbås eftersom det är fler lägenheter i huset.
SOM EN STAD I STADEN
I hjärtat av Göteborgs östra centrum ligger ett område som kännetecknas av både stadskänsla och lugn. Stadsdelen Lunden har en charmig och unik karaktär där du kan tillbringa en dag med att gå från butik till butik, promenera genom parker och gator och njuta av utsikten från Snikens kulle.
ALLT DU BEHÖVER INPÅ KNUTEN
I ljuvliga, lugna, lummiga Lunden slingrar sig gatorna upp på höjder bland trivsam och blandad bebyggelse i stadsmiljö. Bebyggelsen domineras av landshövdingehus i olika färger jämte funkishus med fasader av puts och tegel. Många av bostadshusen har olika typer av affärsverksamheter i gatuplan, så det är inte många steg till kvartersbutiken när du glömt köpa mjölk och det finns en charm med att äta frukost på favoritcaféet istället för hemma en ledig lördag.
Genom stadsdelen ringlar sig Danska vägen, från Redbergsplatsen hela vägen ner till Örgryte. Längs det här huvudstråket ligger många välbesökta affärer, caféer och restauranger för alla smaker.
VÄRLDSARTISTERNA SPELAR FÖR DIG
Lika nära som det är in till city, lika lätt är det att ta sig till östra Göteborgs stora gröna lunga – Delsjöområdet. Här hittar du fina badsjöar och Skatås med sina oslagbara träningsmöjligheter. Men Lunden levererar nog så väl, med många grönområden och parker. Uppe på en höjd hittar du Slätten, med lekpark och stora härliga ytor för picknickar, häng i solen och promenader. Där ligger också Snikens kulle med fin utsikt över hela stan. Är det klart väder och vinden ligger från nordväst kan du uppleva konserterna på Ullevi därifrån, därav kullens namn. Vid sommarens stora spelningar brukar det vara fullt med folk här, som tagit med sig allt från picknickväskor till bekväma stolar. Strax intill ligger Pauli backe, ett område med terrasshus från 70-talet som har en ovanlig och intressant arkitektur.
NJUT AV VACKRA PROMENADSTRÅK
I området ligger också Överåsparken, som ibland kallas Engelska parken. Den tillhörde tidigare Överås slott och under 1800-talet odlade familjen Dickson bland annat persikor, vindruvor och ananas där. De exotiska frukterna finns inte längre kvar men däremot en del träd från tiden och parken bjuder på fina promenadstigar och härlig utsikt.
När du behöver ta dig iväg från ditt lugna Lunden har du nära till knutpunkten Redbergsplatsen där både buss och spårvagn avgår.
Köpa, sälja eller värdera bostad i Lunden? Kontakta våra mäklare i Göteborg! Passa också på att anmäla dig till vår kostnadsfria söktjänst Boagenten som hjälper dig att hitta ditt drömboende.
Kontakta mäklaren om du behöver hjälp att ta fram en boendekalkyl.
När du köper din bostad genom Bjurfors kan du ansöka om bolån till en förmånlig ränta hos vår samarbetspartner SEB.
Bokad visning.
Extra kontaktperson