-
Köpa
Köpa -
Sälja
Sälja - Hitta bostad
- Skapa bevakning
- Hitta mäklare
Ljuvlig tvåa med attraktiv västerbalkong i omåttligt populär förening!
Majorna, Göteborg
*Inkl värme, vatten. Utöver månadsavgiften tillkommer ett obligatoriskt tillägg om 125 kr/mån för kabel-TV och bredband. Den totala kostnaden blir då 4 287 kr.
**Areauppgifter enligt bostadsrättsföreningen.
Bokad visning. Du kan även ringa Bjurfors Bokningscenter 031-761 79 50. Välkommen!
På Förhand ligger bostäder som av olika anledningar inte är ute till försäljning just nu men som kan komma att säljas om förutsättningarna är rätt.
Funkiskaraktär med tidlöst nyrenoverat kök från Ballingslöv
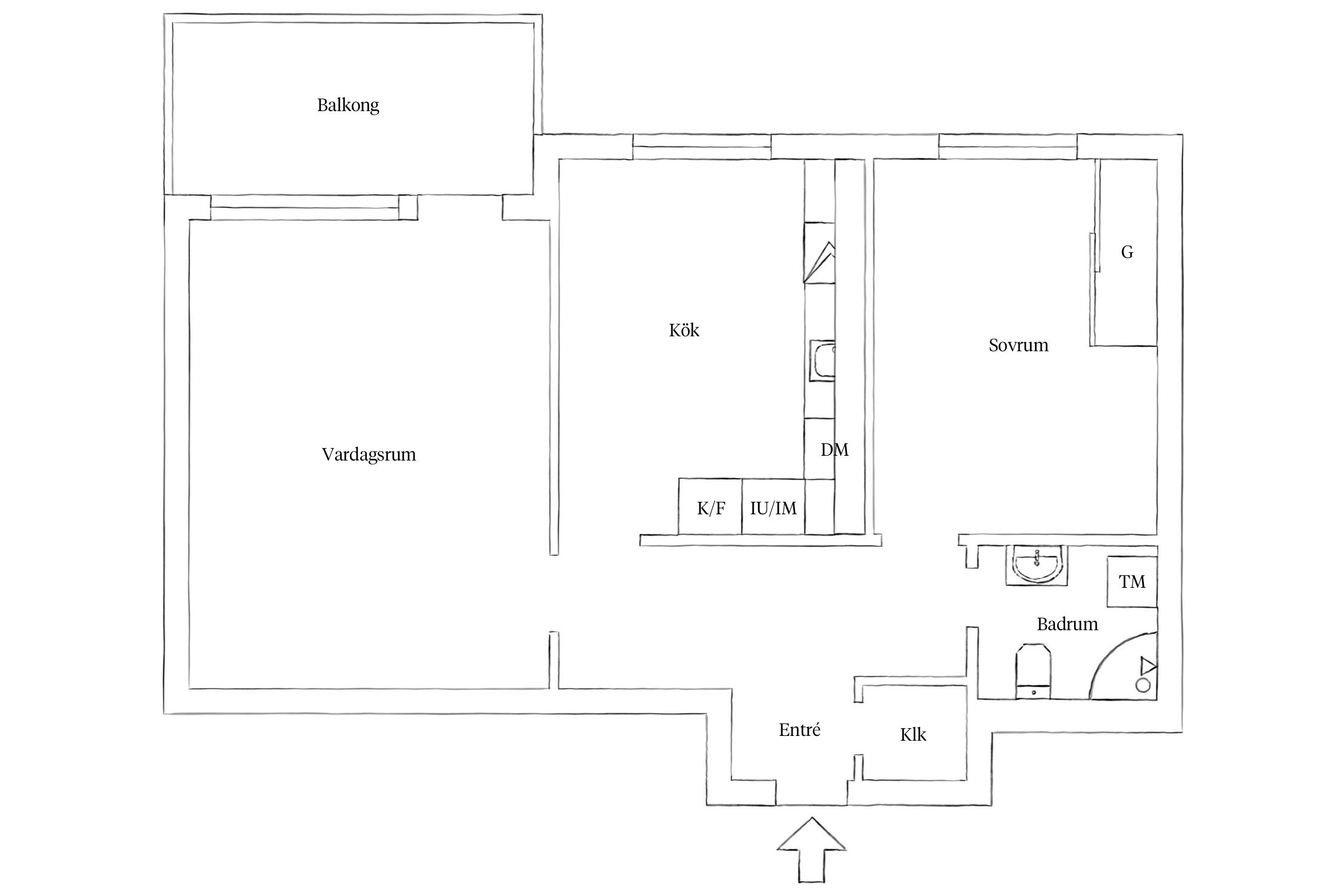
Välkomna till denna trivsamma och smart disponerade tvårumslägenhet belägen mitt i populära Majorna, på stillsamma och grönskande Haråsgatan 3. Lägenheten ligger två trappor upp från entrén och präglas av klassisk funkiskaraktär som går i symbios med ett modernt kök!
Bostaden har en välbalanserad planlösning där vardagsrummet erbjuder goda möbleringsmöjligheter för både umgänge och avkoppling. Härifrån nås även den generösa balkongen, som bjuder på en öppen vy över Majornas karaktäristiska taklandskap och drunknar i solljus från det tilltalande västerläget. Köket är rymligt och inbjuder till sociala tillställningar, med gott om plats för matbord och funktionella arbetsytor som passar lika bra för vardagens matlagning som för middagar med vänner. Sovrummet är lugnt beläget och erbjuder en stillsam miljö för god nattsömn. Det helkaklade badrummet är fräscht och välskött med egen tvättutrustning.
HSB Brf Ankaret är en välordnad och trygg förening med en grönskande innergård, sittplatser och lekytor för de boende. Läget är svårslaget med närhet till Slottsskogen, Majornas charmiga småbutiker och omtyckta restauranger samt smidiga kommunikationer som tar er snabbt in till stadskärnan.
Kontakta gärna ansvarig mäklare för mer information eller för att boka förhandsvisning.
Rymlig och välkomnande hall med gott om plats för avhängning. Hallens väggar är tapetserade och på golvet ligger en natursten som övergår i en parkett i original.
Till vänster från hallen ligger hemmets vardagsrum. Ett stort och luftigt rum med härliga fönster som släpper in mycket ljus. Här finns det gott om plats för soffmöbel med tillhörande bord, tv-möbel och matsalsbord. Väggarna är tapetserade med en målad fondvägg och på golvet ligger en tjusig fiskbensparkett som är slipad och behandlad med hårdvaxolja. Härifrån nås balkongen i ljuvligt västerläge som bjuder på härlig utsikt över Majorna.
Det moderna köket går i tidlös stil. Ett gediget arbetskök från Ballingslöv med ypperliga förvaringsutrymmen och goda arbetsytor. Vita snickerier, laminatbänkskiva samt arbetsvägg i marmorimitation. Ett matbord för fyra ryms enkelt här. Köket är utrustat med induktionshäll, fläkt, ugn, mikro, diskmaskin samt kyl och frys i fullhöjd. Led-spotlighs är installerat i överskåp samt i taket.
Till höger om hallen finner ni bostadens rofyllda sovrum. Ett rum av bra storlek som rymmer dubbelsäng, tillhörande nattduksbord och bra förvaring i garderober. Väggarna är nytapetserade och på golvet ligger korklaminat.
Badrummet är helkaklat med både väggar och golv klätt i natursten. Badrummet är utrustat med golvvärme, vattenburen handdukstork, dusch med vikbara glasdörrar, wc, handfat med kommod samt tvättmaskin med vägghängt förvaringsskåp ovan.



Planskiss
Majorna 350:2
*Areauppgifter enligt bostadsrättsföreningen.
Inkl värme, vatten. Utöver månadsavgiften tillkommer ett obligatoriskt tillägg om 125 kr/mån för kabel-TV och bredband. Den totala kostnaden blir då 4 287 kr.
Tre-as el indraget av tidigare ägare.
2014 slipades golvet i vardagsrummet och hallen som därefter behandlades med hårdvaxolja. Samma år målades även taket om samt nya tapetserade väggar.
2017 installerades ny kyl och frys.
2021 installerades nytt kök från Ballingslöv samt nya vitvaror (utöver kyl och frys).
2024 renoverades sovrummet i form av nytt golv, nymålat tak samt nya tapetserade väggar.
Västerläge
Bostadsrättens indirekta nettoskuldsättning baseras på föreningens skulder/lån minus föreningens räntebärande tillgångar och likvida medel. Beräkningen är gjord och baseras enbart på den senaste tillgängliga årsredovisningen. För mer information kontakta ansvarig fastighetsmäklare.
Driftskostnaderna är baserat på en persons hushåll och kan variera beroende på familjesammansättning och levnadssätt.
*Betalas av säljare
Bostadsrättsföreningen Ankaret på Haråsgatan ligger i hjärtat av Majorna. Husen är uppförda på en av de allra äldsta delarna av stadsdelen med en vacker utsikt över hamnen och mot Masthuggskyrkan. Föreningen innehar 152 stycken bostadsrätter. Föreningen har en god och stabil ekonomi med låg belåning. Policyn är att upprätthålla en god, stabil och långsiktig ekonomi. Föreningen har en underhållsplan. Föreningen äger sin egen mark och påverkas därför inte av eventuell höjning av tomträttsavgälden. Fastighetsförvaltare & administrativ förvaltning via HSB. Fastighetsskötsel/trädgårdsskötsel av MBA fastighetsservice. Lokalvård sköts av HSB.
Samtlig information finns på föreningens mycket informativa hemsida: www.brfankaret.se
Under senaste åren har bland annat följande genomförts och följande planeras. För mer information, se årsredovisningen eller kontakta styrelsen.
- Renovering av samtliga tvättstugor, inkl. nytt app/webbaserat bokningssystem.
- Ny lekställning
- Lekstugan renoverades
- Nytt trädäck vid grill/lekplats
- Nya säkra cykelställ
- Nytt passagesystem
- App/webbaserat bokning av gästlägenhet och föreningslokal
- Elbilsladdning
- Fler cykelparkeringsplatser
- Bättre ventilation - mekanisk frånluft eller uppgradering av självdrag
- Fasad- och balkongrenovering
Kommande renoveringar:
- Föreningen planerar att byta till säkerhetsdörrar under våren 2025.
- Enligt föreningens underhållsplan kommer en stamrenovering att genomföras inom en 5-årsperiod.
- Takrenovering planeras att utföras inom en 5-årsperiod.
Det finns 29 garageplatser, 75 parkeringsplatser (varav 8 är gästparkeringar och 2 är 30 minuters-parkeringar) samt 11 garageplatser för motorcykel. P-plats 292:-/månad. Garageplats 602:-/månad. MC-plats 116:-/månad. P-plats med laddbox 408 kr/månad + kostnad för el (rörligt), garageplats med laddbox, 719 kr/mån + kostnad för el (rörligt) samt gästparkering utomhus. (Med reservation för avrundningsfel då kostnaden är satt per år och delas med 12).
Bredband och TV levereras via ett gruppavtal från Telenor (250 MB hastighet).
Brf Ankaret har sju tvättstugor utspridda i husen. Samtliga med två tvättmaskiner, en torktumlare och torkrum. I mattvättrum finns bara en tvättmaskin. Samtliga tvättstugor totalrenoverade under 2019 och har ett elektroniskt bokningssystem.
Föreningen har en mycket trevlig gästlägenhet med plats för upp till sex personer som kan hyras av föreningens medlemmar för 500kr/person och natt. Festlokal (50kr/gång), hobbyrum, pingisrum och snickarverkstad finns även att tillgå. Föreningen har dessutom en gemensam bastu, lummig lekplats och uteplats med murade grillar, stort berg med lekstuga, odlingar samt cykelförvaring ute och inne. I ett av garagen finns också en särskild lådcykelparkering.
BO I OMTYCKTA MAJORNA
Det är ingen överdrift att påstå att Majorna är en stadsdel som älskas av många. Det är en populär stadsdel som ständigt växer och utvecklas. Majorna har en öppen famn och är hem för såväl unga som medelålders, barnfamiljer, singlar, kollektiv och sambopar och så förstås de gamla majpojkarna och töserna som gärna berättar om gamla tider.
GAMLA GÅRDAR OCH INFLYTTNING
Även hos de som inte bor här har Majorna en särskild plats i hjärtat, kanske tack vare stadsdelens kulturhistoriska värde som påminner oss om arvet från sjöfartsstaden Göteborg.
De många landshövdingehusen med sina stora, sammanhängande innergårdar sätter helt klart sin prägel på Majorna. Tittar man lite närmare hittar man även en hel del andra byggnadsstilar, som funkishus från 40-talet, Vita Björns miljonprogram och stenhus från sekelskiftet längs Karl Johansgatan. Den goda blandningen av såväl folk som hus, gatstrukturer och grönområden är vad som ger området dess särpräglade charm. För har man en gång varit i Majorna blir man lätt kvar.
AVSLAPPNAT OCH DRIFTIGT
När du bor i Majorna blir du en del av en levande stadsdel. Här är det alltid är liv och rörelse, fast i ett lugnt och tillbakalutat tempo. Det finns gott om mysiga caféer och restauranger, små butiker och konstgallerier. I landshövdingehusens gatuplan springer man inte sällan på oväntade små verksamheter som drivs av driftiga och kreativa "majbor". Kulturen blomstrar särskilt kring Stigbergstorget, med klassiska skivbutiken Bengans – ett av få ställen där man fortfarande lätt kan lägga en förmiddag på att bläddra i skivbackarna. Alldeles intill ligger Sjöfartsmuseet, där man kan uppleva Göteborgs historia som sjöfartsstad och mitt emot ligger Gathenhielmska Kulturreservatet, som bjuder på en tidsresa tillbaka till det gamla Göteborg. De första som bebyggde Majorna var troligtvis finska och estniska sjömän. Det är det finska ordet för hydda, ”maja” som sägs ha bildat namnet ”Majorna”. När de första hamnarna i Göteborg anlades nedanför Stigbergets sluttningar blev Majorna den naturliga bostadsorten för hamnens arbetare och därtill krogkvarter för törstiga sjömän. Det gamla Majorna är ett stycke levande historia, som inte minst finns bevarad i gatunamn som Kommendörsgatan, Kaptensgatan, Lotsgatan, Skeppsgossegatan och många fler.
NÄRHET TILL BÅDE SLOTTSKOGEN OCH SKOLOR
Här har du fantastiska Slottsskogen inpå knuten. Grönområdet står alltid redo att bjuda dig på härliga promenader, picknick eller lek på Plikta. Runtom i Majorna finns även flera andra fina parker, grönytor och lekplatser som Söderlingska Trädgården vid Djurgårdsgatan. En omtyckt mötesplats för alla åldrar och ett toppenställe för att ta en kopp kaffe i vårsolen.
I området finns flera förskolor och grundskolor samt att i centrum hittar du gymnasieskolor och Göteborgs Universitet.
Köpa, sälja eller värdera bostad i Majorna? Kontakta våra mäklare i Göteborg! Passa också på att anmäla dig till vår kostnadsfria söktjänst Boagenten som hjälper dig att hitta ditt drömboende.
Kontakta mäklaren om du behöver hjälp att ta fram en boendekalkyl.
När du köper din bostad genom Bjurfors kan du ansöka om bolån till en förmånlig ränta hos vår samarbetspartner SEB.
Bokad visning. Du kan även ringa Bjurfors Bokningscenter 031-761 79 50. Välkommen!
Ansvarig mäklare