-
Köpa
Köpa -
Sälja
Sälja - Hitta bostad
- Skapa bevakning
- Hitta mäklare
Mycket välskött villa med extremt låga driftskostnader pga bergvärme och solceller på taket.
Påvelund, Göteborg
*Areauppgifter enligt taxeringsinformationen
På Förhand ligger bostäder som av olika anledningar inte är ute till försäljning just nu men som kan komma att säljas om förutsättningarna är rätt.
Med bra läge och på pedantskött trädgård ligger denna välplanerade villa (tomträtt) med vardagsrum, kök, allrum, 3-4 sovrum fint badrum, garage mm.
Här bor ni på en trevlig gata med närhet till Påvelunds generösa utbud av exempelvis skolor årskurs 1-9 (bl.a. The English School of Gothenburg), förskolor, mataffärer, fiskbil, pizzeria, kvarterskrogar och kommunikationer i form av såväl buss som spårvagn. Motionsslinga med elljus liksom välskötta idrottsföreningar samt fina badplatser och småbåtshamnar på behagligt promenad och cykelavstånd.
Bergvärme i kombination med solceller gör huset extremt energisnålt och billigt i drift. Då yttertaket byttes nyligen, fönster är bytta till 3-glas och fasaden är underhållsfri komposit är huset väldigt lättskött under många år framöver. Den pedantskötta trädgården innehåller såväl fina lekytor för barnen som möjlighet till rekreation för människor i alla åldrar. Det härliga och rymliga uterummet används flitigt av nuvarande ägare under större delen av året.
Annonsen kommer att kompletteras med fler invändiga bilder under oktober månad.
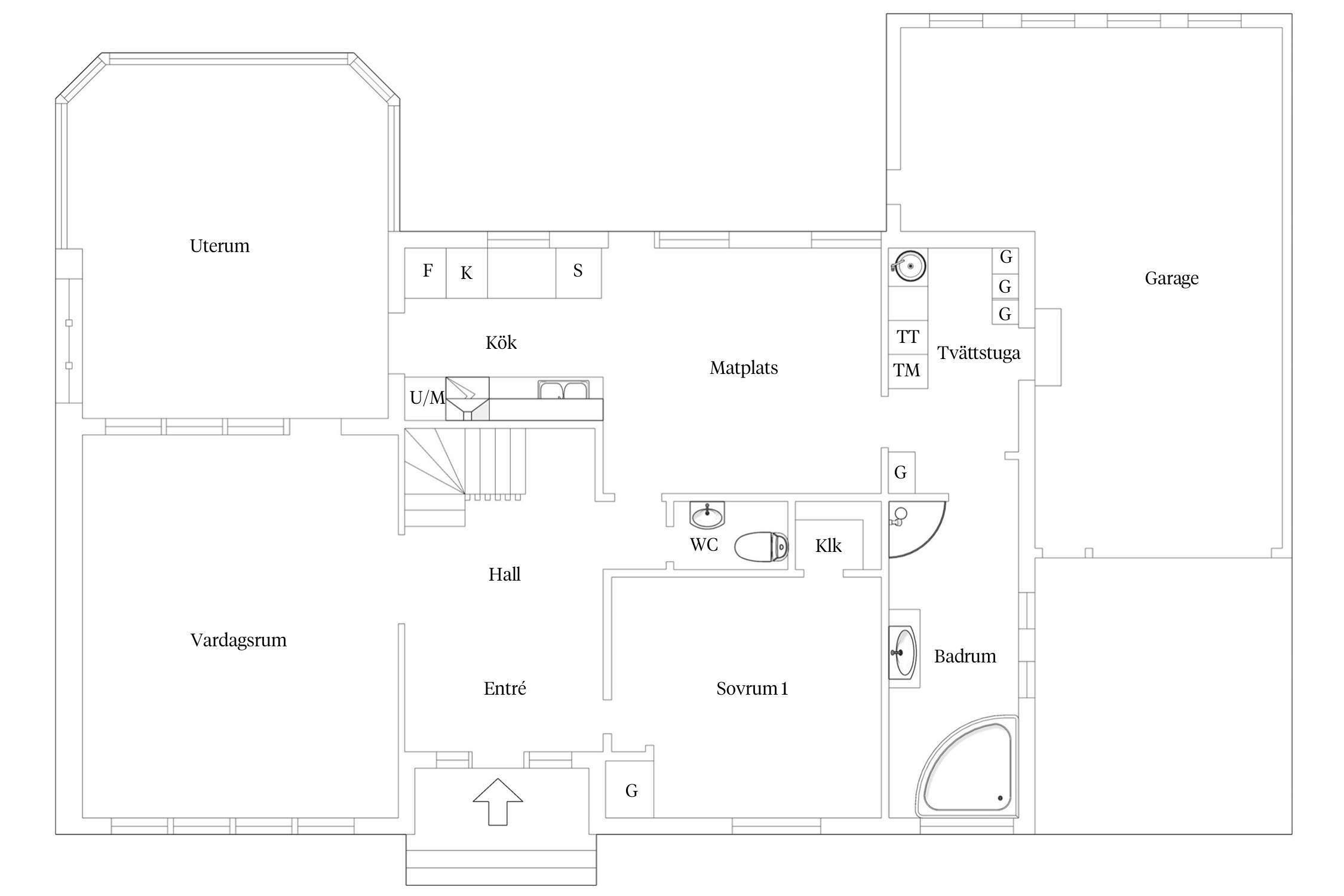
PLANLÖSNING ENTRÉPLAN: Rymlig entré och hall med parkettgolv samt bra avhängningsmöjligheter för ytterkläder och skor. Här finns även gästtoaletten som har kaklade väggar, klinkergolv samt handfat och wc.
Fint vardagsrum med parkettgolv, ljusa väggar och utgång till det fina uterummet.
Köket har en stor matplats samt parkettgolv och utgång till såväl trädgård som uterum. Här finns även väl fungerande vitvaror av varierande ålder.
På entréplan finns även ett väl tilltaget sovrum, även detta har snyggt parkettgolv samt ljusa väggar och dessutom en liten klädkammare.
Det stora badrummet är fräscht och har klinkergolv med golvvärme, helkaklade väggar, bubbelbadkar, duschplats, handfat och wc.
I tvättstugan finns såväl tvättmaskin som torktumlare, bra förvaring och en praktisk arbetsbänk. På golvet ligger ett ljust och fint klinkergolv och väggarna är helkaklade.
Från tvättstugan når man det fina garaget där det inte bara ryms en bil utan även en förrådsdel och arbetsbänk. Klinkergolv gör det lättstädat och fuktsäkert och elporten gör det smidigt att öppna och stänga.
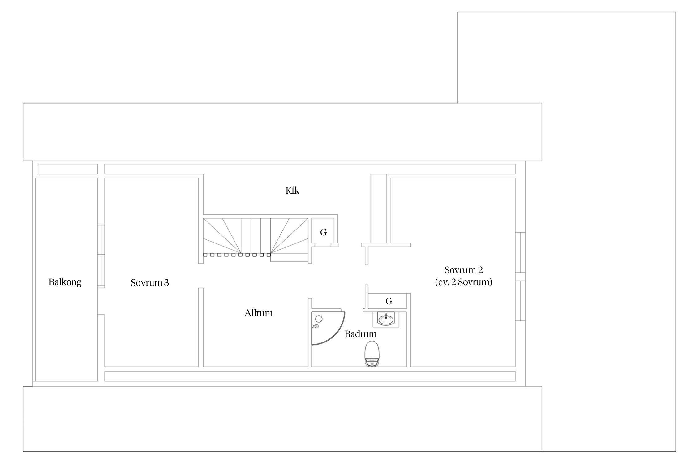
PLANLÖSNING ÖVRE PLAN: Allrum med parkettgolv, ljusa väggar och takfönster vilket gör utrymmet ljust och fint. Här får ungarna lätt plats med sina kompisar. Vid allrummet finns även en garderob och en rejäl klädkammare.
På övre plan finns två stora sovrum där det ena lätt kan göras om till två sovrum om man så önskar. I bägge rummen ligger snyggt parkettgolv samt ljusa väggar och i det ena rummet finns en dubbelgarderob och i det andra en utgång till stor balkong.
Badrummet på detta plan har också helkaklade väggar, klinkergolv med golvvärme samt duschplats, handfat och wc.



Tynnered 17:10
*Areauppgifter enligt taxeringsinformationen
2006 - 2019 har fönster bytts ut löpande.
2009 lades altanen om.
2007 totalrenoverades badrummet på entréplan.
2014 utfördes stabiliseringsarbeten av uterummet.
2020 lades takpannorna om.
2017 monterades bergvärmepumpen.
2023 monterades solcellsanläggningen.
2024 lades takpappen på garaget om.
2024/25 byttes fasaden.
Vidbyggt garage med en bra förrådsdel/verkstad.
Utanför garaget får man plats med 4 bilar på uppfarten.
Kommunalt vatten, Kommunalt avlopp.
Garage med elport.
Utanför garaget får man plats med 4 bilar på uppfarten.
Tomtindelning (1971-10-15) Stadsplan (1970-07-24)
Säljarna har mobilt bredband som fungerar utmärkt
Observera att 30 % av tomträttsavgälden om 22 816 kr/år är avdragsgill och att nettokostnaden/år blir 15 971 kr/år eller 1 331 kr/månad.
Enligt överenskommelse (ej för snabbt).
Det finns 7 st pantbrev uttagna om sammanlagt 1 250 000 kr
BO BARNVÄNLIGT I PÅVELUND
Attraktiva Påvelund ligger i sydvästra Göteborg med närhet till stad och natur. Med havsbad och småbåtshamnar som närmsta granne erbjuder området livskvalité på hemmaplan.
UNDERBARA BAD OCH NATUR
Påvelund gränsar till Långedrag och Fiskebäck. Området erbjuder många vackra promenadstigar där småbåts- och fiskelivet ger sig väl till känna. Kanske stannar du någonstans för ett spontant dopp vid en av de många badplatserna?
För dig som är sportintresserad finns det ett stort utbud. Här finns både Älvsborg FF som är en av Göteborgs största fotbollsföreningar och handbollsföreningen Önnereds HK som är en av Sveriges största handbollsföreningar. Vid Påvelunds motionscentrum kan du uppleva den vackra naturen via olika slingor och här ligger Påvelunds tennis- och badmintonklubb. För den seglingsintresserade finns Göteborgs Kungliga Segel Sällskap, GKSS, som grundades 1860 och än idag är ledande inom segling. Hamnens två restauranger bjuder på en härlig miljö som sprudlar av liv och rörelse. Du har också Hinsholmens småbåtshamn som ligger vackert belägen i Hinsholmskilen.
MED NÄRHET TILL DET DU BEHÖVER
I barnvänliga Påvelund finner du många lekplatser och flera förskolor och grundskolor. Engelska skolan erbjuder både förskolan och grundskola och här går barn från hela Göteborg. I områdets centrum finns mataffärer, vårdcentral, apotek, frisörer och lokala restauranger. Och på bara några minuter med buss eller på cykel är du på Frölunda Torg som erbjuder förstklassig shopping och ett stort utbud av caféer och restauranger. Med buss från Beryllgatan tar du dig nästan lika snabbt in till centrala Göteborg och allt staden har att erbjuda.
Från Saltholmen går skärgårdsbåtarna året om, självklart extra populära på sommaren, och härifrån tar dig spårvagnen smidigt hela vägen in till stan.
Köpa, sälja eller värdera bostad i Påvelund? Kontakta våra mäklare i Västra Göteborg! Passa också på att anmäla dig till vår kostnadsfria söktjänst Boagenten som hjälper dig att hitta ditt drömboende.
Kontakta mäklaren om du behöver hjälp att ta fram en boendekalkyl.
När du köper din bostad genom Bjurfors kan du ansöka om bolån till en förmånlig ränta hos vår samarbetspartner SEB.