-
Köpa
Köpa -
Sälja
Sälja - Hitta bostad
- Skapa bevakning
- Hitta mäklare
Hemtrevligt kedjehus i omtyckta Hallsås
Lerum - Hallsås, Lerum
*Areauppgifter enligt taxeringsinformationen
Förhandsvisning. Anmälan krävs.
På Förhand ligger bostäder som av olika anledningar inte är ute till försäljning just nu men som kan komma att säljas om förutsättningarna är rätt.
Kedjehus med ett idealiskt läge i omtyckta Hallsås som passar perfekt för barnfamiljen
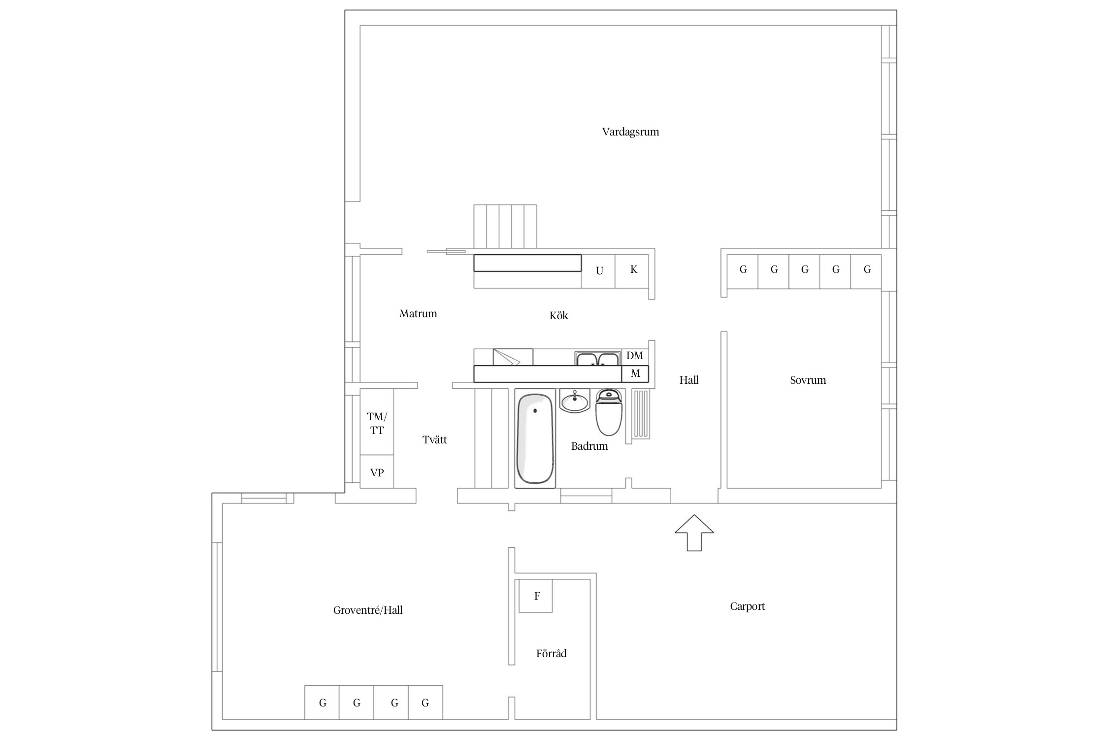
Bostaden är i genomgående fint skick och planlösningen är smart planerad. Ljus och inbjudande hall med gott om plats för förvaring av ytterkläder och skor. Bostaden nås även via det större förrådet som idag används som groventré. Här finns det mycket bra förvaringsmöjligheter i bland annat en större garderob.
Hallen leder in och öppnar upp till vardagsrummet som är stort och ljust med plats för den större matsalsmöbeln och soffgruppen. Vidare nås köket som erbjuder goda förvaringsmöjligheter och en trevlig matplats som inbjuder till gemensamma måltider. På entréplan finns även ett badrum, en tvättstuga samt ett av bostadens fyra sovrum. En trappa upp finner vi ytterligare tre sovrum, samtliga med gott om plats för kläder och förvaring. Här finns även ett WC samt en praktisk arbetsplats. För extra förvaring finns även en större vind som är tilläggsisolerad.
På baksidan väntar en härlig och grönskande trädgård med stor gräsmatta, pergola och altan. I anslutning till entrén finns carport och ett större förråd.
Här finns flera lekplatser att välja på och mataffären i närheten. Förskolor och skolor nås på bara några minuters promenad. Kommunikationer, affärscentrum, Vattenpalatset, bibliotek och vårdcentral likaså. Inom gångavstånd finns såväl pendeltåg som bussar, både direktbussar till Göteborg och lokalbussar.
Varmt välkomna att kontakta fastighetsmäklaren för mer information!



Planlösning entréplan
Planlösning övre plan
Lerum 16:9
*Areauppgifter enligt taxeringsinformationen
Nuvarande ägare tillträdde 2010.
Tidigare ägare:
70-talet: Carporten byggdes in.
80-talet: Takkupan på husets baksida byggdes.
1998: Ökad ventilation i huset, med mekanisk ventilation installerad i två sovrum på övervåningen samt på vinden.
2001: Takkupan på husets framsida byggdes. Fönster i sovrum på övervåningen byttes.
2009: Övriga fönster byttes (utom i badrum).
2009: Renovering av badrummet med kakel och klinkers samt golvvärme (el). Arbetet utfördes av fackmän och
kvalitetsdokument finns.
Nuvarande ägare:
2010: Byte av fönster bredvid altandörr, ny altandörr samt nytt fönster i badrummet. Byte av vindskivor. Komplettering av tilluftsventiler.
2011: Byte av fasad och ny isolering på tvättstugefasad med ny stänklist i plåt mot altanen.
2013: Ommålning samt byte av skadad fasadpanel (ej på husets framsida). Ny takpapp på den låglutande takkonstruktionen samt tätning mot yttervägg.
2014: Ommålning av de putsade fasaderna (silikatfärg). Renovering av groventrén, nytt förråd samt nytt fönster mot baksida.
2015: Byte av undertak på carport.
2018: Takbyte med helt ny råspont, papp, läkt och betongpannor samt plåtarbetet, hängrännor och stuprör. Ny fasadpanel på takkuporna.
2020: Dräneringsarbete samt ny stödmur på husets baksida. Installation av elbilsladdare som följer med köpet.
2021: Ommålning av fasader på den inbyggda carporten. Ny (begagnad) överdel på elpannan samt ny radiator i vardagsrummet. Byte av altan vid pergolan samt byggt staket mot grannen.
2023: Påbyggnad stödmur mot altan och trappa upp mot trädgården.
2024: Byte av stora altanen. Renovering av ytskikt etc, WC på övre plan. Ommålning i vardagsrummet.
El har bytts ut löpande i samband med renoveringar av rum.
Carport och förråd.
Kommunalt vatten, Kommunalt avlopp.
Byggnadsplan (1959-11-12)
Fiber
I kostnaden för VA inkluderas även renhållning.
Samfällighetsavgift (ekonomisk förening) ligger på 1 000 kr/år (800 kr vid deltagande på städdag).
Ca 5 500 kWh/år avser elbilsladdning.
Det finns 2 st pantbrev uttagna om sammanlagt 3 000 000 kr
Välkommen till Lerum, en stad på landet men med ett bekvämt avstånd till Göteborg. I och omkring Lerum hittar du underbar natur med djupa skogar och över 200 sjöar. I centrum finns dessutom restauranger, ett fullt serviceutbud och flera specialbutiker. Likaså erbjuder Lerum ett brett kulturliv med teater, historiska byggnader och museer.
OMRÅDET
Omgivningarna kring Lerum erbjuder många och vackra naturupplevelser. För den fiskeintresserade borgar fiskevårdsåtgärder för ett bra fiske året om. Härliga bad vid fina sandstränder i Stamsjön, Aspen, Mjörn, Lensjön för att nämna några.
FRITID
Lerums kommun erbjuder bra golfanläggningar. På t.ex. Öijared, Sveriges största anläggning med tre högklassiga 18-hålsbanor och en 9-håls pay-and-play-bana, slår du ut från taket på det prisbelönta klubbhuset. Vid sjön Aspen finns Lerums Segelsällskap, som är är en av Sveriges största jolleklubbar. För de hästintresserade erbjuder flera ridskolor möjlighet till undervisning för såväl nybörjare som riktigt erfarna ryttare. Vill man hålla sig inomhus är Vattenpalatset ett välbesökt utflyktsmål. I Stenkullen finns ett nav med idrottsanläggningar som ishall, friidrottsarena och handbollshall inklusive ett sportcentrum med gym. Fotboll, ishockey, innebandy, konståkning för att nämna några sporter som har bra förutsättningar inom kommunen.
UTBILDNING
I Lerums kommun finns både enskilda och kommunala förskolor och grundskolor inklusive särskolor. Den stora gymnasieskolan har många olika linjer att välja mellan. Trygghet, utveckling och inspiration ligger till grund för verksamheten inom kommunen och man lägger särskilt fokus på att förbereda eleverna för kommande studier och vuxenliv.
KULTUR OCH SERVICE
Vid stranden till sjön Sävelången ligger Nääs Fabriker. I historiska och vackra fabriksbyggnader samsas numera flera olika verksamheter i en kreativ miljö, det är ett brukssamhälle för 2000-talet. Här finns näringsliv med handel, hotell, restaurang, café och konferenslokaler. Nääs fabriker har ett strategiskt läge utefter E20. Nääs slott är med sin orörda 1800-tals interiör unikt för Skandinavien. Aspenäs herrgård, med anor från 1500-talet, är idag en konferensanläggning vid Aspens vattenbryn, en oas för möten och fester, med plats för flera hundra gäster. Kärleksfullt hemlagade mat och övernattningsmöjligheter.
KOMMUNIKATIONER
Pendeltåget mellan Göteborg och Alingsås stannar i Lerum, Stenkullen och Floda och erbjuder ett snabbt och smidigt färdsätt. Flera direktbussar går mellan Lerum och Göteborg. Det lokala bussnätet mellan de olika orterna i kommunen är också det väl utbyggt.
Köpa, sälja eller värdera bostad i Lerum? Kontakta våra mäklare i Lerum! Passa också på att anmäla dig till vår kostnadsfria söktjänst Boagenten som hjälper dig att hitta ditt drömboende.
Kontakta mäklaren om du behöver hjälp att ta fram en boendekalkyl.
När du köper din bostad genom Bjurfors kan du ansöka om bolån till en förmånlig ränta hos vår samarbetspartner SEB.
Förhandsvisning. Anmälan krävs.
Ansvarig mäklare