-
Köpa
Köpa -
Sälja
Sälja - Hitta bostad
- Skapa bevakning
- Hitta mäklare
Ljus och rymlig marklägenhet anno 1899, med privat terrass om 20 kvm!
Norr, Helsingborg
*I avgiften ingår värme, vatten och bostadsrättstillägg.
**Areakälla enligt bostadsrättsföreningens mäklarbild/utdrag ur lägenhetsregister.
Kontakta mäklaren för mer information gällande budgivningen.
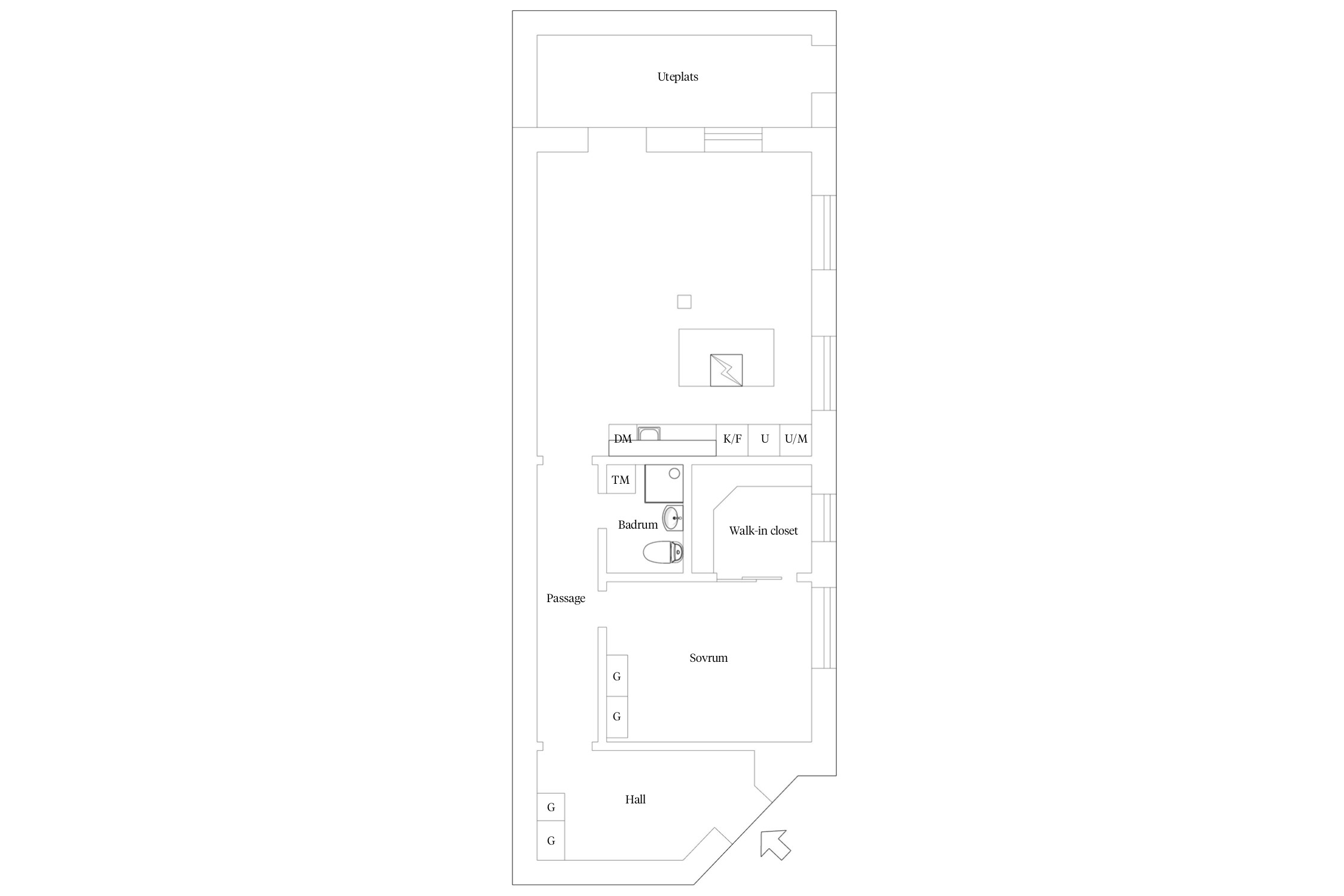
Ljus och rymlig marklägenhet med 2,9 m i takhöjd och en privat terrass om 20 kvm mot föreningens lugna innergård.
Välkommen till Drottninggatan 118 och till denna sekelskiftespärla med egen uteplats!
Här bor du i en stabil och välskött bostadsrättsförening i en vacker fastighet från 1899. Innanför porten möts du av ett pampigt trapphus, och via en halvtrappa och din egen entré, når du denna generösa 2,5:a med fantastisk rymd och 2,9 meter i takhöjd.
Lägenheten har stora fönster med djupa nischer som vetter mot den tysta innergården. Bostaden upplevs luftig tack vare de öppna ytorna, de höga taken och det fina ljusinsläppet. Den privata terrassen på 20 kvm blir en naturlig förlängning av vardagsrummet, perfekt för lugna morgnar eller sociala kvällar.
Här bor ni på ett förstklassigt läge, med närhet till precis allt. Det unika läget är ett av Helsingborgs mest attraktiva och erbjuder en livsstil i symbios med havet, grönskan och stadens puls – allt inom bekvämt räckhåll. Grönskande Margaretaplatsen ligger bara femtio meter bort, och både havet och Gröningen nås med en kort promenad på hundra meter från ytterdörren.
En chans som denna är få förunnad - varmt välkommen att kontakta ansvarig mäklare Saga Bredahl för visning!
Hall
Redan i hallen möts ni av en rymlig och inbjudande känsla. Det vackra brädgolvet löper enhetligt genom hela bostaden, och här finns gott om plats för avhängning samt möjlighet att möblera efter behov. Väggarna är släta och vitmålade vilket skapar en ljus och stilren grund.
Vardagsrum och kök
Vardagsrummet har öppen planlösning mot kök och matplats med fint ljus från stora fönster i två väderstreck. Köket är smakfullt renoverat med dansk inredning från Mobalpakök, vita matta skåpsluckor och bänkskiva i matt carraramarmor. Maskinparken är rostfri och består av kyl/frys, induktionshäll, integrerad fläkt, diskmaskin samt inbyggd ugn/micro och varmluftsugn. Köksön, klädd i marmor, erbjuder plats för flera gäster och är ett socialt nav i hemmet.
Terrass
Härifrån når du den privata terrassen om cirka 20 kvm, en ljuvlig oas inramad av häckar som ger insynsskydd. Här finns gott om plats för önskad möblering och möjlighet att njuta av lugnet på en av Helsingborgs bästa adresser. Uteplatsen har idag ett snyggt trädäck.
Sovrum
Sovrummet är rymligt med utrymme för såväl säng som sängbord och kontorshörna. Via en snygg skjutdörr når ni bostadens andra sovrum som är lyxigt inrett som en walk-in-closet. Detta rum går enkelt att återställa till ett sovrum för den som önskar.
Badrum
Från hallen når ni det helkaklade badrummet, som är utrustat med tvättmaskin, vägghängd WC, tvättställskommod med förvaring, spegel med belysning samt en duschhörna med glasvägg.



Planlösning
*Areakälla enligt bostadsrättsföreningens mäklarbild/utdrag ur lägenhetsregister.
I avgiften ingår värme, vatten och bostadsrättstillägg.
Bostadsrättens indirekta nettoskuldsättning baseras på föreningens skulder/lån minus föreningens räntebärande tillgångar och likvida medel. Beräkningen är gjord och baseras enbart på den senaste tillgängliga årsredovisningen. För mer information kontakta ansvarig fastighetsmäklare.
*Betalas av köpare
Föreningen Brf Drottningsund äger fastigheten Carolus 2 och år 1898 bebyggdes denna med ett flerbostadshus. Föreningen består utav 22 lägenheter och är belägen på Drottninggatan 118 i Helsingborg.
SBC handhar den ekonomiska förvaltningen.
Avgiften höjdes med 8% 2025-04-01. Styrelsen diskuterar en eventuell höjning, på cirka 2%. (Kontrollerat 2025-10-28).
Fastigheten är försäkrad hos Dina Försäkringar AB. I försäkringen ingår kollektivt bostadsrättstillägg för medlemmarna samt ansvarsförsäkring för styrelsen.
Utförda renoveringar:
Ytterfasaden gjordes i ordning för några år sedan.
2024: Takbyte, mot innergård även fasad med ny puts och totalrenovering av 8 balkonger
2023: Fiberinstallation
2022: OVK genomgång
2021: Modernisering och utbyte av styrsystem för värmeanläggning
2019-2021: Fasad/takrenovering (Tegelfasad mot Drottninggatan; putsning 2021)
2018: Renovering av hiss
2017: Ommålning av fönsterbågar
2014: Översyn av värmesystem och installation av värmepump
2013: Reparation av trapphus
2012: Installation av ny porttelefon
2009-2010: Renovering av gårdsbalkonger
2007: Översyn av värmesystem
2004: Målning av fönsterbågar - Även 2012
1987-1988:
- Elstambyte
- Nyinstallation hiss
- Omputsning av fasad - Även 2006
- Omläggning av tak - Även 2005
- Renovering av balkonger - Även 2006
- Nya balkonger
- Rörstambyte
Kommande renoveringar:
Föreningen har spolat rören för tre år sedan och detta ska göras kontinuerligt, vart 5:e år.
(Kontrollerat 2025-10-28).
Det finns parkeringar på gatorna i närområdet.
Föreningen har en parkeringsplats på bakgården. Denna hyrs ut ett år i taget till högstbjudande.
Det är tillåtet att stå med bil att lasta i och ur mellan flyglarna på gårdssidan, infart från Persgatan.
Det finns parkeringsplats i närheten att hyra via kommunen och hos närliggande BRF.
Stadsfiber. Valfritt för medlem att teckna TV/bredband.
Gemensam gårdsplan.
Föreningen har gemensam tvättstuga med torkrum, cykel och barnvagnsrum, det finns även källarförråd (till varje medlem) och ett övernattningsrum med bastu, det kostar 100kr/natt att låna övernattningsrummet.
Information som berör föreningen är inhämtad via årsredovisning, stadgar och kontakt med föreningen. Avvikelser kan förekomma och som köpare uppmanas du att själv kontrollera samtliga uppgifter, framförallt om något är av extra stor betydelse för dig som köpare.
Norr är en av Helsingborgs mest attraktiva stadsdelar att bo på. Här bor du vid vattnet - mitt i centrum med shopping, restauranger och nöjesliv runt hörnet. En fantastisk kombination.
I området finns varierad bebyggelse, men många kvarter är av tydlig och enhetlig karaktär. Största delen av bebyggelsen på Tågaborg är från förra sekelskiftet med många stora vackra patriciervillor längs hela landborgen.
Där de gamla järnvägsspåren gick förr som skilde stadsdelen och havet åt, är numera ett uppskattat område med promenadstråk och stora gräsytor som kallas Gröningen. Här kan du spela boule, minigolf och utöva mängder av sommarsporter på de fria ytorna.
Vill du njuta av breda sandstränder och skönt havsbad har du Örestrandsbadet eller Fria bad som det också kallas vid Gröningen. Här finns det flera badbryggor som sträcker sig ut i havet längs med kuststräckan samt de två moderna kallbadhusen Kallis och Pålsjöbaden.
Köpa, sälja eller värdera bostad i norra Helsingborg? Välkommen att kontakta Bjurfors mäklare i Helsingborg Norr. Passa också på att anmäla dig till vår kostnadsfria söktjänst Boagenten som hjälper dig att hitta ditt drömboende.
Kontakta mäklaren om du behöver hjälp att ta fram en boendekalkyl.
När du köper din bostad genom Bjurfors kan du ansöka om bolån till en förmånlig ränta hos vår samarbetspartner SEB.
Ansvarig mäklare