-
Köpa
Köpa -
Sälja
Sälja - Hitta bostad
- Skapa bevakning
- Hitta mäklare
Underbar lägenhet på Tullgatan 8A med utsikt mot Lunds Domkyrka från balkongen
Lund - Centrum, Lund
*I avgiften ingår värme, vatten och bostadsrättstillägg. Obligatorisk kostnad för el tillkommer om 260 kr/mån.
**enligt bostadsrättsföreningens mäklarbild/utdrag ur lägenhetsregistret 1rok.
Bokad visning.
Vacker 30-talslägenhet på 52 kvm med moderna detaljer, stor balkong med utsikt över Lunds domkyrka, rymligt kök och smart avdelat sovrum.
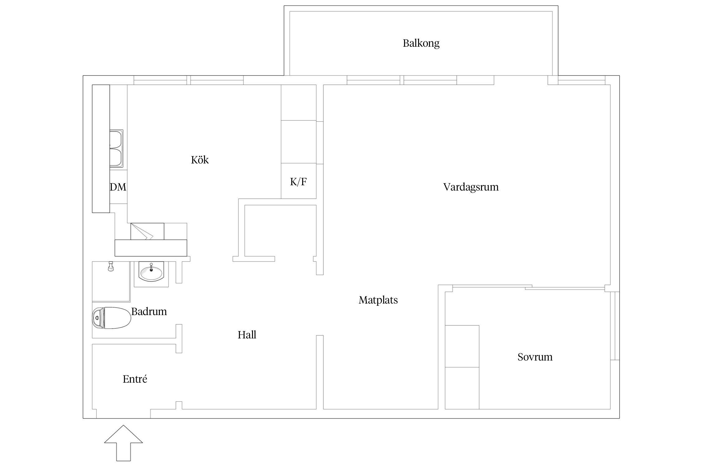
Välkommen till denna fantastiska lägenhet på Tullgatan 8A, byggd 1935, med en genomtänkt planlösning och modern stil. Lägenheten på 52 kvm erbjuder 1,5 rum och kök och är belägen högst upp på fjärde våningen, vilket ger en härlig utsikt och mycket ljus.
När du stiger in möts du av en välkomnande hall med praktiska avhängningsmöjligheter och ett golv klätt i elegant stavparkett. Hallen leder vidare till en stor, möblerbar yta som också har stavparkett och erbjuder en rymlig garderob för extra förvaring.
Det helkaklade badrummet är modernt och fräscht, utrustat med dusch, toalett och vask, vilket ger dig allt du behöver för en bekväm vardag.
Det stora och rymliga köket är ett av lägenhetens hjärtan. Med stilfulla skåpluckor i körsbär, rostfri kyl och frys, spishäll, ugn och fläkt är köket både funktionellt och estetiskt tilltalande. Här finns plats för fyra till fem personer att njuta av måltiderna tillsammans, och klinkergolvet gör köket lättstädat och praktiskt.
Det stora allrummet har en luftig känsla och erbjuder gott om plats för umgänge och avkoppling. Säljaren har på ett smart sätt delat av rummet med industriglas för att skapa ett trendigt och stilfullt sovrum, vilket adderar en modern touch till bostaden.
Lägenhetens pärla är den stora och härliga balkongen i österläge. Här kan du njuta av morgonkaffet med en magnifik utsikt över Lunds domkyrka, Tullgatan och södra Esplanaden med dess vackra fastigheter.
Här bor du på centralt läge med citypulsen runt knuten och närhet till serviceutbud och kommunikationsmöjligheter. Närhet till såväl universitetet och nationer som till shopping och grönskande Stadsparken.
Denna lägenhet är en perfekt kombination av charm från 1930-talet och moderna inslag, vilket gör den till ett unikt och eftertraktat hem. Missa inte chansen att bli ägare till denna pärla på Tullgatan 8A – en lägenhet som verkligen har allt!



*enligt bostadsrättsföreningens mäklarbild/utdrag ur lägenhetsregistret 1rok.
I avgiften ingår värme, vatten och bostadsrättstillägg. Obligatorisk kostnad för el tillkommer om 260 kr/mån.
2021 Slipning av golv. Putsning och målning av tak och väggar. Uppsättning av industrivägg i vardagsrum för avskärmning av sovutrymme.
Till lägenheten hör vindsförråd och källarförråd.
Bostadsrättens indirekta nettoskuldsättning baseras på föreningens skulder/lån minus föreningens räntebärande tillgångar och likvida medel. Beräkningen är gjord och baseras på senaste tillgängliga årsredovisningen. För mer information kontakta ansvarig fastighetsmäklare.
*Betalas av köpare
Brf Hörngården bildades 1937 och består av 13 st lägenheter med adress Tullgatan 8. Ekonomisk förvaltare är SBC.
Föreningen gjorde ingen höjning av månadsavgifterna inför 2025 men kommer att höja med 1 % 2Q 2025 (Kontrollerat 2025-01-01).
I föreningens fastighetsförsäkring ingår bostadsrättstillägg för föreningens lägenheter.
Utförda renoveringar
Under 1996 byttes vatten- och avloppsstammarna varpå föreningen renoverade alla badrummen i fastigheten samt tvättstugan.
Under 1996 drogs även elen om i lägenheterna och stammen byttes ut, även detta på bekostnad av föreningen.
1986 renoverades balkongerna.
1993 fick innergården en uppfräschning, liksom vinden.
1999 Stambyte
2007 trapphusen målades och taket lades om.
2007 byttes alla fönster i föreningen.
2014 Entrégolvet lades om under hösten.
2017 Balkonger renoverade.
2018 Byte till säkerhetsdörrar.
2019 Stamspolning och besiktning/filmning av avloppsstammar samt ledningar.
2020 Omfogning av tegelfasad.
2020 Byte tvättmaskin
2022 Målning av entré och trapphus
Kommande renoveringar (kontrollerat 2025-01-01).
Föreningen har inga större renoveringar planerade närmsta åren
Föreningen har inga egna parkeringsplatser, Föreningen delar inte parkeringsplatser med grannföreningarna. Det finns närliggande föreningar man kan höra av sig till vid behov för att se om det finns platser över.
Kabel-TV Tele2
Bredband Telenor
I Lund kopplas historia och framtid samman i mötet mellan det gamla och det nya. Centrala Lund är en gemytlig kullerstensstad med den lilla stadens charm och samtidigt storstadens hela utbud. I Lunds centrum är det lättare att gå eller cykla än att köra bil vilket bidrar till ett lugnt och skönt tempo i stadskärnan.
Lund avgränsas idag av området där den medeltida muren en gång stod. Lund är en stad med anor och det märks främst i gatunätet som på sina ställen sett likadant ut i århundraden. De små sidogatorna, husen med klätterrosor och vackra detaljer bidrar till stadens unika charm. Södra Esplanaden, Gyllenkroks allé, Svanegatan, Bangatan, Biskopsgatan och Östra Vallgatan ringar in de mest centrala delarna. Här består bebyggelsen framförallt av flerfamiljshus men också av gatuhus. Bakom flera av dessa finns de fantastiskt vackra innergårdar som Lund är känt för.
I öster finns Professorstaden som är ett populärt bostadsområde med sina ståtliga och påkostade villor. Geografiskt begränsas området av Tornavägen i öster, Dalbyvägen i söder, Östra Vallgatan och Biskopsgatan i väster samt Sölvegatan i norr. Här finns även idrottsanläggningen Gerdahallen med ett av Nordens största gym. Området Nöden erbjuder småskalig bebyggelse och mysiga gränder.
Lund är kaféernas stad och runt dess torg umgås man gärna över en kopp kaffe och något gott att äta. Vid Stortorget ligger internationellt uppmärksammade Stadshallen som varje år besöks av studenter från hela världen. Här kan du lyssna till konserter och föreläsningar, delta i seminarier eller besöka spännande utställningar. Saluhallen vid Mårtenstorget är ett stycke kulturhistoria och byggnaden ligger Lundaborna varmt om hjärtat.
Större delen centrum är bilfritt, så inne i Lund cyklar eller går man. Centralstationen är en viktig pulsåder för stadskärnan, då många av Lunds invånare pendlar via tåg eller buss. Staden Lund präglas av grönområden och förutom Lundagård är till exempel Botaniska Trädgården och Stadsparken populära platser för avkoppling och rekreation.
I Lund finns mycket att upptäcka för den arkitekturintresserade. Lunds Domkyrka som invigdes i mitten av 1100-talet är den förnämsta romanska domen i Norden. Nordost om Domkyrkan ligger Kulturkvadranten som härstammar från 900-talets slut och är ett av Lunds bäst bevarade medeltida områden. Här ligger flera av universitetets institutioner samt friluftsmuseet Kulturen.
Vill du köpa, sälja eller värdera bostad i Lunds centrum? Kontakta våra mäklare i Lund! Passa också på att anmäla dig till vår kostnadsfria söktjänst Boagenten som hjälper dig att hitta ditt drömboende.
Kontakta mäklaren om du behöver hjälp att ta fram en boendekalkyl.
När du köper din bostad genom Bjurfors kan du ansöka om bolån till en förmånlig ränta hos vår samarbetspartner SEB.
Bokad visning.
Ansvarig mäklare