-
Köpa
Köpa -
Sälja
Sälja - Hitta bostad
- Skapa bevakning
- Hitta mäklare
Unik trea med lyxig takhöjd och drömläge i Västra Hamnen!
Västra Hamnen, Malmö
*I avgiften ingår värme och kallvatten. Bredband/TV/IP-telefoni tillkommer som en obligatorisk kostnad om 196 kr/mån. Det tillkommer kostnad för varmvatten och el efter förbrukning.
**Areauppgifter enligt lägenhetsförteckning
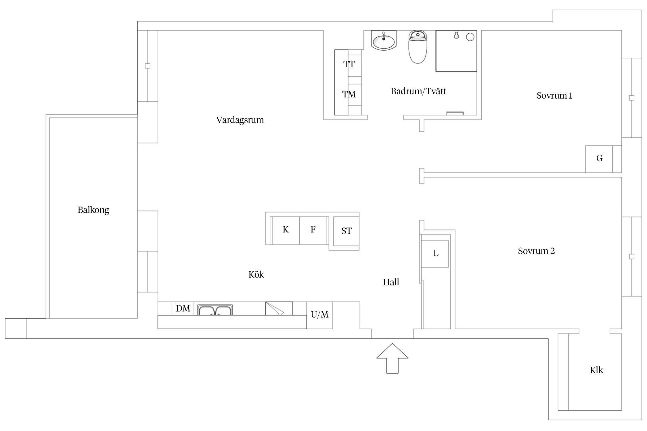
Modern trea i absolut toppskick med drömläge i Västra Hamnen!
Välkommen till Lilla Varvsgatan 35C!
Upptäck denna charmiga trea i hjärtat av Västra Hamnen, en av Malmös mest eftertraktade stadsdelar. Här möts modern komfort och stilren design i en bostad som imponerar med en fantastisk takhöjd om hela 3 meter. Den öppna och genomgående planlösningen förstärker den rymliga och luftiga känslan – perfekt för både avkoppling och sociala tillställningar.
Lägenheten omfattar 75 välplanerade kvadratmeter och rymmer två rymliga sovrum, varav ett med en praktisk walk-in-closet. Köket är smakfullt inrett i en stilren grå ton från Vedum, och det helkaklade badrummet bjuder på extra komfort med golvvärme.
Läget på Lilla Varvsgatan är svårslaget. Här bor du med restauranger, butiker och badplatser bara ett stenkast bort. Området erbjuder ett rikt utbud av service som mataffärer, apotek och träningsmöjligheter. Morgondoppet blir en självklarhet med bryggan inom gångavstånd, och barnfamiljer kan glädjas åt närheten till några av Malmös bästa förskolor och skolor – den närmaste bara ett par steg bort.
Varmt välkommen att boka en visning och upptäck allt detta fantastiska hem har att erbjuda!



Sjöporten 3
*Areauppgifter enligt lägenhetsförteckning
I avgiften ingår värme och kallvatten. Bredband/TV/IP-telefoni tillkommer som en obligatorisk kostnad om 196 kr/mån. Det tillkommer kostnad för varmvatten och el efter förbrukning.
Bostadsrättens indirekta nettoskuldsättning baseras på föreningens skulder/lån minus föreningens räntebärande tillgångar och likvida medel. Beräkningen är gjord och baseras enbart på den senaste tillgängliga årsredovisningen. För mer information kontakta ansvarig fastighetsmäklare.
*Betalas av köpare
Brf Norra Sjöporten stod färdigt 2022 och består av 57 lägenheter och 3 lokaler med adresserna Einar Hansens Esplanad 27A-B, Lilla Varvsgatan 33, 35A-D och Stapelbäddsgatan 22
Besök gärna föreningens hemsida för med information https://www.brfnorrasjoporten.se
Föreningens ekonomiska förvaltare är Nabo.
Föreningen höjde avgiften med 2% 2025-01-01.
IMD
Brf Norra Sjöporten har tecknat ett gruppabonnemang med EON. Kostnader för el- och varmvattenförbrukning kommer att regleras i efterhand efter verklig förbrukning. De boende blir debiterade för detta utöver månadsavgiften. Avläsning sker månadsvis med 2 månaders eftersläp. Vid överlåtelse får slutavläsning regleras i efterhand.
Fastigheten är fullvärdesförsäkrad hos Trygg Hansa. Det ingår bostadsrättstillägg för medlemmar.
En hjärtstartare har monteras på innergården.
Då huset är relativt nybyggt finns inga planerade renoveringar (kontroll 2024-12-04).
I föreningen finns ett garage med 32 platser varav 4 elbils-platser och en handikapparkering. Garageplats: 1 200 kr/mån
Elbilsplats: 1 521 kr/mån
I dagsläget finns det planer på att det ska bli fler platser som har laddstolpe.
Just nu står det 10 personer i kö till platserna (kontroll 2023-11-24).
Nabo förvaltar parkeringsplatserna, man kontaktar dem för att ställa sig i kö.
Som boende i denna fastighet har du fritt medlemskap utan anslutningsavgift i Sunfleets bilpool t.o.m september 2029
Bredband, TV och IP-telefoni tillkommer som ett obligatoriskt tillägg på månadsavgiften. Föreningen är ansluten till TV och bredband 100/100 Mbit/s via Tele2.
Innergården har en lummig miljö och generösa ytor för samvaro. Här finns en gräsmatta, rikligt med träd, ett trädäck med grillplats och en pergola som bildar gångväg och samtidigt avgränsar radhusens uteplatser. Cykelparkering finns på gården.
Föreningen har en övernattningslägenhet med ingång via trapphus 2 med en kostnad om 400kr/dygn. Det finns även 2 miljöhus, cykelrum, barnvagnsrum och cykelverkstad.
Föreningen har solceller på taket
Information som berör föreningen är inhämtad via årsredovisning, stadgar och kontakt med föreningen. Avvikelser kan förekomma och som köpare uppmanas du att själv kontrollera samtliga uppgifter, framförallt om något är av extra stor betydelse för dig som köpare.
Säljaren upplyser om att det inte finns några kända fel eller brister.
Det som började som en vision om att skapa en ny typ av boendemiljö har vuxit fram som en spännande stadsdel som sjuder av liv. Under sommarhalvåret drar Västra Hamnen och Dockan åt sig särskilt många besökare. Malmöbor och andra skåningar kommer kanske för att ta ett dopp utmed den långa strandpromenaden. Minst lika många, också utländska turister, fascineras året om av den varierande arkitekturen i boendemiljön där Turning Torso står lika tydlig som ett utropstecken – här är det!
Västra hamnen är en ekologiskt hållbar stadsbebyggelse och den började ta sin form under bostadsmässan Bo01, som hölls sommaren 2001. Syftet med mässan var att visa upp för allmänheten hur övergiven industrimark kunde förvandlas till bostadsområden med affärer, restauranger, hotell och kontor i en levande miljö. Den otillgängliga kustremsan förvandlades också till en mötesplats med utrymme för lekplatser, parker, skateramper, motionsstråk och brygghäng.
Ambitionen att skapa en levande stadsdel infriades verkligen. Idag är Västra Hamnen ett mycket attraktivt bostadsområde där förskolor och skolor hör till Malmös mest uppskattade. Här finns också all service, som t ex apotek, gym och matbutiker. Även flera topprestauranger har etablerat sig här lockade av möjligheten att bjuda gästerna på en upplevelse utöver det vanliga. Flera har borden precis utmed kajkanten och serverar förstås gärna fisk- och skaldjursrätter. Det är också enkelt att vara nära naturen i Västra Hamnen. De boende uppskattar möjligheten att ta ett kvällsdopp vid Scaniabadet och njuter av solnedgången i sundet vid Öresundsbron.
Idag är västra hamnen känd för sin spännande arkitektur med landmärket Turning Torso som stor turistattraktion. Den imponerande 190 meter höga byggnaden har satt Malmö på kartan och besökare från såväl Sverige som övriga världen kommer för att beskåda den.
Granne med Västra Hamnen ligger Dockan. Namnet på området är hämtat från förr då just varvsindustri och Kockums dominerade kustområdet. Nu är det ett trevligt bostadsområde som definieras av flervåningshus med närkontakt till vattnet, restauranger och en fri sikt ut mot horisonten. Den ursprungliga båtdockan har återanvänts och förvandlats till en attraktiv småbåtshamn. Man kan som boende parkera båten utanför porten.
Blandningen av gammalt och nytt är ledord i utformningen av Dockans miljö och flertalet äldre byggnader har fått nya användningsområden, bland annat har Malmö universitet sin verksamhet i en gammal ubåtshall. Studenter blandas också med kontorsanställda då många små företag men även större internationella sådana har kontor i området. Även Bjurfors har sitt huvudkontor här.
Vill du köpa, sälja eller värdera bostad i Västra Hamnen? Kontakta Bjurfors mäklare på Malmö City! Passa också på att anmäla dig till vår kostnadsfria söktjänst Boagenten som hjälper dig att hitta ditt drömboende.
Kontakta mäklaren om du behöver hjälp att ta fram en boendekalkyl.
När du köper din bostad genom Bjurfors kan du ansöka om bolån till en förmånlig ränta hos vår samarbetspartner SEB.
Ansvarig mäklare