-
Köpa
Köpa -
Sälja
Sälja - Hitta bostad
- Skapa bevakning
- Hitta mäklare
Familjevilla med underbar trädgård – centralt i Ystad
Centrala Ystad, Ystad
*Areauppgifter enligt taxeringsinformationen
På Förhand ligger bostäder som av olika anledningar inte är ute till försäljning just nu men som kan komma att säljas om förutsättningarna är rätt.
Centralt belägen villa i Ystad med carport, uppställningsplats och underbar trädgård. Flexibel planlösning och stor potential
Gedigen familjevilla med underbar trädgård – centralt i Ystad
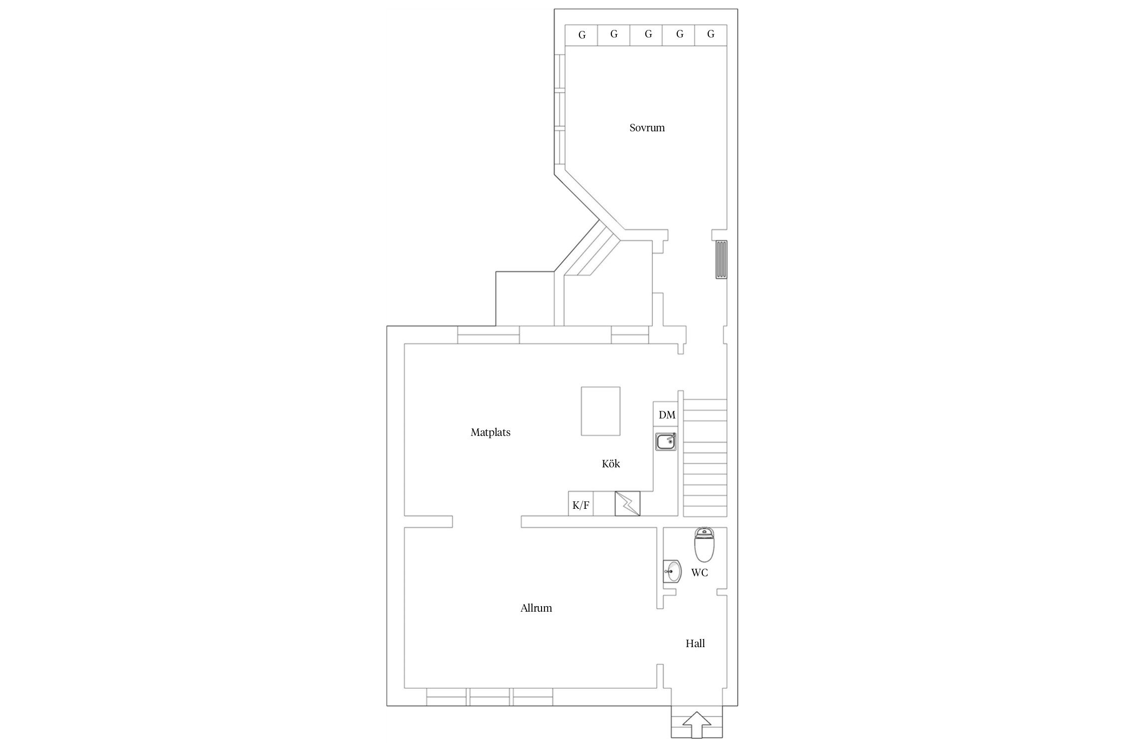
Välkommen till Norra Änggatan 14 – ett trivsamt och välplanerat hem med attraktivt centralt läge i Ystad och närhet till stadens utbud av service, skolor, kommunikationer och grönområden. Här erbjuds både uppställningsplats för bil och carport samt en lummig, insynsskyddad trädgård som bjuder in till avkoppling och umgänge.
Entréplanet välkomnar med en rymlig hall och gäst-wc. Vidare öppnar bostaden upp sig mot ett ljust och inbjudande allrum med plats för både soffgrupp och umgänge. Köket är trivsamt och funktionellt med köksö och matplats – en naturlig samlingspunkt för familj och vänner. En tillbyggnad ger entréplanet ett extra sovrum, perfekt som föräldrasovrum, gästrum eller hemmakontor.
En trappa upp finns ett helkaklat badrum med dusch samt två sovrum. Det större sovrummet erbjuder generösa ytor och kan med fördel delas av för den som önskar ytterligare ett rum.
Källare under hela bostaden som nås utifrån och erbjuder tvättstuga samt gott om förvaringsutrymme. Här finns goda möjligheter att skapa ett hem helt efter egen smak och behov.
Ett hem med stor potential, flexibel planlösning och ett svårslaget centralt läge i Ystad.



Planskiss entréplan
Planskiss ovanvåning
Planskiss källarplan
Pehrsson 7
*Areauppgifter enligt taxeringsinformationen
Kommunalt vatten, Kommunalt avlopp.
Detaljplan (1992-04-15) Tomtindelning (1911-01-31)
Fiber finns i gatan, ej inkopplat
Enligt ö.k.
Det finns 8 st pantbrev uttagna om sammanlagt 803 000 kr
Det finns få städer med en så genuin och välbevarad stadskärna som Ystad. Bland de kullerstenbelagda gatorna inne i centrum syns både charmiga korsvirkeshus från medeltiden och pastellfärgade gathus från förra sekelskiftet. Det vimlar av caféer, restauranger och butiker av olika slag. Nere i den mysiga småbåtshamnen finns fiskrökeri och restaurang med uteservering. Den idylliska atmosfären, goda pendlingsmöjligheter, närheten till havet och det stora utbudet bidrar till att många väljer att flytta till Ystad.
Ystads pittoreska stadskärna har blivit lite av en kult inom svensk film tack vare Wallanderfilmerna som baseras på Henning Mankells böcker. Även utanför Sveriges gränser har läsare och åskådare följt Kurt Wallander lösa brott genom Ystads gränder. För den filmintresserade finns en speciell rutt med karta över olika inspelningsplatser runt i staden som man kan följa.
Ystads bebyggelse från sen medeltid till 1700-tal är rankat som en av Skånes bäst bevarade. Gatornas uppbyggnad inne i den gamla staden är nästan oförändrade sedan medeltiden. Ett av de äldsta bebodda husen i Sverige är Apotekarshuset som härstammar från 1400-talet. Inte helt oväntat är de pittoreska gathusen hett eftertraktade på bostadsmarknaden.
Stora Östergatan är stadskärnans shoppingstråk, där både stora butikskedjor och små lokala verksamheter huserar. I gränderna som sticker ut från butiksgatan ligger ett flertal matställen utspridda. På Besökargränd hittar man Per Helsas gård som är en kringbyggd gård med anor från 1700-talet. I dag är detta ett kreativt centrum för olika designers, hantverkare och konstnärer. På andra sidan gården ligger det populära matstället Grändens Mat som serverar vällagad mat till både lunch och middag. På sommaren är det fullsatt på den mysiga kullerstenbelagda innergården. En viktig och vacker mötesplats är Ystad Teater. Efter att den dåvarande teatern brann ner 1891 tog denna form med hjälp av stadsarkitekten Peter Boisen tre år senare. I dag är det en självklar scen för stora musiknamn och föreställningar.
Smidig pendling och bra skolor är ett av många goda skäl att flytta till Ystad. Pågatågen går både till Malmö och Simrishamn och regionbussar når städer som Sjöbo, Trelleborg och Skurup. I Ystad finns förskolor, skolor från åk F-9 samt fyra gymnasieskolor vilket gör det attraktivt för barnfamiljerna. Inne i Ystad finns flera idrottshallar och ett fint badhus med massor av aktiviteter.
Vill du köpa, sälja eller värdera bostad i Ystad? Kontakta Bjurfors mäklare i Ystad! Passa också på att anmäla dig till vår kostnadsfria söktjänst Boagenten som hjälper dig att hitta ditt drömboende.
Kontakta mäklaren om du behöver hjälp att ta fram en boendekalkyl.
När du köper din bostad genom Bjurfors kan du ansöka om bolån till en förmånlig ränta hos våra banksamarbetspartners Söderberg & Partners och SEB.