-
Köpa
Köpa -
Sälja
Sälja - Hitta bostad
- Skapa bevakning
- Hitta mäklare
Generösa 175 kvm med 4–6 sovrum – tryggt läge nära stad & natur
Snättringe, Huddinge
*Areauppgifter enligt taxeringsinformationen
På Förhand ligger bostäder som av olika anledningar inte är ute till försäljning just nu men som kan komma att säljas om förutsättningarna är rätt.
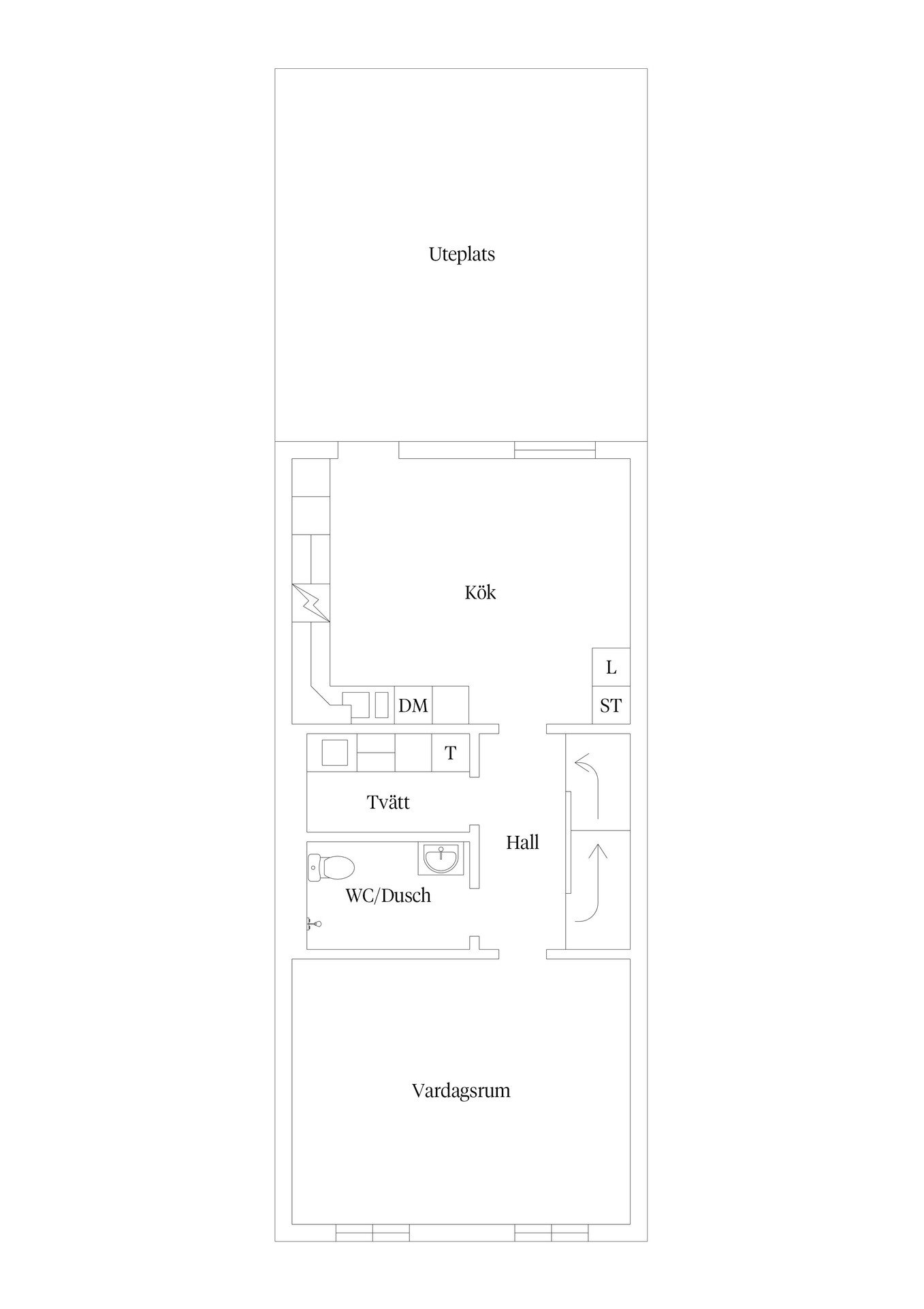
Välplanerat radhus om 175 kvm
Välkommen till ett rymligt och välplanerat radhus i ett populärt och barnvänligt område.
Med tre plan och en totalyta om 175 kvm erbjuds gott om plats för hela familjen. Här finns 4–6 möjliga sovrum, vilket ger flexibilitet för barnrum, hemmakontor eller gästrum. Planlösningen är funktionell och gör det enkelt att anpassa hemmet efter familjens behov över tid.
Bostaden har två badrum som underlättar vardagen i en större familj. Förvaringsmöjligheterna är generösa med två förråd/klädkammare samt vind, och i ett av förråden är avlopp förberett för den som vill utveckla bostaden ytterligare framöver.
Huset är väl omhändertaget och flera större investeringar är redan genomförda. Bland annat har taket lagts om, all invändig el bytts inklusive elcentral, ny varmvattenberedare installerats samt vitvaror uppdaterats. Även garageport och markis är utbytta. Det ger en stabil och trygg grund för nästa ägare.
Invändigt finns möjlighet att med tiden uppdatera ytskikt och badrum efter eget tycke och smak – och därmed sätta sin personliga prägel på hemmet.
Läget är mycket barnvänligt med skola, förskola, nyrenoverad matbutik och kommunikationer inom kort avstånd.
I närområdet ligger Rosendalsparken med stora gräsytor, grillplatser och utegym. Här finns även en uppskattad lekplats med tema ”förtrollad skog”, klätterlek, bollplank och gungor för barn i olika åldrar.
För den naturintresserade finns både Långsjön och Gömmarens naturreservat inom bekvämt avstånd – med bad, fiske, vandringsleder och svampmarker.
Ett hem med generösa ytor, trygg grund och ett läge som passar barnfamiljen.



Roddaren 17
*Areauppgifter enligt taxeringsinformationen
2026
Köket ommålat
Ny altandörr
Nya innerdörrar
2025
Ny varmvattenberedare
Ny kyl, frys, spis, tvättmaskin
2023
Båda större sovrummen plan 3, målade
2022
Takomläggning
Diskmaskin
2021
All invändig el och ny elcentral
Ny markis med fjärrkontroll
2018
Gästrum plan 3, målat
Tvättstuga målad och klinker
2017
Ny garageport med fjärrkontroll
Förråd i anslutning till carport
Kommunalt vatten, Kommunalt avlopp.
En plats i garage, en på uppfart och i övrigt på gatan.
Stadsplan (1985-03-29)
Gemensamhetsanläggning: Huddinge roddaren ga:1 ändamål: Vattenförsörjning, Avloppsanläggning, Övrigt
Gemensamhetsanläggning: Huddinge roddaren ga:2 ändamål: Vägar, Övrigt
Det har tidigare undersökts fiber för hela gatan men inte blivit av. Säljarna har bredband från Tele2.
Driftkostnaderna kommer ifrån säljaren och kan variera beroende på familjestorlek, förbrukning och vanor. I elkostnaden ligger även kostnaden för uppvärmning. Villa/hemförsäkring tillkommer till driftkostnaden.
I samfällighetsavgiften ingår:
Det finns 9 st pantbrev uttagna om sammanlagt 3 700 100 kr
Snättringe är ett populärt och familjevänligt villaområde i Huddinge, söder om Stockholm. Här bor cirka 7 700 invånare i omkring 3 000 hushåll. Här finns friliggande villor, radhus och bostadsrätter i en trivsam och grönskande miljö – perfekt för dig som söker naturnära boende i Huddinge med stadens bekvämligheter på nära håll.
Området uppskattas för sitt lugna läge, närhet till naturen och goda kommunikationer mot både Huddinge centrum och Stockholm city.
Snättringe ligger i nordvästra Huddinge, mellan Stuvsta, Segeltorp, Fullersta och Långsjö. Området sträcker sig från järnvägen vid Stuvsta centrum i öster till Lövdalsvägen i väster.
Skolor, närservice och vardagsliv
Snättringe erbjuder ett tryggt boende för barnfamiljer. Här finns flera grundskolor, förskolor och lekparker.
I Snättringe finns en välsorterad livsmedelsbutik. För mer shopping och service ligger Huddinge centrum, Kungens kurva, Skärholmen C och Stuvsta centrum bara några minuter bort med bil eller buss.
I Stuvsta finns även pendeltågsstation, apotek, vårdcentral, bank och flera restauranger.
Ett stort plus med att bo i Snättringe är närheten till Långsjön – en populär badsjö med både brygga och sandstrand. Här kan du bada, paddla, åka skridskor vintertid eller njuta av en middag på restaurangen vid Långsjöbadet med utsikt över vattnet.
För den idrottsintresserade ligger Källbrinks idrottsplats inom gång- eller cykelavstånd, med möjligheter till fotboll, friidrott, tennis, orientering och motion.
Intill området breder Gömmarskogens naturreservat ut sig – ett variationsrikt friluftsområde med motionsspår, ridvägar, leder och badsjön Gömmaren.
Här kan du vandra bland ekbackar, tallskog och blåbärsmarker, fiska med fiskekort eller plocka svamp under säsongen.
Kommunikationer och tillgänglighet
Snättringe har utmärkta kommunikationer. Flera busslinjer går till Huddinge centrum, Fruängen, Kungens kurva och Skärholmen.
Från Stuvsta station tar pendeltåget dig till Stockholm city på cirka 13 minuter.
För bilburna går det snabbt att nå E4:an både norrut och söderut – cirka 20 minuter till centrala Stockholm och 25 minuter till Södertälje.
Köpa, sälja eller värdera bostad i Snättringe? Kontakta våra Bjurfors mäklare i Huddinge! Passa också på att anmäla dig till vår kostnadsfria söktjänst Boagenten som hjälper dig att hitta ditt drömboende.
Kontakta mäklaren om du behöver hjälp att ta fram en boendekalkyl.
När du köper din bostad genom Bjurfors kan du ansöka om bolån till en förmånlig ränta hos vår samarbetspartner SEB.
Ansvarig mäklare