-
Köpa
Köpa -
Sälja
Sälja - Hitta bostad
- Skapa bevakning
- Hitta mäklare
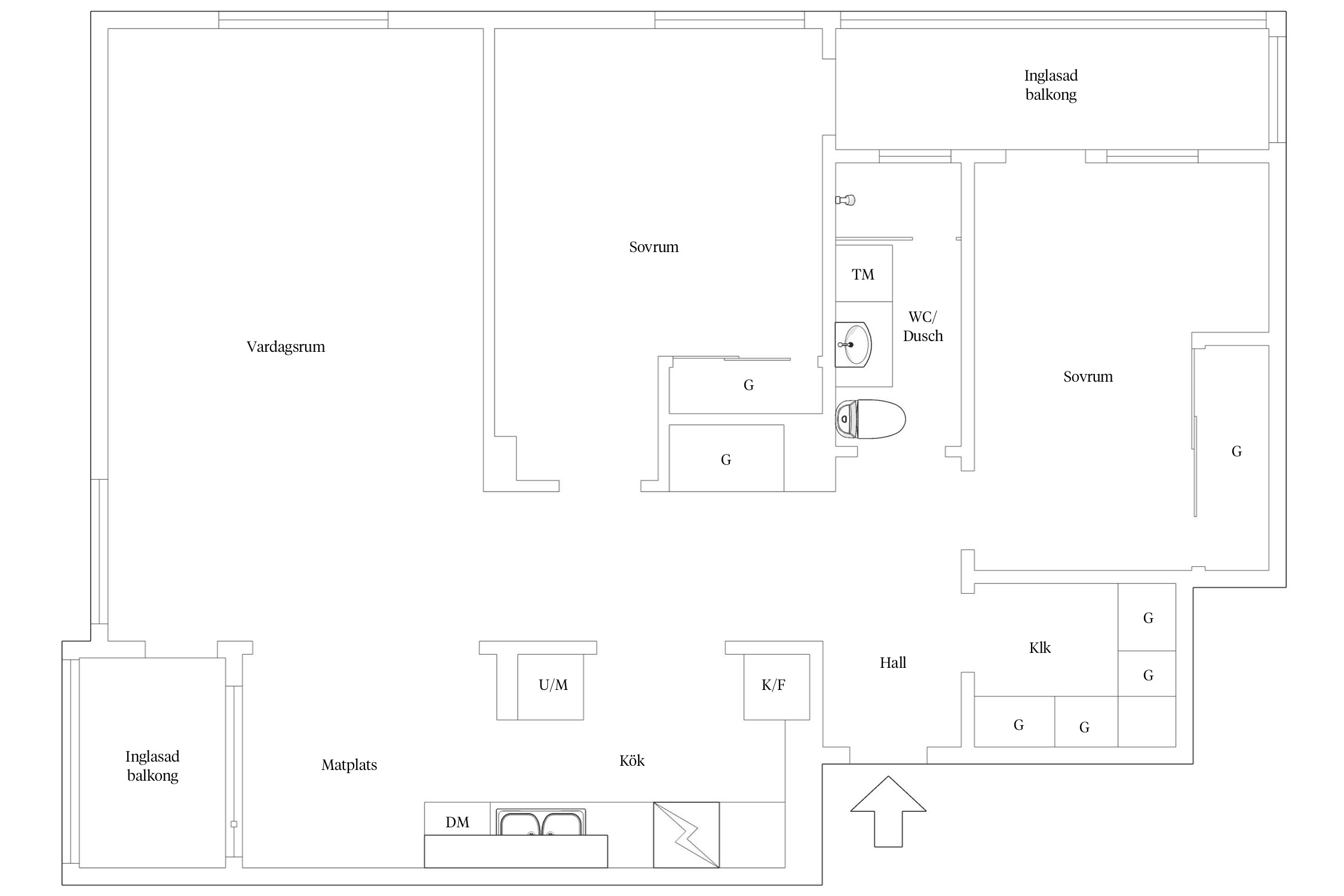
Välplanerad 3a med två balkonger!
Biskopsgården, Göteborg
*I avgiften ingår värme, vatten, kabel-TV och bredband.
På Förhand ligger bostäder som av olika anledningar inte är ute till försäljning just nu men som kan komma att säljas om förutsättningarna är rätt.
Gavellägenhet med öppen planlösning och två inglasade balkonger. Här bor du i en bra förening med god ekonomi. Nyrenoverat kök från 2020!
Välkommen till Regnvädersgatan 3! Här erbjuds en välplanerad bostad i gavel om ca 72 kvadratmeter om 3 rum och kök där bredband ingår i avgiften. Gott om förvaring i rymlig klädkammare, goda arbetsytor i köket som är renoverat från 2020 och med en naturlig matplats vid fönstret. De stora fönsterpartierna ger bostaden ett härligt ljusinsläpp. Vardagsrummets härliga rymd skapar plats för olika typer av möblemang och härifrån nås en av balkongerna. Här finner man även två bra sovrum och ett stilrent badrum. Från båda sovrummen nås även den andra balkongen med soligt söderläge. Föreningen är välskött och har en god ekonomi.
I närheten finns Vårväderstorget med affärer och service. Det är också nära till förskola och det finns ett flertal skolor i området. Bostaden ligger i anknytning till naturen och på promenadavstånd ligger naturområdet Svarte Mosse med fritidsanläggningar såsom fotbollsplaner, tennis och bangolf. Här finns även promenadvägar att strosa runt på och njuta av naturen.
Välkomnande hall med klädkammare i direkt anslutning som ger mycket bra förvaringsmöjligheter. Till höger har du en praktiskt klädkammare för extra förvaring. Från hallen når man lägenhetens alla rum.
Till höger ligger bostadens ena sovrum. Det är rymligt och det finns gott om plats för dubbelsäng. Idag är bostaden inrett som en walk-in-closet.
Från sovrummet nås utgång till den inglasade balkongen i västerläge. Här kan du njuta av eftermiddagssolen.
Rakt fram från hallen ligger badrummet. Det är stilrent helkaklat med vitt kakel på väggarna och grått klinker på golvet. Här finns toalett, handfat med kommod, dusch med vikbar duschvägg, handdukstork, spegelskåp och i taket sitter spotlights. Här finns även ett praktiskt vädringsfönster och en tvättmaskin som underlättar vardagen.
Den andra sovrummet är stort och rymmer med enkelhet en stor dubbelsäng med tillhörande möblemang. Här erbjuds förvaring i form av en skjutdörrsgarderob. Ett stort fönster skänker mycket ljus till rummet och här finns också en utgång till den inglasade balkongen.
Ett modernt och stilfull kök från 2019. Köket är väldisponerat med plats för matsalsbord intill fönstret. Gott om skåpsluckor i klassiskt vitt och bra arbetsyta på granitbänkskivan som sätter prägel på köket. Den maskinella utrustningen består av kyl/frys, spis med induktionshäll, spisfläkt, diskmaskin och mikrovågsugn.
Planlösningen är öppen mot vardagsrummet och bidrar till en social yta. Golvet pryds av fin fiskbenparkett och väggarna är ljusa. Det är rymligt och lättmöblerat med plats för soffgrupp och möblemang. Här finner man utgången till den andra balkongen som även den är inglasad.
Ett perfekt boende för dig som vill bo i en väldisponerad lägenhet nära naturen.



I avgiften ingår värme, vatten, kabel-TV och bredband.
Bostadsrättens indirekta nettoskuldsättning baseras på föreningens skulder/lån minus föreningens räntebärande tillgångar och likvida medel. Beräkningen är gjord via Bopedia. För mer information kontakta ansvarig fastighetsmäklare.
Detta är enbart riktvärden och kan variera beroende på avtal.
*Betalas av köpare
Brf Biskopsgården nr 2 omfattar fastigheterna Biskopsgården 36:2 och Biskopsgården 36:4.
Fastigheterna är upplåtna med tomträtt. Tomrättsavtalen skrevs om 2015.
Totalt består föreningen av 58 st bostadsrätter som är fördelade på adresserna Regnvädersgatan 1 och 3.
Fastigheterna är försäkrade hos S&p Insurance Consulting AB.
I försäkringen ingår ansvarsförsäkring för styrelsen.
Gjorda renoveringar:
2023: Hissrenovering
2021: Nya tvättmaskiner på Regnvädersgatan 1
2019: Målning av trapphus
2017: Balkonger, fasad och betongrenovering
2016: Ny värmecentral installerad
2015: Spolning av avloppsstammar i kök och rengöring fasad.
2013: Stambyte badrum
2013: Badrumsrenoveringar
2010-2011: Värmekablar i stuprör.
2009-2010: Byte av ljusarmaturer
2009-2010: Nya elledningar mm
2009: Nytt inpasseringssystem
2005: Ballofixer i kök och badrum
2004: Installation av nödljus i trapphusen
2003: Byte till säkerhetsdörrar
1998: Fönsterbyte inkl. balkongdörrar
1983: Tilläggsisolering och plåtfasader
Takrenovering planeras under 2026.
P- platser Vi har bara 5 p-platser och 5 garage. Turordning efter inflyttningsdatum. Väntetid för nuvarande upp till 10 år. Göteborgs Stads Parkering har platser utanför husen.
Bredband och TV via Telenor
BO MELLAN CITYPULS OCH NATUR
Biskopsgården är ett expansivt område med lika stor närhet till citypuls som till naturen. Här bor du högt och många delar bjuder på en storslagen utsikt. Området ligger på Hisingen som är Sveriges fjärde störst ö.
GÖTEBORGS STÖRSTA PARK
Det gröna området består av både Biskopsgården och Länsmansgården. När du bor här har du närheten till både natur och city. Stora delar ligger i en höglänt terräng och bjuder på en vidunderlig utsikt. Området är uppbyggt kring de tre stora torgen Friskväderstorget, Vårväderstorget och Länsmanstorget. Gemensamt för torgen är att de alla har livsmedelsbutik, restaurang och mindre butiker. Vädret ger sig inte bara tillkänna i torgens namn utan också i de många av gatunamnen som Dimvädersgatan och Sommarvädersgatan. I radhusområdet Solvädersbyn är alla gatunamn uppkallade efter friidrottsgrenar. Husen uppfördes först i Lillehammer som deltagarbostäder inför vinter-OS 1994 för att sedan flyttas till Heden i samma syfte vid friidrotts-VM 1995.
Biskopsgården består av blandade bostäder där många av flerfamiljshusen är ritade av sin tids berömda arkitekter. I Södra Biskopsgården har Helge Zimdal ritat en stor del, han var känd för att lyfta mänsklighet och värme i sina byggnader. Inte långt från Biskopsgården ligger Norra Älvstranden. Det är ett av Göteborgs mest expansiva områden och här finner du vackra promenadstråk och bostadskvarter precis vid kajkanten. Varför inte ta en löptur längs den träbeklädda kajen som sträcker sig från bro till bor?
SALTA BAD OCH FÖRSTKLASSIG SHOPPING
När du bor här har du nära till sjön Svarte mosse. Packa fikakorgen och upptäck områdets rika djur- och växtliv. Skogen som omger sjön kallas Sjumilaskogen och här finns det många vackra spår du kan promenera eller springa längs med.
Hisingsparken är Göteborgs största park och här hittar du vackra naturpartier, vandringsstigar och 4H-gården Kättilsröd, som är uppskattad av både stora och små. På Centrala Hisingen ligger Keillers Park med Ramberget. Med sina 87 meter är berget ett markant landmärke och utsikten från toppen är en av Göteborgs bästa. När du bor på Hisingen har du alltid nära till havet. Flera fina badplatser ligger på ön och lockar året om med salta bad. Många av dem hittar du i Torslanda dit du enkelt tar dig med buss.
När du blir sugen på shopping finns flera bra shoppingområden. Backaplan, som genomgår en omfattande utveckling, är det största och här finner du de flesta stora affärskedjor. Med buss eller spårvagn når du centralstationen och innerstaden på några få minuter.
I området finns det gott om förskolor och grundskolor att välja på. Nära ligger också expansiva Lindholmen Science Park som erbjuder två universitet och åtta gymnasieskolor.
Köpa, sälja eller värdera bostad på Hisingen? Kontakta våra Bjurfors mäklare på Hisingen! Passa också på att anmäla dig till vår kostnadsfria söktjänst Boagenten som hjälper dig att hitta ditt drömboende.
Kontakta mäklaren om du behöver hjälp att ta fram en boendekalkyl.
När du köper din bostad genom Bjurfors kan du ansöka om bolån till en förmånlig ränta hos våra banksamarbetspartners Söderberg & Partners och SEB.
Ansvarig mäklare