-
Köpa
Köpa -
Sälja
Sälja - Hitta bostad
- Skapa bevakning
- Hitta mäklare
Exklusiv 1,5:a med balkong i attraktiva Eriksberg
Eriksberg, Göteborg
*I månadsavgiften ingår värme, bredband, digital-TV och abonnemang för bredbandstelefoni. Kostnad för el och vatten tillkommer och debiteras separat efter enskild förbrukning.
**Areauppgift från föreningen
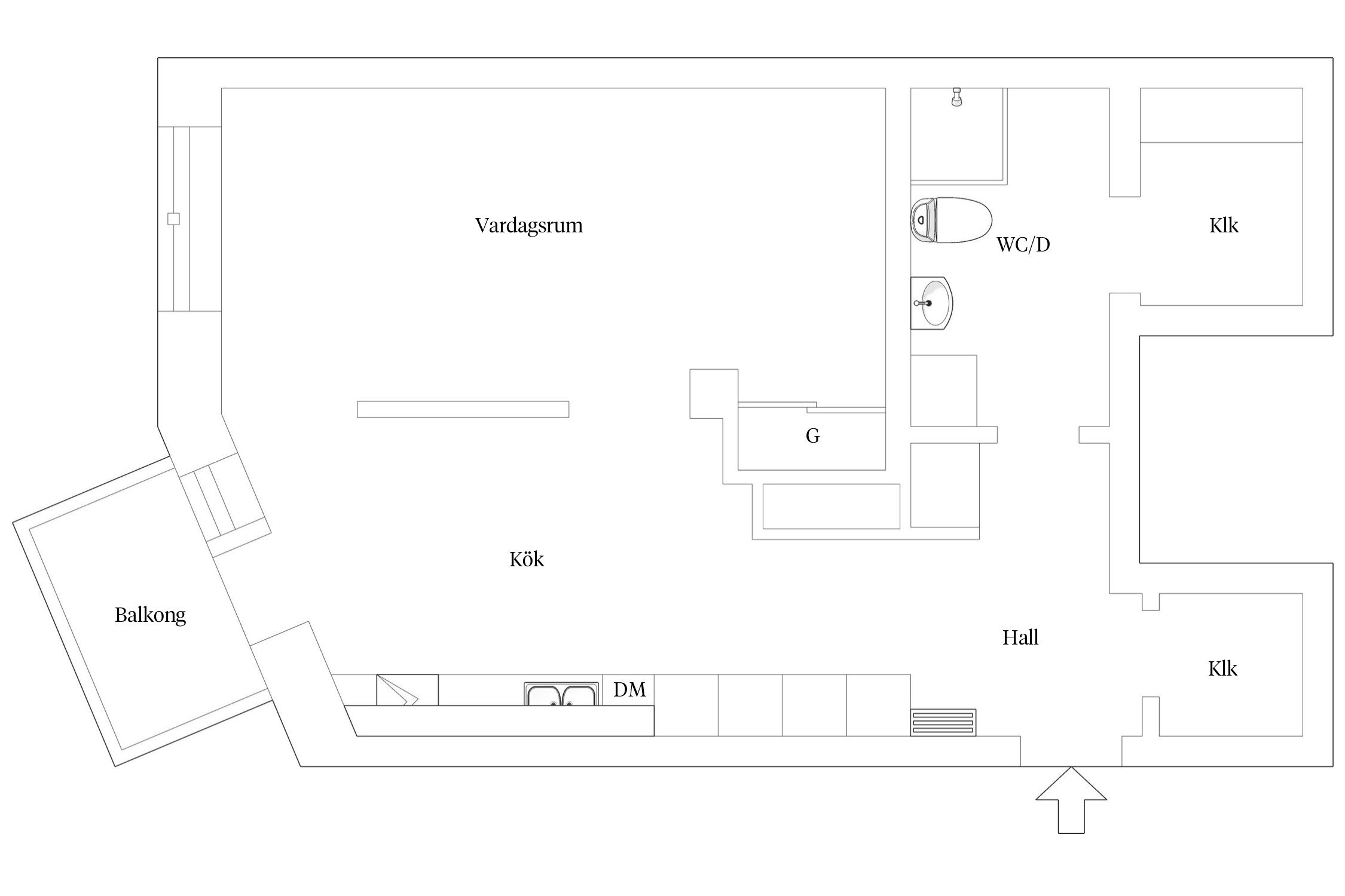
Välkommen till denna stilfulla och välplanerade 1,5:a om 55 kvm i populära Eriksberg – ett hem som kombinerar smart planlösning med exklusiva tillval
Bostaden erbjuder en luftig och flexibel planlösning där sovdelen enkelt kan skärmas av för att skapa en mer privat sovalkov. Perfekt för dig som vill ha känslan av en mindre tvåa utan att kompromissa med rymd och ljus. Det smakfulla köket är utrustat med exklusiva materialval och moderna vitvaror. Här finns en naturlig plats för köksbord, och ytan är delvis avskärmad mot vardagsrummet vilket skapar en tydlig men social uppdelning mellan rummen. Det ger en ombonad känsla samtidigt som ljus och rymd bevaras. Vardagsrummet är lättmöblerat med plats för både soffgrupp och ytterligare möblemang efter behov. De genomtänkta planlösningsdetaljerna gör bostaden både trivsam och funktionell. Förvaringsmöjligheterna är något utöver det vanliga: två rymliga klädkammare samt flera platsbyggda garderober gör det enkelt att hålla hemmet organiserat och stilrent. Från vardagsrummet nås den trevliga balkongen med härlig eftermiddagssol – en perfekt plats för avkoppling efter jobbet eller sommarens middagar i kvällssolen.
Föreningen i sig är också fylld av fantastiska faciliteter. Längst upp i huset på våning 22 finns en takterrass som sträcker sig runt hela huset. Från denna terrass kan man via en utvändig trappa komma upp till den övre terrassen där det finns ett glasat uterum för gemensamma aktiviteter. Utanför glasrummet sträcker sig en takterrass runt huset. Ett pentry och en wc finns intill terrassen på våning 22. På våning 4 finns en gemensamhetslokal för föreningen som kan användas för att fungera för co-working, kalas, matlagning mm. Intill lokalen finns en toalett. Här finns även en gästlägenhet.
Endast en kort promenad från bostaden nås de vackra kajstråken med mysiga caféer och restauranger. Eriksberg är en växande stadsdel som har fått en speciell plats i många människors hjärtan. Hit söker sig både turister och Göteborgarna för att strosa omkring en solig dag, sommar som vinter. Centrala Göteborg ligger endast 10-15 minuter bort som ni kan ta bussen eller båten till, hållplatserna ligger bredvid bostaden.



*Areauppgift från föreningen
I månadsavgiften ingår värme, bredband, digital-TV och abonnemang för bredbandstelefoni. Kostnad för el och vatten tillkommer och debiteras separat efter enskild förbrukning.
Bostadsrättens indirekta nettoskuldsättning baseras på föreningens skulder/lån minus föreningens räntebärande tillgångar och likvida medel. Beräkningen är gjord och baseras på senaste tillgängliga årsredovisningen. För mer information kontakta ansvarig fastighetsmäklare.
*Betalas av säljare
Som ett nytt landmärke på Älvstranden har PEAB byggt ett hus på hela 23 våningar med en variation av olika lägenhetstyper som passar de flesta. Allt från 1 rum till 4 rum och de flesta med balkong. Längst upp i tornet finns två gemensamma takterrasser med häftig 360-graders utsikt över Göteborg och hamninloppet. Den ena terrassen ligger på våning 22 och den andra på våning 23. Här uppe finns ett magiskt uterum och observatorium, med en öppen terrass som löper runt om. I detta observatorium finns sittgrupper, pentry samt stjärnkikare. Det finns även en gemensam takterrass på taket av vidbyggda huset på våning 7. Bostäderna var färdiga för inflytt sommaren 2024 och är byggd med moderna och stilfulla materialval. Kök från Marbodal och vitvaror från Siemens. I huset finns även en inspirerande co-workingyta som man kan använda vid hemmajobb. Huset har även en gemensam cykel- och bilpool. I markplan finns två hyreslokaler samt cykel och barnvagnsrum.
Huset är byggt miljösmart och har svanen-märkning. Det innebär att huset är energieffektivt och byggt miljövänligt.
Föreningen har beslutat att sänka avgiften med 10% från 1 november 2024.
Avgiften höjdes med 10% från 1 december 2025.
Brf Celsius har tillgång till totalt 51 parkeringsplatser för uthyrning varav 32 p-platser kommer att finnas i det underliggande garaget och 19 p-platser i garage i grannfastigheten. Därutöver kommer föreningen att ha tillgång till 1 p-plats, som är avsedd för föreningens bilpool (Our Green Car).
Prisbilden är mellan: 1100-1900 kr beroende på storlek och laddmöjlighet.
Föreningen är kollektivt ansluten till Telia Triple-play (TV, Internet och telefoni). Detta ingår i månadsavgiften.
CYKELFÖRRÅD OCH CYKELVERKSTAD
Det finns två separata cykelrum i källaren samt ett cykelförråd på entrévåningen. Cykelrummet på entrévåningen
innehåller även en mindre cykelverkstad.
MILJÖRUM
Det finns ett miljörum för hela huset som man når från
utsidan.
BARNVAGNS- OCH RULLSTOLSRUM
På entrévåningen finns ett rum för barnvagnar och
rullstolar.
GÄSTLÄGENHET
På våning 4 finns en mindre gästlägenhet.
GEMENSAMHETSLOKAL/ CO-WORKING
På våning 4, direkt innanför glasdörrar ut mot det övre
torget i öst, finns en gemensamhetslokal för föreningen
som kan utrustas för att fungera för co-working, kalas,
matlagning mm.
Intill lokalen finns en toalett.
GEMENSAMHETSLOKAL/ GLASRUM
Längst upp i huset på våning 22 finns en takterrass som
sträcker sig runt hela huset. Från denna terrass kan man
via en utvändig trappa komma upp till den övre terrassen där det finns ett glasat uterum för gemensamma aktiviteter. Utanför glasrummet sträcker sig en takterrass
runt huset. Ett pentry och en wc finns intill terrassen på våning 22.
BO MED VATTNET SOM GRANNE
På Eriksberg blandas nybyggt och modern design med fastigheter från den tidigare varvtiden. Mixen av gammalt och nytt har blivit prisad för sin goda arkitektur. När du bor här är närheten till vattnet påtagligt samtidigt som området bjuder på ett stort nöjesutbud alldeles runt knuten.
MED UTSIKT ÖVER VATTNET
När du bor i Eriksberg börjar du kanske dagen med en promenad eller löptur längs den träskodda kajen som går längs vattnet i flera kilometer. Vattnet tillsammans med närheten till många grönområden gör att du alltid kan känna av naturen när du bor på Eriksberg. Vid foten av Älvsborgsbron ligger Färjenäsparken som bjuder på många vackra vyer och ett grönområde att promenera i. Området har tre stora lekplatser och en fotbollsplan vilket gör det till en populär plats för barnfamiljer och en perfekt plats för lek och picknick. Parken är under utveckling för att bli till en plats för evenemang, aktiviteter och rekreation. Krokängsparken och Sörhallsberget är två andra fina platser där du kan uppleva naturen. När du vill blicka ut över vattnet kan du strosa runt Eriksbergskranens småbåtshamn och upptäcka mysiga caféer och restauranger. Eller ta vara på en solig dag med att slå dig ner på däcket längs båthamnen i sällskap av en glass.
NÖJEN PÅ HEMMAPLAN
De gamla hamn- och varvsområdent har de senaste decennierna förvandlats till bostadsområden, arbetsplatser och stråk där du kan roa dig eller njuta av kulturlivet. Bebyggelsen runt Eriksberg består främst av flerfamiljshus som får ett lugn av havet. Du hittar ett varierat utbud av nöjen i form av olika butiker, restauranger, teater, evenemangshall, konstnärsateljéer och en idrottshall. För den idrottsintresserade ett stort utbud av träningsmöjligheter då många gymkedjor och mindre lokala aktörer har valt att etablera sig här.
TA DIG ENKELT TILL STAN
Cityfärjan Älvsnabben går från Eriksbergskajen i tät trafik mellan båda sidor av älven. Det är ett bekvämt och snabbt sätt att resa till centrum utan bil och parkeringsbekymmer och samtidigt ett mycket tilltalande sätt att få se staden och vattnet. Det finns också bra förbindelser med buss till Göteborgs olika delar. Föredrar du bil går det enkelt att ta sig ut på de stora lederna.
Köpa, sälja eller värdera bostad i Eriksberg? Kontakta våra Bjurfors mäklare på Hisingen! Passa också på att anmäla dig till vår kostnadsfria söktjänst Boagenten som hjälper dig att hitta ditt drömboende.
Kontakta mäklaren om du behöver hjälp att ta fram en boendekalkyl.
När du köper din bostad genom Bjurfors kan du ansöka om bolån till en förmånlig ränta hos vår samarbetspartner SEB.
Ansvarig mäklare