-
Köpa
Köpa -
Sälja
Sälja - Hitta bostad
- Skapa bevakning
- Hitta mäklare
Här ges en sällsynt möjlighet att skapa ett drömboende i ett av områdets mest attraktiva lägen.
Göteborg
*Areauppgifter enligt taxeringsinformationen
Bokad visning. Du kan även ringa Bjurfors Bokningscenter 031-761 79 50. Välkommen!
Välkommen till ett hem med stor potential, uppfört 1959 och beläget i ett attraktivt läge där lugnet möter stadens bekvämligheter. Här erbjuds en fin möjlighet att skapa ett långsiktigt boende i ett område som kombinerar närhet till naturen med smidig access till centrala Göteborg.
Huset har kvar delar av sin tidstypiska karaktär och ger goda möjligheter att successivt uppdatera efter egen smak och behov. Planlösningen är flexibel och lämpar sig väl för olika typer av boendelösningar, exempelvis generationsboende eller möjlighet att inreda en separat del på entréplan som kan användas för uthyrning eller egen verksamhet.
Tomten om cirka 1 000 kvm är generös och en av de större i området, vilket ger gott om utrymme för både lek, odling och sociala ytor. Här finns plats att utveckla en trivsam trädgård med exempelvis odlingsytor, uteplatser och grönska, samtidigt som tomten erbjuder en lugn och avskild miljö för avkoppling.
I närområdet finns lekplatser, grönområden och fina strövområden som bidrar till en aktiv och naturnära livsstil. Området är uppskattat av barnfamiljer med närhet till förskolor och skolor.
Samtidigt är läget praktiskt med goda kommunikationer som gör det enkelt att ta sig till centrala Göteborg och övriga delar av staden, oavsett färdsätt.
Ett hus med utvecklingsmöjligheter i ett stabilt och omtyckt område.
Kontakta ansvarig mäklare för mer information eller för att boka visning.



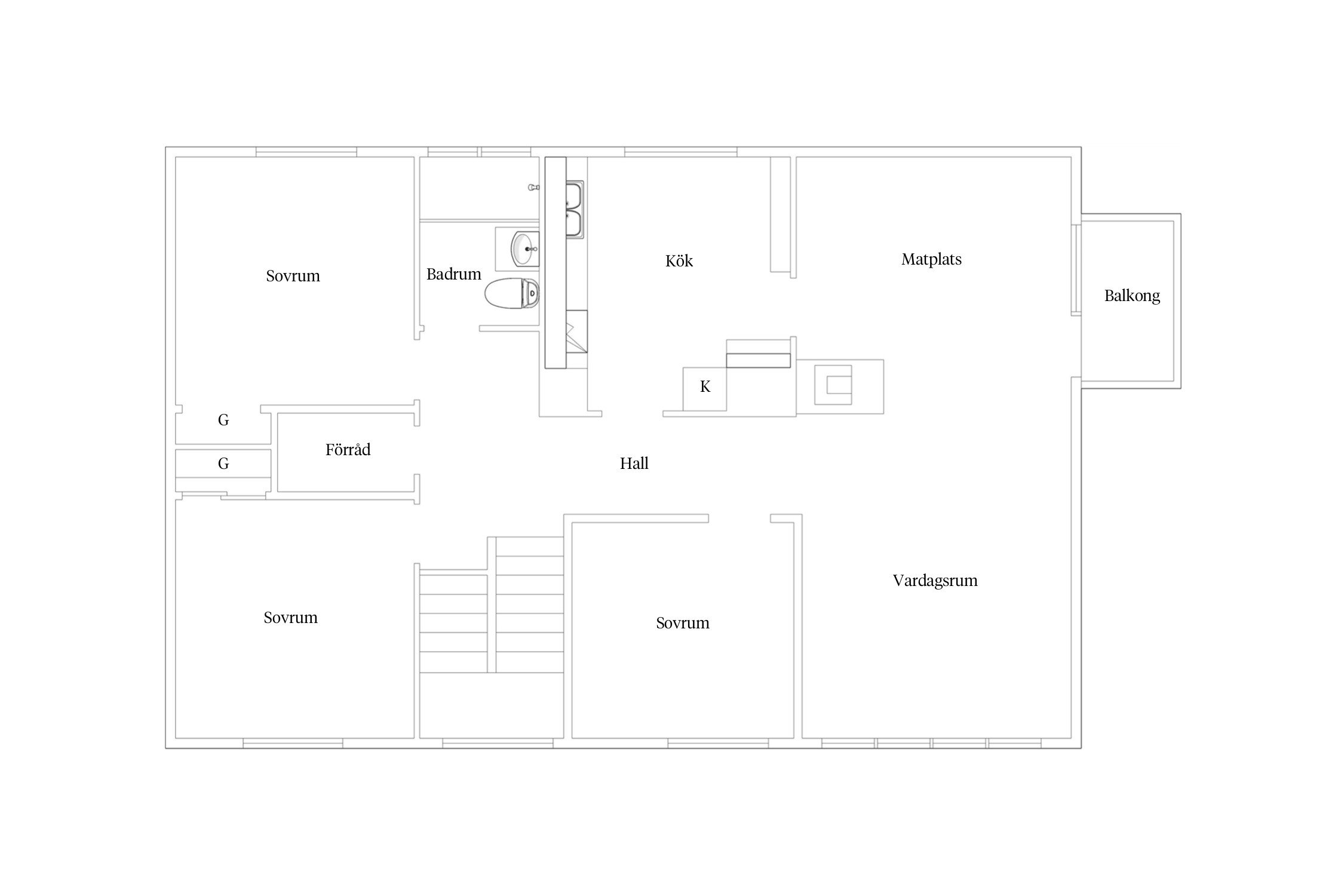
Entréplan
Övre plan
Backa 766:74
*Areauppgifter enligt taxeringsinformationen
2016 – Merparten av fönster & dörrar byttes ut.
2014 – Mekanisk från/tilluftsventilation med återvinning (FTX) installerades.
2011 - Nytt tak
2006 – Tvättstugan renoverades
Kommunalt vatten och avlopp.
Gemensamhetsanläggning: Göteborg backa ga:99 ändamål: Vägar, Garage och/eller parkering
Avtalsservitut Fiber
Last: Avtalsservitut Elledning, vattenledning, fiber, avloppsledning, D202300166548:1.1
Posten uppvärmning avser även hushållsel.
Driftkostnaden kan variera beroende på avtal och personlig förbrukning.
Det finns 4 st pantbrev uttagna om sammanlagt 1 920 000 kr
Göteborg är Sveriges näst största stad och den expanderar hela tiden. Staden har ett fint läge på västkusten vid Göta älvs mynning. Det salta västerhavet erbjuder många härliga badplatser. Här finns också en levande skärgård med åretruntboende. Göteborg är även känd som evenemangsstaden med stråket från Ullevi till Svenska Mässan och Liseberg, ett stenkast från paradgatan Avenyn.
Varvsindustrin är numera nedlagd i Göteborg, här byggs i stället attraktiva bostadsområden längs älvstranden. Göteborg är också en universitetsstad med välkända Chalmers tekniska högskola och Göteborgs Universitet samt ett blomstrande näringsliv.
Köpa, sälja eller värdera bostad i Göteborg? Kontakta våra mäklare i Göteborg! Passa också på att anmäla dig till vår kostnadsfria söktjänst Boagenten som hjälper dig att hitta ditt drömboende.
Kontakta mäklaren om du behöver hjälp att ta fram en boendekalkyl.
När du köper din bostad genom Bjurfors kan du ansöka om bolån till en förmånlig ränta hos våra banksamarbetspartners Söderberg & Partners och SEB.
Bokad visning. Du kan även ringa Bjurfors Bokningscenter 031-761 79 50. Välkommen!
Ansvarig mäklare