-
Köpa
Köpa -
Sälja
Sälja - Hitta bostad
- Skapa bevakning
- Hitta mäklare
Charmig tvåa i hjärtat av Majorna
Majorna, Göteborg
*Inkl värme, vatten och Kabel-TV.
**Areauppgifter enligt bostadsrättsföreningen.
På Förhand ligger bostäder som av olika anledningar inte är ute till försäljning just nu men som kan komma att säljas om förutsättningarna är rätt.
Bjurfors Century presenterar en smakfull och ytterst väldisponerad lägenhet med landshövdingecharm och rofyllt gårdsläge.
Med ett rofyllt läge i grönskande kvarter välkomnas ni till denna landshövdingepärla där varje kvadratmeter är väl utnyttjad. Ni kliver in i ett hem som kombinerar den charmfulla landshövdingekänslan med nutida inslag där kök, bad och ytskikt är genomtänkt renoverade. Vidare möts ni av en generös takhöjd, originalspegeldörrar och ljusa brädgolv.
Den mysiga innergården med trädgårdskänsla är grönskande och bjuder in till umgänge. Här finns möjligheter till odling, avkopplande lässtunder och sena grillkvällar. Läget är perfekt med närhet till sävål Linnéstadens och Mariaplans restaurangutbud som Slottsskogens grönska.
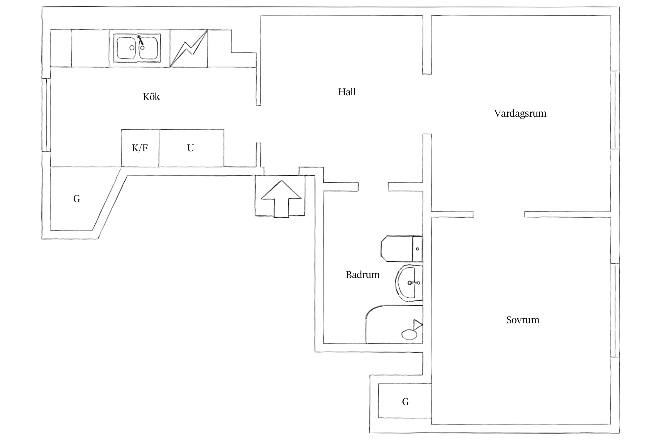
Välkomnande hall med avhängning för ytterkläder i en praktiskt inbyggd garderob med spegeldörr. Redan här ges en rymlig känsla tack vare bostadens generösa takhöjd. Från hallen når man lägenhetens alla rum.
Köket med sina ljusa målade väggar är väldisponerat med plats för matgrupp intill ett fönsterparti som vetter mot den grönskande innergården vilket ger ljuset gott om spelrum. Här finns gott om förvaring bakom flera ljusgröna skåpsluckor och bra avställningsytor på en mörk arbetsbänk. Köket signerat Ballingslöv är modernt och innehar kyl/frys, spis, ugn, fläkt och diskmaskin.
Vardagsrummet har gott om plats för större soffgrupp med tillhörande tv-möbel och matsalsmöblemang om så önskas. Tidsenliga detaljer så som framtaget vitmålat brädgolv och gjutjärnselement skapar en härlig och genuin atmosfär. Väggarna är målade i tidlöst vitt.
Det harmoniska sovrummet ligger med ett lugnt gårdsläge och gott om plats för dubbelsäng med tillhörande möblemang. Förvaringsmöjligheter finns bakom en spegeldörr i en inbyggd garderob och även här är det charmiga brädgolvet framtaget och vitmålat.
Det helkaklade badrummet är smakfullt renoverat och nås från hallen. Badrummet är tidlöst inrett med ljusa kakelplattor och mörkt klinker med skön golvvärme. Här finns wc, dusch och förvaringsmöjligheter ges i en praktisk kommod och det finns dessutom plats för en fristående förvaringsmöbel.



*Areauppgifter enligt bostadsrättsföreningen.
Inkl värme, vatten och Kabel-TV.
Till bostaden hör två vindsförråd och ett mindre förråd.
Andelstal kapital 9,81155 %.
Bostadsrättens indirekta nettoskuldsättning baseras på föreningens skulder/lån minus föreningens räntebärande tillgångar och likvida medel. Beräkningen är gjord via Bopedia. För mer information kontakta ansvarig fastighetsmäklare.
Detta är enbart riktvärden och kan variera beroende på avtal och förbrukning.
*Betalas av köpare
Brf Vingagatan 6 är en stabil och välskött Riksbyggenförening. Föreningen äger fastigheten Majorna 327:2. På fastigheten finns en byggnad med 11 lägenheter som uppfördes 1933 (10 bostadsrätter och en hyresrätt). Fastighetens adress är Vingagatan 6 A-B i Göteborg och lägenhetsfördelningen ser ut enligt följande: 10 st 2 ROK och 1 st 3 ROK. Dessutom finns sex parkeringsplatser och två garage.
För att bevara huset i gott skick utförs löpande reparationer av uppkomna skador samt planerat underhåll av normala förslitningar.
Sex parkeringsplatser och två garage.
Kabel-TV via Tele2.
Bredband via Tele2.
På föreningens soliga innergård finns planteringar, cykelförvaring och en altan med plats för sittgrupp och grill. Tvättstuga finns i källaren och nås från lägenhetens trappuppgång. Cykelförråd finns också att tillgå i källaren.
BO I OMTYCKTA MAJORNA
Det är ingen överdrift att påstå att Majorna är en stadsdel som älskas av många. Det är en populär stadsdel som ständigt växer och utvecklas. Majorna har en öppen famn och är hem för såväl unga som medelålders, barnfamiljer, singlar, kollektiv och sambopar och så förstås de gamla majpojkarna och töserna som gärna berättar om gamla tider.
GAMLA GÅRDAR OCH INFLYTTNING
Även hos de som inte bor här har Majorna en särskild plats i hjärtat, kanske tack vare stadsdelens kulturhistoriska värde som påminner oss om arvet från sjöfartsstaden Göteborg.
De många landshövdingehusen med sina stora, sammanhängande innergårdar sätter helt klart sin prägel på Majorna. Tittar man lite närmare hittar man även en hel del andra byggnadsstilar, som funkishus från 40-talet, Vita Björns miljonprogram och stenhus från sekelskiftet längs Karl Johansgatan. Den goda blandningen av såväl folk som hus, gatstrukturer och grönområden är vad som ger området dess särpräglade charm. För har man en gång varit i Majorna blir man lätt kvar.
AVSLAPPNAT OCH DRIFTIGT
När du bor i Majorna blir du en del av en levande stadsdel. Här är det alltid är liv och rörelse, fast i ett lugnt och tillbakalutat tempo. Det finns gott om mysiga caféer och restauranger, små butiker och konstgallerier. I landshövdingehusens gatuplan springer man inte sällan på oväntade små verksamheter som drivs av driftiga och kreativa "majbor". Kulturen blomstrar särskilt kring Stigbergstorget, med klassiska skivbutiken Bengans – ett av få ställen där man fortfarande lätt kan lägga en förmiddag på att bläddra i skivbackarna. Alldeles intill ligger Sjöfartsmuseet, där man kan uppleva Göteborgs historia som sjöfartsstad och mitt emot ligger Gathenhielmska Kulturreservatet, som bjuder på en tidsresa tillbaka till det gamla Göteborg. De första som bebyggde Majorna var troligtvis finska och estniska sjömän. Det är det finska ordet för hydda, ”maja” som sägs ha bildat namnet ”Majorna”. När de första hamnarna i Göteborg anlades nedanför Stigbergets sluttningar blev Majorna den naturliga bostadsorten för hamnens arbetare och därtill krogkvarter för törstiga sjömän. Det gamla Majorna är ett stycke levande historia, som inte minst finns bevarad i gatunamn som Kommendörsgatan, Kaptensgatan, Lotsgatan, Skeppsgossegatan och många fler.
NÄRHET TILL BÅDE SLOTTSKOGEN OCH SKOLOR
Här har du fantastiska Slottsskogen inpå knuten. Grönområdet står alltid redo att bjuda dig på härliga promenader, picknick eller lek på Plikta. Runtom i Majorna finns även flera andra fina parker, grönytor och lekplatser som Söderlingska Trädgården vid Djurgårdsgatan. En omtyckt mötesplats för alla åldrar och ett toppenställe för att ta en kopp kaffe i vårsolen.
I området finns flera förskolor och grundskolor samt att i centrum hittar du gymnasieskolor och Göteborgs Universitet.
Köpa, sälja eller värdera bostad i Majorna? Kontakta våra mäklare i Göteborg! Passa också på att anmäla dig till vår kostnadsfria söktjänst Boagenten som hjälper dig att hitta ditt drömboende.
Kontakta mäklaren om du behöver hjälp att ta fram en boendekalkyl.
När du köper din bostad genom Bjurfors kan du ansöka om bolån till en förmånlig ränta hos våra banksamarbetspartners Söderberg & Partners och SEB.
Ansvarig mäklare