-
Köpa
Köpa -
Sälja
Sälja - Hitta bostad
- Skapa bevakning
- Hitta mäklare
Central trea med hiss, inglasad balkong och möjlighet garageplats i huset. Låg avgift inkl. bredband
Centrum, Helsingborg
*I avgiften ingår det värme, vatten samt bredband.
**Areakälla enligt bostadsrättsföreningens mäklarbild/utdrag ur lägenhetsregister.
På Förhand ligger bostäder som av olika anledningar inte är ute till försäljning just nu men som kan komma att säljas om förutsättningarna är rätt.
Välplanerad trea i populär förening med hiss, möjlighet att hyra garageplats i huset, inglasad balkong i söderläge och låg avgift om 3 266 kr.
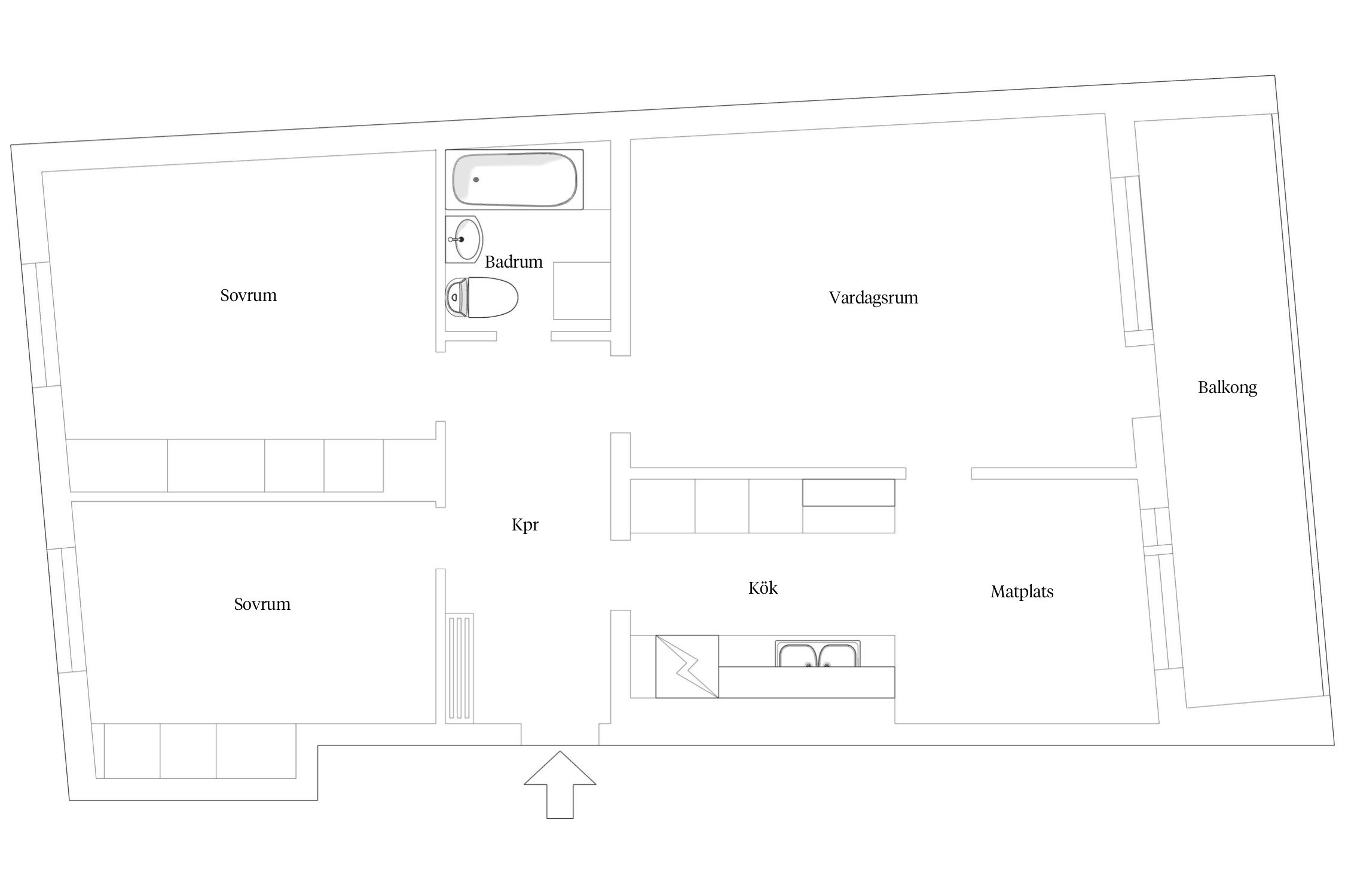
Välkommen till en mycket trivsam och välplanerad trea med ett svårslaget läge mitt i city, men på en lugn och stillsam gata. Här bor du i en av stadens mest populära och välskötta föreningar, känd för sin stabilitet och sina ovanligt låga avgifter, vilket skapar ett tryggt och attraktivt boende över tid.
Redan här erbjuds en kombination av bekvämligheter som är svår att hitta – möjlighet till garageplats i huset, något som är mycket sällsynt i så centrala lägen, samt hiss i fastigheten som bidrar till en bekväm vardag.
Den låga månadsavgiften om endast 3 266 kr ingår värme, vatten samt bredband, vilket gör detta till ett både ekonomiskt och bekymmersfritt boende.
Planlösningen är genomtänkt och funktionell med två rofyllda sovrum, goda förvaringsmöjligheter och ett rymligt vardagsrum med fint ljusinsläpp. Härifrån nås den lyxiga inglasade balkongen i eftertraktat söderläge, som fungerar som ett extra rum stora delar av året – en perfekt plats att njuta av solen från morgon till kväll.
Köket är praktiskt utformat med goda arbetsytor, gott om förvaring och en naturlig matplats i anslutning. Badrummet är stilrent och utrustat med badkar.
Läget på Nedre Långvinkelsgatan 29A är svårslaget med närhet till stadens breda utbud av kultur, restauranger, caféer, barer och butiker längs Kullagatan, samtidigt som bostaden är belägen i ett lugnt och skyddat läge.
Varmt välkommen att kontakta mäklare Bob Kjellsson för visning av denna trivsamma citytrea.



Kullen Östra 29
*Areakälla enligt bostadsrättsföreningens mäklarbild/utdrag ur lägenhetsregister.
I avgiften ingår det värme, vatten samt bredband.
Varmgarage finns och i dagsläget kan en garageplats garanteras till den medlem som önskar ha en plats om säljaren har en plats. Kostnad 850kr/mån för garageplats (14 stycken) och 400kr/mån för MC-plats (3 stycken) Laddmöjlighet för elbil finns installerad. Förbrukningen debiteras separat enligt en årlig schablon. (Kontrollerat 2026-03-31)
Bostadsrättens indirekta nettoskuldsättning baseras på föreningens skulder/lån minus föreningens räntebärande tillgångar och likvida medel. Beräkningen är gjord via Bopedia. För mer information kontakta ansvarig fastighetsmäklare.
*Betalas av köpare
Brf Liden Östra registrerades 2006-11-30. Den 2 maj förvärvade föreningen fastigheten Kullen Östra 29. Fastigheten är byggd 1969, består av 25 lägenheter fördelat på 23 bostadsrätter och 2 hyresrätter samt 1 lokal. Fastigheten är ombyggd 1995. Ekonomisk förvaltning via SBC.
Föreningen höjde avgiften senast med 4 % 2026-01-01.
Föreningen planerar en avgiftshöjning om 4 % även vid kommande årsskifte 2026/2027.
(Kontrollerat 2026-03-31)
Fastigheten är fullvärdesförsäkrad i Länsförsäkringar, bostadsrättstillägg ingår för föreningens medlemmar.
Utförda renoveringar:
2022 - Relining
2025 - Nytt fläktsystem
Föreningen följer den framtagna underhållsplanen.
(Kontrollerat 2026-03-31)
P-platser finns i gatorna omkring. Varmgarage finns och i dagsläget kan en garageplats garanteras till den medlem som önskar ha en plats om säljaren har en plats. Kostnad 850kr/mån för garageplats (14 stycken) och 400kr/mån för MC-plats (3 stycken) Laddmöjlighet för elbil finns installerad. Förbrukningen debiteras separat enligt en årlig schablon. (Kontrollerat 2026-03-31)
Anslutningen är via Tele2. Bredband ingår i avgiften.
Det finns två trevliga innergårdar med utemöbler på båda innergårdarna samt på den ena en gasolgrill, och en kolgrill.
Det finns förråd. Det finns cykelförvaring i passagen till innergården. Tvättrum finns i källaren med två tvättmaskiner, en torktumlare och ett torkskåp.
Information som berör föreningen är inhämtad via årsredovisning, stadgar och kontakt med föreningen. Avvikelser kan förekomma och som köpare uppmanas du att själv kontrollera samtliga uppgifter, framförallt om något är av extra stor betydelse för dig som köpare.
Närheten till havet, naturen och kulturen gör Helsingborg Centrum till en pärla i Öresundregionen. Börja dagen med en god fika för att sen strosa i Stadsparken. Runda av dagen med ett dopp i Öresund eller varför inte ta båten till Danmark. Möjligheterna är många - välkommen till Helsingborg C!
Centrum ligger alldeles intill Öresund och är den äldsta delen av Helsingborg. Centrum sträcker sig mellan Stadsteatern och Hälsovägen i norr till Stadsparken i Söder. Restauranger, caféer och barer ligger tätt, både inne bland husen samt i Norra Hamnen vid havet.
Stadens signum Kärnan är ett 35 meter högt försvarstorn från 1300-talet och den enda kvarstående resten av Helsingborgs slott. För att komma upp till Kärnan och den intilliggande lummiga parken Slottshöjden, tar du Terrasstrapporna från Konsul Trapps plats vid Stortorget. Terrasstrapporna invigdes 1903 och från den övre avsatsen har du en underbar utsikt över Helsingborgs takåsar och Öresund.
Butikerna är centrerade till shoppingstråket Kullagatan som sträcker sig från Stortorget och S:t Jörgens plats. I tvärgatorna från Kullagatan och runt Mariakyrkan söderut ligger det många mysiga fik, restauranger och personliga butiker.
Du behöver inte leta länge efter ett ställe som erbjuder en god fika. Det vimlar av kaféer av olika slag; teoch kaffespecialister, chocolateries, amerikanska kaffekedjor och anrika konditorier.
Väl värt ett besök är Henckelska gården på Norra Storgatan, som är stadens äldsta hus - från 1681. Bakom huset döljer sig en charmig liten trädgård, omgiven av husmurar och figurklippta häckar. Andra populära besöksmål är Dunkers Kulturhus. Här finns spännande kultur och pedagogisk verksamhet för barn samt mycket annat. Varför inte avnjuta en god middag i deras restaurang eller på några av de närliggande ställena i Norra hamnen.
Bada mitt i stan under sommaren på någon av stadens många badplatser. Bland andra finns sandstranden Tropical beach där det känns som att du befinner dig på sydligare breddgrader med palmer och trevlig bar.
Kort och gott har du nära till allt inne i centrum; strand, bad, kultur, god mat, natur och shopping. Vill du utforska den danska sidan gör du det snabbt med båt eller tåg.
Köpa, sälja eller värdera bostad i Helsingborg Centrum? Välkommen att kontakta Bjurfors mäklare i Helsingborg City. Passa också på att anmäla dig till vår kostnadsfria söktjänst Boagenten som hjälper dig att hitta ditt drömboende.
Kontakta mäklaren om du behöver hjälp att ta fram en boendekalkyl.
När du köper din bostad genom Bjurfors kan du ansöka om bolån till en förmånlig ränta hos våra banksamarbetspartners Söderberg & Partners och SEB.
Ansvarig mäklare