-
Köpa
Köpa -
Sälja
Sälja - Hitta bostad
- Skapa bevakning
- Hitta mäklare
Förstklassigt boende med centrum utanför dörren
Lund - Centrum, Lund
*I avgiften ingår värme och vatten. Obligatoriskt tillägg om 124 kr för Kabel-TV tillkommer samt Bredband för 135 kr/mån.
**Areauppgifter enligt föreningen
På Förhand ligger bostäder som av olika anledningar inte är ute till försäljning just nu men som kan komma att säljas om förutsättningarna är rätt.
Välkommen till en slående och vackert renoverad bostad med öppna väldisponerade ytor, härlig västerbalkong och med centrum utanför dörren.
På populär centrum-adress, uppe på andra våningen med knapp insyn finns denna genomgående och helt underbara bostad med härlig västerbalkong mot föreningens innergård. Den har genomgått flertalet smakfulla renoveringar vilket resulterat i många fina attribut. Bland annat ett fantastiskt kök från Ballingslöv med vackra material och köksö i öppen planlösning mot vardagsrummet samt ett lyxigt badrum med egen tvättutrustning. De öppna ytorna med utgång till balkongen skapar en social atmosfär som är svår att motstå. Vidare finns ett ljuvligt och generöst sovrum med flertalet garderober samt en hall med klädkammare för ordentliga förvaringsmöjligheter.
Här bor du verkligen centralt med både Mårtenstorget och Saluhallen på ca 2 minuters promenad upp längs Bankgatan med mängder av restauranger och butiker. På behörigt avstånd finner du även underbara Stadsparken och Botaniska trädgården. För studenten ligger Universitetet och flertalet nationer nära till hands. Stadsbussen har hållplats precis utmed gatan och knutpunkt för regionbussar med avgångar till bland annat Malmö finns ca 50 m bort.
Välkommen till ett lyxigt, centralt men även mysigt boende som ger dig den bästa kombinationen av Lund som stad.
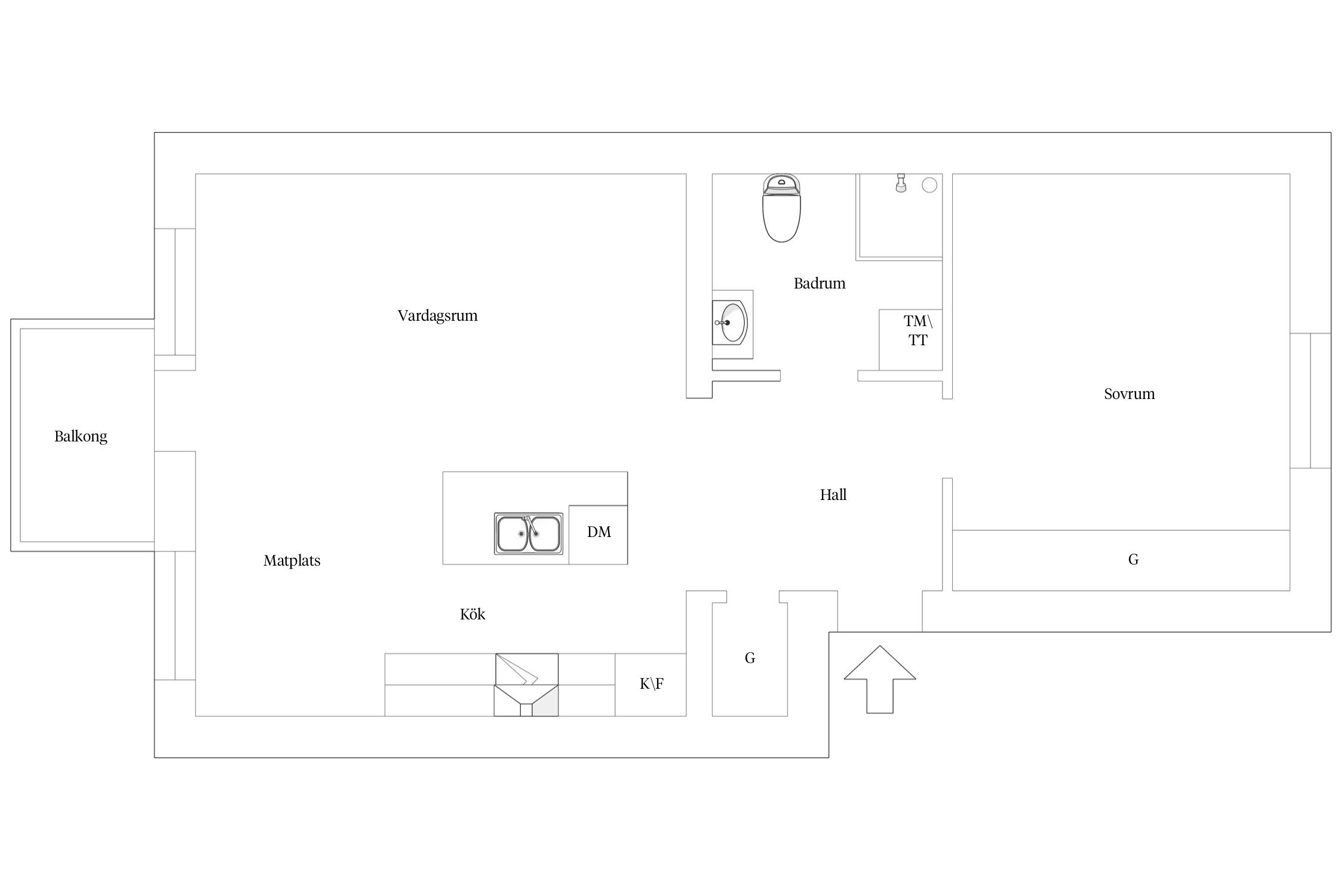
Hall:
Upp på andra våningen nås ytterdörren. Innanför välkomnar den trevliga hallen som öppnats upp mot kök och vardagsrum. Till höger finns hatthylla och till vänster nås en praktisk klädkammare. Väggarna är här målade och på golvet ligger gedigen parkett som är genomgående i bostaden.
Vardagsrum & balkong:
Vardagsrummet är väl tilltaget och rymmer både soffmöblemang, matplats samt t.ex. skrivbord. Det har öppnats upp så att det ligger i öppen planlösning mot köket med köksö. Rummet får ett bra ljusinsläpp via de två större fönsterpartierna samt från den glasade dörren till balkongen mot väst. Då bostaden är genomgående ges även ljus från sovrummet i öst. Balkongen som vetter mot föreningens innergård får eftermiddags/kvällssol och funkar utmärkt att möblera med nättare utemöbler. I vardagsrummet är väggarna målade.
Kök:
Det vackra köket från märket Ballingslöv har matt vita luckor och en stavlimmad bänkskiva i massivt trä. Ovanför bänkskiva och spis är väggen kaklad vitt. Köksön har också bänkskiva i stavlimmat massivt trä men här går det även snyggt ner över sidorna. Köksön är utrustad med diskmaskin (Siemens), dubbel diskho samt lådskåp. I övrigt är köket utrustat med kyl -och fryskombination, ugn med spis samt kolfilterfläkt (2019), samtliga från Siemens.
Sovrum:
Sovrummet är generöst och har plats för såväl större dubbelsäng som sängbord. Detta rum med fönster i öst. För förvaring finns här en hel rad av 6 st inbyggda garderober.
Badrum:
Det prydliga badrummet som är helkaklat med vitt kakel på väggarna och mörkt klinker på golvet. Här finns det både tvättmaskin och torktumlare från Siemens. I taket sitter spotlights och i golvet ligger elburen golvvärme. I övrigt är det utrustat med dusch (Mora), praktiskt infällbara duschdörrar i glas (Ido), toalett (Gustavsberg) samt handfat med kommod.



*Areauppgifter enligt föreningen
I avgiften ingår värme och vatten. Obligatoriskt tillägg om 124 kr för Kabel-TV tillkommer samt Bredband för 135 kr/mån.
Två förråd tillhör lägenheten, ett i källaren och ett på vinden.
Bostadsrättens indirekta nettoskuldsättning baseras på föreningens skulder/lån minus föreningens räntebärande tillgångar och likvida medel. Beräkningen är gjord och baseras på senaste tillgängliga årsredovisningen. För mer information kontakta ansvarig fastighetsmäklare.
*Betalas av säljare
HSB Brf Svarvaren bildades 1945 och är en äkta bostadsrättsförening med 25 lägenheter (3 st 1 rok, 13 st 2 rok, 8 st 3 rok och 1 st 4 rok) samt 2 lokaler upplåtna med bostadsrätt (kontorslokal + restaurang). Föreningens tomt är friköpt.
Varje lägenhet har individuell fjärravläst elmätning och kan välja egen elleverantör. Även föreningen har ett el-abonnemang för tvättstuga, trapphus, källare, vind etc. Föreningen har ett gemensamt vatten-abonnemang.
HSB sköter den ekonomiska förvaltningen.
Föreningen har precis höjt avgifterna med 3,5% fr.o.m 1/1-2026 (kontrollerat 2026-01-10).
Föreningens fastighet är försäkrad (fullvärde) via Länsförsäkringar. Kollektivt bostadsrättstillägg inte ej i avgiften.
1980 (ca) Åtgärd Balkonger (väster)
1992 Fönsterbyte
1999 Avloppsstammar (nya)
1999 Tappvattenstammar och ledningar (nya)
1999 Nytt elsystem i fastigheten
2006 Nytt yttertak + plåtarbeten, nytt expansionskärl
2010 Ny undercentral för värme
2014 Tak (diverse underhållsåtgärder)
2015 Underhållsspolning avloppstammar
2016 Nytt styrsystem för värme och varmvatten.
2016 Byte av alla radiatorventiler och styrventiler i fastigheten.
2016 Nya brandvarnare i alla gemensamma utrymmen samt bostadsrätter.
Optimering av värmesystemet.
2017 Radonmätning i fastigheten och bostadsrätter (utan anmärkning).
2020 Relining av horisontella avloppsledningar (i mark och källare)
2020 Renovering av källartoalett och basturum.
2020 Förbättrat inbrottsskydd till källarförråd, byte av dörrar i källaren.
2022 Totalrenovering av källaren.
Kommande renoveringar under närmsta fem åren (kontrollerat 2026-01-10):
- OVK och rensning av ventilationskanaler sker i februari 2026
- Renovering av tvättstuga, torkrum, mangelrum sker sannolikt under 2026
- Byte av tappvattenledningar i hela fastigheten. Sannolikt sker byte av tappvattenrör i källaren 2026, resten under kommande år
- Renovering av balkonger och fasad mot väster - sker tidigast 2027-2028
- Renovering av fasad mot öster - sker tidigast 2028-2029
Föreningen har 7 parkeringsplatser. Parkeringen kostar 600 kr/mån. I dagsläget finns det ingen ledig plats och 1-2 peroner står i kö. För övrigt finns parkeringshus i närheten (kontrollerat 2026-01-10).
Kabel-TV via Tele2 tillkommer som obligatoriskt tillägg om 124 kr/mån (standardpaket).
Bredband: Obligatoriskt tillägg avseende Bredband via Tele2 (500/50 mbit/s) tillkommer med 135 kr/mån.
Gemensam gård med sittmöblemang och grill.
I källaren finns tvättstuga med separat torkrum, mangelrum samt cykelförråd/barnvagnsrum. Här finns även hobbyrum/verkstad som kan lånas under kortare perioder och en möteslokal som används av föreningen för årsmöten m.m. Dessutom har föreningen en fin och nyrenoverad bastuavdelning i källaren med bastu, dusch och wc.
Information som berör föreningen är inhämtad via årsredovisning, stadgar och kontakt med föreningen. Avvikelser kan förekomma och som köpare uppmanas du att själv kontrollera samtliga uppgifter, framförallt om något är av extra stor betydelse för dig som köpare.
I Lund kopplas historia och framtid samman i mötet mellan det gamla och det nya. Centrala Lund är en gemytlig kullerstensstad med den lilla stadens charm och samtidigt storstadens hela utbud. I Lunds centrum är det lättare att gå eller cykla än att köra bil vilket bidrar till ett lugnt och skönt tempo i stadskärnan.
Lund avgränsas idag av området där den medeltida muren en gång stod. Lund är en stad med anor och det märks främst i gatunätet som på sina ställen sett likadant ut i århundraden. De små sidogatorna, husen med klätterrosor och vackra detaljer bidrar till stadens unika charm. Södra Esplanaden, Gyllenkroks allé, Svanegatan, Bangatan, Biskopsgatan och Östra Vallgatan ringar in de mest centrala delarna. Här består bebyggelsen framförallt av flerfamiljshus men också av gatuhus. Bakom flera av dessa finns de fantastiskt vackra innergårdar som Lund är känt för.
I öster finns Professorstaden som är ett populärt bostadsområde med sina ståtliga och påkostade villor. Geografiskt begränsas området av Tornavägen i öster, Dalbyvägen i söder, Östra Vallgatan och Biskopsgatan i väster samt Sölvegatan i norr. Här finns även idrottsanläggningen Gerdahallen med ett av Nordens största gym. Området Nöden erbjuder småskalig bebyggelse och mysiga gränder.
Lund är kaféernas stad och runt dess torg umgås man gärna över en kopp kaffe och något gott att äta. Vid Stortorget ligger internationellt uppmärksammade Stadshallen som varje år besöks av studenter från hela världen. Här kan du lyssna till konserter och föreläsningar, delta i seminarier eller besöka spännande utställningar. Saluhallen vid Mårtenstorget är ett stycke kulturhistoria och byggnaden ligger Lundaborna varmt om hjärtat.
Större delen centrum är bilfritt, så inne i Lund cyklar eller går man. Centralstationen är en viktig pulsåder för stadskärnan, då många av Lunds invånare pendlar via tåg eller buss. Staden Lund präglas av grönområden och förutom Lundagård är till exempel Botaniska Trädgården och Stadsparken populära platser för avkoppling och rekreation.
I Lund finns mycket att upptäcka för den arkitekturintresserade. Lunds Domkyrka som invigdes i mitten av 1100-talet är den förnämsta romanska domen i Norden. Nordost om Domkyrkan ligger Kulturkvadranten som härstammar från 900-talets slut och är ett av Lunds bäst bevarade medeltida områden. Här ligger flera av universitetets institutioner samt friluftsmuseet Kulturen.
Vill du köpa, sälja eller värdera bostad i Lunds centrum? Kontakta våra mäklare i Lund! Passa också på att anmäla dig till vår kostnadsfria söktjänst Boagenten som hjälper dig att hitta ditt drömboende.
Kontakta mäklaren om du behöver hjälp att ta fram en boendekalkyl.
När du köper din bostad genom Bjurfors kan du ansöka om bolån till en förmånlig ränta hos vår samarbetspartner SEB.
Ansvarig mäklare